Lindsey Vermette and Michael Miller Present: 3838 Cypress Street

Page 1


History

‘Greencroft’ estate, at 3838 Cypress Street, is a landmark of Vancouver’s architectural and social heritage. Completed in 1912, it was designed by Thomas Hooper, one of British Columbia’s most influential early 20th-century architects, renowned for blending traditional European styles with a distinctly Canadian identity.

Greencroft stands among Hooper’s most distinguished works, alongside Hycroft Manor, the Royal Bank Building in Victoria, and Vancouver’s first steel-framed commercial structure, the Winch Building (Sinclair Centre) all reflecting his meticulous craftsmanship and lasting influence on the region’s architecture

The 3838 Cypress Street estate was first owned by Lieutenant Governor Eric W. Hamber and Aldyen Hendry, daughter of industrialist John Hendry, who named the home “Greencroft” in 1913. During their tenure, the estate hosted luminaries such as Prime Minister Louis St. Laurent, President Franklin D. Roosevelt, and King George VI and Queen Elizabeth.

Architecturally, Greencroft is a masterful fusion of Tudor and Gothic Revival styles with Arts and Crafts detailing, featuring oak-paneled interiors, stained-glass windows, and a distinctive portico. The original ballroom was thoughtfully transformed into a sunroom by architect Ross Lort, blending historical grandeur with modern adaptability.

In 2003, Greencroft underwent a meticulous restoration, preserving its heritage while integrating modern amenities. This revitalization earned the estate a coveted Heritage A designation and the Vancouver Heritage Award, underscoring its architectural and historical significance.

Greencroft Estate, Present Day

In 2003, Greencroft Estate underwent a meticulous restoration and refurbishment, carefully preserving its architectural integrity while integrating modern amenities. This revitalization earned the property a prestigious Heritage A designation as well as the Vancouver Heritage Award, recognizing both its historical and architectural significance as well as the excellence of its restoration.

During this restoration, the estate was stratified into a side-by-side duplex, and two additional homes were built on the property, creating a total of three dwellings across four independent legal titles on the expansive 1.1 acre corner lot in First Shaughnessy.

From the outside, 3838 Cypress Street retains the commanding presence of a grand single-family estate. Inside, however, it offers two distinct units, each with its own legal title, designed with multiple points of optional internal connectivity. This thoughtful configuration allows the property to function either as independent residences or as a fully integrated estate, providing unparalleled flexibility for homeowners or investors seeking a historic estate with modern functionality.

The estate today seamlessly blends heritage grandeur, contemporary updates, and flexible living, making it one of Vancouver’s most unique and compelling offerings.

Offered at:

$7,980,000

Living Area:

BC Assessment (2025): Title:

Bedrooms / Bathrooms: Strata Fees: Additional Features:

Private Parking: 6,565 sq.ft. 6 5 Bed / 7 Bath

$0.00

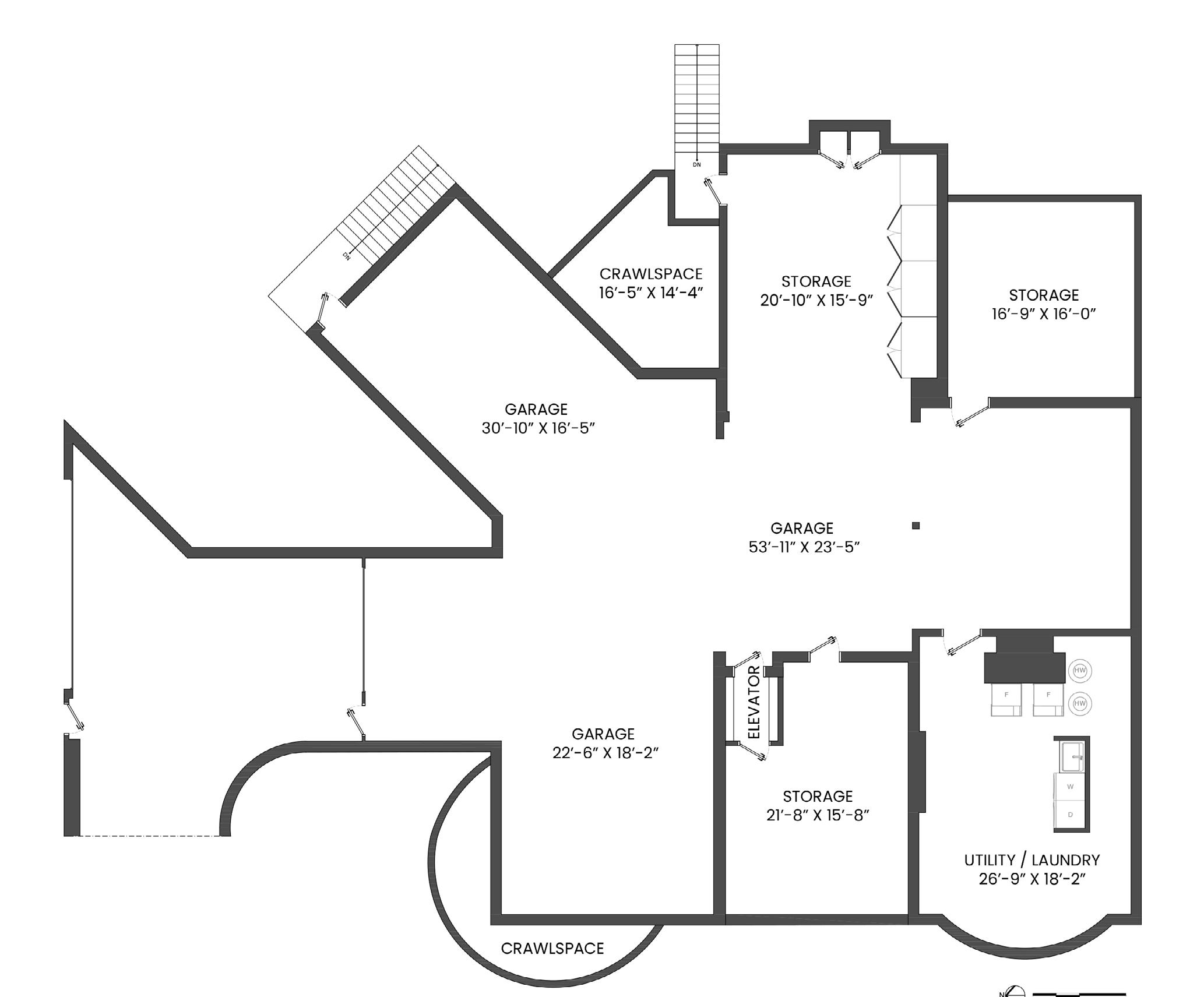
Elevator, Underground Parkade

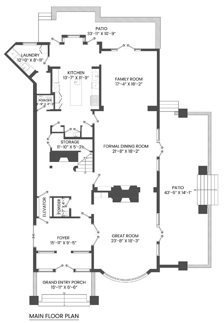
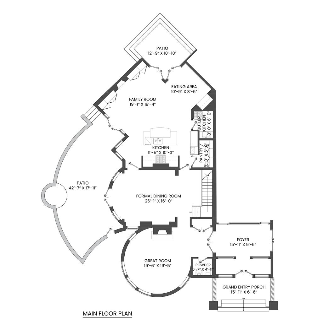
Main Floor: 2,495 sqft

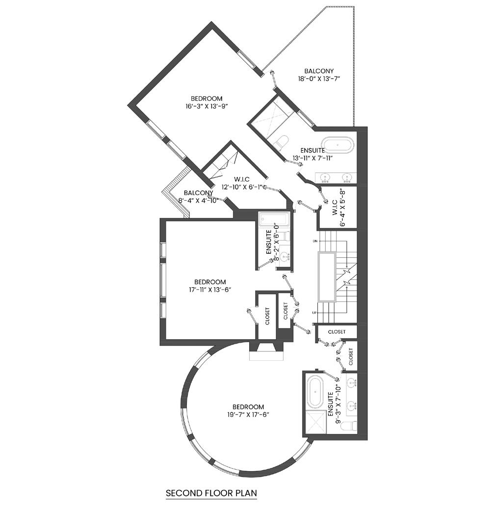
Second Floor: 2,107 sqft

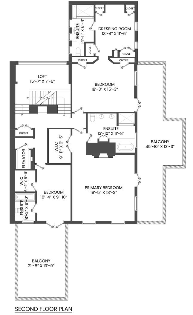
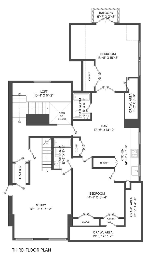
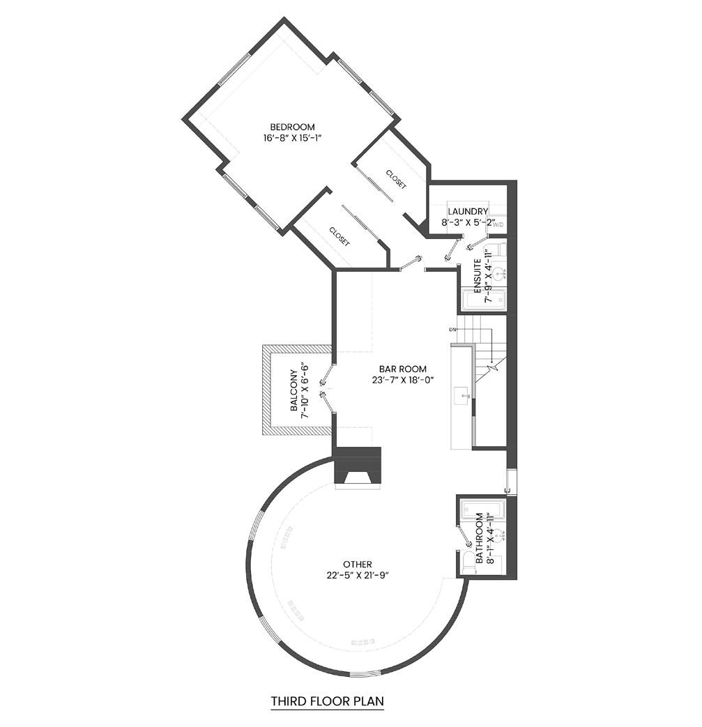
Third Floor: 1,624 sqft

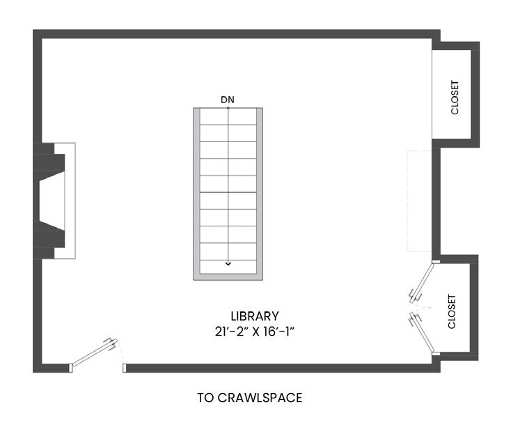
Fourth Floor: 339 sqft

TOTAL LIVING SPACE: 6,565 sqft

ADDITIONAL SPACE

Balcony: 741 sqft

Patio: 868 sqft

Crawl Space: 1,091 sqft

Storage: 439 sqft

Porch: 157 sqft

Utility/Laundry: 523 sqft

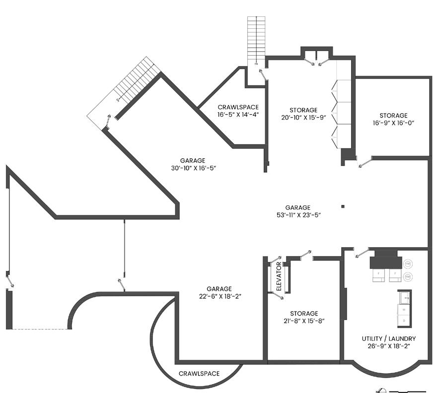
Garage: 2,883 sqft

Main Floor: 2,089 sqft

Second Floor: 1,656 sqft

Third Floor: 1,214 sqft

TOTAL LIVING SPACE: 4,959 sqft

ADDITIONAL SPACE

Balcony: 218 sqft

Patio: 688 sqft

Crawl Space: 898 sqft

Storage: 439 sqft

Porch: 157 sqft

Utility/Laundry: 523 sqft

Garage: 1,441 sqft

Main Floor: 2,089 sqft

ADDITIONAL SPACE

Porch: 157 sqft

Patio: 1,214 sqft

Second Floor: 1,656 sqft

ADDITIONAL SPACE

218 sqft

Balcony:

Third Floor: 1,214 sqft

ADDITIONAL SPACE

Balcony: 74 sqft

Fourth Floor: 339 sqft

Garage: 2,883 sqft

Utility/Laundry: 523 sqft

Storage: 439 sqft

Crawl Space: 898 sqft

TOTAL UNDERGROUND SPACE: 4,743 sqft

Turn static files into dynamic content formats.

Create a flipbook
Issuu converts static files into: digital portfolios, online yearbooks, online catalogs, digital photo albums and more. Sign up and create your flipbook.
Lindsey Vermette and Michael Miller Present: 3838 Cypress Street by evvancouver - Issuu