Chateau Zareta

Page 1

CHATEAU ZARETA

H O T E L R E S T A U R A U N T C I N E M A

TABLE OF CONTENTS

Concept History Sustainability Strategies

Inspiration

Site

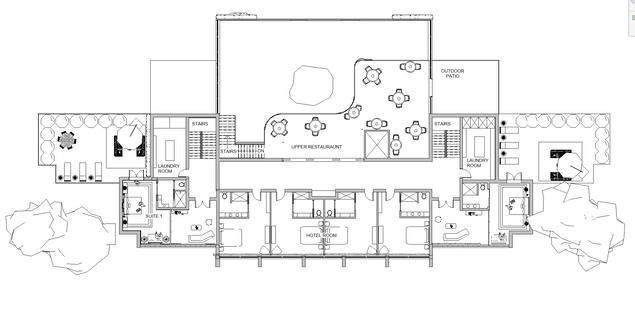
Floorplan 1

Key Spaces (5 of 6)

Floorplan 2

Key Space (6 of 6) Section Symbolism

Detailed Drawings Conclusion

Z

A luxury boutique hotel, sophisticated restaurant, upscale cinema, and private polo

Pan

Pan Zareta has won 76 races throughout her career

Pan Zareta won all three of her starts at Oaklawn in 1916

Concept
134 Chateau Zareta Rugg Street, Hot Springs, AR. bar. Known as “Queen of the Turf” Zareta is the most famous female race horse to race at Oaklawn in Hot Springs, AR.

HISTORY

Oaklawn Racing Casino Resort, located in beautiful Hot Springs, Arkansas, has a storied history as one of the premier Thoroughbred racetracks in the country since 1904.

A $100 million expansion completed in 2021 introduced a whole new level of luxury.

Oaklawn is a world-class tourist destination where you can stay, play and get away

Races typically bring around 70,000 in Oaklawn has single handedly created a drastic increase in tourism within Hot Springs Arkansas.

Sustainibility STRategies

Install energy-efficient lighting, HVAC systems

Utilize smart technology for climate control, lighting

Implement water-saving fixtures

Prioritize locally sourced ingredients

Support local economy

Design seasonal menu

Invest in energy-efficient kitchen appliances

Install LED lighting in auditoriums, common areas

Reduce energy consumption, maintenance costs

Implement digital ticketing, mobile apps

Offer organic, local, fair-trade beverages

Including wines, beers, spirits Serve drinks on tap to minimize waste

Avoid plastic straws, stirrers

inspiration IMAGES

Hotel Restaurant / Cafe

inspiration Images

Polo Bar Cinema
Site
SpartanPl Grand Ave O r a n g e S t
RuggSt

OUTDOOR RESTAURANT

STAIR STAIR STAIR
BATHROOM RECEPTION RECEPTION
RESTAURANT BATHROOM
POLO
BAR
KITCHEN LOUNGE
BATHROOM
LOUNGE CANDY & CAVIAR BAR CINEMA CINEMA
ELEVATOR

the “bit” restaurant

1/16" = 1'0"

The bit is an item of a horse's tack. It usually refers to the assembly of components that contacts and controls the horse's mouth, and includes the shanks, rings, cheekpads and mullen.

“THE BIT” GARDEN

1/16" = 1'0"

the old rosebud lounge

the polo bar

1/16" = 1'0"

THE CINEMA

1/16" = 1'0"
SUITE 1 SUITE 2
PRIVATE PATIO 1
PRIVATE
PATIO 2
LAUNDRY
HOTEL 1 HOTEL 2 HOTEL 3 HOTEL 4
LAUNDRY RESTAURANT RESTAURANT PATIO ELEVATOR

THE SUITE

section

MID CENTURY MODERN TRADITIONAL

DETAILED DRAWINGs

Hidden Door

Booth Seating

Picture Light Sconce Featured Throughout

Old Rosebud Lounge Glass Shelving Polo Bar “The Bit” Restaurant Bar Counter Polo Bar
LUMONYX HC LAMINAT EBASE BARCOUNTERTOP ACCESS DOORFOR LIGHTING VERTICALHC SUPPORTAT PANELJOINTS BARFRAMING WOODTRIM LUMONYX HC BACKLIT
Avoka Flush Mount Polo Bar

Experience Tradition Luxury Visitors

Exuding luxury at every turn, providing guests with an unparalleled experience of indulgence and refinement. Every moment is crafted to offer a unique and unforgettable experience, blending luxury with intimacy.

Every corner reflects tales of the past, inviting visitors to embark on a journey through time while experiencing luxury and exclusivity at its finest.

Steeped in history and tradition, our chateau pays homage to the past of Hot Springs, preserving its cultural heritage while offering a modern interpretation of classic elegance.

Conclusion

Z Z Z

CHATEAU ZARETA

H O T E L R E S T A U R A U N T C I N E M A

Turn static files into dynamic content formats.

Create a flipbook
Issuu converts static files into: digital portfolios, online yearbooks, online catalogs, digital photo albums and more. Sign up and create your flipbook.