TCC Arquitetura e Urbanismo - Centro de EducAÇÃO Ambiental

Page 1

PROJETO DE PESQUISA

em uma

estratégica para mudanças na sociedade.Figura 1 e 2 – Educação Ambiental Fonte: Google Imagens

AMET

O tema Centro de Educação Ambiental, é um órgão público com grandes relevâncias para a sociedade, visto que ele visa o aumento de “(...) ações e práticas educativas voltadas a sensibilização da coletividade sobre as questões ambientais e a sua organização e participação na defesa da qualidade do meio ambiente.” (BRASÍLIA, 1999). lembrar que um Centro de Educação Ambiental mais do que um espaço físico com oferecimento de atividades de educação constituindo-se ferramenta

é

É importante

ambiental,

CSUJTIFIATIVA A degradação ambiental no Brasil é uma realidade que vem se tornando motivo de grandes preocupações, por acabar ocasionando diversos problemas no que tange a qualidade de vida de todos os seres Principaisvivos.causas da degradação: • Desmatamento; • Queimadas; • Poluição.Figura 3 – Autoridades do Pará fiscalizam área desmatada na Amazônia em Pacajá, a 620 km de Belém, em 22 de setembro de 2021 Foto: Evaristo Sá/AFP

CSUJTIFIATIVA De acordo com publicação feita pelo site g1 no dia 12/11/2021, dados apontam que Amazônia Legal está sob alerta, pois teve uma área de 877 km² desmatada, uma alta de 5% em relação a 2020. Os números foram divulgados pelo Instituto de Pesquisas Espaciais (Inpe).10008006004002000 536 440 526 555 750 836 877 2015 2016 2017 2018 2019 2020 2021 E m k m ² Figura 4 – Áreas sob alerta de desmatamento na Amazônia Legal em outubro Fonte:(2015-21)Inep (Deter)

Bem como busca formar cidadãos ativos e conscientes quanto à necessidade de construção de uma sociedade pautada pelo conceito de desenvolvimento sustentável, contribuindo para a melhoria do meio ambiente e das condições de vida.

O tema abordado tem como objetivo a sensibilização para a preservação, conservação e recuperação dos recursos naturais, no sentido de despertar a consciência da população para os graves problemas relacionados à degradação do Meio Ambiente e má utilização dos recursos naturais.

OOBJETIV

Figura 5 – Educação Ambiental Fonte: Google Imagens

Aos finais de semana e feriados a unidade é aberta ao público.

Figura 5 – Educação Ambiental nas Escolas Fonte: Google Imagens

OOBJETIV

O Centro de Educação Ambiental tem como público alvo de segunda a sexta as instituições de ensino da região.

REFERENCIAL TEÓRICO

ÃÇCUDEAOAMBIENTAL SONBRAIL • 1973 – Início o processo de institucionalização da Educação Ambiental no governo federal brasileiro, com a criação da Secretaria Especial do Meio Ambiente (Sema). • 1981 – Secretaria Especial do Meio Ambiente (Sema) e a Política Nacional de Meio Ambiente (PNMA) estabeleceu no âmbito legislativo, a necessidade de inclusão da Educação Ambiental em todos os níveis de ensino. • 1994 – Foi criado de maneira definitiva, pela Presidência da República, o Programa Nacional de Educação Ambiental (PRONEA). Figura 5 – Educação Ambiental no Fonte:BrasilGoogle Imagens

ÃÇCUDEAOAMBIENTALÃSMEOPAULO Segundo a Secretaria do Meio Ambiente (2011) do estado de São Paulo, a execução da política ambiental é realizada no âmbito do Sistema Estadual de Administração da Qualidade Ambiental, Proteção, Controle e Desenvolvimento do Meio Ambiente e Uso Adequado dos Recursos Naturais de São Paulo (SEAQUA). A Secretaria do Meio Ambiente (SMA) é o órgão central do SEAQUA, que tem como finalidade, (...) planejar, coordenar, propor normas e supervisionar a Política Estadual do Meio Ambiente. Figura 7 – Ações de Educação Ambiental na Rede Municipal de Ensino Fonte: Cidade de São Paulo Educação / Secretaria Municipal de Educação

LOCALIZAÇÃO

OOOLTEEZNEAMENT Figura 8 – Terreno Fonte: Google Maps Localização: Rua Ferdinando Bertoni Área do Projeto: 1.408m² O Lote está situado na Vila Ré, zona leste de São Paulo, em uma esquina entre a Rua Ferdinando Bertoni, Rua Impatá e Rua Itinguçú. Seu zoneamento é classificado como Zona Central (ZC), o que da a possibilidade para a implementação de um Centro de Educação Ambiental no local.

A principal motivação para a realização de um projeto dessa natureza nesse local se deu pela falta de praças, jardins, arvores e até mesmo por não haver um equipamento desse universo Bairro.

COOOCSELHADLAL

Figura 12 – Mapeamento da Cobertura de Vegetação 2020 Fonte: GeoSampa

COOOCSELHADLAL

Com base na listagem de CEAs/SP, feito pela Rede CEAs, foi possível realizar um levantamento mais aprofundado sobre os Centros de Educação Ambiental na Capital de São Paulo. Sendo assim, 2 CEAs na zona central, 10 CEAs na zona sul, 2 CEAs na zona oeste, 2 CEAs na zona norte e 2 CEAs na zona leste.

CEAs zona leste: • Parque Ecológico do Tietê • Parque do Carmo • Localização de onde será desenvolvido o projeto Figura 13 – Mapa da Zona Leste de São Paulo Fonte: Zona Leste de SP

ANÁLISE URBANA

0 100 200 300 400 500 1000

OGABARIT

O gabarito de altura da área é relativamente baixo, visto que a massa de edificações por sua maioria é de térreo mais um pavimento.

0 100 200 300 400 500 1000

ÁSSITEMAVIRIO

No entorno que está sendo analisado, há a presença das três caracterizações viárias. E onde está localizado o lote podemos observar a presença de duas delas, sendo a Rua Ferdinando Bertoni e Rua Impatá vias locais e Rua Itinguçú uma via coletora

Um dos pontos relevantes analisado são as instituições de ensino da região, uma vez que o foco do Centro de Educação Ambiental, esta voltado para crianças.

SOQEUIPAMENT SONABRU

0 100 200 300 400 500 1000

0 100 200 300 400 500 1000

ÁREASVERDES

É possível notar que uma grande carência de áreas verdes como praças e jardins na região escolhida (bairro Vila Ré).

Ao observar o bairro ao lado (Cidade Patriarca), o número de áreas verdes é superior ao bairro Vila Ré.

ÃÇCOOSUEUPAODO OOSL

Embora o entorno predominantementesejade uso residencial, por ele estar localizado de esquina, onde uma de suas ruas é de predominância comercial isso possibilita o edifício ter uma boa visualização, pois é relevante a quantidade de pessoas que passam por essa rua.

0 100 200 300 400 500 1000

ANÁLISE ENTORNO IMEDIATO

SOSSCAE • O lote escolhi esta situado a 650m da estação de metrô Patriarca – Vila Ré. • Tem como via coletora a Rua Itinguçú, que ajuda na visibilidade do terreno escolhido. • O acesso ao lote é feito pela Rua Ferdinando Bertoni. Acesso pedestre Acesso TerrenoPontoEstacionamentoDireçãoveículosdasviasdeônibus

OLTE

ÃÇORIENTAOSOLAR

O ar aquecido sobe e aquece a estufa

O ar quente sobe e escapa pelas aberturas do telhado

Ondas aquecemcurtasosolo

Ondas curtas do sol

ÃÇORIENTAOSOLAR

ESTUDO DE CASO

ÃÇOSETRIZAO DuPONTEducationEnvironmentalCenter Arquitetos: GWWO Architects Área: 13900m² Ano: 2009 País: Estados Unidos

ÃÇOSETRIZAO Planta térreo Planta 1º andar Planta 3º andarPlanta 2º andar Circulação Vertical – 233m² Circulação Horizontal – 272m² Carregamento – 33m² Depósito – 57m² I.S. Feminino – 20m² I.S. Masculino – 13m² I.S. PMR – 12m² DML – 13m² Escritório – 65m² Sala de Aula – 65m² Sala de Exposições – 44m² Sala Multuso – 104m² Sala Mecânica – 36m² Copa – 15m² Acesso Social Acesso Serviço

Laboratório Glass House Arquitetos: GWWO Architects Área: 13900m² Ano: 2009 País: Estados Unidos OSETRUTURAETIPDE ÃÇORPDUOFAZENDAVERTIAL

SETRUTURA 2 , 4 2 5 2 , 5 0 2 , 5 0 2 , 5 0 2 , 5 0 2 , 5 0 2 , 4 2 5 4,8754,875 0,81 0,83 0,83 0,83 0,83 0,83 0,83 0,83 0,83 0,83 0,83 0,83 0,83 0,83 0,83 0,83 0,83 0,83 0,83 0,83 0,81 Planta térreo Planta 1º andar Cobertura V2 V1 Vista 1 Vista 2 Estrutura de aço galvanizado, vidro e chapas de policarbonato.

ÃÇOOPITDEPRDUO CITREVADNEZAFAL gerando segurança alimentar, renda e saúde.

CentroTinkhamUniversitárioVeale Arquitetos: Perkins+Will Área: 8268m² Ano: 2014 País: Estados Unidos CSALPTIIDADE

O projeto tem como característicasprincipais os tetos verdes e as paredes de vidro abertas.deixandoabaixo,asvistas CSALPTIIDADE

PROJETO ARQUITETÔNICO

SSCGORPRAMADENEEIDADE SETOR AMBIENTES QUANT. ÁREA TOTAL (m²) PÚBLICO Recepção 1 29,26 m² Sala De Espera 1 57,78 m² Salão de mesas 1 86 m² Banheiro PNE 4 21,05 m² Banheiro Feminino 4 58,60 m² Banheiro Masculino 4 58,60 m² Refeitório 1 113,14 m² Exposições / Multiuso 1 197,27 m² SERVIÇOS Estacionamento Cadeirante 1 33,12 m² Estacionamento Ônibus Escolar 1 73,60 m² Estacionamento Carga e Descarga 1 19,80 m² Almoxarifado 1 7,40 m² Circulação Vertical 4 163,86 m² Cafeteria 1 18,54 m²

SSCGORPRAMADENEEIDADE EDUCACIONAL Sala De Aula 2 26,38 m² Sala 1: Objetivos Do Desenvolvimento Sustentável 1 15,80 m² Sala 2: Unidades De Conservação 1 15,80 m² Sala 3: Gamificação 1 15,80 m² Sala 4: Águas Cristalinas 1 15,80 m² Sala 5: Resíduos 1 15,80 m² Estufa 1 105 m² SETOR AMBIENTES QUANT. ÁREA TOTAL (m²) ADM Sala Professores 1 15,91 m² Escritório 3 63,72 m² Sala De Reunião 1 40 m² Copa + Espaço Descanso Func. 1 32,48 m² Índice do Projeto: CA: 1.408m² TO: 1.655,80m² Permeabilidade: 1.090m²

TÉRREO 1° ANDAR SalaRecepçãodeesperaBanheiro PNE BanheiroBanheiroFem.Masc. Salãomesasde GaragemCafeteria Carga Almoxarifado DepósitoDML Circ. Vertical Sala ProfessoresSala de Aula Sala 4 Sala 5 EstufaCirc. Vertical Banheiro PMR Banheiro Fem. BanheiroMasc. Sala 3 Sala 2 Sala 1 Sala de Aula Acesso pedestres Rua Ferdinando Bertoni GaragemRefeitórioÔnibusGaragemPNE Acesso veículos Rua Ferdinando Bertoni Garagem CargaGOXULFRAMA

EscritórioExposições Copa / Descanso Sala Reunião Banheiro PNE Banheiro Fem. ExposiçõesBanheiroMasc.Circ.DepósitoVerticalCirc.Vertical Depósito Banheiro PNE Banheiro Fem. BanheiroMasc. EscritórioEscritório 2° ANDAR 3° ANDAR GOXULFRAMA

SETRUTURA O sistema estrutural com viga fachadasprópriasgrandespossibilitaVierendeelvencervãosnasparedesedoedifício.

ÔQODITRAPARUITETNICO

O projeto parte da ideia de manter a árvore de Ipê Roxo existente no terreno, fazendo assim sua integração com o Centro de

projetovida,noVisandoAmbiental.Educaçãoabuscademelhoriasquetangeaqualidadedeseráincorporadoaoumaestufa.

ÃÇATNALPMIOCOBERTURA RuaItinguçú RuaFerdinandoBertoni RuaImpatá

ÃÇOCRTEIMPLANTAO 0 2 4 6 14

ÉÃÇATNALPMIOTRREO RuaItinguçú RuaFerdinandoBertoni RuaImpatá Acesso pedestre Acesso Direçãoveículosdasvias 1 2 3 3.2.1.GaragemCadeiranteÔnibusescolarCargaedescargaÁrvore existente Ponto de ônibus

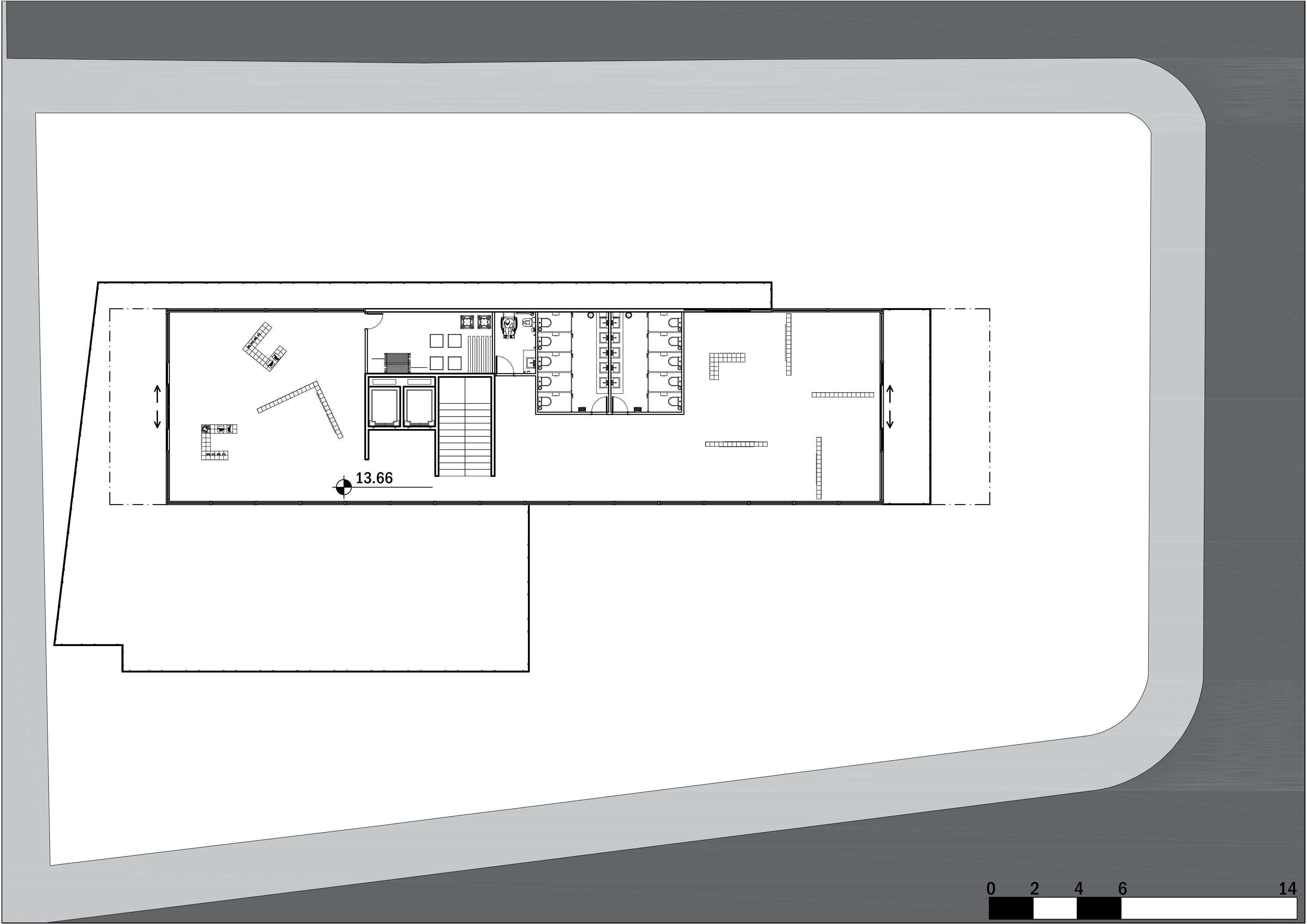
ÉÃÇAILPMAOTRREO Rua Ferdinando BertoniRua Itinguçú áRuaImpat1 2 4 3 5 6 7 8 10 9 11 12 13 14 1. Refeitório 2. Recepção 3. Almoxarifado 4. Sala de espera 5. Circulação vertical 6. Banheiro PMR 7. Banheiro fem. 8. Banheiro masc. 9. Jardim de inverno 10. Salão de mesas 11. Cafeteria 12. DML 13. Depósito 14. Carga e Descarga Acesso Pedestre Acesso Veículos

º1ANDAR Rua Ferdinando BertoniRua Itinguçú áRuaImpat1 4 2 2 3 6 5 7 8 9 10 11 12 13 12 12 12 1. Circulação vertical 2. Sala de aula 3. Sala 1: Objetivos do Desenvolvimento Sustentável 4. Sala 2: Unidades de 6.5.ConservaçãoSala3:GamificaçãoSala4:ÁguasCristalinas 7. Sala 5: Resíduos 8. Sala professores 9. Banheiro PMR 10. Banheiro fem. 11. Banheiro masc. 12. Varanda 13. Estufa

º2ANDAR Rua Ferdinando BertoniRua Itinguçú áRuaImpat1 1. Circulação vertical 2. Escritório 3. Sala de reunião 4. Depósito 5. Banheiro PMR 6. Banheiro fem. 7. Banheiro masc. 8. Copa + Espaço Descanso Func. 9. Varanda 2 4 5 6 7 9 2 2 3 8 9

º3ANDAR Rua Ferdinando BertoniRua Itinguçú áRuaImpat1 1. Circulação vertical 2. Exposições / 3.MultiusoDepósito 4. Banheiro PMR 5. Banheiro fem. 6. Banheiro masc. 7. Varanda 3 4 5 6 7 2 2 7

OCRTEAA 4.62 9.14 13.66 0 2 4 6 14

OCRTEBB 0 2 4 6 14 4.62 9.14 13.66

ÃÇAVELEO 0 2 4 6 14 LL LL

ÃÇAVELEO 0 2 4 6 14

ÃÇAVELEO 0 2 4 6 14

ÃÇAVELEO 0 2 4 6 14

AMI

Fachada Norte

Fachada Sul

Sala 2: Unidades De Conservação

3SGAMIEND

Sala 1: Objetivos Do Desenvolvimento Sustentável

3SGAMIEND Sala 3: Gamificação Sala 4: Águas Cristalinas

3SGAMIEND

Sala 5: Resíduos

Turn static files into dynamic content formats.

Create a flipbook
Issuu converts static files into: digital portfolios, online yearbooks, online catalogs, digital photo albums and more. Sign up and create your flipbook.