4th Year Portfolio

Page 1

Selected Works 2022
Portfolio
Evan Sanders 2020-2022

Detroit, MI

Welcome, may I introduce myself?

My name is Evan Sanders. I am a Fourth year architecture student at the University of Detroit Mercy. I will be finishing my Bachelor’s Degree at Detroit Mercy in Spring 2023. Something interesting about me is that favorite architects are Sou Fujimoto, Kengo Kuma, and Frank Llyod Wright. I am a big fan of architecture from Japan due to it’s minimalist shape, but the forms also do showcase the attention to details while having a effective and effiecient form.

I am glad to share with you my selected works.

At-Gleta Headquarters One Small Step for Zoning Change Next Four Artist Retreat Center Diamond in the Rough Museum CONTENTS 2022 2022 2020 2021 4 16 26 32 42 mi (1.4 mi) (9.4 mi) (42 mi) (0.3 mi) 9.4mi
Distance from heart of Downtown Detroit

1.4 mi

At-Gleta Headquarters

4100 | Integrated Design

Studio

Fall 2022 | Semester 7

Professor: James Leach & Kris Nelson

Category: Building Construction

In Collaboration with: Eduardo Sanchez & Sebastian Rodriguez

The objective of this project is to design a low-carbon and energy-waste building that caters to both the users, and the building needs to keep a long-term sustainable, environmentally friendly structure. We plan to have a spacious and eco-friendly sustainable building that requires less mechanical systems usage than average office spaces. The design will incorporate flexible work environments that will allow all types of work methods to provide a better level of human comfort. While also providing outdoor gathering spaces to capture the prominent views of downtown Detroit and Canada, but also provide the occupants with other work environments. Lastly, to design under GLETA guidelines to develop a safe engineered timber structure within the constraints of our site.

1.4 mi from heart of Downtown Detroit
4
Perspective from SW
5
Render by: Eduardo Sanchez
Extrude
Creating an Interior Atrium space to allow for sunlight in the back half of the building
01
Subtracting the Exterior envelope to create exterior gathering space, maxmize daylighting & space for prominent views
Mass 00 Engage 03 Subtract 02
Engaging the public by putting our retail, cafe shop, & along the Dequindre Cut (major walkway) to draw people into the building.
Development 6 | At-Gleta World Heatquarters
Maximize the building envelope on the site (200’ by 150’)
Massing

Respond 04

Respond to climate strategy by properly shading the facade, and optimizing solar gain within the building. Respond to flooding, around site, by lowering the Atwater St entrance by 5ft, to collect more rainwater.

7 Fall 2022 | Year IV Semester I |

Facade Strategy

32.99 EUI 31.30 EUI 44.23 EUI 65% DAYLIGHTING 64% DAYLIGHTING 65% DAYLIGHTING
Massing 00 Atrium 01
02
Centralized Atrium
Maxmize Daylighting on North + Simple Facade Strategy
Final Facade
Devices
VAV Heating + Cooling System
Building Envelope
All Glass Facade
Shading Devices Cove.tool Analysis 8 | At-Gleta World Heatquarters
+
+
+
+Shading
+
+
+
-
Massing + Graphics by: Evan Sanders
-13.04
63%
03 + Solar
+ Solar
+
Measureable Performance 9 Fall 2022 | Year IV Semester I |
Cove.tool info: By Sebastian Rodriguez
EUI
DAYLIGHTING Passive Systems
Panels
Water Heaters
Radiant Heating + Cooling System
Entrance
10 | At-Gleta World Heatquarters
Gallery Space
Formal workspace Workshop
11 Fall 2022 | Year IV Semester I |
Renderings by: Eduardo Sanchez + Sebastian Rodriguez
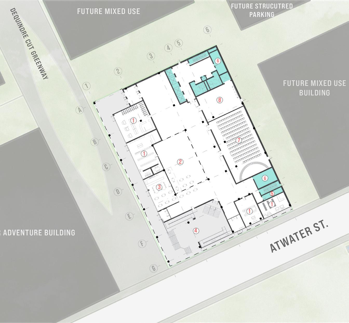
Key 1 Retail 2 Cafe 3 Atrium 4 Outdoor Gallery 5 6 Data Closet 7 Mech Room 8 Auditorium Central Services Level 1 Floor Plan W-E Section w/ Passive West Elevation 12 | At-Gleta World Heatquarters
Elevations + Sections by: Eduardo Sanchez
Level 5 Floor Plan
Floor Plans by: Evan Sanders South Elevation
13 Fall 2022 | Year IV Semester I |
N-S Section w/ Passive
Section Cut
Enlarged
14 | At-Gleta World Heatquarters
Section by: Evan Sanders
Upclose Physical Model Physical Model Scale 1/2” : 1’ Scale 1/2” : 1’
15 Fall 2022 | Year IV Semester I |
Model by: Whole Team

9.4mi

One Small Step for Zoning Changes

2200 | Designing the 21st Century Neighborhood Winter 2022 | Semester 6

Professor: Virginia Stanard

Category: Urban Planning

The Fitzgerald Neighborhood in Detroit is lacking in pretty much all essential resources like education, lack of businesses, lack of reliable transportation, lack of walkability, and lack of good food sources, etc.

This project tackles these issues from a zoning perspective. The zoning within the neighborhood follows the 20th-century neighborhood agenda with the business being located on the main streets, with the housing being located behind it. The area that was selected only has four amenities, with none being food sources. There is also a decent amount of abandoned buildings in the area. After doing this initial research it was time to develop a master plan.

9.4 mi from heart of Downtown Detroit
16
17
Bird’s eye view of block center
Current
Current
Current Abandoned Buildings Current Zoning Map Business Buildings in the area Current Layout 07 Mutli-Family Houses in the area 02 Single-Family Houses in the area 63 Buildings abandoned in the area 14 18 | One Small Step for Zoning Reform
Housing
Businesses

Response to Current Zoning

Adding SD1 & SD2 allows us to provide the area with the right essentials the community desperately needs. Adding SD1 encourages small-scale uses such as residential, local businesses, and offices for a neighborhood. SD2 provides an intensive mixture of uses such as residential, local businesses, & offices, but also promotes pedestrian activity.

Proposed Layout 19 Winter 2022 | Year III Semester II |

Empahsis

On walkability and experiences that connect you within the community

Design Principle

Proritize

Voiced community needs

Create

A sustainable plan that allows for flexibilty allowing continuous growth of the

The idea behind breaking down the zones comes down to the idea of Work-Live-Play. Every Zone should intail some form of the following ideas below. This is so we can create a healthy & sustainable environment for all ages.

Work

The idea behind Work was to create a diverse number of businesses to create a selfsustaining community. By creating these diverse businesses, it allowed us to bring in different fresh food options, and create spaces for local businesses to grow.

Work Diverse Businesses Cafes Temporary Local Businesses Local Venders Fresh Local Food Options Other Retail Work from Home Optiona Pods Stablize the economy from within Diverse Housing Options
Sustainable Living Options
Townhomes
Team Deisgn Goals 20 | One Small Step for Zoning Reform
My Design Principles My Design Principles Results

Transform

Empty lots into walkable/flexible spacs for the community

Develop

A plan for various building typologies and uses (promotion of microeconomy.)

Promote

Community development and redevelopment from within

Live

The idea behind live was to create diversity of housing typology within the neighborhood itself, as about 80% of the housing within the neighborhood is single family homes, with fences around the homes. Live would open up backyards and open engages with your neighbors

Play

The idea behind play was to make each district more about doing something for yourself that’s in the moment. Most everything we do is for other people. Play is a form of meditation in that it helps you focus on where you’re at in the moment and reset your busy, perpetually exhausted adult mind. Which makes it easier to go back to something like work.

Play Diverse Public Spaces Playcenters Gardens Pods Big Community Gathering Spaces Shared Spaces Community Block Courtyards Improving Public Safety Improve natural and built environement Affordable Housing Live-Work Apartments Co-Living Apartments
Live 21 Winter 2022 | Year III Semester II |

Co-Living Community

Focused on...

• Affordablity

• Convinence

• Community

Walkable Community

Focused on...

• Affordablity

• Accessablity

• Convience

Brilliant Detroit Community

Focused on...

• Affordablity

• Accessablity

• Sustainablity

Residential Business
22 | One Small Step for Zoning Reform
Previous Developments

Axon of Proposed Site

Plan of Proposed Site

By allowing zoning changes within this neighborhood, this area could be modernized into a 21st-century neighborhood. That is fully equipped with a diversity of building typologies, a diversity of businesses, and a diversity of public spaces. To provide the neighborhood with the essential care that is required for 21st-century residents to live comfortably. Even just making small changes to the current zoning layout can make big changes to the neighborhood.

Businesses
Legend
Legend Offices Live-Work Live-Work Co-op Townhomes Residential Duplex Flex Spaces Garden Dog Park 1 2 3 4 5 6 7 8 9 9 2 8 7 7 1 4 2 6 2 4 7 5 1 3 3 23 Winter 2022 | Year III Semester II |
Mixed-Use Residential Flex Spaces Converted Garages
24 | One Small Step for Zoning Reform
25 Winter 2022 | Year III Semester II |
Close up view of block center

42 mi

Next Four Artist Retreat Center

1200 | Architectural Design II

Winter 2019 | Semester 2

Professor: Erika Lindsay

Category: Building Construction Location: Barton Nature Area, Ann Arbor, MI

Prompt: In the final project of my freshman year, we had to design a retreat for four unrelated artists. The fellowship would be three months long, during spring, summer, and fall.

The retreat center is located in the Barton Area Nature Site, Ann Arbor, Michigan. The site is relatively closed off, and there is a path that goes around the site, but the site was not very noticeable at first. In this project, the main focus is on sustainability, usage of natural materials, and inclusiveness of the community. The design started by separating the loud area (Wood/Tool shop), and the quiet area (resting, living, exhibition space), to allow for better focus and more productivity from within quiet area. The retreat is only occupied during spring, summer, and fall, so solar energy would be available for most of the time the house is occupied.

26
42 mi from heart of Downtown Detroit
27
Bird’s eye view of Retreat Center
Upclose Site Plan 28 | Next Four Artist Retreat Center
East Elevation West Elevation Section Second Level Living Space 29 Winter 2020 | Year I Semester II |

Main Entrance to Building

Interior Gallery Space

30 | Next Four Artist Retreat Center
Formal Workspace Workshop 31 Winter 2020 | Year I Semester II |

0.3mi

Diamond in the Rough Museum

1400 | Architectural Design IV Winter 2020 | Semester 4

Professor: Enrique Ledesma

Category: Building Construction

The objective of this project is to design a museum that caters to both the users and engages the public, to create a unique experience. The plan is to design a building that redefines the set grid of buildings around it and can blend in with its surrounding context. The design incorporates a glass structure cut through the center of the building that will allow users inside to view Capitol Park Uniquely and capture the prominent views of downtown Detroit. The idea for what was inside the museum came from the form. The glass structure symbolizes pulling away dirt and finding something in the ground. So, the Museum’s theme will be fossils, an ode to the first governor of Michigan who was buried under his statue in Capitol Park. The plan for this museum is for it to contain Fossils. It will incorporate different kinds of fossils from history, including but not limited to human fossils, animal fossils, dinosaur fossils, etc.

0.3 mi from heart of Downtown Detroit
32
Perspective from SW 33
Split the building to allow for sunlight in the back half of the building
Split
01
Create a glass center that cuts through the site to maxmize daylighting & create a frame for prominent views to Capitol Park
00 Activate 03 Views 02
Activate the street by extruding out from the building around it, to stand out & putting the retail on the ground level
Mass
34 | Diamond in the Rough
Maximize the building envelope on the site (100’ by 60’)

Respond 04

To Further stand out from the building around it, create a unique glass pattern to create different sunlighting patterns into the building, also to provide a unique experience of vertical transportation that provides views to Capitol Park.

35 Winter 2021 | Year II Semester II |
Reception
Shop
Storage Security Shelby St Alleyway 1st Level Floor Plan 36 | Diamond in the Rough
Gift
Bathroom Bathroom
2nd Floor 6th floor 7th Floor Staff Space Permanent Gallery Space Permanent Gallery Space Section Floor Plans 37 Winter 2021 | Year II Semester II |
Changing Gallery
38 | Diamond in the Rough
Main Lobby
Permanent Gallery 39 Winter 2021 | Year II Semester II |
Perspective 40 | Diamond in the Rough

Elevation & Wall Details

Cladding Type S Mortar Joint Stone Setting Bed Scratch Coat Air Barrier Water Resistant Barrier Wood Sheathing Insulation Gypsum Board Wall Section Detail (Outside to Inside) Roof +100 ft Level 6 +87 ft Level 5 +75 ft Level 4 +60 ft Level 3 +45 ft Level 2 +30 ft Level 1 +20 ft Level 0 +0 ft +110 ft 41 Winter 2021 | Year II Semester II |
Stone

University of Detroit Mercy School of Architecture and Community Development 2023

Evan Sanders

Turn static files into dynamic content formats.

Create a flipbook
Issuu converts static files into: digital portfolios, online yearbooks, online catalogs, digital photo albums and more. Sign up and create your flipbook.