Madipur Hospital Design

Page 1

MADIPUR GENERAL HOSPITAL

HOSPITAL DESIGN STUDIO 2021 - 600 BEDDED HOSPITAL , NEW DELHI

ATHUL RAGHUNATH ( A/3197/2018) EJAS MUHAMMED ( A/3183/2018) EVANA SAJAN (A/3145/2018)

SITE ANALYSIS

BYLAWS

Site area - 34155 sqm

Ground coverage

45% permissible Max FAR - 3.75

2 ECS per 100 sqm

Permissible setbacks15 m (front) 12m (all other sides)

The site is located in New Delhi adjacent to Paschim Vihar. There is proper connectivity to the site and a well established modern infrastructure. The land use is predominantly residential.

The site is rectangular with service road access as well as vehicular entrance from opposite sides. Part of the land area is dedicated to residential tower and a multi level car parking facility.

STRENGTHS WEAKNESS OPPORTUNITIES THREATS

Away from main road

Multiple access to site

Plain site with no contour

Pockets of greens parks and open spaces

Religious Centres and schools (Temples, Masjid etc) adjacent to sitecreates noise pollution

Densely populated area- residential.

Hence, vulnerable to spread of disease

Secondary approach are not wide enough for vehicular movement

To integrate green space with the built environment to create a buffer from thick population.

To create an opportunity to give affordable healthcare facility

To build a relationship with existing health care system

Noise is difficult to manage

Slum areas

Stray Animals

Poor Drainage system

The context is not well maintained and the road quality is deteriorating

Connectivity

Metro Station Bus stations Roads Roads Primary Roads Secondary Roads Tertiary Roads

Land Use Commercial Residential Instituitional Greens Greens Open Areas Greens Water Bodies

DESIGN APPROACH

DESIGN UNDERSTANDING

Madipur general hospital provides an opportunity to create a new healthcare experience at an affordable scale.

Not only at a site level, but also at neighbourhood level.

VISION

To develop a flexible pandemic resilient model of hospital that can be replicated in similar Geo-climatic context.

APPROACH

Design follows spatial flexibility

Our design focus on building a hospital that is flexible enough to adapt to pandemic / Non-pandemic situations yet provide a relaxed healing environment in the thick urban context of Madipur.

A hospital design moves on from a merebuilding design restricted to its immediate context. It is an urban level intervention.

The urban level goals of this hospital is to add to affordable medicine to the common man at the same time add and not be a competition to the contextual health infrastructure. This along with site intervention and a patient centric business model adds to the holistic wellbeing of the users and context.

At a building level, the design combines aspects of combining site services, proximity and vertical services to provide maximum maximum efficiency and ease of management. Combined with the non tangible factors of creating a soothing environment that facillitates the healing process and ensures wellbeing of staff and patients alike.

CASE STUDIES

Rushford University Hospital AIIMS Bathinda

INFERENCE FROM RUSH UNIVERSITY

(Design of Double height Lobby)

INFERENCE FROM AIIMS BATHINDA

Sub- waiting areas

External shafts

Corridor widths of 3000 mm

ward system of 5 beds

INFERENCE FROM RUSH UNIVERSITY (Design of IPD Rooms)

INITIAL MODEL.

REVISED MODEL. - I

DESIGN PROCESS

A hospital requires constant reworking and many iterations throughout the resolving process. Reworking of forms and stacking.

The following images are some documentations of visualisation of our hospital design , through out its iterations and design development stages.

Starting from vision till the post production.

REVISED MODEL. - II

MODULAR APPPROACH

REVISED MODEL. - III

DIVISION

PRELIMINARY CONCEPT SKETCH
IPD TOWER
OF DEPARTMENTS BIOPHILIC DESIGN UNIQUE
BREAKING UP OF MASSES WAYFINDING DESIGN
FINAL MODEL - ENTRANCE VIEW

DESIGN UNDERSTANDING

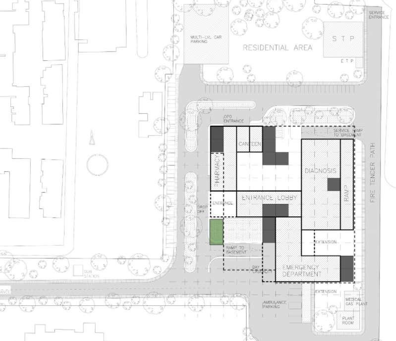
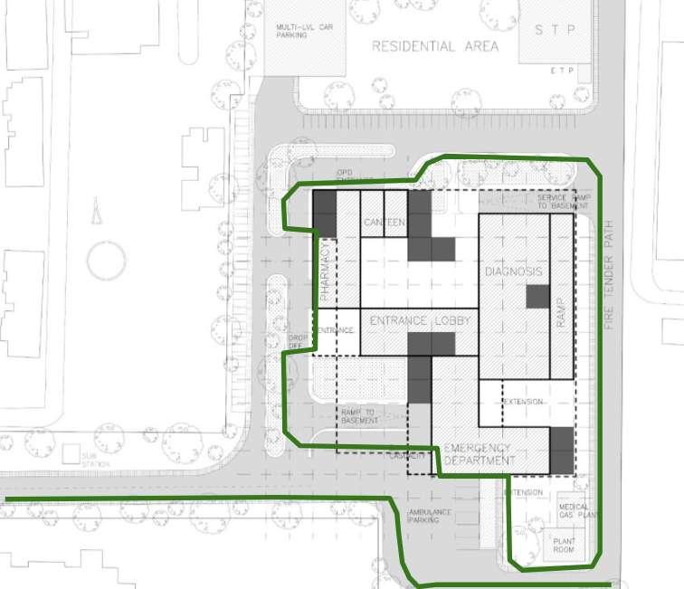
The Emergency Department makes is in the ground floor so as to provide immediate assistance to emergency cases at the earliest.

The Pharmacy is also placed in the ground floor. It has a drop in for buying medicines without entering the building for outside visitors

The critical care units are placed in proximity to the Emergency vertically and the OPDS horizontally.

A service floor is provided between the podium and the IPD Tower so as to ease the vertical service intergration.

ICU and Daycare given in the IPD tower to take care of the emergency needs of IPD Tower

Cores are provided to ease the traffic towards the IPD and towards the podium

All services are placed in the basement so a to segregate it from the visitors and patients.

staff parking and bays for services provided in first basement and visitors parking in second basement

SITE PLANNING

Achieved ground coverage : 7520 sq.m

Achieved Built Up : 58, 550 sq.m

Achieved FAR : 0.8

Multi Level Car Parking:

Ground Coverage :1700 sq,m

Built up : 49,000 sq.m

2 ECS / 100m2 - 510 ECS

The site and the typology makes use of a lot of water. Keeping in mind the water scarcity as well as the sustainibilty in mind , the design focuses on reusing and recycling the available water in site.

Calculations for all year round of the rainwater eceived to find the rainwater harvesting potential as well as the stormwater run off.

Having minimised the ground coverage we get more softscaped and green areas which allow natural percolation of water. The hardscaped , softscape and built run offs are calculated to arrive at the number of RWH pits and collection tank sizes.

SITE SERVICES

RWH PITS

UWT

STORMWATER DRAINOFF OHT

A total of 9 RWH Pits are recommended.

The pits are placed at differm=nt poinst of the site so as to collect from all parts of the site.

Placed almost equidistantly and away from the building

Underground water tank is placed in the basement with close proximity to the approach of fire tender pathway so as for easy access in case of fire

According to NBC, The required water needed is approximated to 20,000 L Upon calculations of the site, Volume of OHT = 810 * 0.5/3 = 135 m3 Considering 1.5m high OHT, Area of OHT = 135/1.5 = 90 m2

The overhead tanks are split into 2 for each of the towers thus more efficient and equitable distribution throughout the building

The stormwater drainage is taken along the pavements into the loop and later into the RWH Pits to be stored and used for later

WATER
SERVICES

FIRE TENDER PATH FIRE EXITS FIRE PUMP HOUSE

A fire tinder pathway of 6m that forms a looped connection to the main road through the entrance is proposed.

The fire tender path that is not utilised as vehicular road is used as softscape to increase the surface runoff and conserve water

It also has access to the underground static water tank for fire, and manholes for maintenance

A radius of 30 m for fire staircases as well as vertical circulation cores are given as shown

First basement:

If basement, staircase with direct accessibility (or through enclosed passageway with 120 min fire rating) from the ground, shall be provided.

Pump house shall be separated by fire walls & fire doors (120 min rating).

5.5 m x 8 m x 3.5 m, approx sizing

FIRE SERVICES

PLANT ROOM MEDICAL GAS PLANT

A proposed area of GC for Medical gas plant - 135 sq.m GC for Manifold + plant room - 180 sq.m

Located on site near emergency area Within 6m proximity to the building

STP & ETP

Considering the TF technology for sewage treatment, we get an area of around 7000 m2/MLD or 7 m2 per KLD.

In our hospital, the flushing water consumption : 150 L/bed/day = 0.15

KLD/bed

Number of beds = 600 beds So total waste water production = 0.15 x 600 = 90 KLD.

The height of the plant is around 6m. Around 315 sq,m is given

ETP of 80 KLD given in the basement of 30 sq.m

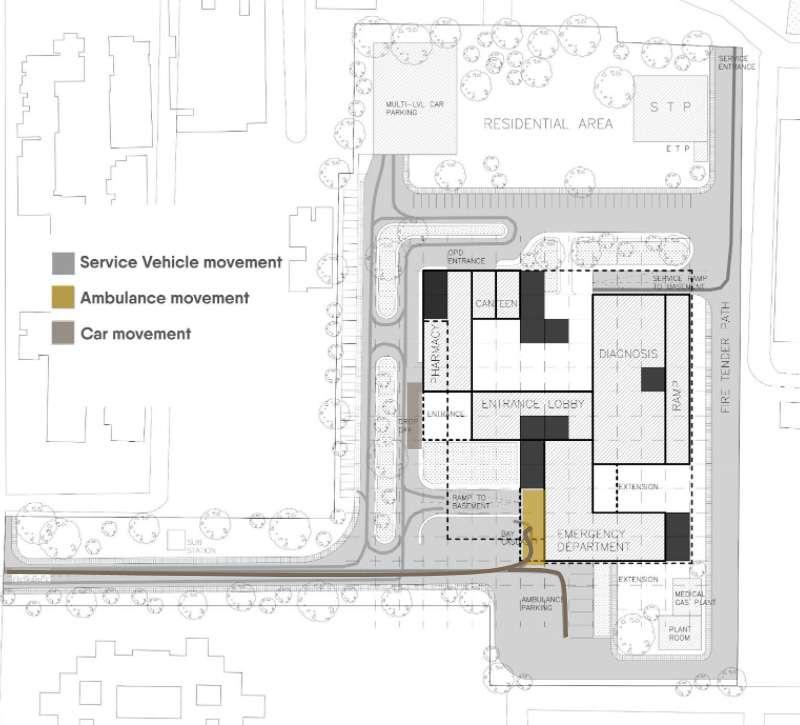
VEHICULAR MOVEMENT PARKING

A multi level car parking is located for all the visitor parking. 2 ECS / 100m2

We need to provide 980 ECS (Min. Parking) since our builtup is 49,000 m2 Ground Coverage = 5% I.e. 5/100 x 31,155 = 1700m2 approx. 55 x 30m is the dimension of proposed parking building with area 1650m2.

Total number of ECS in one floor =1650 / 16 = 102 We are proposing 5 floors = 510 ECS in multi-level parking

The movement for services and vehicular visitor traffic is segregated.

Furthermore, the visitor traffic to emergency and other parts of hospital is segregated.

The traffic to various entrances like OPDs, IPDs, Pharmacy etc are regulated via drop offs

SITE SERVICES
MOVEMENT

RADIATION ANALYSIS

The first part of the diagram shows the radiation during the peak summer, The main thing we can infer is that, the west and east radiation is reduced by the virtue of oreinting the building such that the longer sides face north and south direction. The east side has the ramp while the west has cores that act as buffers to protect the habitable zone from harsh radiation

The second part of the diagram shows the same during winter.

SHADOW ANALYSIS

RADIATION ANALYSIS

The above diagram shows that the courtyard is shaded throughout the year.

The building is such a way that it shades itself,(mutual shading) hence there is a significant reduction in the energy consumption.

FEATURES

Internal wayfinding techniques include artworks and installations emulating the history and local cultural context .

Number of courtyards and breakoutt spaces

Green terraces act as refuge areas as well as good passive strategy for radiation

The cores and ramps are places along east and west acting as buffer spaces protecting the habitable spaces

The outdoor wayfinding techniques include breaking up of the masses to create unique entrances to each, using sculpture and landscaping elements

The services are distributes in the basement as wells as between the podium and the tower, provisions for telemedicine and data rooms

Designated entrances for visitors and staff.

Multiple entrances according to purpose so as to segregate traffic

Creating a smaller microclimate within the site Break up the masses to be more comfortable for the human scale Areas to support patient surge during emergencies

DRAWING SETS

SITE PLAN
SITE SECTIONS

GROUND FLOOR PLAN

DEPARTMENTS

DIAGNOSTICS EMERGENCY ( 10 + 3 BEDS) ENTRANCE LOBBY OPD ENTRANCE PHARMACY SERVICES CIRCULATORY RAMP DIRTY UTILITY CLEAN UTILITY TREATMENT ROOM PATIENT TOILET ISOLATION ROOM SLUICE ROOM CONFERENCE ROOM STAFF TOILET

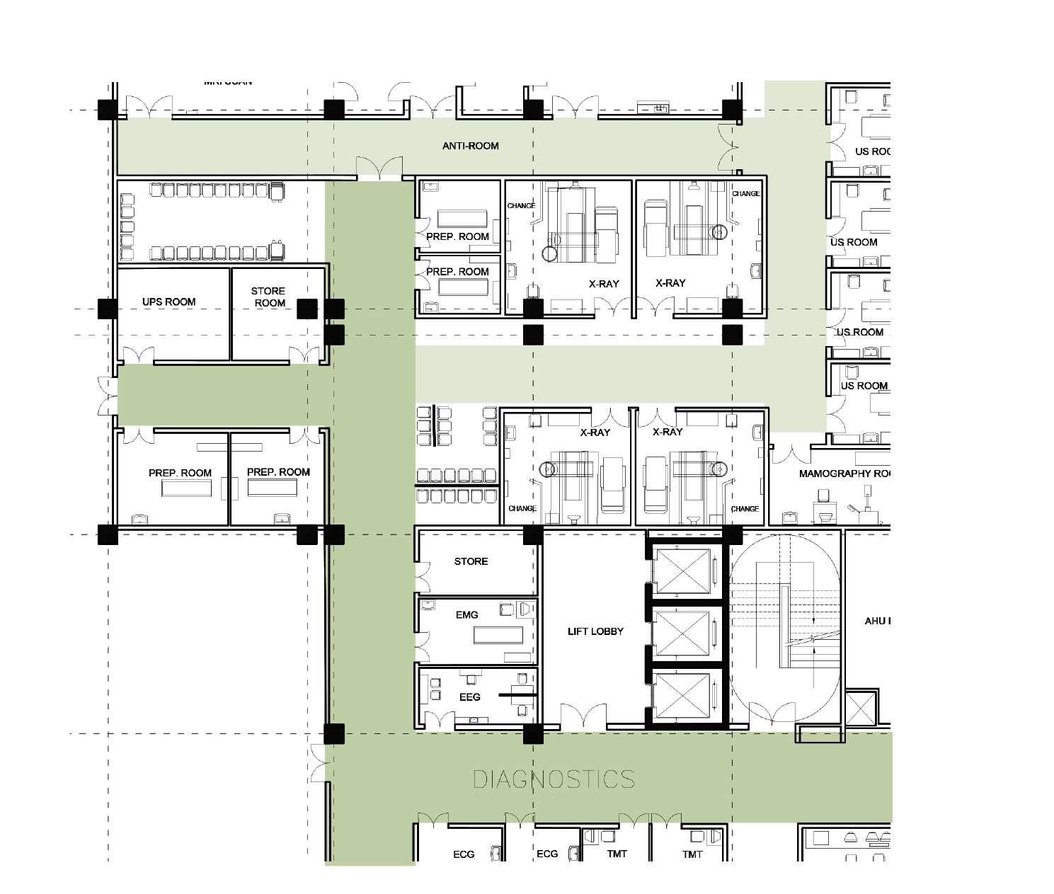
DIAGNOSTICS DEPT

DEPARTMENTS

DIAGNOSTICS SERVICES

CIRCULATORY RAMP DIRTY UTILITY CLEAN UTILITY TREATMENT ROOM PATIENT TOILET ISOLATION ROOM SLUICE ROOM CONFERENCE ROOM STAFF TOILET EXAM LAB

EMERGENCY DEPT

DEPARTMENTS

EMERGENCY (15 BEDS) SERVICES

CIRCULATORY RAMP DIRTY UTILITY CLEAN UTILITY TREATMENT ROOM PATIENT TOILET ISOLATION ROOM SLUICE ROOM CONFERENCE ROOM STAFF TOILET EXAM LAB

FIRST FLOOR PLAN

DEPARTMENTS

OBSTERISTICS & GYNEACOLOGYOPD

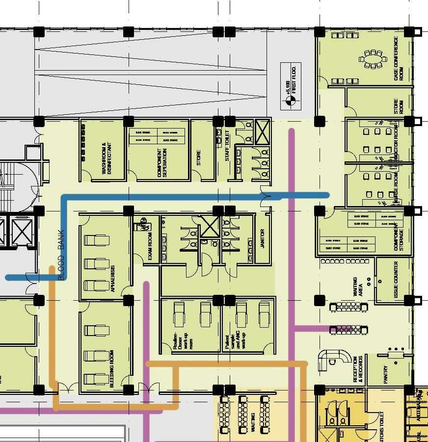
PEDIATRICS - OPD LABORATORIES BLOOD BANK LABOUR & BIRTHING UNIT (23 BEDS)

SERVICES

CIRCULATORY RAMP DIRTY UTILITY CLEAN UTILITY TREATMENT ROOM PATIENT TOILET ISOLATION ROOM SLUICE ROOM CONFERENCE ROOM

OPD DEPT

DEPARTMENTS

PEDIATRICS

OBSETRICS AND GYNEACOLOGY

SERVICES

CIRCULATORY RAMP DIRTY UTILITY CLEAN UTILITY TREATMENT ROOM PATIENT TOILET ISOLATION ROOM SLUICE ROOM CONFERENCE ROOM STAFF TOILET EXAM LAB

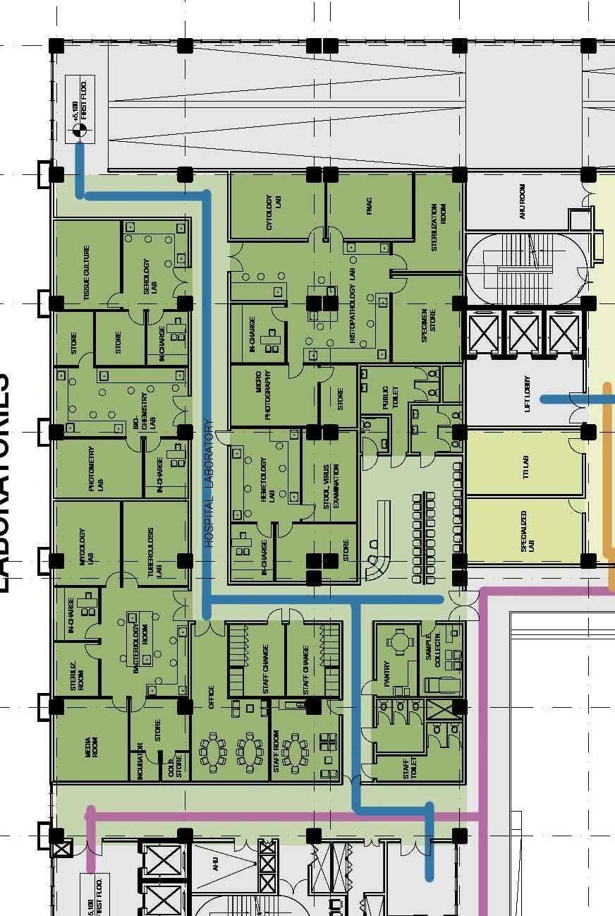
LABS BLOOD BANK

DEPARTMENTS

LABORATORIES BLOOD BANK SERVICES CIRCULATORY RAMP DIRTY UTILITY CLEAN UTILITY TREATMENT ROOM PATIENT TOILET ISOLATION ROOM SLUICE ROOM CONFERENCE ROOM STAFF TOILET EXAM LAB

LABOUR AND BIRTHING UNIT

DEPARTMENTS

LABOUR AND BIRTHING UNIT 23 BEDS

SERVICES

CIRCULATORY RAMP DIRTY UTILITY CLEAN UTILITY

TREATMENT ROOM PATIENT TOILET ISOLATION ROOM SLUICE ROOM CONFERENCE ROOM STAFF TOILET EXAM LAB

SECOND FLOOR PLAN

DEPARTMENTS

ENT - OPD

SURGERY - OPD DAYCARE (30 BEDS)

ICU (10 BEDS)

OT COMPLEX (5 +10 BEDS)

SERVICES

CIRCULATORY RAMP DIRTY UTILITY CLEAN UTILITY TREATMENT ROOM PATIENT TOILET ISOLATION ROOM SLUICE ROOM CONFERENCE ROOM STAFF TOILET EXAM LAB

COMPLEX

DEPARTMENTS

OT COMPLEX - 1 (15 BEDS)

SERVICES

CIRCULATORY RAMP DIRTY UTILITY CLEAN UTILITY TREATMENT ROOM

PATIENT TOILET ISOLATION ROOM SLUICE ROOM CONFERENCE ROOM

STAFF TOILET EXAM LAB

OT

DAYCARE ICU

DEPARTMENTS

ICU (10 BEDS) DAYCARE (30 BEDS)

SERVICES

CIRCULATORY RAMP DIRTY UTILITY CLEAN UTILITY TREATMENT ROOM

PATIENT TOILET ISOLATION ROOM SLUICE ROOM CONFERENCE ROOM

STAFF TOILET EXAM LAB

OPD DEPT

DEPARTMENTS

ENT SURGERY SERVICES

CIRCULATORY RAMP DIRTY UTILITY CLEAN UTILITY TREATMENT ROOM PATIENT TOILET ISOLATION ROOM SLUICE ROOM CONFERENCE ROOM STAFF TOILET EXAM LAB

THIRD FLOOR PLAN

DEPARTMENTS

OPTHALMIC - OPD

ORTHOPEDICS - OPD ADMINISTRATION

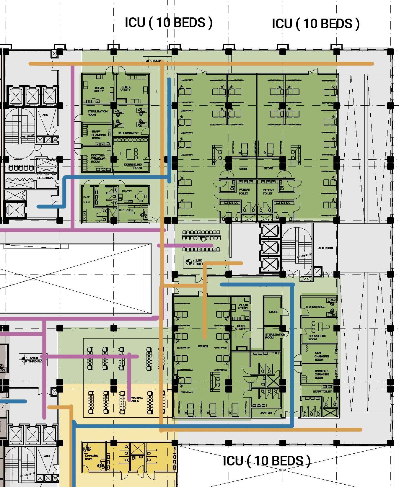
ICU (10 +10+10 BEDS)

OT COMPLEX (5 +10 BEDS)

SERVICES

CIRCULATORY RAMP DIRTY UTILITY CLEAN UTILITY TREATMENT ROOM PATIENT TOILET ISOLATION ROOM SLUICE ROOM CONFERENCE ROOM STAFF TOILET EXAM LAB

DEPARTMENTS

OPTHALMIC - OPD ORTHOPEDICS - OPD SERVICES

CIRCULATORY RAMP DIRTY UTILITY CLEAN UTILITY TREATMENT ROOM PATIENT TOILET ISOLATION ROOM SLUICE ROOM CONFERENCE ROOM STAFF TOILET EXAM LAB

OPD DEPT

DEPARTMENTS

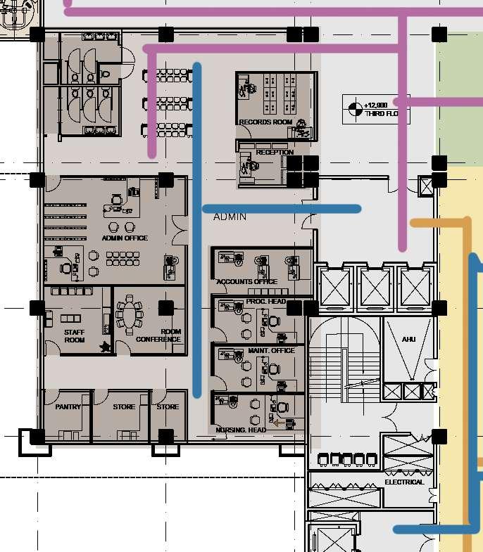
ADMINISTRATION SERVICES

CIRCULATORY RAMP DIRTY UTILITY CLEAN UTILITY TREATMENT ROOM PATIENT TOILET ISOLATION ROOM SLUICE ROOM CONFERENCE ROOM STAFF TOILET EXAM LAB

ADMIN

ICU COMPLEX

DEPARTMENTS

ADMINISTRATION SERVICES

CIRCULATORY RAMP

DIRTY UTILITY CLEAN UTILITY TREATMENT ROOM PATIENT TOILET ISOLATION ROOM SLUICE ROOM CONFERENCE ROOM STAFF TOILET EXAM LAB

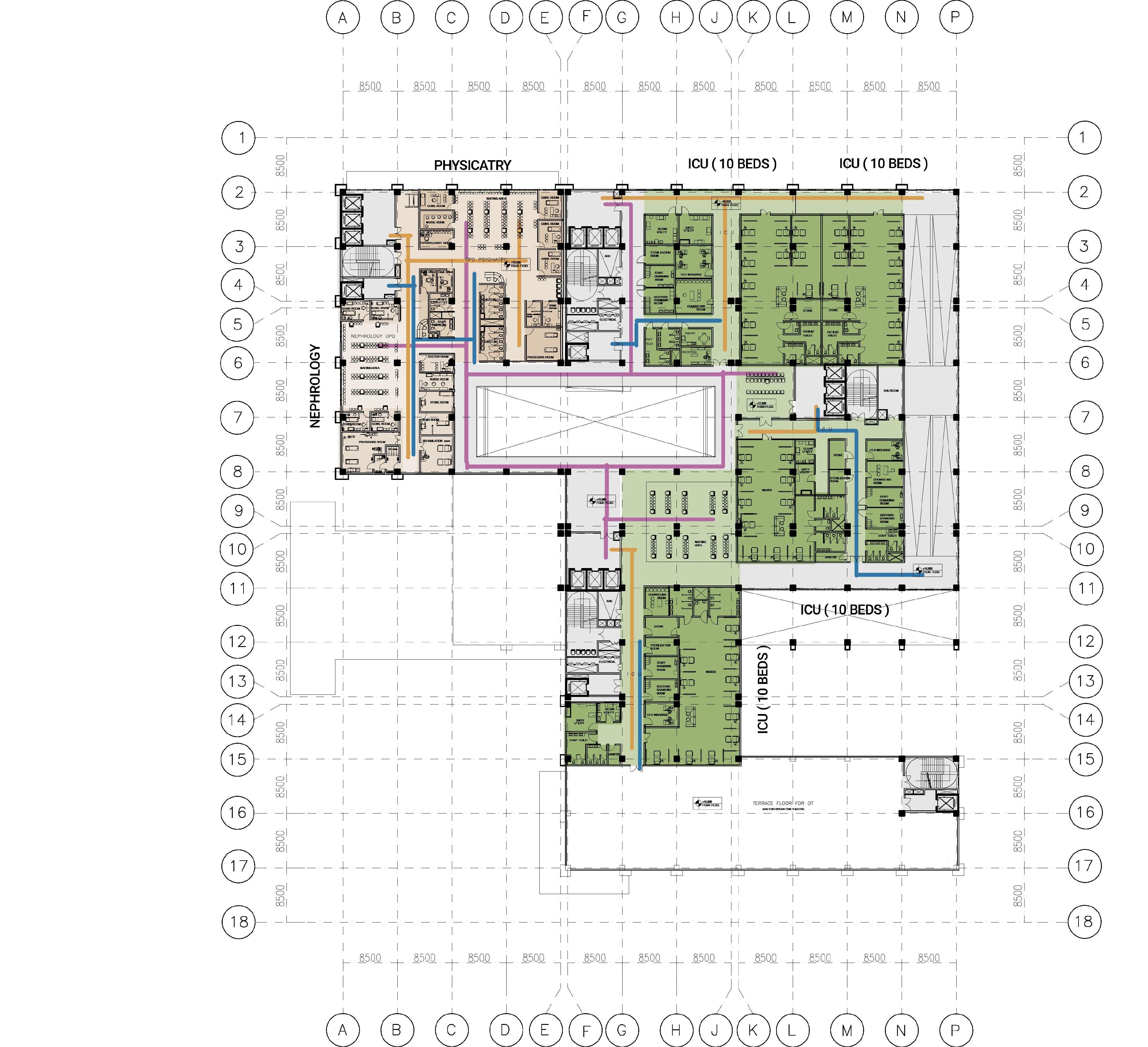
FOURTH FLOOR PLAN

DEPARTMENTS

PHYSIACTRY - OPD NEPHROLOGY - OPD ICU - (10 +10+10+10 BEDS) SERVICES

CIRCULATORY RAMP DIRTY UTILITY CLEAN UTILITY TREATMENT ROOM PATIENT TOILET SLUICE ROOM CONFERENCE ROOM STAFF TOILET EXAM LAB

DEPARTMENTS

PHYSIACTRY - OPD NEPHROLOGY - OPD

SERVICES

CIRCULATORY RAMP DIRTY UTILITY CLEAN UTILITY TREATMENT ROOM PATIENT TOILET SLUICE ROOM CONFERENCE ROOM STAFF TOILET EXAM LAB

OPD DEPT

SERVICE FLOOR PLAN

DEPARTMENTS

MEDICAL - OPD DENTAL - OPD SERVICES SERVICE FLOOR

DEPARTMENTS

MEDICAL - OPD DENTAL - OPD

OPD
DEPT

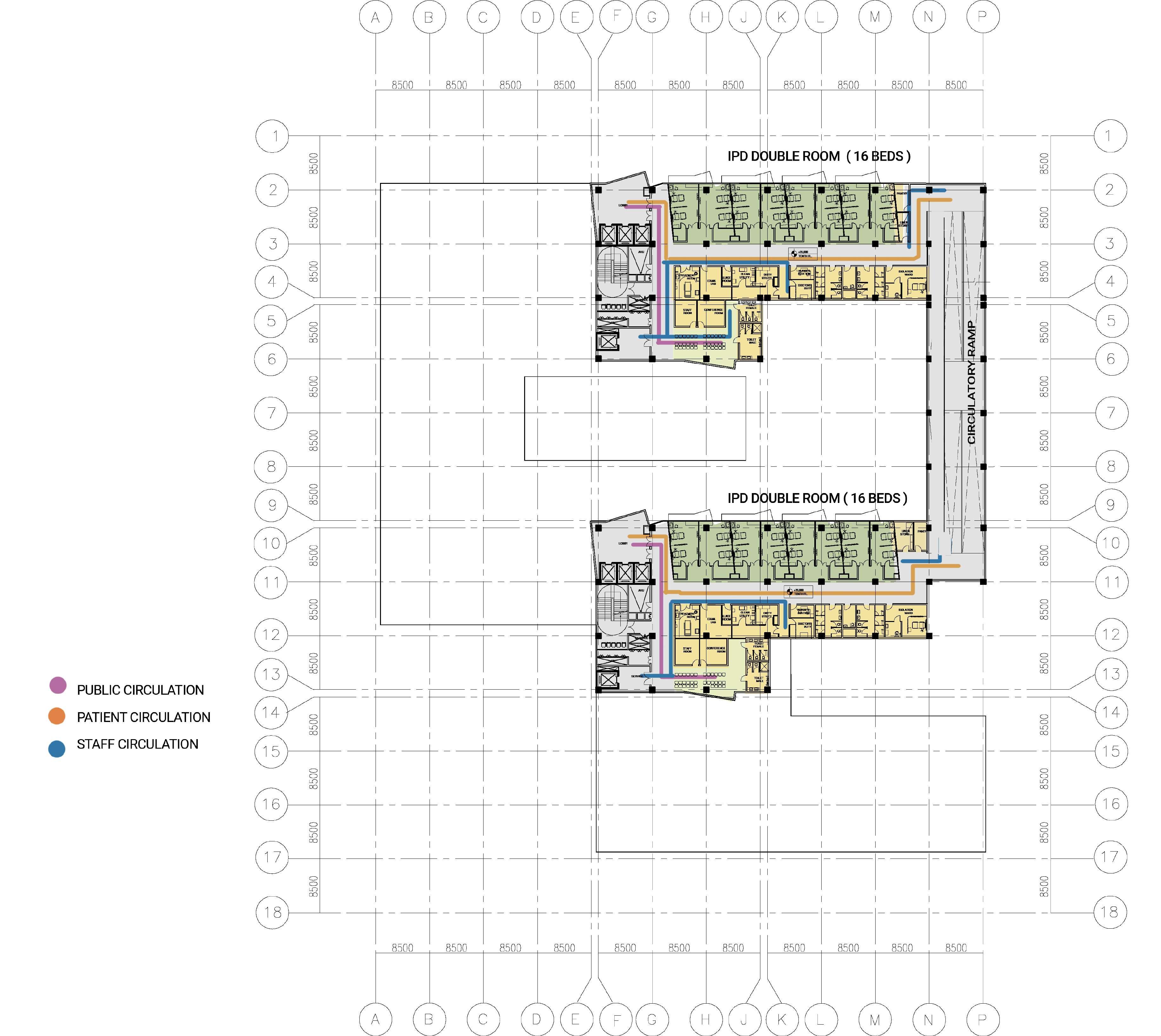
WARDS FLOOR PLAN

DEPARTMENTS

IPD SINGLE BEDROOMS (24 + 24 BEDS)

SERVICES

CIRCULATORY RAMP DIRTY UTILITY CLEAN UTILITY TREATMENT ROOM PATIENT TOILET ISOLATION ROOM SLUICE ROOM CONFERENCE ROOM STAFF TOILET EXAM LAB

IPD -

DOUBLE BEDROOM FLOOR

DEPARTMENTS

IPD SINGLE BEDROOMS (16 + 16 BEDS)

SERVICES

CIRCULATORY RAMP DIRTY UTILITY CLEAN UTILITY TREATMENT ROOM PATIENT TOILET ISOLATION ROOM SLUICE ROOM CONFERENCE ROOM STAFF TOILET EXAM LAB

IPD -

SINGLE BEDROOM FLOOR

DEPARTMENTS

IPD SINGLE BEDROOMS (8 + 8 BEDS)

SERVICES

CIRCULATORY RAMP DIRTY UTILITY CLEAN UTILITY TREATMENT ROOM PATIENT TOILET ISOLATION ROOM SLUICE ROOM CONFERENCE ROOM STAFF TOILET EXAM LAB

IPD -

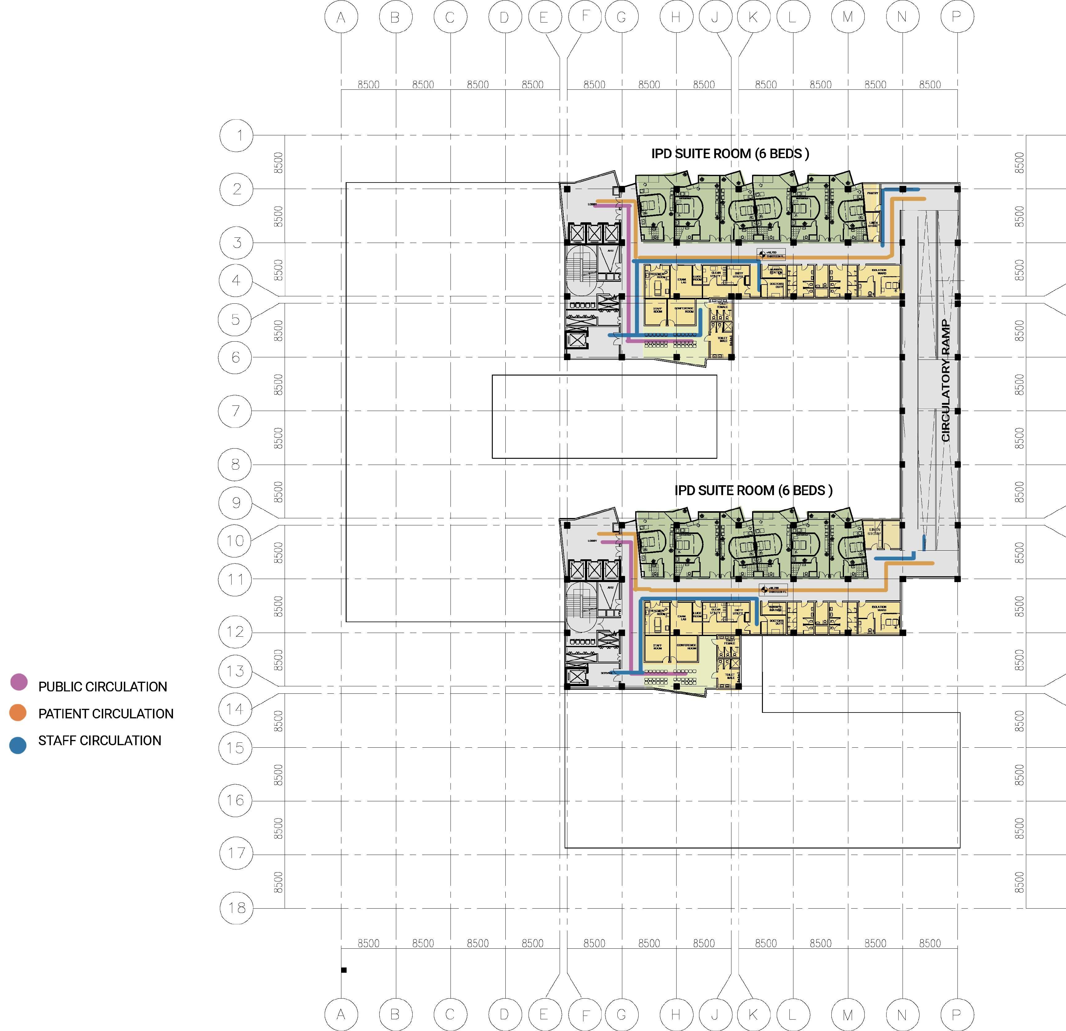
ROOMS FLOOR PLAN

DEPARTMENTS

IPD SINGLE BEDROOMS (6 + 6 BEDS)

SERVICES

CIRCULATORY RAMP DIRTY UTILITY CLEAN UTILITY TREATMENT ROOM ENSUITE ISOLATION ROOM SLUICE ROOM CONFERENCE ROOM STAFF TOILET EXAM LAB

IPD - SUITE

UPPER BASEMENT PLAN

DEPARTMENTS

CHILLER ROOM(DOUBLE HEIGHT) DG SETS

FIRE PUMP HOUSE BOILER ROOM

CSSD MORTUARY LAUNDRY
BIO MEDICAL WASTES WORKSHOPS DIETRY SERVICES

BASEMENT PARKING PLAN

DEPARTMENTS

PUBLIC PARKING SERVICES CHILLER ROOM (DOUBLE HEIGHT)

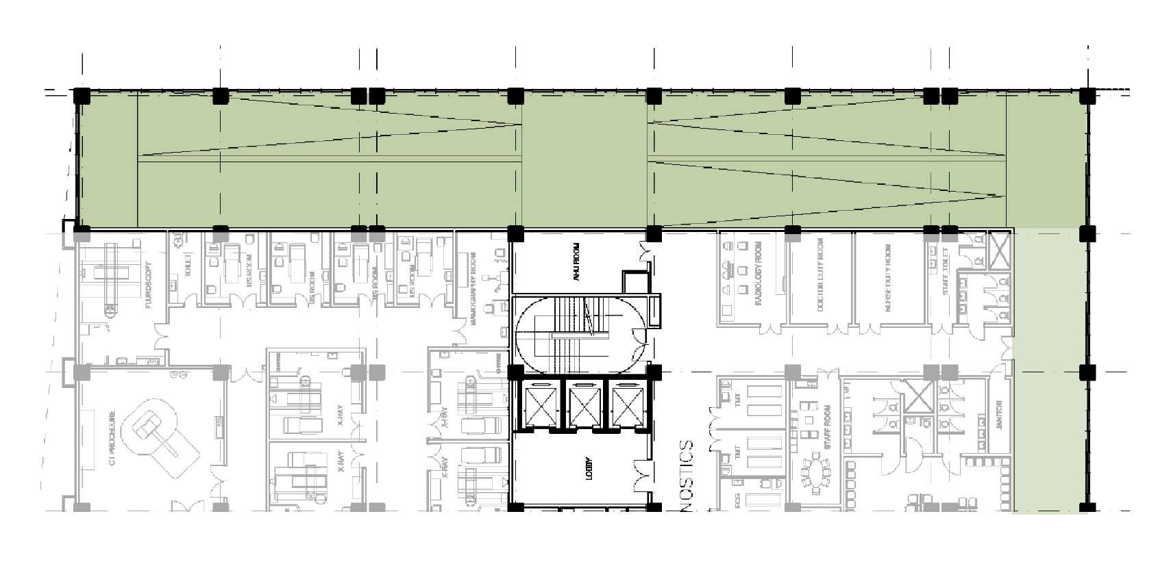
PART PLAN STAFF ROOM RADIOLOGY ROOM ECG EEG STORE MRI SCAN CT PROCEDURE FLUROSCOPY MAMOGRAPHY ROOM LIFT LOBBY DOCTOR DUTY ROOM NURSE DUTY ROOM X-RAY X-RAY X-RAY X-RAY US ROOM US ROOM US ROOM US ROOM PREP. ROOM PREP. ROOM EMG TMT TMT ECG AHU ROOM SAMPLE COLLECTION STORE ROOM TOILET UPS ROOM STAFF TOILET JANITOR MRI EQUIPMENT PREP. ROOM PREP. ROOM CHANGE CHANGE CHANGE CHANGE ANTI-ROOM H J K L M N 10 9 8 7 6 5 4 3 2 H J K L M N 10 9 8 7 6 5 4 3 2
DIAGNOSTICS

FLUROSCOPY

SPECIALITY AREASFLUROSCOPY

DETAIL PLAN - FLUROSCOPY

C 101
B 101
42 M2 A 101 A' 101 C' 101
B' 101
SECTIONAL ELEVATION - AA'
SECTIONAL ELEVATION - CC'
SECTIONAL ELEVATION - BB'

MAMOGRAPHY ROOM

SECTIONAL

SPECIALITY AREASMAMOGRAPHY

20 M2 A 101 A' 101 B' 101 B 101 C' 101 C 101 DETAIL PLAN - MAMOGRAPHY
ELEVATION - AA'
SECTIONAL ELEVATION - BB'
SECTIONAL ELEVATION - CC'

SECTIONAL ELEVATION - BB'

MRI SCAN

SECTIONAL ELEVATION - CC'

SPECIALITY AREASMRI SCAN

SECTIONAL ELEVATION - AA'

85 M2 CONTROL ROOM A 101 A' 101 C' 101 C 101 B' 101 B 101
DETAIL PLAN - MRI SCAN

CT PROCEDURE

SECTIONAL ELEVATION - BB'

SPECIALITY AREASCT SCAN

SECTIONAL ELEVATION - AA'

85 M2
B 101
C 101
SECTIONAL ELEVATION - CC' A 101 A' 101 B' 101
C' 101
DETAIL PLAN - CT SCAN
SECTION XX’
SECTION YY’
SECTION AA’
PART SECTION
EMERGENCY LABOUR & BIRTHING UNIT OT COMPLEX OT COMPLEX BASEMENT PARKING BASEMENT PARKING EXTERNAL WALL SECTION

DETAILS

STAIRCASE LOBBY REFUGE AREA

LIFT LOBBY LIFT LOBBY SERVICE

HV SHAFT

PRES. SHAFT HVAC SHAFT 10 11 12 13

PRES. SHAFT F.H.C F G F G

MEDICAL WASTE WASTE GENERAL PRES. SHAFT 10 11 12 13

AHU ROOM

(3200X2400) LIFT (3200X2400) LIFT (3200X2400) LIFT (3200X2400) LIFT

LV SHAFT

ELECTRICAL
10
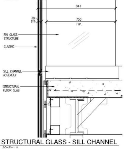
BRICK CLADDING TERRACOTTA LOUVRES FIXED IN STEEL DGU GLASS
EXTERNAL WALL DETAILS
STEEL STRUCTURING
WEST ELEVATION

SOUTH ELEVATION

EAST ELEVATION

NORTH ELEVATION

SOUTH WEST ELEVATION

SALIENT FEATURES & SERVICES

All bed rooms/ wards have sweeping views of the views right from the beds, and each room focuses on a sense of homeliness with chalorous materials, such as wood, to create an atmosphere more reminiscent of a comfortable hotel room.

OPERATION THEATRE

HVAC

The Operating Rooms will require special air-conditioning with positive pressure and HEPA filtration to comply with relevant standards and guidelines .Individual Operating Room temperatures should be controllable by staff from within the room.

Medical Gases

The main storage of medical gases must be outside the facility and reticulated internally to gas outlets. Provision shall be made for additional separate storage of reserve gas cylinders necessary to complete at least one day’s procedures.

Finishes

Operating Units shall have the following finishes: Floors that are smooth, non-slip impervious material laid in a continuous washable material and graded where necessary to fall to floor waste; floor material that resists staining is recommended

Wall finishes which are seamless, impervious and washable Ceilings which are smooth and impervious Intersections of walls and architraves to be rendered watertight junctions.

SALIENT FEATURES & SERVICES

Seperate waiting areas avoiding waiting in corridors and circulatory areas. Sub- waiting areas to segregate traffic to seperate areas in large departments

1: 12 ramps that accomodate the plinth height to directly enter the building in case of emergencies and disabiity. The ramps can accomodate stretchers

Corridor widths of 3000 mm for major circulatory areas to accomodate beds, socila distancing and IPC measures. 2000m corriodrs for staff circulation areas seperated from main circulation

Patient ramp that go through the whole building height such that there is provision to escape in times of emrgency and also for traffic segregation

The side of the site facing the school and religious centres have a tree line of indegenious trees . The tree lines are seperated with pathways in between. Hence blocking out the sound and visual barrier to a certain limit , naturally.

The side of the site facing the residential and poor drainage systems have a tree line of indegenious trees . The tree lines are seperated with fire tendor in between. Hence blocking out the sound, olfactory and visual barrier to a certain limit naturally.

Intermediate courtyards that seperate out the departments

Add healing character to the building Breaks the monotony and improves open - built relationships.

Courtyards also is an excellent passive strategy for climatic control

Indegenious trees and shrubs for external landscaping such that we create a low water demand landscape which is more sustainable

Greens walls that adds to the aesthetic facade as well as carry the effect of the greens as one moves verically

Terrace gardens/ Green roofs are an effective climatic control strategy as well as carry the effect of the greens as one moves verically. Create recreational area or recharge areas for staff as well as patients to relax

Turn static files into dynamic content formats.

Create a flipbook
Issuu converts static files into: digital portfolios, online yearbooks, online catalogs, digital photo albums and more. Sign up and create your flipbook.