Architectural Portfolio

Page 1

Diri

2022
Evananda Nadhira Rahma P. a selected works by

13th of May 2000 Bandung, Indonesia +6281221107859 evanandanadhira@gmail.com

Education

2015 - 2018 | 24 Senior High School, Bandung 2018 - 2022 | Bachelor of Architecture Itenas

Organization

2019 - 2020 | Member of “Pengabdian dan Penelitian 2020 - 2021 | Head of Finance HMA Itenas (Himpunan Mahasiswa Arsitektur) Itenas

Competition

2021 | Competition Participant

Archevent “Sanctuary: A Place for a New Hope” 2021 | Top 15

Mimar Section “Public Space In Covid -19: Between Pandemic and Endemic” 2022 | Competition Participant

Archinesia “Desain Konseptual Hunian <100m 2022 | Competition Participant Texture “Shelter Adaptif Bencana”

Skills

Sketch Up |Autocad | Photoshop | InDesign | Enscape

Experience

2021 | PT Adhikarya (Persero) Tbk

Evananda Nadhira Rahma Pertiwi

Masyarakat”

Itenas Hope” Between <100m2

Contents

RSIA Atmaja Academic - Final Project Relung Nadi Academic

Keluk Swarna Competition Bumi Siji Competition

Askara House Project Storage Rasa Visual

Academic

RSIA Atmaja . Relung Nadi

RSIA Atmaja

Academic - Final Project

Rumah Sakit Ibu dan Anak Atmaja merupakan rumah sakit kelas B yang menerapkan konsep healing environment yang memiliki tiga aspek pendekatan yaitu, pendeketan alam, indera, dan psikologis.

Atmaja diambil dari bahasa Jawa yang artinya bayi, sesuai dengan jenis rumah sakit khusus ibu dan anak. Rumah sakit ini didesain berfokus untuk membantu pemulihan pasien secara psikis, tidak secara fisik.

Lokasi : jl. Kebon Jati No.152 Kab. Jeruk Kec. Andir Kota Bandung, Jawa Barat

Berikut merupakan lokasi site dari RSIA, site tersebut hanya memiliki satu akses ke jalan utama. di sekitar terdapat area komesial dan perniagaan.

Gubahan massa dan olahan site pada RSIA berbentuk memanjang mengikuti konfigurasi site serta tatanan ruang di dalam gubahan bangunan.

RSIA Atmaja menerapkan lima konsep zoning, diantaranya zona administrasi, zona service, central medical unit (CMU), in patient dapertement (IPD), dan out patien dapartment (OPD). Berdasarkan masing masing zona terdapat kebutuhan instalasi yang berbeda beda.Pada gubahan dibagi menjadi tiga zona utama pada bagian sayap kiri, tengah, dan kanan yang didalamnya dibagi berdsarkan lima zona.

Bagian sayap kiri RSIA terdapat instalasi gawat darurat (IGD), instalasi bedah sentral, kebidanan dan kandungan, radiologi, rehabilitasi medik, perawatan intensif, mortuary, cssd, laundry serta dapur rumah sakit. Pada bagian central bangunan terdapat area majemen dan ruang publik.

Bagian sayap kanan RSIA tergolong pada zona semi private dan semi publik. Terdapat instalasi rawat jalan berupa poliklinik, retail, instalasi farmasi dan apotek, instalasi rawat inap, instalasi pemeliharaan peralatan rumah sakit (IPSRS), serta bagian sanitasi. Terdapat juga healing garden.

Ruang rawat inap dibagi menjadi ruang rawat inap ibu melahirkan dan anak yang dibagi bagi tiap cluster berdasarkan kelas I, II, III, dan Vip. Ruang inap didesain dengan pendekatan healing environment, menggunakan warna pastel pada interior dinding.

Ruang Rawat Inap Anak VIP

Berikut merupakan ruang tunggu poliklink yang didesain dengan menggunakan warna warna pastel pada interior ruang tunggu dengan penambahan warna merah jambu pada pintu untuk memberikan kesan menyenangkan pada ruang poliklinik.

Ruang Tunggu Poliklinik

Relung Nadi

Academic

Relung nadi merupakan sebuah public space yang diambil dari bahasa sangsekerta dengan arti lekukan nadi. Ruang publik dengan ukuran 720 m2 diolah di atas tanah dengan perbandingan lereng 1 : 4.

Berawal dari pemanfaatan lahan kebun jagung untuk menjadi tempat berkumpul masyarakat desa pamekaran. Landscape didesain dengan modern sebagai akulturasi budaya tradisional dan modern tanpa menghilangkan budaya asli.

Lokasi : Desa Pamekaran, Kec. Rancakalong, Kab. Sumedang Jawa Barat, Indonesia

Undakan Nadi

Undakan nadi berupa undakan yang berfungsi sebagai tempat bernaung para pengguna, dilengkapi dengan elemen softscape berupa pepohonan dan tumbuhan ekisting

Titik Relung

Titik relung merupakan sebuah vocal point berupa empat buah batu berbentuk tabung sebagai salah satu icon pada ruang public ini. Sebagai ruang beraktivitas masyarakat setempat

Competition

Keluk Swarna . Bumi Siji

Keluk Swarna

Competition

Keluk swarna tergambarkan sebagai ruang korespondensi untuk menanggapi masa pandemi yang merujuk pada isu sosial, ekonomi, serta edukasi. tercurahkan dalam sebuah open space public

Kondisi covid 19 yang cenderung fluktuatif berdampak kepada resesi ekonomi, sosial, edukasi. Hal tersebut mempunyai efek negatif terhadap kesehatan mental dari banyak orang. Akibatnya, banyak orang menderita stress dan depresi yang tak kunjung berakhir.

Bagaimana cara menata ruang publik yang dapat mempengaruhi situasi dan kondisi saat pandemi ini ? sehingga dapat menghasilkan ruang publik yang dapat memfasilitasi orang-orang bersosialisasi namun tetap mencegah penularan covid 19.

Jl. Ambon No. 20, Citarum Kec, Bandung Wetan Bandung, Jawa Barat

Keadaan site View Elemen pelengkap

Keluk swarna dibagi menjadi beberapa macam ruang, seperti bikers area, ruang jarak, reka angan, dan markas seni

Ruang

Bikers Area Ruang Jarak Reka

View entrance

Dua titik pusat

Ruang Hijau Hasil desain Markas Seni Reka Angan Ruang Jarak

Reka Angan

Bumi Siji Competition

Sebuah hunian dengan luas 98 m2 . Bumi siji didesain dengan memprioritaskan pengguna masa kini, seperti kaum milenial dan gen z yang memiliki pemahaman serta prinsip mengenai hidup yang dijalani.

Mayoritas milenial dan gen z memilih untuk dapat tinggal mandiri oleh karena itu bumi siji memfasilitaskan ruang ruang untuk beraktivitas secara individual yang berkesan independent.

Lokasi : Jl. Golf Barat Kota Bandung Jawa Barat, Indonesia

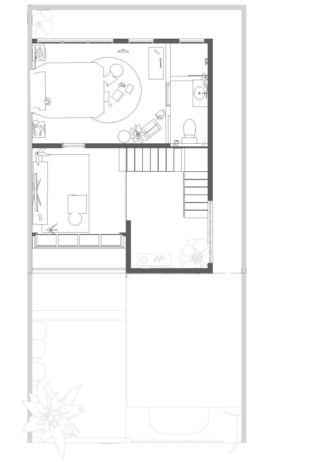
Lantai 1 Lantai 2

Bumi siji hanya memiliki satu buah kamar yang berada di lantai dua bangunan. Lantai satu hanya terdapat living room, kitchen yang menyatu dengan dining room, dan kamar mandi untuk tamu yang berkunjung.Lantai dua bumi siji terdapat kamar utama dengan kamar mandi di dalamnya.

Berdasarkan isu yang diangkat, single bedroom merepresentatifkan milenial atau gen z yang dapat bertahan hidup mandiri dan ruang ruang yang didesain terbuka dapat dijadikan fungsi lain berdasarkan rencana kehidupan berikutnya.

Front yard, living room Kitchen and dining room
Bedroom
Bedroom Bathroom

Project

Askara House

Askara House

Project

Askara memiliki arti sinar atau cahaya yang menuntun pada kebaikan. Rumah Askara merupakan rumah tumbuh satu lantai dengan luas lahan 60 m2. Rumah ini memprioritaskan kebutuhan lahan parkir yang disesuaikan dengan kendaraan pengguna.

Lokasi : Bekasi

Luas Lahan : 60 m2

Owner : Gilang

Tahun : 2022

Description :

1 : Carport 2 : Motorport 3 : Entrance 4 : Living Room 5 : Kitchen & Dining Room 6 : Master Bed 7 : Bathroom 8 : Bedroom 9 : Laundry room & Backyard

Askara house merupakan rumah dari dua pasangan muda. Rumah ini menggunakan konsep Industrial yang menonjolkan warna dan tekstur material ekspos terutama pada elemen dinding ruangan serta penggunaan furniter berwarna netral.

Visual

Storage Rasa “Tentang Diri”

“ Diri ”

Tentang Diri

Sebuah romansa mengejar mimpi dengan arah yang tiada pasti Tenggelam dalam dilema akan realita dan keinginan diri Terhanyut dalam teka teki yang memaparkan sejuta khayalan Membias menjadi sebuah misteri angan kehidupan

Storage
Rasa State of mind
“ Arah ”
Dilema ”
“ Enigma ”
“ Asa ”
Bandung, Indonesia +6281221107859 evanandanadhira@gmail.com

Turn static files into dynamic content formats.

Create a flipbook
Issuu converts static files into: digital portfolios, online yearbooks, online catalogs, digital photo albums and more. Sign up and create your flipbook.
Architectural Portfolio by Evananda Nadhira - Issuu