Skip to main content

Evan Hills - B.Arch.Sci Portfolio

Page 1

Evan Hills

Selected Works 2023

Master of Architecture Portfolio

This portfolio incorporates my selected works throughout my undergraduate studies in architecture at Toronto Metropolitan University. These projects were selected to highlight the development of my dexterities and experiences in architecture through my studies and professional practice. These projects exemplify the adaption and relationship of spaces through interaction and experience in connection with tectonics and materiality within architecture.

Education

Evan R. Hills

(905)351 8595

evan.hills@torontomu.ca

evan.hills@hotmail.com

Bachelor of Architectural Science / Honors [B.Arch.Sc.]

Toronto Metropolitan University | Toronto, Ontario, Canada

2019 - 2023

Professional

ACK Architects Studio

Architectural Intern

Toronto | St. Catharines, Ontario

2018 - Present

Involvement Skills

Winter Stations Fabrication Team

Fabrication Team

2022

Camp Winston Animal Pen

Fabrication Team

2022

Student Mentor

Architecture Course Union Mentorship Program

2021 - Present

Achievements

Deans List

2021 / 22

2020 / 21

2019 / 20

Craig Race Model Award

2022

Niagara Society of Architects Scholarship

2022

Niagara Society of Architects Experiential Presentation

2022

Department of Architectural Science Year End Show Work Selected

2021 / 22

2020 / 21

3D Printing

Laser Cutting

Computer Numerical Control [CNC]

Construction / Fabrication

Woodshop Model-making

2019 / 20 Software Revit 2015 - 2023

Rhinoceros 3D

AutoCAD Enscape
V-Ray
Adobe Ps Adobe Ai Adobe Id Adobe Lr Adobe Pr
Render
Render
Hamilton Aquatic Centre 01 Madawaska 02 Fluidity Performance Hall 03 A Laneway Suite 04 2022 Winter Stations 05 Camp Winston Animal Pen 06 WWF Observation Cabin 01 - 06 07 - 12 13 - 18 19 - 22 23 24 25 - 28 07 Bloor West Mid-Rise 29 - 34 08
Hamilton Aquatic Centre Table of Contents 01 Skyline 02 Fluidity Performance Hall 03 WWF Observation Cabin 04 Winter Stations 05 Camp Winston Animal Pen 06 Madawaska Suites 01 - 16 17 - 24 25 - 34 35 - 42 43 - 50 51 - 58 59 - 68 07
Table of Contents

Hamilton Aquatic Centre 01

145 King Street West - Hamilton, Ontario

Academic | F2021 - W2022

Revit, Rhino, Enscape, Illistrator, Photoshop

Key Plan

The Hamilton Aquatic Centre illustrates the connection between exterior interaction and internal separation. In developing a prominent street corner in the city of Hamilton, the project expresses depth away from the exterior junction, developing an external concourse that, in relation, provides a disconnect from the public realm. The Aquatic centre serves as a new central space for the downtown district, programmatically encasing athletic spaces, areas for personal well-being development and overall spaces for community engagement. The Aquatic centre follows a U-shaped mass, where the two external wings distinguish themselves with aquatic-focused spaces and community-focused program spaces within. The overall mass follows back to the idea of a central space where an exterior public square is situated in the centre, dividing itself away from the external street frontage, where it is encased within the U-shaped form, giving a sense of privacy to visitors of the aquatic centre.

Central Connection Exterior to Interior Setback Form Transformation
01

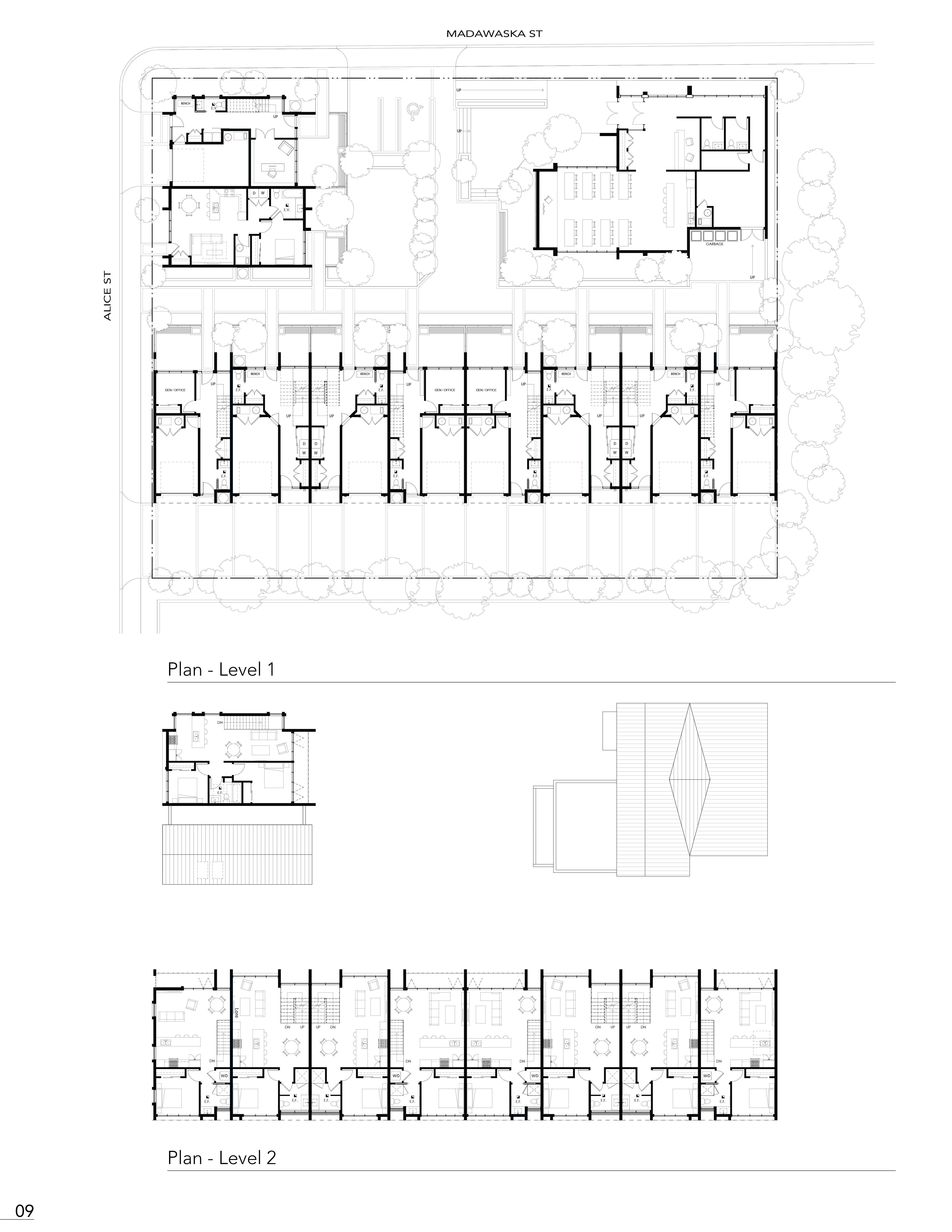
Madawaska Key Plan

1 Madawaska Street - Bancroft, Ontario

Academic | W2021

02 Site Mass I \< ·, ' C :::· •····~ • \5 ~::\ e:) 2o ..........._<S>v o A O W n

Located in a small Ontario town, the social interaction and public realm play a large part in the residents' lives. The development of a community-orientated complex within the town of Bancroft provides growth of further socialization and involvement. The Madawaska townhouse complex is orientated towards a central core, where the complex transforms into a public park connecting the residence within and attracting external visitors with a community hall on site.

07
Revit, Rhino, Enscape, Illistrator, Photoshop Site Circulation Scale Transformation Central Connection
illL_
1l_
Visualization

Fluidity Performance Hall 03

89 Bond Street - Toronto, Ontario

Academic | F2020

Revit, Rhino, Enscape, Illistrator, Photoshop

Key Site Mass Vertical Expression Downscale Horizontal Expression

Expressing the visuals of interior circulation towards the exterior, the Performance Hall presents itself outside of the exterior shell. The extrusions through the perforated facade protrude the internal exposure to the exterior. Expressing an extrusion that connects the street corner into external isolation upon entry. Plan 13
1L_

A

Laneway Suite

542 Beresford Avenue - Toronto, Ontario

Academic | F2022

Revit, Rhino, Enscape, Illistrator, Photoshop 04
Central Split Programme Separation Form Transformation Key Plan 19 ) - u 'O -.-- B 0 ~a c a Q 0 D B v 0 I C J \ D Q, -1/ ?'. DOD / ~n t
This Laneway Suite expanded the idea of having three programmatic spaces within one small existing rear yard. Through this, the conceptual organization of having a primary living space, a live work and an external studio together on one site, separated into three masses, has been experimented with. The spaces serve as the idea of organizing a live work area, away from the everyday living of a home, creating an externally located office and studio while still falling within the same footprint. The L-shaped mass is separated with an internal bridge connecting the primary suite to the living space while still giving that sense of separation and privacy. This is exaggerated with an external connection through a central corridor of the mass into the rear, delivering the idea of having a rear court displaying one's personal artwork.

Physical Model

22

2022 Winter Stations 05

Woodbine Beach - Toronto, Ontario

Design Build | F2021 / W2022 - Fabrication Team

Located on Woodbine Beach, S'winter Station is inspired by the forces that nature brings with falling snow and shifting sands, the pavilion embraces local wind, snow, and sun conditions. With the use of beach towels, the design diffuses light and snow to provide shelter. Together, the panels and wings protect users and encourage them to engage with their surroundings. The lifeguard station, beach towels, and marine ropes are implemented being frequently used items in the summer.

23

Camp Winston Animal Pen 06

1147 River Lane - Kilworthy, Ontario

Design Build | S2022 - Fabrication Team

Camp Winston, located in Kilworthy, Ontario, serves as a retreat for children who have neurological and biological disorders, giving them a place for social and specialized support. The fabrication of the Animal Pen for Camp Winston strives to develop a space for children to interact with animals while building a bond with one another and furthering their connection with the outdoor environment.

24

WWF Observation Cabin 07

Lagoon of Orbetello - Tuscany, Italy

Competition | 2021

Revit, Rhino, Enscape, Illistrator, Photoshop

Key Plan

The wetlands: a place one might consider the point of conflict between the natural world and human development. An area historically deemed undesirable to the built world but still so important to the world's biodiversity. A place threatened by our past and present actions. In order to protect and raise awareness of these ecosystems' importance, we must draw attention to this issue. The ground-level observation uses a perforated facade to conceal the viewers within, allowing for sweeping views of the landscape and fauna. The perforated facade and the white steel cladding contrast the structure within the natural landscape's form

Geometry Transformation Site Flow Relation Exterior Transparency
25

2357 Bloor Street West - Toronto, Ontario

Academic | F2022

Revit, Rhino, Enscape, Illistrator, Photoshop

Terracing Transformation

Key Plan

The five-storey mid-rise gives a presence along the street frontage of Bloor Street West. The first floor of the condominium provides retail to the community, which follows the existing commercial characterization of the Bloor West Village. Above, housing residences of Toronto, the vertical extrusion of the mass follows a fifteen-degree rotation through the second to the fifth floor, thus giving a shift in the front facade, breaking up the continuity. While primarily, the angle serves to offset each unit as a separation of privacy in the rear. Following where a terracing effect projects the overall character of the building, giving residences their own garden, while also doubling as privacy separation, thus being the main priority.

29
West Mid-Rise 08
Bloor
Vertical Extrusion Form Rotation
evan.hills@torontomu.ca evan.hills@hotmail.com (905) 351 8595 6834 Dellpark Drive Niagara Falls, Ontario L2J 2B8 Thank You

Turn static files into dynamic content formats.

Create a flipbook
Evan Hills - B.Arch.Sci Portfolio by evan.hills - Issuu