2024 Architecture portfolio

Page 1

2 0 2 4

Architecture Portfolio

Eva Mookken
1.A-Level work 2.
4.
5.
6.
Cycles (Ongoing)
Year 1 project: Artist’s House 3.Year 2 project: Misahat Lilqaylula: Capsule Hotel
Case Study: Tianjin Binhai Library
Year 2 project: The Coding School
Final year project: The Forest’s

A Level Unit 2: The Eye Of the Beholder: Architecture

My Street:

This is a pencil tone study of a street in the Dubai Heritage Village. This is an image of an Arabic wind tower and is a hugepart of the traditional Arabic architecture. I consider this as ‘My Street’ as it represents the cultureand traditions of the country that I have grown up in. This was one of my first studies in this unit and I had really enjoyed usinggraphitepencils to capture all the details of this structure.

Some more studies of photographsof mosques and pictures from my trip to Georgia, I explored with more media such as ink and ball pens, white ink pens and oil paints to see which material works the best and produces the best results.

Ink Pen

Graphite Pencils

Continuingwith some more experimentation, inspired by artist Minty Sainsbury, I started exploring with negative spaces as opposed to the intricate, detailed structurein the centre. I foundgraphitepencils and ink pens producedthe best results as it was quite helpfulin producingthe minutedetails.

The final piece produced as a results of this experimentation and exploration. This was a piece inspired by various artists such as Malevich, Kandinsky, Minty Sainsbury and Kyle Henderson. Working with again graphitepencils and ink pens, the monotone structures along with the shards of colour and the negative spaces, allows the viewer to experience the piece in a uniqueway.

Architecture Year 1 projects: The Artist’s House

This residential project is for a family of three. The father ( a businessman),The mother (a professional painter), and their 5-year-old son. This structureis to serve as a house and studio for a mother. They wanted the studio to be the main focus of this project. The site was chosen as the artist would like the studio to be one with the beach, allowingher to create paintingsinspired by the ocean and the same time have a natural and peaceful environment to do so.

The site:

Beach, Dubai, United Arab Emirates

Kite

Artist’s studio

Family room

Kid’s bedroom

Kid’s bathroom

Master bedroom

Master bathroom

Guest bedroom

Guest bathroom

Legend:

1. Living room

2. Dining room

3. Open kitchen

4. Powder room

5. Utility room

6. Maid’s room

7. Maid’s Bathroom

Legend: 8.
9.
10.
11.
12.
13.
14.
15.

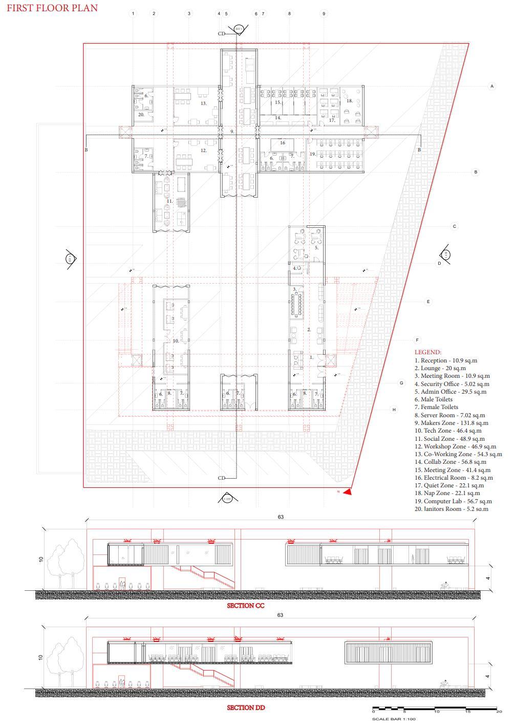
Architecture Year 2 projects: Celare – Capsule Hotel

Misahat

Lilqaylula

The site for this project is in Deira, Dubai, UAE. The site has dimensions of 37.5 m x 40 m, and it overlooks the creek and the al seef side of Dubai. The site is located near a park and is opposite a Dubai Municipality building.It is on the street side of one of the main roads of the area and right in front is a bus stop. The project brief is to create a structure for people to come and take naps duringtheir afternoon break. The building shouldconsist of a cafe, a loungearea, men and female capsules for naps and toilets and a viewing deck. The main user groups to consider when designingthis project are the daily wagers, tourists and office employees

Site Map, Scale 1:200

Design Development:

RECEPTION

ADMIN

LOUNGE

CAFE

OUTDOOR DINING

OUTDOOR NAPZONE

MALE CAPSULES

FEMALE CAPSULES

MALE SHOWER AND TOILETS 10. FEMALE SHOWER AND TOILETS

STORE

12. LAUNDRY ROOM 13. RECYCLING STATION

ELECTRICAL + COMMUNICATION

Site
Ground Floor Plan First Floor Plan
1.
2.
3.
4.
5.
6.
Plan
LEGEND:
7.
8.
9.
11.
LEGEND: 16.MALE CAPSULES 17. FEMALE CAPSULES
14.
Outdoor nap zone Sleeping Capsules Viewing Deck Physical Model
Architecture Year
projects:
2

EXISTING LOC ATION PLAN SC ALE 1:2500

SITE PLAN

SC ALE 1:500

The 21st–century painting university is set within a forest that aims to blend art and nature, fostering creativity while connecting students with the surrounding woodlands Through outdoor workshops and painting sessions, students can draw inspiration from the forest’s beauty, cultivating both artistic talent and environmental stewardship. The aim of this project is to connect the green spaces in Bournemouth and create an inviting environment for everyone The university is to act as a space where the community feels welcomed and a part of something bigger

“We should learn from the forest and how to integrate the forest’s cycles to a city ”

OPOSED LOC ATION PLAN SC ALE 1:2500

1 The parking lot is separated from the forest currently with a very distinct boundary

2 The forest is brought into the carpark to diminish the boundary

3 Using the voids and clearings formed by the forest to create masses and moments of activity

This process ensures that the architecture will be nestled within the forest.

FORES T’S C YCLE
A
THE
S
UNIVERSIT Y FOR PAINTING
DESIG N DE VEL O P MEN T 1. 2. 3.
PR
N
V er tical Timber Cladding an d G r ee n R oo fs Th e fla t timbe r r oo f s will be la y er ed wit h a liqui d w a t er p r oofin g memb r an e t o r educ e th e r ottin g an d c ollec tio n of w a t er o n th e roo fs . E VA MOOKKEN
2. 2. 1. 4. 5. 6. 7. 8. 9. 11. 12. 4. 4. 4. 4. 3. 3. 3. 3. LEGEND: 1. PAINTING STUDIO 2. PH O T OG R AP H Y STUDI O 3. W ASH R OOM S 4. SEMINA R R OOM S 5.C AFE + EXHIBITION S PA CE + C OMMO N ARE A 6. GALLE R Y 7. W AST E C OLLE C TIO N 8. SHOP 9. C AF E 10. ADMIN RECEPTION 11 A UDI T ORIU M AND + LE C TUR E HAL L 12. DISABLED PARKING LIGH T U P C O L UMN S REFLE C TIV E C O L UMN S TIMBE R STRUC TURA L C OL UMNS B A MBO O MUSI C A L C O LUMN S 1. SEL F PAINTIN G C O LUMN S 2. R AIN W ATER C OLLE C TIO N C O LUMN S 3. 4. 5. 6. LEGEND: 1. PAINTING STUDIO 2.OUTDOOR PAINTING STUDIO 3. GALLER Y 4. C AFE N N G ROUN D F LOO R PLAN SC ALE 1:500 SEC TION BB SC ALE 1:200 F RON T EL E VA TIO N SC ALE 1:200 RIGH T EL E VA TIO N SC ALE 1:200 FIRST FL OOR PLAN 1. 2. 3. 4. 5. 6. C O LUM N TY PE S
SOCIA L S PA C E PLA N AN D SE C TIO N SC ALE
1:50
1:2 0 SE C TIO N ISOM E TRI C

Turn static files into dynamic content formats.

Create a flipbook
Issuu converts static files into: digital portfolios, online yearbooks, online catalogs, digital photo albums and more. Sign up and create your flipbook.
2024 Architecture portfolio by Eva joe - Issuu