EK_Portfolio_2025

Page 1


Portfolio

Réhabilitation-extension d’un collège à Chartres - p.4

Concours pour un collège à Ivry-sur-Seine - p.9

Construction d’un petit ERP paramédical et 2 logements à Lacanau - p.13

Revitalisation du centre-bourg de Thiron-Gardais - p.16

Projet de Fin d’Études : surélévation d’un ancien hôpital à Paris - p.18

Travaux de stage : concours de logements à Clichy-Montfermeil - p.23

Chantier patrimonial dans l’Allier - p.25

Perspective d’insertion du nouveau hall d’entrée

Perspective d’ensemble

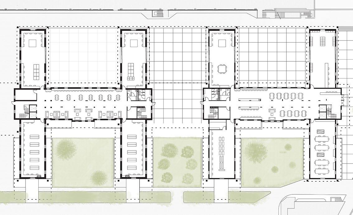
Réhabilitation-extension d’un collège à Chartres

Atelier Da Costa

Il s’agit de la transformation des anciens locaux de l’Institut National Supérieur du Professorat et de l’Éducation (INSPÉ) en un collège d’une capacité d’accueil de 400 élèves.Ce bâtiment, datant du début du XXe siècle, s’inscrit dans le périmètre MH de la cathédrale de Chartres. Il a connu de nombreuses transformations et extensions mineures qui dénaturaient son écriture architecturale typique des établissements scolaires des années 1900.

Le projet a d’abord visé à rationaliser le bâti pour tendre vers le gabarit historique de l’édifice, tout en lui adjoignant toutes les aménités nécessaires à l’accueil de la nouvelle communauté scolaire : aménagements extérieurs, demi-pension avec cuisine de production, parking... Un important travail de mise en conformité du bâtiment existant

a aussi été effectué pour assurer la sécurité incendie (calorifugeage des menuiseries intérieures, recoupement des couloirs…) et l’accessibilité (ajout d’ascenseurs, égalisation des planchers…). Il fut aussi question de revoir les systèmes techniques de l’édifice, notamment les fluides, ainsi que l’isolation, afin d’atteindre un niveau BBC Rénovation.

Ce fut l’un des premiers projets sur lequel j’ai travaillé à l’agence et que j’ai pu suivre jusqu’à sa quasi-complétion. Ce projet m’a permis d’aborder plusieurs problématiques liées à la transformation architecturale, notamment en ce qui concerne les détails techniques. J’ai également pu étudier la manière dont les exigences patrimoniales, techniques et économiques doivent être gérées.

Coupe longitudinale : ailes réhabilitées, nouveau hall et habillage de l’ancienne extension

Coupes et détails sur le nouveau hall et le nouvel escalier

Coupe transversale : bâtiment existant, nouveau hall, ancienne extension réhabilitée et nouvelle demi-pension en ossature bois

Détail de principe pour un auvent de liaison entre le bâtiment existant et la nouvelle demi-pension

Dégagement

Calepinage et principe de rechargement du sol des couloirs : il a fallu ici combiner la mise aux normes PMR (car le ressaut entre le couloir entre couloir et salles de classe excédait 2 cm), la conservation du carrelage existant et la reproduction du motif historique.

Extérieur

Concours pour un collège à Ivry-sur-Seine

Il s’agit ici d’un concours d’un marché global de performance en deux phases pour la construction d’un collège d’une capacité de 700 élèves ; doublé d’une unité indépendante accueillant des espaces sportifs : escalade, combat et danse, terrain multisports ; et d’un parking semi-enterré.

La densité du programme devait également s’harmoniser avec les contraintes urbanistiques, sécuritaires et géotechniques du site (construit sur un remblais pollué). Il fut également question de répondre aux exigences économiques du Département du Val-deMarne ainsi que de l’entreprise mandataire en charge de la réalisation.

Par ailleurs, la MOA demandait l’atteinte de la passivité énergétique, ce qui a fortement

orienté la conception architecturale vers une certaine compacité, la recherche d’orientations solaires favorables, l’installation de systèmes efficaces, comme le rafraîchissement nocturne) et la maximisation de surfaces exploitables pour du photovoltaïsme.

Ce projet fut l’occasion de travailler sur un équipement parcouru par des flux complexes (élèves, personnels, public non scolaire...) et dont les enjeux technico-économiques s’infusèrent tout au long de la conception lors des nombreuses réunions du groupement de maîtrise d’œuvre.

Ce fut également un temps d’expérimentation et d’affinage de techniques de rendu pour arriver aux objectifs de fidélité des matériaux et d’efficacité fixés par l’Atelier Da Costa.

Plan de masse
Atelier Da Costa

Axonométrie générale du collège

Coupe longitudinale sur la salle d’escalade, la cour et le bâtiment administration-CDI

Coupe transversale sur le bâtiment principal (classes et demi-pension)

Coupe technique sur la façade du bâtiment principal

Construction d’un petit ERP paramédical et 2 logements à Lacanau

Le programme émanait de la demande d’un client privé de l’agence. Il prévoyait de construire, sur une parcelle nouvellement divisée, une maison capable d’accueillir trois cabinets d’ostéopathes-chiropraticiens et leur bureau partagé ; ainsi qu’à l’étage, deux logements locatifs pour jeunes couples ou célibataires.

La parcelle se trouve au sein d’un quartier à dominante résidentielle. Le PLU qui s’y applique établit des règles de compacité strictes pour préserver les sols et leur capacité d’infiltration des eaux pluviales. Cette région est en effet soumise à des épisodes météorologiques importants et dont la fréquence augmente.

J’ai pu mener ce projet en autonomie quasi complète, de l’esquisse à la fabrication de la demande de permis de construire, avec le contrôle de l’associé de l’agence en contact avec le client.

Ce dernier avait également émis le souhait de construire ce bâtiment en bois, en s’appuyant sur le savoir-faire d’une entreprise locale.Nous étions donc en contact avec cette dernière afin de connaître les spécifications architecturales et techniques les plus favorables.

Cela donne une conception qui se veut compacte en termes de volume, rationnelle dans son écriture et sa mise en œuvre (panneaux massifs lamellés-croisés et pièces préfabriquées), tout en restant très fonctionnelle et confortable pour ses usagers et ses habitants.

Perspective d’insertion sur rue

+4,900 2 Mezzanine +7,000 3 Toiture

+2,600 1 R+1

±0,000 0 Etage

Coupe transversale

Élévation de la façade ouest, sur rue

Hauteur PLU max : 7,50m au faîtage

Bardage pin des Landes THT
Panneau acier laqué anthracite
Placage rive zinc

Croquis et photomontage pour la réhabilitation d’un bâtiment communal en bordure d’un arboretum

Esquisse du plan de transformation de la Maison Imbert, une maison traditionnelle du cœur de bourg, préemptée par la municipalité, en café associatif et Fab Lab.

L’objectif de la mairie était également de créer des parcours piétons dans le centre-bourg afin de stimuler l’attractivité touristique de la commune.

Consultation compétitive pour la revitalisation du centre-bourg de Thiron-Gardais

Sollicités par l’atelier de paysagisme Art Païs, nous avons participé à la consultation compétitive d’une commune d’Eure-et-Loir pour la revitalisation de son centre-bourg.

Ce village bénéficie en effet d’une intense activité périphérique, avec par exemple, la présence d’ateliers automobiles ; ainsi que de plusieurs édifices patrimoniaux classés Monuments Historiques : une abbaye, un ancien collège militaire royal...

Cependant, le cœur historique de la commune thironnaise manque d’équipements de proximité, de sentiers réservés aux piétons et cyclistes, et d’aménagements touristiques.

Le projet proposé par notre groupement consiste en un plan global de révision des voiries, combiné à 13 interventions spécifiques reliées entre elles par des chemins piétons et cyclables : petits équipements communaux, curiosités et folies, mais aussi patrimoine vernaculaire réhabilité.

Ce projet, dont le groupement fut lauréat, m’a permis d’aborder avec une certaine autonomie les enjeux de la programmation et de l’aménagement au travers de rendus rapides et expressifs à livrer à la municipalité en quelques jours ; mais aussi plusieurs présentaitons auprès des administré·e·s afin de pouvoir recueillir leurs impressions et remarques.

Perspective sur l’entrée de la Maison Imbert, côté rue du Commerce.
Plan d’ensemble du projet de transformation du CHU Bichat-Claude-Bernard Cardo, traité par Paul Rognon Decumanus, traité par Étienne Kirsch

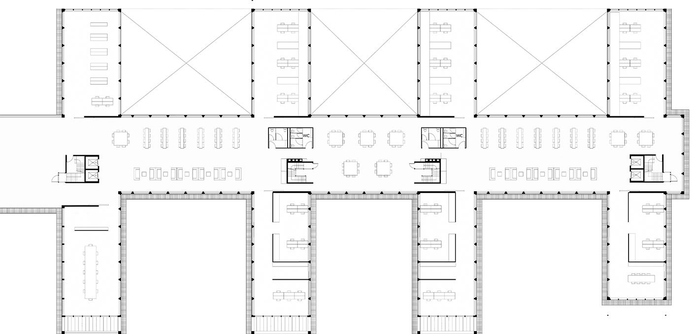
PFE : transformation de l’hôpital Bichat-ClaudeBernard, Porte de Saint-Ouen, Paris 18e

Densifier l’existant, augmenter les possibilités. Il s’agit ici de remettre en cohérence les différents éléments du site de l’hôpital BichatClaude-Bernard, desaffecté à l’horizon 2030. Ce projet architectural et urbain vise à reconvertir un site complexe, construit en strates depuis la fin du XIXe jusqu’au début du XXIe siècle, en un campus universitaire polytechnique au cœur du Grand Paris.

Nous proposions ainsi une alternative à la construction universitaire ex-nihilo pratiquée entre autres sur le plateau de Saclay ; ainsi que la concrétisation du projet politique de la métropole par la construction d’une infrastructure pivot entre Paris et Saint-Ouensur-Seine. Après un semestre de formalisation du projet urbain, nous avons décidé de deux grands axes de projets à nous répartir : un cardo sous forme de traversée du site, allant

jusqu’au parc Édouard Vaillant de l’autre côté du Périphérique ; et un decumanus reprenant les bâtiments de l’hôpital Claude-Bernard et s’enroulant autour de l’ancienne chaufferie.

J’ai réorganisé cette séquence en revisitant la logique historique de galerie entre pavillons hospitaliers du XXe siècle. La révélation des lieux et l’augmentation des capacités programmatiques des bâtiments passent par la pose d’un exosquelette prenant la forme d’une surélévation, d’une passerelle et enfin d’une halle.

Entre plusieurs mondes, ateliers et jardins, sol et ciel, la galerie reprend son rôle d’artère sociale qui irrigue les différentes branches des bâtiments tout en fournissant un lieu d’échange et de détente.

Extrait de l’élévation longitudinale de la surélévation de l’hôpital Claude-Bernard

Plan du R+3 / premier niveau de la surélévation :

Plan du RDC : parvis, ateliers, Fab Labs, halles d’expérimentation et jardins

Laboratoires

d’expérimentation

Coupe perspective sur les locaux de l’hôpital Claude-Bernard transformé en laboratoires d’ingénierie.

Détails techniques de la surélévation : terrasse et étage courant.

La surélévation fut pensée pour être facilement construite, être la plus légère possible, proposer une conception bioclimatique et un haut confort d’été.

Halle
Jardin
Ateliers
Galerie
Terrasse

Stage : concours pour 80 logements et locaux commerciaux à Clichy-sous-Bois

Mon stage à l’agence RVA m’a permis d’intervenir sur plusieurs projets d’architecture et d’urbanisme. Celui auquel j’ai le plus participé fut un concours pour la construction d’un macro-lot adjacent à la nouvelle gare du métro 16 « Clichy-Montfermeil ».

Cette opération, menée avec un groupement de cinq agences d’architecture dont une en charge de la coordination, fut l’occasion de travailler sur un îlot mixte abritant logements sociaux, en accession et commerces.

Plan de faisabilité du R+2 de l’îlot O.3 : répartition des logements et des espaces plantés

Renaud-Vignaud Associés N

Coupe perspective sur l’îlot O.3 : illustration de la mixité programmatique et de la gestion des vues

Chantier patrimonial : cristallisation du château

de Montgilbert à Ferrières-sur-Sichon

Association du Château de Montgilbert / Union REMPART

Je participe depuis plusieurs années au chantier de préservation du château de Montgilbert. Situé dans la montagne bourbonnaise, au cœur de l’Allier, cette forteresse édifiée au XIIIe siècle s’est vue maintes fois transformée jusqu’à son abandon au XVIIe siècle, puis les déconstructions qui ont suivi à la Révolution.

Chaque session de chantier dure une quinzaine de jours et donne l’occasion de travailler sur un atelier spécifique. Il ne s’agit pas de restaurer le château, mais de consolider ses points les plus fragiles afin d’en sécuriser la visite et donner à voir ses différents espaces. Nous travaillons avec les pierres du site, que nous assemblons avec du mortier traditionnel à la chaux.

Ci-contre : vue sur l’enceinte intérieure du château, avec, au premier plan, la tour dite « du Belvédère ».

Ci-dessous : travaux de renforcement de « la couronne » de la tour du Belvédère, après déblayage de la terre accumulée et dépose de la maçonnerie endommagée.

Étienne Kirsch

Diplômé d’État en Architecture

ekirsch.ek@gmail.com

+33 6 24 04 66 62

Turn static files into dynamic content formats.

Create a flipbook
Issuu converts static files into: digital portfolios, online yearbooks, online catalogs, digital photo albums and more. Sign up and create your flipbook.
EK_Portfolio_2025 by Etienne Kirsch - Issuu