Portafolio taller

Page 1

UNIVERSIDAD PRIVADA DEL NORTE
• Centro Cultural • Puerto Maderero
parques Zonales
con

I

ntroducción

Somos estudiantes de Arquitectura dispuestas a cumplír con las expectativas trazadas , desde el géminis del taller .

Esto nos conlleva a tener el logro de proyectar un módulo arquitectónico en este caso siendo un Centro Cultural cómo bien se sabe este es un centro que también puede servir como medio en el cual un determinado pensador exprese sus puntos de vista o un artista exponga su arte. En general estos lugares tienen la finalidad de hacer accesible la cultura para un público amplio, sobre todo en aquellas variantes de la misma que sean de menor conocimiento o poco populares. A continuación presentaremos el centro cultural diseñado por las proyectistas Doble E , tenemos el paso a paso de lo que fue la investigación , anteproyecto y proyecto en función . Así mismo se hace la intervención de vías no asfaltadas y la propuesta de nuestro sector que viene a ser un puerto maderero con Parques zonales

01
05 06 07
02 03 04
contenido INTRODUCCIÓN……………………………………………………………………………… CONTENIDO………………………………………………………………………………….. Proyectistas ……………………………………………………………………………………. Arquitectos……………………………………………………………………………........... DATOS DEL PROYECTO ………………………………………………………………………………......... ▪ Ubicación …………………………………………………………………………………………………. • Problemáticas ……………………………………………………………………………................. • Estrategias …………………………………………………………………………………..…………… USUARIO…………………………………………………………………………………….….. ANÁLISIS FODA……………………………………………………………………………..… CONCEPTO………………………………………………………………………………………………………….. Idea rectora ………………………………………………………………………………………………………… Axometría de concepto ………………………………………………………………………………………. Emplazamiento ……………………………………………………………………………………………………. ZONIFICACIÓN………………………………………………………………………………. PLANTAS ARQUITECTONICAS………………………………………………………… CORTES Y ELEVACIONES Planta 1………………………………………………………………………………………………………………. Planta 2………………………………………………………………………………………………………………. RENDERS Planta 1……………………………………………………………………………………… Planta 2………………………………………………………………………………………

royectistas

KARLA ERIKA BUSTAMANTE LINARES

ETHEL MARÍA CENTURION FIGEROA

P

ocentes a cargo

D
MARIO SERGIO CACHO SANCHEZ CESAR VITERMAN EDQUEN REGALADO

CENTRO CULTURAL

01

atos del proyecto

UBICACIÓN MACRO

LEYENDA

Distrito Callería

D
Departamanto ucayali
UBICACIÓN MICRO
MICRO

PROBLEMATICAS

● Inundaciones.

ESTRATEGIAS PROYECTUALES

• Busca adaptar la forma a las condiciones así leves movimientos que permitan cada una de sus visuales

• Ubicar sitios de atractivos turísticos generando espacios que nos proporcione apreciación.

● Botaderos informales.

● Inasistencia de alumbrado público.

● Río Ucayali están contaminados por aguas grises y negras

● Existe un comercio ambulatorio.

• Analizando el comportamiento diseñaremos un proyecto que respete acople al entorno natural y artificial

• Crear una conexión de circulación perfil natural.

• Se propone agregar ciclovías ciudad al igual que vías de recorrido transporte público con gran aglomeración

• Considerando el tipo de clima vegetación propia del lugar.

• Filtro de contaminantes de aire.

• Sombra en espacios de recorrido

• Se va brindar espacios adecuados ambulantes, a través de la creación apropiadamente para cada actividad

condiciones topográficas del lugar, dando una relación directa con la vía y turísticos y elementos culturales proporcione una mejor captación y de la ciudad y su forma respete sus características y se artificial. circulación entre el perfil urbano y el para la aproximación desde la recorrido peatonal alejando el aglomeración de usuarios. y ecosistema se implementará peatonal. adecuados a los comerciantes creación de espacios acondicionados actividad.

fotos

ESTRATEGIAS PROYECTADAS

INTEGRAR : COBIJAR :

● El edificio funciona como una puerta urbana y espacio integrador que vincula el parque y ciudad con el gesto generar un lleno y un vacío entres u pieza arquitectónica

● La gran cubierta que protege el edificio reúne en su interior una serie de usos mixtos , los cuales ayudan a integrar y articular lo público de lo privado

REACTIVAR:

● El proyecto se ubica como un catalizador que ayuda a mejorar la dinámica del lugar generando mayor conexión con el poblador

SOBREPONER:

● En el edificio se plantea una de manera vertical, los dependiendo de los flujos

una serie de usos programados cuáles se sobreponen y que se produce se ubican los

ARTICULAR:

● El edificio se separa por paquetes los cuales albergan un programa distinto, pero que ambos cuentan con espacios que permiten la interacción de ambas piezas arquitectónicas

CONECTAR:

● Se generan recorridos y pasarelas que ayudan a conectar todo el edificio además de conexiones verticales que se complementan con el proyecto generando eficiencia en sus recorridos

F-Aprovechamiento del agua del río para el riego de áreas verdes y producción de plantas.

En gran parte de la ciudad cuentan con alcantarillado y desagüe

-Lotes no construidos, libres o vacíos para la implementación de parques o recreación pública.

Aprovechamiento de las corrientes del río para transporte de cargas pesadas.

-Vías locales y colectoras sin pavimentar.

-Comercio ambulatorio en las playas y en algunas calles lo que debilita el flujo peatonal y vehicular.

Mala distribución de equipamiento.

-Existe un alto índice delincuencial.

Inundaciones producidas por el aumento del caudal del río en épocas de lluvia.

-Contaminación del rio y quebrada por arrojo de basura.

Usuario

CONCLUSIÓN

• Se observa actividades

ANÁLISIS FODA USUARIO
A
O D

Actividad

CONCLUSIÓN: observa los usuarios que van a trasladarse por el centro comercial y puerto maderero , se analiza a la vez las actividades que realizarán y sus necesidades , para llegar a contrarrestar estas.

SOCIALIZACIÓN ATENCIÓN CONTROL TRABAJO ALIMENTARSE ASEO MANTENIMIENTO DESCANSAR RECREACIÓN COMPRA Y VENTA SEGURIDAD
Necesidad

oncepto

ISOMETRICOS UTILIZADOS

Figura geométrica plana que consiste en cuatro puntos unidos por segmentos de igual medida, que encierran una región del plano, formando ángulos rectos

En geometría plana elemental, un hexágono o hexágono es un polígono de seis lados y seis vértices

•Un rectángulo es un paralelogramo cuyos cuatro lados forman ángulos recto entre sí. Los lados opuestos tienen la misma longitud.

•Un rectángulo cuyos cuatro lados tienen la misma longitud es un cuadrado.

• Teniendo en cuenta las que se logra teniendo cuadrada se considera forma , para después esquina de está para isométrico con retiro importante el manejo de bancas alrededor de esta forma logra reducir espacios módulo

CONCEPTO GENERAL

C
TRANSFORMACIÓN ISOMÉTRICA
• El como por paralelogramos espacialidad • Par social posteriormente

las grandes visuales teniendo una forma considera utilizar esta después extraer una para crear un importante para bancas y vegetación forma , así mismo espacios al interior del

• La cultura es definida como la serie de normas, costumbres, patrones o modelos regula el comportamiento de los individuos o grupos de individuos integrantes de esta.

• Se toma esta información para ensamblarla en la forma y espacio , es por ello que logramos conectar nuestros módulos en paralelogramos junto a la parte del cuadrado luego de la extracción

El concepto se basa en un cuadrado con puntos unidos por segmentos como base y parte fundamental del proyecto para luego darle un retiro por la esquina , así mismo logra conectarse con 2 rectángulos paralelogramos unidos por los extremos dando una volumetría rica en espacialidad.

Par finalizar se propone Hexágonos dónde se va a desarrollar las zona social . Siendo estos integrados al ambiente acompañando posteriormente de vegetación.

• Finalmente se consigue módulo espacialidad dándonos comodidad para un sostenible técnicas

oNCEPTO

EMPLAZAMIENTO

• Cómo bien se sabe un centro cultural es un espacio creado con la intención de servir como medio para la difusión de distintas expresiones artísticas, filosóficas, educativas, etc Puede ser financiado con fondos públicos o privados y suelen ofrecer enseñanza en distintas artes. Para esto se a propuesto el siguiente Isométrico :

Frontis perspectiva + escalas

✓ Se observa el Isométrico Planteado emplazado en el terreno elegido por el grupo de estudio .

✓ Así mismo se distinguen las distintas manzanas y vías: Teniendo en cuenta los ejes primarios y secundarios

C
FOTOGRAFICO
PANEL

ONIFICACIÓN

PRIMER PISO SEGUNDO

z
SEGUNDO
PISO

PRIMER PISO

z
ONIFICACIÓN

SEGUNDO PISO

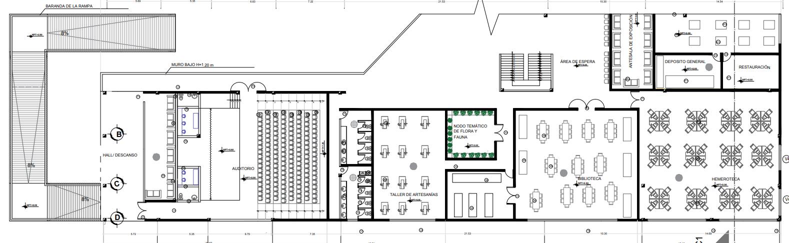
LANTAS

PRIMER PISO

P

SEGUNDO PISO

P
LANTAS
c
ORTES
eLEVACION

ENDERS

r
rENDERS
UNIVERSIDAD PRIVADA DEL NORTE

Turn static files into dynamic content formats.

Create a flipbook
Issuu converts static files into: digital portfolios, online yearbooks, online catalogs, digital photo albums and more. Sign up and create your flipbook.
Portafolio taller by Ethel Centurión - Issuu