Undergraduate Portfolio

Page 1

ETHAN WHITE | SELECTED WORKS 2019-2023

UNDERGRADUATE DESIGN PORTFOLIO

ETHAN WHITE

2019-2023

UNIVERSITY OF FLORIDA

BACHELOR’S OF DESIGN IN ARCHITECTURE

001 002 003

004

005 006 007 008

CONTENTS

SWEETWATER ART GALLERY

MODERN PALAESTRA

CAMUR LOUNGE CHAIR

CHAPEL IN PAYNES PRARIE

MUDCRUTCH MARKET

WATER’S MARGINS

LIGHTFALL

HORIZONTAL RITUALS

SWEETWATER ART GALLERY

FALL 2021 | PROFESSOR MICHAEL

The goal of the project is to explore and enhance designing in the Florida landscape. Through site visits to create a personal understanding of the site and through the studying of local artists that focus their work on aspects of the Florida landscape. The project is an art gallery in a local Gainesville park that not only displays the work of Florida’s landscape, but engages the user with the landscape that is in front of them. The site is a constructed wetland made to imitate the natural means of drainage of water back into the aquifer. Through a series of ponds and wetlands the water is filtered naturally through the foliage and then back into the Alachua sink, which feeds into the aquifer. The art gallery is set on either directly on the path of the park and the two sides of the project go down into the wetlands on either side to engage the user with the landscape.

ETHAN WHITE
001
5 001
DESIGN
002 001 ETHAN WHITE
5
DESIGN
WHITE 001
DESIGN 5 ETHAN

This project is a celebration of the landscape we were given, a meditation on the environment we could lose, and an invitation to the people of Florida to fall in love with our landscape all over again. Barrowing the landscape to view as if it were art goes along with the art displayed in the gallery. The environment is just as important to view as the art itself. The art gallery includes a main permanent gallery, a rotating gallery, an artist-in-residence apartment, and a teaching studio. All of these come together to engage and enhance the experience of the user amidst the Florida landscape.

5
DESIGN
ETHAN WHITE 001

THE MODERN PALESTRA

FALL 2022 | PROFESSOR PETER SPROWLS

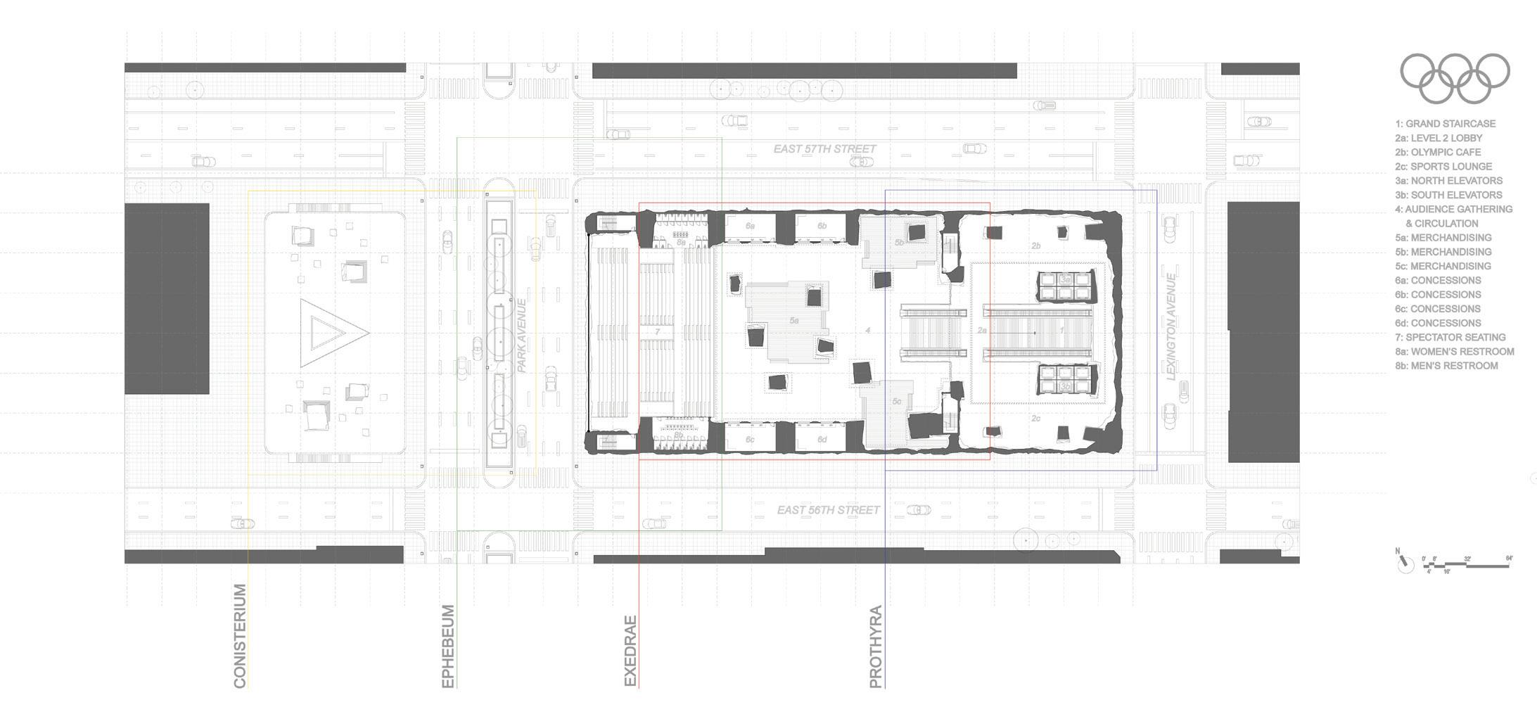
A proposal for an olympic water polo arena along Park Ave in the heart of Manhattan when the Olympics come to New York City. Analyzing Park avenue, the conclusion was come to that Park Avenue is a stadium where people are watched on the streets. This strucutre provides a very inward looking arena for a water polo venue, but the concessions area and support area for all the olympics that take place here and on the street and surrounding area is located up the grand staircase. The second story is the part of the project that is dedicated to serving the public, by serving those coming to attend the Olympics. This was the main goal of the project, to create a program and structure that intertwines with the public landscape of New York City, but primarily Park Avenue. The tower that is inserted into the building has the large atrium over the grand staircase where light is let in and then is housing for the Olympic games.

002 ETHAN WHITE 002 DESIGN 7

Through analysis of New York, specifically Park Avenue a thesis and drawing was come up with that states: “Park Avenue is a football field where New York’s cultural phenomenon play out in front of wealthy spectators.” Through the analysis of the wealth that surrounds Park Avenue where it intersects Billionaire’s row, we came to the conclusion that these tall residential buildings filled with wealthy people is like a stadium where they look down upon the public occupying the streets. The development of program and design intent led to the idea of a carved stone being the building. The main stone is carved, but there are added structures into the building that are a different stone type to differentiate from what is carved and what is built. Primarily the ceilings that are a fabricated structure that is hung from the ceiling. The tower has two skins: one that is structural and one that is for looks, which is chain mail that is draped over the entire thing emulating the look of rock but being permeable to light.

ETHAN WHITE 002
7
DESIGN
WHITE
7 002
ETHAN
DESIGN

SECOND ESTATE STADIUM

SECTION 432 THE FOUR HUNDRED’S STADIUM BOXES GRAND CENTRAL TERMINAL PARK AVE IS A FOOTBALL FIELD WHERE NEW YORK’S CULTURAL PHENOMENA PLAY OUT WITHIN A STADIUM OF WEALTHY SPECTATORS

CAMUR LOUNGE CHAIR

SPRING 2023 | PROFESSOR STEPHEN BELTON

Through the use of bent wood lamination the main idea of the chair was born: lamination, delamination, relamination. The chair is constructed out of white ash wood that makes up the two armatures and seat frame and blue cotton fabric that forms the simple cushions. This is a lounge chair, as the posture is set up for one to be at a slight recline where one’s legs can be comfortably stretched out or rested close to the body. The idea of lamination, delamination, and relamination came together through the use of three different parts of the armatures. The first, as the most complex, has a concave curve and a convex curve. The other two just have on curve, which resulted in the need for three different molds to create each of the three pieces that would come together.

ETHAN WHITE 003 DESIGN 8
003
35” 26”

DESIGN

WHITE
ETHAN
8 003

FALL 2021 | PROFESSOR MICHAEL MONTOYA

Each mold was laid out onto a sheet of plywood, which served as the workspace. The process went as follows: steam the long strips of the wood, then bend around the molds, then glue the strips together, and finally hold the wood in the mold for the glue to dry. Testing the limits of the material and the process of bent lamination drove the design to its final form, the creation of three pieces enhanced the details of the voids where the delamination and relamination occur. The idea of lamination, delamination, and relamination was the driving force in the design process. The details of the chair are centered around the importance of the delamination and relamination

ETHAN WHITE
003 DESIGN 8

CHAPEL IN PAYNES PRARIE

SPRING 2023 | PROFESSOR STEPHEN BELTON

Translating from the chair into a larger structure, the idea of lamination, delamination, relamination was the focus. The main structure of the chapel is the set of columns that laminate together, then delaminate, then relaminate to the column on the other side of the main aisle. The lamination creates a network of wood columns that support the roof and is meant to draw the attention of those experiencing the space. The chapel is enclosed from the elements by a glass wall and sits within a forest of trees in Paynes Prarie along the Bolen’s Bluff Trail.

ETHAN WHITE 004 DESIGN 8
004
WHITE
8 004
ETHAN
DESIGN
WHITE 004
8
ETHAN
DESIGN

Lamination, delamination, relamination. The main idea translating from the chair to the chapel. Similarly to how the chair armatures were made up of pieces laminated together the chapel is still made up of three pieces, but two of the pieces are mirrored and repeated to create an aisle inbetween the columns. Pieces one and two are the same langauge as the pieces of wood in the chair because they stay in the same plane, but piece three is the one that connects the two and breaks the plane to relaminate with the column on the other side. In order for this piece to break the plane, the left and the right side of the column grid are offset. Piece three starts in the same plane at the bottom of the column on the left and then delaminates, breaks the plane, and relaminates at the top of the column on the right. Completing the lamination, delamination, and relamination.

MUDCRUTCH MARKET

SPRING 2022 | PROFESSOR MARTHA KOHEN GROUP - CHRIS FETTES & THOMPSON DRAPER

The name Mudcrutch Market relates to Gainesville and music history, being named in honor of Tom Petty’s high school band, Mudcrutch, that he recently revitalized to create two albums before passing shortly after. The area is meant to serve as an homage to the impact they created on the Gainesville area, as well as music and culture as a whole. Our site being adjacent to Heartwood Soundstage creates an environment that regularly interacts with various types of music, so we wanted to make sure to capture that essence and reflect it within our structure and the surrounding area. The goal of this project was to work with the City of Gainesville to develop the South Main Street area through an extension of Depot Park into a collection of buildings that house local businesses and a proposed pedestrian greenway that works up through the East side of downtown and connects with the Hawthorne Trail on 10th Ave. In order to promote accessiblity to the areas inbetween downtown and Depot and make it more of a connection rather than two seperate areas.

ETHAN WHITE 005 DESIGN 6
005
005 ETHAN WHITE
6
SECTION - BUILDINGS 1 & 2
DESIGN
WEST-FACING

FIRST FLOOR PLAN - BUILDING 1

SECOND FLOOR PLAN - BUILDING 1

ETHAN WHITE 005
6
DESIGN
35
FIRST FLOOR PLAN - BUILDING 2

The site has three main aspects to it, building one that has a local sporting goods store, a music retailer paying omage to Tom Petty, and the entrance to the restaurant that is located upstairs on the second floor and the balcony of this building. Building two is where the markets are aimed to take place under the screened overhand and inside is a collection of smaller local vendors that are there full time. Finally the green space surrounding the two buildings is also places of meeting, performing, and of selling for the markets that are hosted here. The idea is to bring people into the space to foster community interaction and encoruage the use of the South Main Street area. The relation to the Heartwood Soundstage and Depot Park are optimal in creating a community environment in the area.

ETHAN WHITE 005 DESIGN 6

WATER’S MARGINS - OYSTER PAVILION

FALL 2021 | PROFESSOR MICHAEL MONTOYA

The site of the project is located on the west coast of Florida in the area known as the big bend. The intervention is in the brackish water of Shired Island a place that is quiet and untouched. Where the boundary between fresh and salt water is tested, creating this middle boundary of brackish water, combining a river and ocean. The connection of water to land and water to water is important as it creates the edges of this place, quiet and untouched. Tides control the salt marsh high tide and low tide make the marsh two completely different spaces. At low tide things are revealed: oystar beds and high areas of sand. Within these pockets of things is where this project sits. The tide determines the space of the structure, at high tide it is inaccessible and only the upper level is dry. The pavilion is only accessible at low tide through a series of ‘stepping stones’ that lead the visitor in and out of oyster beds to reach the pavilion.

ETHAN WHITE DESIGN 5 006
006
WHITE
5 006
ETHAN
DESIGN

LIGHTFALL 007

FALL 2022 | PROFESSOR HASSAN AZAD

UF LUMINAIRE COMPETITION FIRST PRIZE 2022

Context

The context is a small/short table or on the ground. The fixture is designed for direct lighting towards the ground thus giving more ambient lighting in a room. Where the lamp is located in a room or outside is important, it directs a lot of light downward towards the ground and illuminates that primarily so the floor material or table material is important for the context.

Concept Specifications

The lamp is a slender concrete form with a curved incision into one side with an inset light above. The precise curved incision into the concrete is to direct the light and to be the only illuminated part of the entire lamp. The light shines downward onto the curved incision into the concrete providing mainly direct lighting, but also some ambient light. Using a small bulb (G9) the wiring is simple as running it down through the concrete which has a half inch cylindrical opening inside for the wiring to run down to the bottom where it runs out the back of the lamp to plug into the wall.

Bulb Type: LED

Bulb Size: G9

Color Temperature: 2700K

Lumen Rating: 450 Lumens

Dimensions: 4” L x 4” W x 25” H

ETHAN WHITE 007 DESIGN 7

(G9) the wiring is simple as running it down through the concrete which has a half inch cylindrical opening inside for the wiring to run down to the bottom where it runs out the back of the lamp to plug into the wall.

lot of light downward towards the ground and illuminates that primarily so the floor material or table material is important for the context. The small table is the ideal

lot of light downward towards the ground and illuminates that primarily so the floor material or table material is important for the context. The small table is the ideal

Concept

Concept

Specifications

is useful for that context. The fixture is designed for direct lighting towards the ground thus giving more ambient lighting in a room. Where the lamp is located in a room or outside is important, it directs a lot of light downward towards the ground and illuminates that primarily so the floor material or table material is important for the context. The small table is the ideal

Bulb Type: LED

Bulb Size: G9

Concept

Color Temperature: 2700K

Lumen Rating: 450 Lumens

Dimensions: 4” L x 4” W x 25” H

The lamp is a slender concrete form with a curved incision into one side with an inset light above. The precise curved incision into the concrete is to direct the light and to be the only illuminated part of the entire lamp. The light shines downward onto the curved incision into the concrete providing mainly direct lighting, but also some ambient light. Using a small bulb

The lamp is a slender concrete form with a curved incision into one side with an inset light above. The precise curved incision into the concrete is to direct the light and to be the only illuminated part of the

The lamp is a slender concrete form with a curved incision into one side with an inset light above. The precise curved incision into the concrete is to direct the light and to be the only illuminated part of the entire lamp. The light shines downward onto the curved incision into the concrete providing mainly direct lighting, but also some ambient light. Using a small bulb (G9) the wiring is simple as running it down

Specifications

2 3 4
2 3
2 3
2 3 4 PLAN SECTION ELEVATION ISOMETRIC LIGHT SOURCE

HORIZONTAL RITUALS

SPRING 2021 | PROFESSOR MARK MCGLOTHLIN

A school for advanced study. For those who want to continue education past all the degrees one can acquire. A building for twenty residents to come and stay with classrooms, studios, a library, and a large lecture hall. The rhythms of living here are important and the connection to the surrounding land, residents are encouraged to go and be in the land around them to refresh themselves as a routine everyday. The courtyard space encourages interaction between the residents to share and challenge one another in what they are studying and to teach one another.

ETHAN WHITE DESIGN 4 008
008
WHITE 008
DESIGN 4 ETHAN

UNDERGRADUATE DESIGN PORTFOLIO

ETHAN WHITE

2019-2023

UNIVERSITY OF FLORIDA

BACHELOR’S OF DESIGN IN ARCHITECTURE

Turn static files into dynamic content formats.

Create a flipbook
Issuu converts static files into: digital portfolios, online yearbooks, online catalogs, digital photo albums and more. Sign up and create your flipbook.