

![]()


October 22, 2025
• 276.478-acre property located at 4600 Woodlands Boulevard
• Existing community of approximately 892 single family homes
• Approved to build 335 single family homes



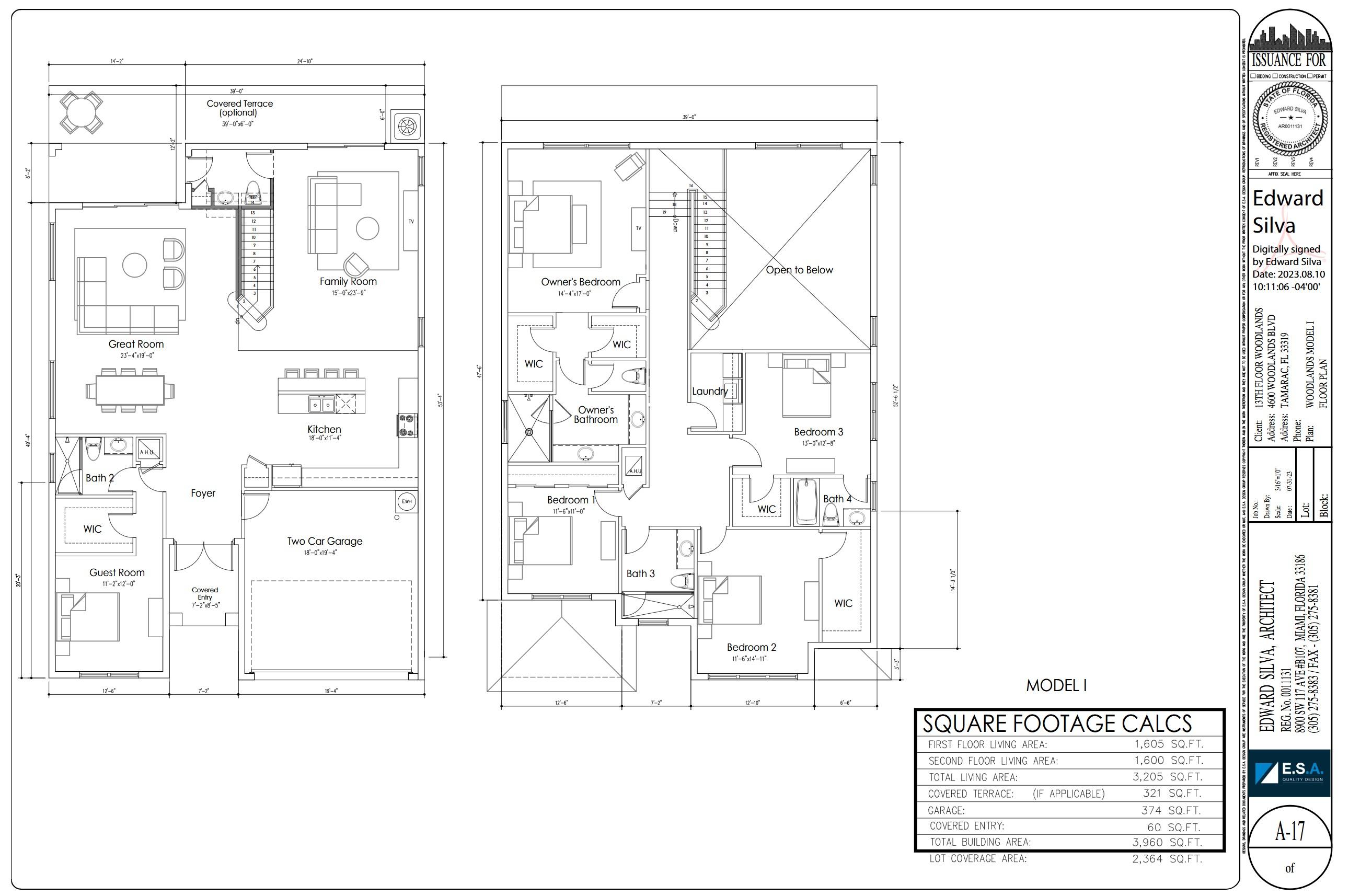
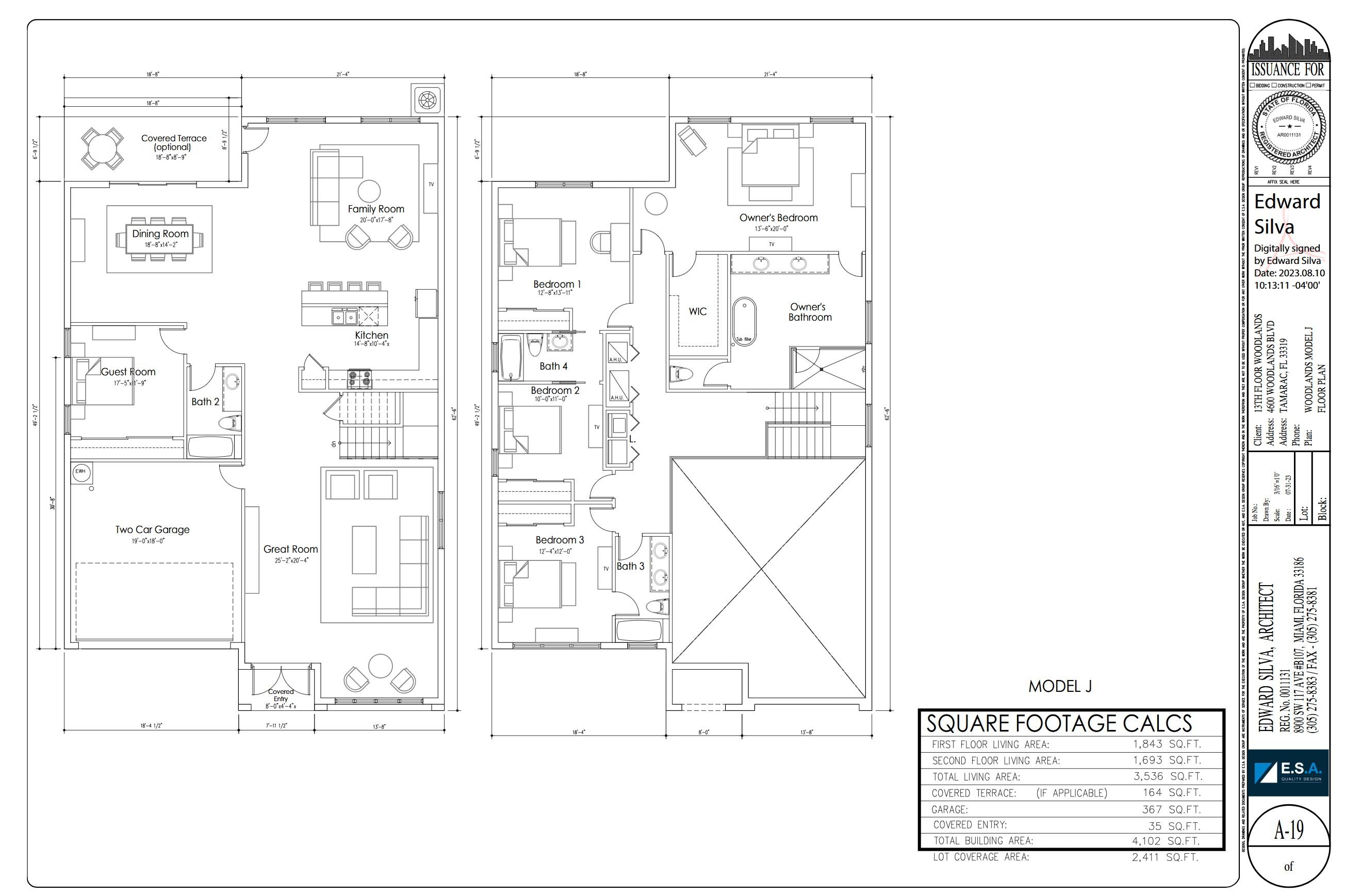
• Submitted a minor site plan amendment to allow for additional home models
• 1-Story in Pods A-F, and 1 and 2-story homes in Pod G
• Seeking variance to increase lot coverage by an average of 150 sq ft to allow for some models to provide covered patios


















Section 10-2.6(4) Lot Coverage. Lot coverage shall be the portion of a lot covered by principal and accessory buildings and structures, as measured from the outside of the building or structure at ground level, and expressed as a percentage of total lot area.
(a) Calculation of lot coverage shall exclude garages, covered patios, carports, pools, uncovered patios, and open mesh-screened patios.
(b) Calculation of lot coverage shall exclude any roof area from which stormwater runoff is captured and used onsite for purposes other than irrigation. Lot coverage shall include all other roofed areas, excluding roof overhangs not supported by columns.


• Prospective purchasers will have the option to select their home from the full suite of allowable models within the particular pod. To accommodate that full suite of models, the applicant is requesting a variance to allow for an increase in lot coverage.
• Approving the variance will result in a greater differentiation of home models and a better offering.
• The Applicant is requesting a variance to allow for an increase in lot coverage from forty (44) percent to:


MODELS 1A/1B & 5A (POD


MODELS 13A/13B (POD G)



• On April 5, 2017, for the Woodmont Country Club, the Planning Board approved a variance to allow a maximum lot coverage of 57% in lieu of the required 40% coverage (Case 6-B-16). For the Woodlands, the maximum lot coverage requested is 54.9%.
• Similarly, in Cases 2-B-15 and 8-B15, the Planning Board approved a variance for a maximum lot coverage of 50% in lieu of the required 40% maximum lot coverage. These two properties are zoned R-3, same as the Woodlands.





8036 NW 78th St 7681 NW 84th Ln


• Larger Homes = Support property values in Woodlands District
• All models include covered patio
• Added 3-car garages to avoid swale and street parking






• $2,227,820 in annual revenues to the City once construction
• $7,160,108 in one-time revenues
• Improvements to the street network within the existing Woodlands
• Improvements to the drainage system within the Woodlands
• Increase property values in the Woodlands and new tax base added to the City









