R Q U I T E C T U R A

C R I T E R I O E S T R U C T U R A L - T R A B A J O
E S C A L O N A D O
E S T R U C T U R A S
E S T R U C T U R A L D E L O S A S
P L A T A F O R M A D O S
E S T R U C T U R A S M E T A L I C A S


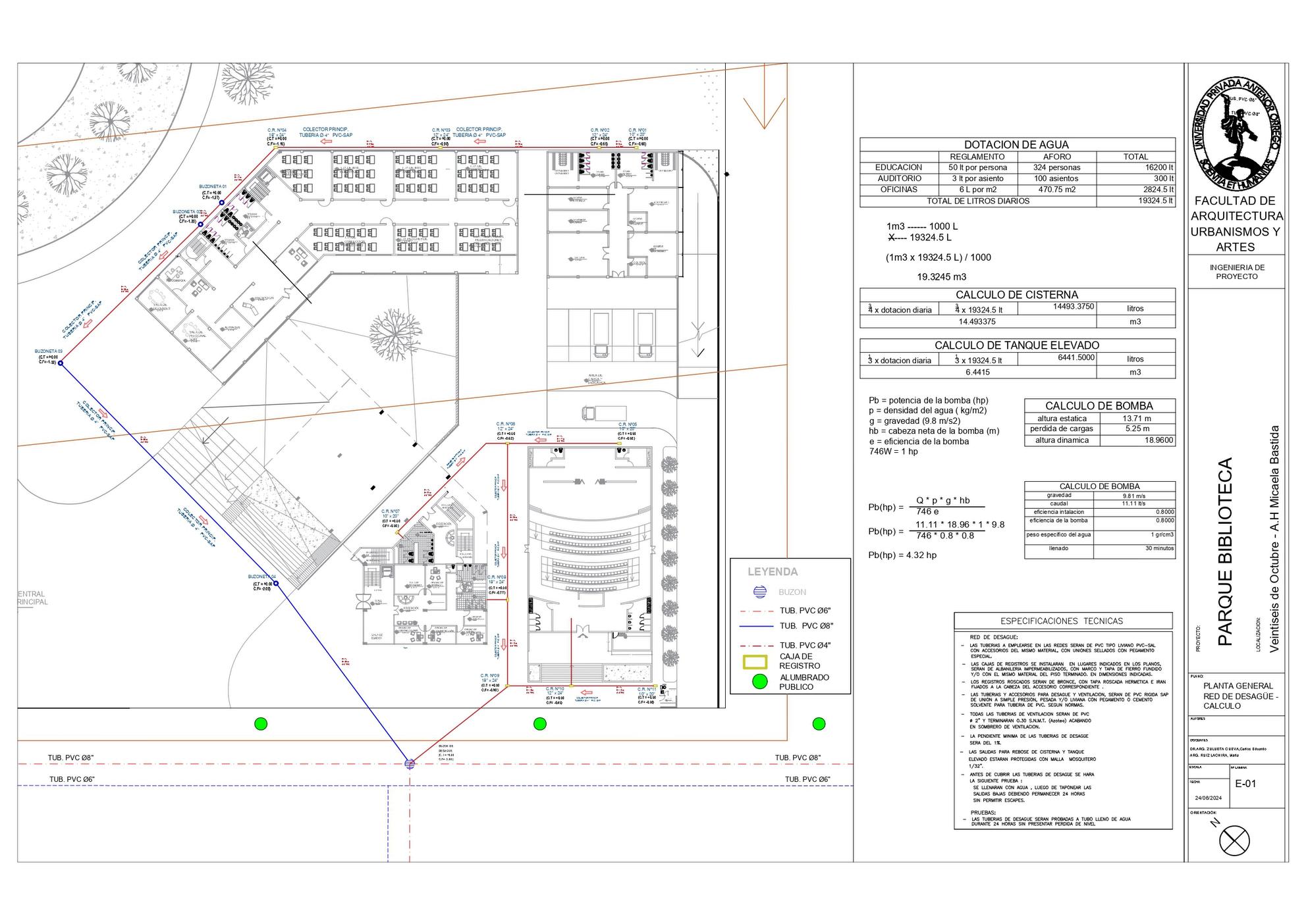
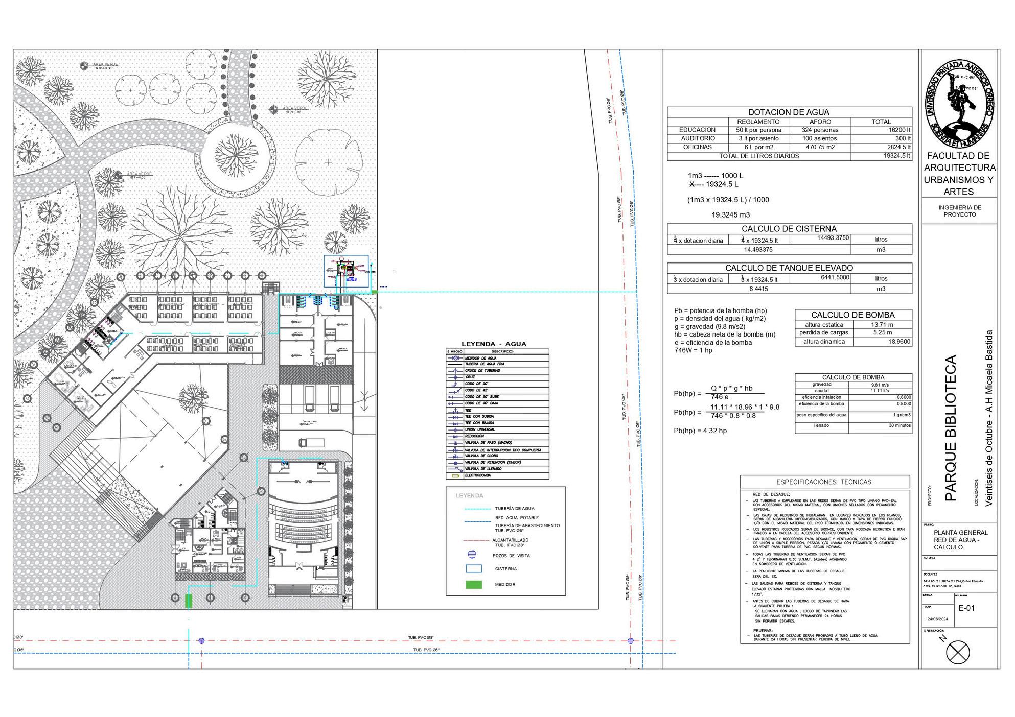
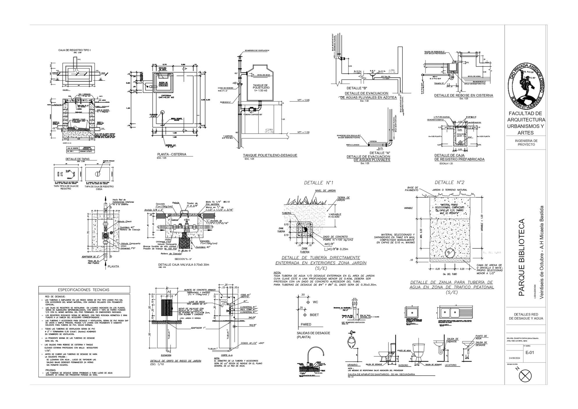
La Municipalidad Distrital de Veintiséis de Octubre en su acción de servicio a la población de su jurisdicción realizó el Expediente Técnico de “PARQUE BIBLIOTECA CON NEUROARQUITECTURA PARA LOS ADOLESCENTES DEL DISTRITO VEINTISÉIS DE OCTUBRE, PROVINCIA DE PIURA - PIURA"con el fin de brindar una adecuada calidad de servicio educativo a la población de dicho sector. En tal sentido, es necesaria la ejecución de este proyecto que comprende las acciones a desarrollar para la “PARQUE BIBLIOTECA CON NEUROARQUITECTURA PARA LOS ADOLESCENTES DEL DISTRITO VEINTISÉIS DE OCTUBRE, PROVINCIA DE PIURA - PIURA", la mejora de la integración de la comunidad y promoviendo la educación.



Bloque de Educac ón















B oque de Educación

Existen criterios prácticos para determinar el peralte de vigas, que dan buenos resultados, con cargas vivas no excesivas. Las vigas son elementos sometidos a flexión, el peralte deberá estar entonces en función de la longitud y la carga. La norma de diseño E-060 nos da unos requisitos que debe cumplir la sección, para asegurar el buen comportamiento estructural de una viga sismoresistente, así como también para controlar la deflexión. Al someterlos a la teoría se procederá al cálculo de peralte L/10 o L12, siendo L=luz libre de la viga, y la base B = 0.3 H @ 0.5 H y como mínimo de ancho 35 cm. En sistemas sismorresistentes, además la norma E-060 recomienda un peralte mínimo de L/16. Por lo tanto, podemos dar como un avance que los elementos estructurales de la estructura cumplen estos requisitos, de esta forma se predimensionan todas las demás vigas.



Las vigas se encargan de transferir las cargas mediante flexión y corte, desempeñando además la función de diafragma rígido. Debido a que contribuyen significativamente (más del 40%) a la masa total de la estructura, es crucial considerar la posibilidad de aligerarlas Pueden ser losas aligeradas en una y dos direcciones, macizas, nervadas, etc.
A l i g e r a d o s e n u n a d i r e c c i ó n :
L a r e c o m e n d a c i ó n p r á c t i c a p a r a s u
Viguetas : 10 cm de ancho
Losa superior : 5 cm
Sobrecarga : < 300 Kg/cm2
Luces = < 7,5 m
H = 3.10/25 = 0.124 ~ 0.17 m = 0.20 - 0.17 m (Como mínimo)
Se tiene :
- Altura de ladrillo = 0.12 m - Altura de losa Final = 0.05 m


De acuerdo a la norma E 0.20 en la tabla 1 de cargas vivas mínimas repartidas, observamos que para aulas son 250 Kgf/m2. Es por eso que consideramos la losa aligerada de 0.25 m
Z A P A T A S C E N T R I C A S :
Dimensión de Zapata - Eje 2 – 3 – 5
Uso: 1300 Kg / m2
A tributaria: 20 m2
Lh : 4 m
Lv: 5 m
N° piso : 3
P serv : 78 tn
T: 2 m
S: 1.7m
Q est : 22.94 tn / m2
Q adm : 25 tn / m2
Q est < Q adm































