Arquitectura Portfolio
Proyectos2019-2024
ElizabethEstrada
estrada.elim@outlook.com (722)818809


Nombredelproyecto:
Proyectosustentable,desdeelentendimientodelosecosistemasestatales paraunacuarioenelZoológicomiguelÁlvarezdelToro,enTuxtlaGutiérrez Chiapas
Año: 2019
Objetivosdelproyecto:
Identificarlosprocesometodológicosparadesarrollareldiseño arquitectónicoporetapasdeunacuariodeespeciesendémicasenel Zoomat,desdeunenfoquesustentableenlaconcepcióndelospaisajes naturalesdelosecosistemasacuáticosdelestadodeChiapas;considerando unaconstrucciónprogresivadeledificio

Localización:






















Maquetadeestadoactual





MaquetadenivelesMaquetadecubiertas

Nombredelproyecto: Privado
Año: 2022
Objetivosdelproyecto: Identificaryrealizarunadescripciónprecisadelprocesoconstructivo, utilizandoherramientas3Dy2D.
Localización:















Nombredelproyecto: Privado
Año: 2022
Objetivosdelproyecto: Identificaryrealizarunadescripciónprecisadelprocesoconstructivo, utilizandoherramientas3Dy2D.
Localización:
































CódigoQRparavisualizaciónderecorridovirtualdeproyecto




















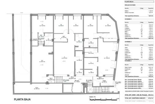
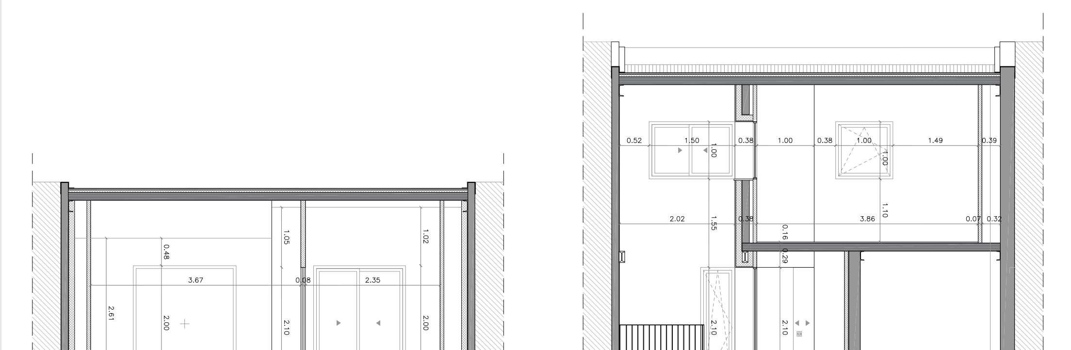
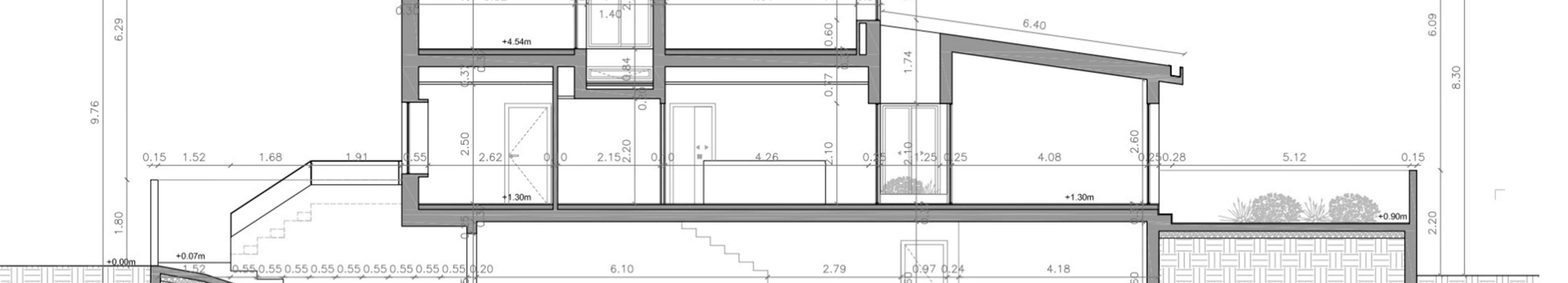
Nombredelproyecto: Privado
Año: 2024
Objetivosdelproyecto: Escaenodeviviendaplurifamiliar,paralaobtencióndeplanos,seccionesyfachadasdelestadoactual.


Modelodepuntosobtenidodellevantamiento3D: Planosobtenidosdelmodelodepuntos.





















