

PORTFOLIO


Lors de mon premier jour à l’école d’architecture de l’ENSAPLV, un professeur a cité : «A la fin de cette éducation, vous ne regarderez jamais le monde de la même manière.» Durant mes quatre années d’études en architecture, j’ai découvert que est très complexe et même les petites choses que nous voyons et expérimentons tous les jours ont un niveau incroyable de détails. La passion est un ingrédient clé de l’étude et de la pratique de l’architecture. Et l’architecture est synonyme de vie, de style de confort. C’est avec passion, inspiration et travail que j’ai vécu ces dernières années. Se rappeler que les détails sont importants et que le travail acharné ne déçoit jamais. J’ai appris à interagir avec les gens pour les inspirer et m’inspirer. Ce portfolio est une synthèse de certains des projets sur lesquels j’ai travaillé. Ils sont organisés par sujets. A la fin, vous trouverez des travaux personnels. Les travaux de ces dernières années consistent en des présentations de projets non numériques et numériques. Au cours de ces années, j’ai beaucoup grandi en tant qu’architecte. Techniquement et artistiquement. En plus du travail scolaire, l’expérience que j’ai acquise lors de mes stages, a renforcé ma confiance en ce qui concerne ma capacité à traduire mes idées en un projet concret.








WORK-SHOP ILHA DO BORORE SAO PAULO
- Entre a cidade informal e a questão ambiental”-
Le but de ce workshop était : De découvrir - Sao Paulo, Brasilandia une favela très connue, et d’apprendre d’une autre realite, d’un autre mode de vie d’une autre amenagement urbain et d’un architecture plus primitive. On devrai trouver et proposer une activite comme solution pour la préservation de cet lieu specific au sud de Sao Paulo.













L A CRECHE
-LES P’TITS BOUTS
D’PAILLE -
Creche Parisienne en fond de parcelle. Il s’agit de une construction en paille et avec des materiaux biosources.





Z AGORIA 01. -Projet
personnel -




Maison de vacances. Une villa localisé dans une village entre la Grece et l’Albanie. Au programme, 4 chambres, 1 cuisine d’hiver et une cuisine d’été, 3 salles de bain et 2 espaces de vie. et une petite cantine de vin. le terrain est très intéressant. il y a deux niveaux différents et la maison est en deux parties.
Le client souhaite conserver certains éléments de la maison. Ainsi, en collaboration, nous avons réussi à faire un bon mélange entre le traditionnel, l’ancien et le nouveau, le moderne.

Photo de localisation

Detail de la toiture








vue de haut
Cuisine d’été
0.5
Projet

LE MUSEE OMBREE VS LUMIERE
-The bouncing boxes -
Genesis vient du mot genèse, ensemble d’un système mis en place pour retourner à la source. Nous avons refaçonné ce parcours sur le rythme du rayonnement lumineux qui s’infiltre peu à peu jusqu’à totalement s’approprier l’espace. Nos intentions: Circulation facile, objet plastiquement intéressant. Il y a une entrée et une sortie séparée l’une de l’autre. A l’entrée il y a la réception où l’on peut trouver les billetés, à droite il y a les toilettes et un vestiaire en face. L’entrée du bâtiment se trouve dans l’une des boites et est éclairée par une lumière zénithale. La deuxième boîte est un mur en “briques” qui fait entrer la lumière et donne à l’ambiance l’effet des briques sur les murs. Au premier étage il y a un mur ombre et après on se retrouve dans la boite de “grillage” qui donne l’effet de vitesse.






Les premières boîtes sont connectées de l’extérieur où il y a des terrasses et des bancs pour se reposer. La pièce numéro 5 c’est l’éclipse. La 6eme boîte est composée de deux petites boîtes.
The building entrance is located in one of the boxes that is illuminated by an overhead light.


Tout l’espace est vitré, ça offre des vues magnifiques et les gens peuvent contempler la nature puisque c’est la boîte la plus haute. Après on passe dans les boîtes colorées. La dernière boîte où il y a la cafeteria : c’est le cocon. Le cocon est suspendu au plafond et la rampe tourne autour et les gens voient la lumière et l’ombre qu’elle fait.
The “mesh” box composed of verical panels placed close to each-other that give the impression of velocity.

In the last box there is the exit, the cocoon. The cocoon is suspended from the ceiling and grabs attention thought its interaction with the light and the shadow it casts.

MAISON INDIVIDUELLE 1
-Maison de vacances -
Un de mes premiers projets dans ma première année d’architecture. On m’a demandé de trouver un site et de concevoir une «villa» concernant l’orientation et les limites des mètres carrés.
Ma maison est située dans le sud de la France face à la vallée. Le première projet ou je me suis familiarisé avec la notion de «no walls » et de transparence.




PLAN R+1
COUPE AA’
MAISON INDIVIDUELLE 2
-Maison a patio -
Une maison individuelle conçue par moi sur ma deuxième année d’architecture, dans un site de 192 m2, 24 m de long et 8 m de large et nous avons été obligés de utiliser un patio. Mon désigne était basé sur deux principes. Tout d’abord, je voulais séparer l’espace de nuit et l’espace de jour. J’ai décidé de placer les chambres au RDC et la cuisine et l’espace de vie dans le 1 étage. Ma décision sur cette séparation était fondée sur deux raisons. D’abord le site était entouré de murs de 2,5 m de haut et je voulais donner plus de


L’évolution du projet à travers des maquettes d’étude.



The final model made by me.



Quand on monte à l’étage on a une belle vue, ça donne le sentiment de passer dans un autre “monde”, et c’est pour profiter et partager cette vue que j’ai consacré tout cet espace au séjour. J’ai décidé de faire cette séparation entre espace nuit et espace jour parce que pour moi l’espace jour est le plus utilisé dans la maison. C’est là qu’on passe le plus de temps. Donc le séjour donnent sur le jardin en nord et salle à manger et la cuisine donnent sur une terrasse en plein sud avec le patio au milieu



COUPE




L OGEMENT COLLECTIF 1
-35 Logements -
Il s’agit de partir de l’espace du logement pour parvenir à celui d’un ensemble de logements à l’intérieur d’une parcelle située dans un tissu plus dense.
Il y a deux types de dispositifs de lumière naturelle. La première est une fenêtre en hauteur (2m) qui entoure la chambre et le deuxième c’est de hautes vitres de 2 m 50 par 50 cm.



Le terrain considéré est un regroupement de parcelles à Paris 10/12 rue Arthur Rozier dans le dix-neuvième arrondissement. Ces parcelles dont les bâtiments existants sont en cours de démolition est orientée ouest, sur la rue.
Mon projet est composé de deux bâtiments. Un en longueur et l’autre en largeur. La circulation est centrale et éclaire naturellement, il y a deux cages d’escalier au total.
Au total il y a 35 logements différents. Des duplex des T4 des T3, T2 et T1. Avec un croisement au milieu pour ramener de la lumière d’ouest au plus de logements possible.


COUPE CC’ 1 COUPE CC’ 2
Le schéma de la lumière












ELEVATION ARTHUR ROZIER STREET SIDE


L OGEMENT COLLECTIF 2
-9 Logements -
Dans ce projet il s’agit de concevoir un immeuble de 9 logements collectifs dans un site situé au 30 bis rue de Nantes Paris. La règlementation urbaine établit une profondeur de 24 m entre les deux façades et en gardant l’alignement des façades existantes.


Ces locaux conduisent à la création de deux patios ce qui permettrait d’éclairer et de ventiler certaines parties des appartements. Les patios divisent pratiquement le bâtiment en deux parties en créant en quelque sorte deux corps de bâtiment. La façade est dynamique, composée de voletés en en acier perforé qui évitent la surchauffe des pièces.



ELEVATION OUEST



ELEVATION SUD


ELEVATION NORD

ELEVATION EST





COUPE BB’
COUPE AA’
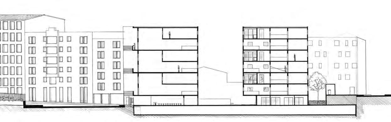
L OGEMENT COLLECTIF 3
-60 Logements -
La parcelle est située dans le dix-neuvième arrondissement prêt du canal de l’Ourcq. C’est une parcelle d’une forme non régulière. J’ai créé deux cours dans la parcelle et j’ai créé deux groupes de logements séparés, qui sont liés par les formes et matériaux. Les duplex ont une couleur différente et dans la façade principale on peut le distinguer grâce à un croisement dans les façades et une grande fenêtre qui fait deux étages en face de l’escalier. Au total le complexe a trois cages d’escalier, ventilées naturellement. Aussi une passerelle dans le bâtiment principal fait partie de la circulation et sert comme distributeur pour le premier grand bâtiment côté canal. Deux terrasses sont accessibles avec une vue sur le canal et qui profite de la lumière du sud. Les logements sont: 10-T4 duplex, 10-T3, 15-T2 et 25-T1.








B’
COUPE AA’
COUPE BB’
COUPE
ELEVATION OUEST

ELEVATION EST


PERSPECTIVE D’ESCALIER
PERSPECTIVE D’ENTREE

PERSPECTIVE DE L’INTERIEUR D’UNE APPARTMENT

L’ECOLE
-L’école maternelle-
Le projet de l’école c’était un des projets que j’ai faits en 2e année. La parcelle est située au bord du canal d’Ourcq. Une parcelle pentagone irrégulière et aussi en pente. Le programme conte de faire une école maternelle avec un gymnasium. Je suis base sur l’étude que j’ai faite dans le travail dirigé d’ambiance, pour construire mes salles de classe avec les bons dimensionnés, couleurs et ouvertures. Concernant le gymnasium, j’ai velu utiliser une technique de double paroi. Vu que la façade le plus large est orienté plein sud, j’ai utilisé des colonnes comme la structure pour filtrer la lumière et après la deuxième couche est une paroi qui fasse pas toute la hauteur qu’empêchent les rayons directs d’entre pour éviter le surchauffent, filtre la lumière et fasse un joli jeu de lumière. Les salles sont toujours connecte et avec des vues soit sur le canal soit sur la cour. L’éclairage des salles est diffèrent selon leur fonctions et le besoin de chaque espace. Les salles d’informatique sont place en RDC. Les salles de cours ont les même dimensionnes et orientation.













La facade principale. Le vue du jardin.
Situation.
DEVELOPPEMENT URBAIN 1
-Le transmission du savoir à Villeneuve le Roi-
Une banlieue située au sud de Paris. C’est un territoire avec beaucoup de potentiel mais pas très développé. Après avoir analysé la zone et ses environs, nous avons décidé de nous concentrer sur cette partie de banlieue et de rendre la zone dans un «quartier d’apprentissage». Un quartier où les étudiants enseignants et chercheurs trouveraient ce dont ils avaient besoin. Très proche des nouvelles universités et des stations de transports en commun. Une “ville” dédiée à l’apprentissage.




CITE






LA CITE DE TRANSMISSION DU SAVOIR A VILLENEUVE-LE-ROI
Une connexion de Villeneuve St-Georges et Villeneuve-Le-Roi par tramway et connexion centre-ville et site par
Les deux places publiques connectent par la promenade.






Le voie de bus.
Le mixite des usages.
Une banlieue situe au Nord de Paris. Un territoire traverse par des voies routières importantes. L’A86, et deux rues nationales. Notre idée générale cette de réaménage les connections existante entre le nord et le sud mais aussi de rajoute une connexion est- ouest.
Apres avoir analysé la géographie et la histoire de ce territoire on trouve une solution. 1 Le construction d’une « Eco-quartier » au bord de la Seine et des bâtiments de bureau dans la cote des rails.




Bureau
Bâtiments publiques
Bâtiments importantes
Logements
Batiments scolaires
Calcules de densite
-L e Cabane a Cap Martin-
Pour le concept de design de cette petite cabane, basée sur la cabine de Le Corbusier, une structure en bois est utilisée. Le choix est venu comme une raison des intentions suivantes: -Un processus de construction facile -Transport facile -Longue durée de vie du bâtiment -Les performances thermiques






Un isolant est utilisé à l’intérieur et à l’extérieur des murs. La façade est couverte de bardage vertical. Aussi nous avons prêté attention à l’organisation intérieure de l’espace, en organisant un petit coin cuisine, un studio et beaucoup d’espace de rangement.
L’objectif de ce projet était d’atteindre une puissance de chauffage de 20 * C en hiver et de 189.301 W / m.
-Corten pavilion-
Un pavillon en forme de cuboïde. La structure en acier avec des plaques cor-ten. Les plaques sont positionnées de manière à réduire la diffusion de la lumière et à utiliser la couleur corten caractéristique pour in fl uencer l’atmosphère interne.







-Le bateau -
Un bateau qui a été travaillé pendant une semaine. Sa structure a été modélisée dans Rhinoceros (logiciel). L’objectif était de créer un bateau qui pourrait traverser le canal de l’Ourcq en utilisant le vent.



Le cinéma est une des équipements publiques construit a Carrefour Pleyel Saint Denis. Un bâtiment de 3 étages avec un demi-niveau au sous-sol. Les étages communique avec l’un l’autre a travers les patios et les ouvertures dans les plafonds et sol. Chaque salle de cinéma a deux ouvertures. L’entrée est dans la cote de la grande halle et la sortie est dans la autre cote.
Il y a des différentes boutiques dans chaque étage et dans le troisième étage est situé une restaurant avec un ace sur une grande terrasse oriente plein sud.

2eme etage

-Le pont en spaghetti -
Nous avons décidé de faire un pont en arc métallique (acier) par-dessus, avec le tablier suspendu à l’arc qui comporte une semelle joignant chacune des extrémités de l’arc, dénommée tirant, qui a pour effet de travailler en traction et de reprendre tous les efforts horizontaux transmis par l’arc, ce qui induit que dans ce type de pont ne sont transmis que des efforts verticaux. Notre maquette de pont en spaghetti qui travaille de la même façon que le pont métallique, qui résiste bien à la traction et la compression, de plus il supporte un charge de 2 Kg au minimum et franchit une distance de 50 cm. Le junction au millieu du pont.










La Rotonda Palladio
National historical museum, Tirana 2013








“Spring” 65x50 cm
“The dream” 65x50 cm Encre de chine
Monochrome 65x50 cm x 4
“Silent night” 30x30 cm
“Color crush” 60x200 cm



“Vegetation “ Instalation 2015
