ARQ. ESTEFANY RAMOS GUERRA
Santiago de Chile, Chile
estefany.ramos92@gmail.com +56982274127

SOY ARQUITECTA CON ESPECIAL INTERÉS EN EL DISEÑO URBANO, DESDE LA PRÁCTICA PROFESIONAL Y LA INVESTIGACIÓN. A CONTINUACION, PRESENTO MIS PROYECTOS MÁS DESTACADOS.
I AM AN ARCHITECT WITH SPECIAL INTEREST IN URBAN DESIGN, FROM PROFESSIONAL PRACTICE AND RESEARCH. BELOW, I PRESENT MY MOST OUTSTANDING PROJECTS.
PROYECTO / PROJECT: “VIVIENDA SOCIAL Y ESPACIO PÚBLICO EN BALCONES DE CHILINA”
TIPO / TYPE: DISEÑO URBANO ACADÉMICO/ ACADEMIC URBAN DESIGN, THESIS AÑO/ YEAR: 2016
LUGAR/ PLACE: AREQUIPA - PERÚ
RESUMEN:
DESARROLLO DE VIVIENDA SOCIAL INCREMENTAL Y ESPACIO PÚBLICO PARA LA CONSOLIDACIÓN DE UN BARRIO EN LA PERIFERIA DE LA CIUDAD. DESARROLLA LA IMPORTANCIA DEL ESPACIO PÚBLICO, EN SUS DIFERENTES ESCALAS, EN LA VIVIENDA COLECTIVA. POR OTRO LADO, SE DESARROLLA INFRAESTRUCTURA BARRIAL, RELEVANTE PARA EL DESARROLLO DE LA COMUNIDAD EL PROYECTO CONTIENE TRES ESCALAS DE DESARROLLO: BARRIO, CONJUNTO HABITACIONAL Y VIVIENDAS.
ABSTRACT:
DEVELOPMENT OF INCREMENTAL SOCIAL HOUSING AND PUBLIC SPACE FOR THE CONSOLIDATION OF A NEIGHBORHOOD ON THE PERIPHERY OF THE CITY. DEVELOPS THE IMPORTANCE OF PUBLIC SPACE, IN ITS DIFFERENT SCALES, IN COLLECTIVE HOUSING. ON THE OTHER HAND, NEIGHBORHOOD INFRASTRUCTURE IS DEVELOPED, RELEVANT FOR THE DEVELOPMENT OF THE COMMUNITY
THE PROJECT CONTAINS THREE SCALES OF DEVELOPMENT: NEIGHBORHOOD, HOUSING COMPLEX AND DWELLINGS








IMAGENES 1, 2 Y 3 DE TIPOLOGÍAS DE VIVIENDA INCREMENTAL / IMAGE 1, 2 AND 3 INCREMENTAL HOUSING TYPOLOGIES
PROYECTO / PROJECT: “HOTEL EN CUSCO” TIPO / TYPE: CONCURSO / COMPETITION
AÑO/ YEAR: 2016
LUGAR/ PLACE: CUSCO - PERÚ
RESUMEN:
EL PROYECTO FUE DESARROLLADO CON UN EQUIPO DE DISEÑO (L. CALATAYUD, I. NIETO Y A. MEZA). SE ENFOCA EN LA TRADICIÓN TIPOLOGICA DE LA ARQUITECTURA CUSQUEÑA. SE GIRA SUS ESPACIOS HACIA
UNA PLAZA INTERIOR QUE FUNCIONA COMO ELEMENTO ORGANIZADOR. LA PROPUESTA SE ENRIQUECE CON LA CONEXIÓN ENTRE LA TIERRA Y EL CIELO; MEDIANTE UNA TRANSICIÓN ENTRE EL PATIO CENTRAL Y EL CIELO, TOMANDO COMO REFERENCIA EL SISTEMA CONSTRUCTIVO DE TEJA ANDINA.
ABSTRACT:
THE PROJECT WAS DEVELOPED WITH A DESIGN TEAM (L. CALATAYUD, I. NIETO AND A. MEZA), FOCUSES ON TYPOLOGICAL TRADITION OF ARCHITECTURE IN CUSCO, TURNING ITS SPACES TOWARDS AN INTERIOR SQUARE THAT ACTS AS AN ORGANIZING ELEMENT. THE PROPOSAL IS ENRICHED WITH THE CONNECTION BETWEEN EARTH AND HEAVEN; THROUGH A TRANSITION BETWEEN THE CENTRAL PATIO AND THE SKY, TAKING AS A REFERENCE THE CONSTRUCTION SYSTEM OF ANDEAN TILE


PROYECTO / PROJECT: REGENERACIÓN URBANA /URBAN REGENERATION
TIPO / TYPE: ACADÉMICO / ACADEMIC
AÑO/ YEAR: 2019
LUGAR/ PLACE: EJE ESTACIÓN CENTRAL SANTIAGO - CHILE
RESUMEN:
EL PROYECTO FUE DESARROLLADO DENTRO DEL TALLER DE ESPECIALIDAD MAESTRIA PROEYCTO URBANOP | UC. SE PROPONE FORTALECER UN EJE URBANO BASADO EN NÚCLEOS (CENTRALIDADES). ADEMÁS, SE PROPONE UN SISTEMA DE ESPACIOS PÚBLICOS Y UNA MEZCLA DE USOS. LA INTENCIÓN PRINCIPAL ES GENERAR UNA COSTURA URBANA ENTRE ESTE EJE CON LOS BARRIOS LATERALES.
ABSTRACT:
THE PROJECT WAS DEVELOPED WITHIN THE MASTERY SPECIALTY WORKSHOP PROYECTO URBANO | UC. IT IS PROPOSED TO STRENGTHEN AN URBAN AXIS BASED ON CENTERS (CENTRALITIES). IN ADDITION, A SYSTEM OF PUBLIC SPACES AND A MIX OF USES ARE PROPOSED. THE MAIN INTENTION IS TO GENERATE AN URBAN SEAM BETWEEN THIS AXIS WITH THE SIDE NEIGHBORHOODS.




PROYECTO / PROJECT: “LA PIEZA QUE FALTA” DISEÑO URBANO EN EL CENTRO DE SANTIAGO
TIPO / TYPE: ACADÉMICO / ACADEMIC
AÑO/ YEAR: 2020-2021
LUGAR/ PLACE: CENTRO HISTÓRICO DE SANTIAGO DE CHILE - CHILE
RESUMEN:
EL PROYECTO FUE DESARROLLADO DENTRO DEL TALLER DE INVESTIGACIÓN DE PROYECTO EN LA MAESTRIA DE PROYECTO URBANO MPUR|UC. DESDE EL ESTUDIO DE REFERENTES INTERNACIONALES Y LA COMPRENSIÓN DEL CENTRO HISTÓRICO DE LA CIUDAD, SE REALIZA UNA PROPUESTA PARA ABORDAR LA DENSIFICACIÓN Y AMPLIACIÓN VERTICAL EN BASE A LA CAPACIDAD DE CRECIMIENTO DE LAS EDIFICACIONES EXISTENTES. SE PROPONE UN SISTEMA AÉREO URBANO INTERCONECTADO PARA PROVEER VIVIENDA, ESPACIO PÚBLICO E INFRAESTRUCTURA, COMO CAPA SUPERIOR Y REVITALIZADORA DE LA CIUDAD HEREDADA.
ABSTRACT:
THE PROJECT WAS DEVELOPED WITHIN THE PROJECT RESEARCH WORKSHOP IN THE URBAN PROJECT MASTER'S DEGREE MPUR|UC. FROM THE STUDY OF INTERNATIONAL REFERENCES AND THE UNDERSTANDING OF THE HISTORIC CENTER OF THE CITY, A PROPOSAL IS MADE TO ADDRESS THE DENSIFICATION AND VERTICAL EXPANSION BASED ON THE GROWTH CAPACITY OF THE EXISTING BUILDINGS. AN INTERCONNECTED URBAN AERIAL SYSTEM IS PROPOSED TO PROVIDE HOUSING, PUBLIC SPACE AND INFRASTRUCTURE, AS THE UPPER AND REVITALIZING LAYER OF THE INHERITED CITY.

ESQUEMA 1 DESDE LA CALLE AHUMADA / SCHEME 1 FROM THE STREET AHUMADA


PROYECTO / PROJECT: VIVIENDA SOCIAL - HOUSING TIPO / TYPE: CONCURSO PARA EL MINISTERIO DE VIVIENDA DEL PERÚ / COMPETITION
AÑO/ YEAR: 2021
LUGAR/ PLACE: LIMA- PERÚ
RESUMEN:
EN EL PROYECTO SE TRABAJAN DIFERENTES ESCALAS. EL PRIMER ENCUENTRO CON EL PROYECTO SE DA A TRAVÉS DE UN RETIRO PERIMETRAL QUE CONTIENE ESPACIO PÚBLICO, ZÓCALO COMERCIAL Y PUERTAS URBANA AL CONJUNTO RESIDENCIAL. EN EL INTERIOR SE GENERA DOS CUADRADOS, CON DOMINIO COMÚN. EN EL PERÍMETRO SE PROYECTAN CALLES INTERIORES QUE SIRVEN COMO ESPACIOS DE SOCIALIZACIÓN Y ACCESO A VIVIENDAS DE PRIMER NIVEL. ADEMÁS, SE GENERA UNA SERIE DE CALLES AÉREAS QUE DAN ACCESO A LAS VIVIENDAS Y CONECTAN, HORIZONTALMENTE, EL CONJUNTO. EN CIERTOS PUNTOS, ESTAS CALLES AÉREAS SE ABREN PARA DEJAR PASO A PEQUEÑAS PLAZAS.
ABSTRACT:
DIFFERENT SCALES ARE WORKED IN THE PROJECT. THE FIRST ENCOUNTER WITH THE PROJECT TAKES PLACE THROUGH A PERIMETER WITHDRAWAL THAT CONTAINS A PUBLIC SPACE, A COMMERCIAL BASELINE AND URBAN DOORS TO THE RESIDENTIAL COMPLEX. INSIDE TWO SQUARES ARE GENERATED, WITH COMMON DOMAIN. INTERIOR STREETS ARE PROJECTED ON THE PERIMETER TO SERVE AS SPACES FOR SOCIALIZATION AND ACCESS TO FIRSTLEVEL HOUSING. IN ADDITION, A SERIES OF AERIAL STREETS ARE GENERATED THAT GIVE ACCESS TO THE HOUSES AND CONNECT THE COMPLEX HORIZONTALLY. AT CERTAIN POINTS, THESE AIR STREETS OPEN TO MAKE WAY TO SMALL SQUARES.



PROYECTO / PROJECT: EQUIPAMIENTO URBANO Y ESCALERAS URBANAS / COMMUNITY EQUIPMENT AND URBAN STAIRS
TIPO / TYPE: COMPETITION
AÑO/ YEAR: 2021
LUGAR/ PLACE: LIMA- PERÚ
RESUMEN:
SE PROPONE UN EQUIPAMIENTO URBANO EN LA PARTE BAJA DE LA LADERA. LA ESTRATEGIA DEL PROYECTO CONSISTE EN PROPONER UN PROGRAMA FLEXIBLE, QUE PERMITA ALOJAR ACTIVIDADES COMUNITARIAS COMO DEPORTIVAS. LA VARIEDAD DE ACTIVIDADES QUE LA INSTALACIÓN PUEDE ALOJAR SERÁ DEFINIDA POR LOS PROPIOS RESIDENTES. LA PERMEABILIDAD DE SU IMAGEN FORMAL SIRVE PARA INTEGRAR EL EDIFICIO CON EL ENTORNO URBANO, INVITANDO A LOS RESIDENTES A ENTRAR Y COMPARTIR EN COMUNIDAD. LA UBICACIÓN DE LOS EQUIPOS SE BASA EN LA CONEXIÓN CON LA TOPOGRAFÍA, INTEGRÁNDOSE CON ELLA Y GENERANDO UNA EXTENSIÓN DEL TERRAZADO DEL ESPACIO PÚBLICO.
SOBRE LAS CUBIERTAS DE LAS MISMAS SE GENERARÁN TERRAZAS COLECTIVAS, CON EL FIN DE PROPORCIONAR MÁS SUELO URBANO PARA LA RECREACIÓN. SE UTILIZA UNA ESTRUCTURA METÁLICA, CON EL FIN DE GENERAR UNA ARQUITECTURA LIGERA Y COHERENTE CON SU ENTORNO. LA APARIENCIA VISUAL APORTA PERMEABILIDAD Y CONECTA LOS ESPACIOS INTERIORES CON EL ESPACIO PÚBLICO INMEDIATO. POR OTRO LADO, EL COLOR ROJO SE UTILIZA PARA LLAMAR LA ATENCIÓN DE LOS VECINOS Y GENERAR UN ELEMENTO URBANO DE FÁCIL RECONOCIMIENTO DESDE ESTE EQUIPO. EL SISTEMA ESTRUCTURAL CONSTA DE UN SISTEMA DE BASTIDORES DE CARRILES EN “H”, QUE CONTIENEN CERRAMIENTOS DISTINTOS DE LAS FACHADAS INDUSTRIALES DE ALUZINC. ESTO PERMITE UN MONTAJE MÁS RÁPIDO Y ECONÓMICO DEL EQUIPO, CON UN ALTO ESTÁNDAR DE CALIDAD, LO QUE PUEDE FACILITAR SU REPLICACIÓN EN OTROS TALUDES DE CARACTERÍSTICAS SIMILARES.
ABSTRACT:
THE PROJECT STRATEGY CONSISTS OF PROPOSING A FLEXIBLE PROGRAM, WHICH ALLOWS HOSTING BOTH COMMUNITY ACTIVITIES AND SPORTS. THE VARIETY OF ACTIVITIES THAT THE FACILITY CAN HOST WILL BE DEFINED BY THE RESIDENTS THEMSELVES. THE PERMEABILITY OF ITS FORMAL IMAGE SERVES TO INTEGRATE THE BUILDING WITH THE URBAN ENVIRONMENT, INVITING RESIDENTS TO ENTER AND SHARE IN COMMUNITY. THE LOCATION OF THE EQUIPMENT IS BASED ON THE CONNECTION WITH THE TOPOGRAPHY, INTEGRATING WITH IT AND GENERATING AN EXTENSION OF THE TERRACING OF THE PUBLIC SPACE.
COLLECTIVE TERRACES WILL BE GENERATED ON THE ROOFS OF THE SAME, IN ORDER TO PROVIDE MORE URBAN LAND FOR RECREATION. A METALLIC STRUCTURE IS USED, IN ORDER TO GENERATE A LIGHT AND COHERENT ARCHITECTURE WITH ITS ENVIRONMENT. THE VISUAL APPEARANCE PROVIDES PERMEABILITY AND CONNECTS THE INTERIOR SPACES WITH THE IMMEDIATE PUBLIC SPACE. ON THE OTHER HAND, THE COLOR RED IS USED TO DRAW THE ATTENTION OF THE NEIGHBORS AND GENERATE AN URBAN ELEMENT OF EASY RECOGNITION FROM THIS EQUIPMENT. THE STRUCTURAL SYSTEM CONSISTS OF A FRAME SYSTEM OF “H” RAILS, WHICH CONTAIN DIFFERENT ENCLOSURES FROM ALUZINC INDUSTRIAL FACADES. THIS ALLOWS A FASTER AND CHEAPER ASSEMBLY OF THE EQUIPMENT, WITH A HIGH-QUALITY STANDARD, WHICH CAN MAKE IT EASY TO REPLICATE IT ON OTHER SLOPES WITH SIMILAR CHARACTERISTICS.



TIPO / TYPE: MANDANTE SERVIU RM SANTIAGO PARA PAN ESTUDIO
AÑO/ YEAR: 2022
LUGAR/ PLACE: MACUL, RM – CHILE
RESUMEN:
EL PROYECTO FUE DESARROLLADO PARA LA OFICINA “PAN ESTUDIO” JUNTO CON UN EQUIPO DE TRABAJO. SE ENMARCA DENTRO DEL PROGRAMA “QUIERO MI BARRIO” EN LA COMUNA DE MACUL. EL CUAL TIENE COMO OBJETIVO LA REGENERACIÓN DE BARRIOS EN ESTADOS DE VULNERABILIDAD A LO LARGO DE CHILE. EL PROYECTO TIENE UN ÁREA DE DISEÑO DE 621 M2, EL CUAL CONSISTE EN EL DISEÑO DE UN PARQUE INFANTIL, JUNTO CON UN ESTACIONAMIENTO. ADEMÁS, SE DISEÑA UN CRUCE PEATONAL CONECTADO HACIA EL BARRIO. EL PROGRAMA PARA EL DISEÑO FUE REQUERIDO EN TALLERES DE PARTICIPACIÓN CIUDADANA.
ABSTRACT:
THE PROJECT WAS DEVELOPED FOR THE "PAN ESTUDIO" OFFICE TOGETHER WITH A WORK TEAM. IT IS FRAMED WITHIN THE PROGRAM "QUIERO MI BARRIO" IN THE COMMUNITY OF MACUL. WHICH HAS AS OBJECTIVE THE REGENERATION OF NEIGHBORHOODS IN STATES OF VULNERABILITY THROUGHOUT CHILE. THE PROJECT HAS A DESIGN AREA OF 621 M2, WHICH CONSISTS OF THE DESIGN OF A CHILDREN'S PLAYGROUND, TOGETHER WITH A PARKING. IN ADDITION, A PEDESTRIAN CROSSING CONNECTED TOWARDS THE NEIGHBORHOOD IS DESIGNED. THE PROGRAM FOR THE DESIGN WAS REQUIRED IN CITIZEN PARTICIPATION WORKSHOPS.



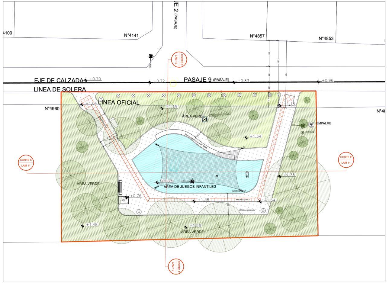
PROYECTO / PROJECT: REGENERACIÓN PLAZA PASAJE 9
TIPO / TYPE: MANDANTE SERVIU RM SANTIAGO PARA PAN ESTUDIO AÑO/ YEAR: 2022
LUGAR/ PLACE: MACUL, RM – CHILE
RESUMEN:
EL PROYECTO FUE DESARROLLADO PARA LA OFICINA “PAN ESTUDIO” JUNTO CON UN EQUIPO DE TRABAJO. SE ENMARCA DENTRO DEL PROGRAMA “QUIERO MI BARRIO” EN LA COMUNA DE MACUL. EL CUAL TIENE COMO OBJETIVO LA REGENERACIÓN DE BARRIOS EN ESTADOS DE VULNERABILIDAD A LO LARGO DE CHILE. EL PROYECTO DISEÑA UN EJE DE ESPACIO PÚBLICOS COMPUESTOS POR TRES PARQUES CON DIFERENTES VOCACIONES. EL PRIMER PARQUE DE 480 M2 SE DISEÑA A PARTIR DE UN REQUERIMIENTO DEPORTIVO, TANTO PARA JÓVENES COMO PARA ADULTOS MAYORES. EL SEGUNDO PARQUE DE 1094 M2, SE DISEÑA A PARTIR DE UN REQUERIMIENTO DE ESTACIONAMIENTO, ÁREA INFANTIL Y ÁREA MULTIUSOS. EL TERCER PARQUE DE 538 M2, SE DISEÑA COMO UN ESACIO DE JUEGOS PARA LA PRIMERA INFANCIA.
ABSTRACT:
THE PROJECT WAS DEVELOPED FOR THE "PAN ESTUDIO" OFFICE TOGETHER WITH A WORK TEAM. IT IS FRAMED WITHIN THE PROGRAM "QUIERO MI BARRIO" IN THE COMMUNITY OF MACUL. WHICH HAS AS OBJECTIVE THE REGENERATION OF NEIGHBORHOODS IN STATES OF VULNERABILITY THROUGHOUT CHILE. THE PROJECT DESIGNS A PUBLIC SPACE AXIS MADE UP OF THREE PARKS WITH DIFFERENT VOCATIONS. THE FIRST PARK OF 480 M2 IS DESIGNED AROUND A SPORTS REQUIREMENT, BOTH FOR YOUNG PEOPLE AND SENIORS. THE SECOND PARK OF 1094 M2, IS DESIGNED BASED ON A PARKING REQUIREMENT, CHILDREN'S AREA AND MULTIPURPOSE AREA. THE THIRD PARK OF 538 M2, IS DESIGNED AS A PLAY SPACE FOR EARLY CHILDREN.








TIPO / TYPE: MANDANTE SERVIU RM SANTIAGO PARA PAN ESTUDIO
AÑO/ YEAR: 2022
LUGAR/ PLACE: MACUL, RM – CHILE
RESUMEN:
EL PROYECTO FUE DESARROLLADO PARA LA OFICINA “PAN ESTUDIO” JUNTO CON UN EQUIPO DE TRABAJO. SE ENMARCA DENTRO DEL PROGRAMA “QUIERO MI BARRIO” EN LA COMUNA DE MACUL. EL CUAL TIENE COMO OBJETIVO LA REGENERACIÓN DE BARRIOS EN ESTADOS DE VULNERABILIDAD A LO LARGO DE CHILE. EL PROYECTO DISEÑA UN EJE DE VEREDAS, ESPACIO DE DESCANSO, ESTACIONAMIENTO Y ÁREAS VERDES; EL CUAL TIENE UN ÁREA DE 2780 M2. EL PROGRAMA PRIORIZA EL REQUERIMIENTO DE LOS VECINOS A A PARTIR DE DISEÑO PARTICIPATIVO.
ABSTRACT:
THE PROJECT WAS DEVELOPED FOR THE "PAN ESTUDIO" OFFICE TOGETHER WITH A WORK TEAM. IT IS FRAMED WITHIN THE PROGRAM "QUIERO MI BARRIO" IN THE COMMUNITY OF MACUL. WHICH HAS AS OBJECTIVE THE REGENERATION OF NEIGHBORHOODS IN STATES OF VULNERABILITY THROUGHOUT CHILE. THE PROJECT DESIGNS AN AXIS OF SIDEWALKS, REST SPACE, PARKING AND GREEN AREAS; WHICH HAS AN AREA OF 2780 M2. THE PROGRAM PRIORITIZES THE REQUIREMENTS OF NEIGHBORS BASED ON PARTICIPATORY DESIGN.



PROYECTO / PROJECT: REGENERACIÓN CALLE 2
TIPO / TYPE: MANDANTE SERVIU RM SANTIAGO PARA PAN ESTUDIO
AÑO/ YEAR: 2022
LUGAR/ PLACE: MACUL, RM – CHILE
RESUMEN:
EL PROYECTO FUE DESARROLLADO PARA LA OFICINA “PAN ESTUDIO” JUNTO CON UN EQUIPO DE TRABAJO. SE ENMARCA DENTRO DEL PROGRAMA “QUIERO MI BARRIO” EN LA COMUNA DE MACUL. EL CUAL TIENE COMO OBJETIVO LA REGENERACIÓN DE BARRIOS EN ESTADOS DE VULNERABILIDAD A LO LARGO DE CHILE. EL PROYECTO DISEÑA DOS CUADRAS DE 533 M2. POR REQUERIMIENTO DE LOS VECINOS NO SE COLOCA EQUIPAMIENTO URBANO MÁS QUE UN SOMBREADERO. ESTE PROYECTO PERTENECE A LA CONTINUACIÓN DE CALLE 1.
ABSTRACT:
THE PROJECT WAS DEVELOPED FOR THE "PAN ESTUDIO" OFFICE TOGETHER WITH A WORK TEAM. IT IS FRAMED WITHIN THE PROGRAM "I WANT MY NEIGHBORHOOD" IN THE COMMUNITY OF MACUL. WHICH HAS AS OBJECTIVE THE REGENERATION OF NEIGHBORHOODS IN STATES OF VULNERABILITY THROUGHOUT CHILE. THE PROJECT DESIGNS TWO BLOCKS OF 533 M2. BY REQUIREMENT OF THE NEIGHBORS, NO URBAN EQUIPMENT IS PLACED MORE THAN A SHADE. THIS PROJECT BELONGS TO THE CONTINUATION OF CALLE 1.




PROYECTO / PROJECT: PLAZA REPADORES DE PORTILLO
TIPO / TYPE: MANDANTE SERVIU RM SANTIAGO PARA PSAT DESARROLLA
AÑO/ YEAR: 2024
LUGAR/ PLACE: MACUL, RM – CHILE
RESUMEN:
EL PROYECTO FUE DESARROLLADO PARA LA OFICINA “PSAT DESARROLLA” DONDE SE REALIZÓ ADEMÁS LA COORDINACIÓN. SE ENMARCA DENTRO DEL PROGRAMA D.S. 27 CAPÍTULO 1: MEJORAMIENTO DE VIVIENDA, BARRIO Y ENTORNO DEL MINISTERIO DE VIVIENDA DE LA REGIÓN METROPOLITANA DE CHILE.
EL PROYECTO SE ENCUENTRA EN LA COMUNA DE LO ESPEJO, LA CUAL SE CARACTERIZA POR TENER VULNERABILIDAD SCIO ECONÓMICA. EL PROYECTO DISEÑA ÁREAS VERDES, LAS CUALES SE EMPLAZAN DEBAJO DE UNA FRANJA DE PROTECCIÓN POR TENDIDO ELÉCTRICO. EL PROGRAMA CONTEMPLA ÁREAS VERDES CON PROPUESTA PAISAJISTA DE BAJO CONSUMO HÍDRICO, ÁREA DE EJERCICIOS, ÁREAS DE JUEGOS Y ZONAS DE ESTANCIA. POR OTRO LADO, EL PROYECTO SIGUE PARÁMETROS DE DISEÑO URBANO DE ACCESIBILIDAD UNIVERSAL Y UN PROCESO DE DISEÑO PARTICIPATIVO CON LA COMUNIDAD.
ABSTRACT:
THE PROJECT WAS DEVELOPED FOR THE OFFICE "PSAT DESARROLLA" WHERE THE COORDINATION WAS ALSO CARRIED OUT. IT IS FRAMED WITHIN THE PROGRAMME D.S. 27 CHAPTER 1: IMPROVEMENT OF HOUSING, NEIGHBOURHOOD AND ENVIRONMENT OF THE MINISTRY OF HOUSING OF THE METROPOLITAN REGION OF CHILE. THE PROJECT IS LOCATED IN THE COMMUNE OF LO ESPEJO, WHICH IS CHARACTERISED BY SOCIO-ECONOMIC VULNERABILITY. THE PROJECT DESIGNS GREEN AREAS, WHICH ARE LOCATED UNDER A STRIP OF PROTECTION BY POWER LINES. THE PROGRAMME INCLUDES GREEN AREAS WITH LOW WATER CONSUMPTION LANDSCAPING, EXERCISE AREAS, PLAYGROUNDS AND RECREATIONAL AREAS. ON THE OTHER HAND, THE PROJECT FOLLOWS URBAN DESIGN PARAMETERS OF UNIVERSAL ACCESSIBILITY AND A PARTICIPATORY DESIGN PROCESS WITH THE COMMUNITY.

PROYECTO / PROJECT: PLAZA ALBERTO HURTADO
TIPO / TYPE: MANDANTE SERVIU RM SANTIAGO PARA PSAT DESARROLLA
AÑO/ YEAR: 2024
LUGAR/ PLACE: MACUL, RM – CHILE
RESUMEN:
EL PROYECTO FUE DESARROLLADO PARA LA OFICINA “PSAT DESARROLLA” DONDE SE REALIZÓ ADEMÁS LA COORDINACIÓN. SE ENMARCA DENTRO DEL PROGRAMA D.S. 27 CAPÍTULO 1: MEJORAMIENTO DE VIVIENDA, BARRIO Y ENTORNO DEL MINISTERIO DE VIVIENDA DE LA REGIÓN METROPOLITANA DE CHILE.
EL PROYECTO SE ENCUENTRA EN LA COMUNA DE MACUL, LA CUAL SE CARACTERIZA POR TENER VULNERABILIDAD SCIO ECONÓMICA. EL PROGRAMA URBANO CONTEMPLA ÁREAS VERDES CON PROPUESTA PAISAJISTA DE BAJO CONSUMO HÍDRICO (PROPUESTA QUE INTEGRA LOS ÁRBOLES ENCONTRADOS), ÁREAS DE JUEGOS INFANTILES Y ZONAS DE ESTANCIA. POR OTRO LADO, EL PROYECTO SIGUE PARÁMETROS DE DISEÑO URBANO DE ACCESIBILIDAD UNIVERSAL Y UN PROCESO DE DISEÑO PARTICIPATIVO CON LA COMUNIDAD.
ABSTRACT:
THE PROJECT WAS DEVELOPED FOR THE OFFICE "PSAT DESARROLLA" WHERE THE COORDINATION WAS ALSO CARRIED OUT. IT IS FRAMED WITHIN THE PROGRAMME D.S. 27 CHAPTER 1: IMPROVEMENT OF HOUSING, NEIGHBOURHOOD AND ENVIRONMENT OF THE MINISTRY OF HOUSING OF THE METROPOLITAN REGION OF CHILE. THE PROJECT IS LOCATED IN THE COMMUNE OF MACUL, WHICH IS CHARACTERISED BY ITS SOCIAL AND ECONOMIC VULNERABILITY. THE URBAN PROGRAMME INCLUDES GREEN AREAS WITH LOW WATER CONSUMPTION LANDSCAPING PROPOSAL (PROPOSAL THAT INTEGRATES THE TREES FOUND), CHILDREN'S PLAY AREAS AND LIVING AREAS. ON THE OTHER HAND, THE PROJECT FOLLOWS URBAN DESIGN PARAMETERS OF UNIVERSAL ACCESSIBILITY AND A PARTICIPATORY DESIGN PROCESS WITH THE COMMUNITY.

VISTA DE PLANTA DE DISEÑO GENERAL / PLAN VIEW
PROYECTO / PROJECT: PLAZA SANTA ENRIQUETA
TIPO / TYPE: MANDANTE SERVIU RM SANTIAGO PARA PSAT DESARROLLA
AÑO/ YEAR: 2024
LUGAR/ PLACE: MACUL, RM – CHILE
RESUMEN:
EL PROYECTO FUE DESARROLLADO PARA LA OFICINA “PSAT DESARROLLA” DONDE SE REALIZÓ ADEMÁS LA COORDINACIÓN. SE ENMARCA DENTRO DEL PROGRAMA D.S. 27 CAPÍTULO 1: MEJORAMIENTO DE VIVIENDA, BARRIO Y ENTORNO DEL MINISTERIO DE VIVIENDA DE LA REGIÓN METROPOLITANA DE CHILE.
EL PROYECTO SE ENCUENTRA EN LA COMUNA DE MACUL, LA CUAL SE CARACTERIZA POR TENER VULNERABILIDAD SCIO ECONÓMICA. EL PROGRAMA URBANO CONTEMPLA ÁREAS VERDES CON PROPUESTA PAISAJISTA DE BAJO CONSUMO HÍDRICO (PROPUESTA QUE INTEGRA LOS ÁRBOLES ENCONTRADOS), ÁREAS DE JUEGOS INFANTILES, ÁREA DE EJERCICIO, ZONAS DE ESTANCIA. EL DISEÑO INTEGRA EL CENTRO SOCIAL UBICADO EN EL MISMO PREDIO, PROPONIENDO UN ÁREA DE EXPANSIÓN AL AIRE LIBRE. POR OTRO LADO, EL PROYECTO SIGUE PARÁMETROS DE DISEÑO URBANO DE ACCESIBILIDAD UNIVERSAL Y UN PROCESO DE DISEÑO PARTICIPATIVO CON LA COMUNIDAD.
ABSTRACT:
THE PROJECT WAS DEVELOPED FOR THE OFFICE "PSAT DESARROLLA" WHERE THE COORDINATION WAS ALSO CARRIED OUT. IT IS FRAMED WITHIN THE PROGRAMME D.S. 27 CHAPTER 1: IMPROVEMENT OF HOUSING, NEIGHBOURHOOD AND ENVIRONMENT OF THE MINISTRY OF HOUSING OF THE METROPOLITAN REGION OF CHILE.
THE PROJECT IS LOCATED IN THE COMMUNE OF MACUL, WHICH IS CHARACTERISED BY ITS SOCIAL AND ECONOMIC VULNERABILITY. THE URBAN PROGRAM CONTEMPLATES GREEN AREAS WITH LANDSCAPING PROPOSAL OF LOW WATER CONSUMPTION (PROPOSAL THAT INTEGRATES THE TREES FOUND), CHILDREN'S PLAY AREAS, EXERCISE AREA, LIVING AREAS. THE DESIGN INTEGRATES THE SOCIAL CENTRE LOCATED ON THE SAME PROPERTY, PROPOSING AN OUTDOOR EXPANSION AREA.
ON THE OTHER HAND, THE PROJECT FOLLOWS URBAN DESIGN PARAMETERS OF UNIVERSAL ACCESSIBILITY AND A PARTICIPATORY DESIGN PROCESS WITH THE COMMUNITY.
