ANALISIS-URBANISMO-SALENTO

Page 1

Ámbitos Urbanos

01-2022

Universidad de San Buenaventura Facultad de Ar tes Integradas Carlos Alberto Marin Herrera

2
Estefania Agudelo Santamaria Créditos

El urbanizmo de la ciudad que habito

La formas de habitar el territorio siempre han sido una de las características urbanas, de esta manera se puede planificar, revisar los espacios de convergencia social, de vida urbana , para fundar un progreso en la ciudad, haciendo de ella una ciudad que convoque a recorrerla, observarla y sentirla, que invite a estar con y para el otro; es por eso que se plantea una pregunta que incide a entender la conducta urbana desde mi habitar:¿Como ocupo, percibo y reflexiono respecto al espacio publico? También con una mirada a la vida colectividad de socieda-

des en condiciones poco favorables y como la influencia del espacio publico o la calle como ámbito urbano lo puede beneficiar, en efecto ¿como lograr una igualdad social desde un dominio urbano?. También es necesario entender que se necesita para hacer de estos espacios una experiencia agradable, en cuanto al aprovechamiento de su infraestructura como a actividades que se pueden realizar.

2
Orquideograma, proyecto icònico del jardín botánico que busca hacer el lugar mas habitable

El desarrollo de la vida en los espacios urbanos es totalmente concerniente a la experiencia que cada uno tiene al estar en contacto con todos los factores que llevan a tener una practica directa con la zona

Existen pautas para fomentar formas urbanas que hacen de estos, lugares viables para que las personas lo recorran de una manera vital, segura y sana, como se habla en el libro de ciudades para la gente de Jan Gehl, para que una ciudad sea vital es necesario que englobe estas características antes mencionadas, se deben crear dinámicas que convoquen a las personas a permanecer, a caminar y a ejercer diferentes funciones. Ademas de esto se debe ofrecer una igualdad social y

económica, provocando que los espacios sean inclusivos con todos y no se creen barreras visibles e invisibles entre habitantes, por lo tanto, como lo nombra Jan Gehl en el capitulo 3. en la ciudad sostenible se debe tener una sostenibilidad social donde todos los grupos sociales tengan las mismas oportunidades de acceso para los espacios públicos.

Hablando el urbanismo social el arquitecto urbanista Alejandro Echeverri, en alguna de sus ponencias habla sobre los espacios de convergencia, de confluencia que se debe tener en la ciudad para generar una gestión cultural, ademas convertir el espacio de la arquitectura también en el espacio de la

calle, él lo dice así: “Menciono algo que creo que es una de las claves de la búsqueda de medellin, es el tema de la calle, yo no hablaría de espacio publico porque a veces el espacio publico tiende a simplificarse mucho, hay espacios públicos que son completamente asépticos, pero la complejidad de la vida urbana, la expresión máxima de la vida de la ciudad, es el espacio de la calle; la calle tiene espacio publico, conecta plazas, pero tiene unas condiciones de vida, las manifestaciones se hacen allí, el comercio sucede por allí, la movilidad sucede por allí” En cuanto a esto, es la importancia de disponer calles seguras, desarrollando métodos preventivos contra el delito, el miedo de un peatón o un ciclista a la movilidad de autos, que

3 6

podrían ocasionar accidentes a cruzar una calle o invadir una ciclovias. Para darle paso a algunas soluciones de seguridad en la vida urbana son los suelos que poseen usos mixtos, o bordes blandos que inciten a transitar con tranquilidad, esto quiere que alguna persona residente del lugar por el que estoy caminado me observa, o también porque existe, una actividad económica con cortas distancias, hay una transparencia por el borde que se camina, fachadas abiertas donde se puede visualizar una vida interna o de lo anterior hablado, que haya circulación de diferentes grupos socio-económicos, pasando de un lado a otro constantemente.

Volviendo al arquitecto A. Echeverri sobre su percepción sobre el urbanismo, “la ciudad es la medida de un niño” esto quiere decir, que un niño de ocho años aproximadamente pueda transitar por la ciudad tranquilo haciendo sus funciones básicas como salir de la casa, coger un transporte, ir a la escuela, y volver de nuevo a casa de forma segura, así es una ciudad con espacios urbanos pensados para la gente, también siguiendo la idea de la importancia de la calle como actividad urbana, también de que manera yo la vivo, la experimento como se habla en el informe de invesigacion, sobre pensar y habitar el espacio urbano de la ciudad de medellin en el capitulo 01 conse-

Puente de acceso, fuente propia Equipamiento que crea una comunicación de sociedades

4

cuencia de la transformación informal de la ladera, donde se entiende la calle como extensión de la casa del ciudadano “es una prioridad porque este espacio público es núcleo e institución de la organización socio urbana: la calle como ese espacio público de encuentro, refugio y construcción de lazos sociales. En la calle yo participo. Soy también espectáculo, para los demás. De buen o mal grado, figuro en el texto social, pequeño signo familiar, pero quizá ligeramente irritante porque es enigmático, expresivo. Figuro en él con buena o mala consciencia, pasiva o agresivamente, según mi humor, mi destino, mi situación, satisfecho si paseo, si tengo tiempo por delante, si voy

bien vestido” por lo tanto esta es una de las maneras mas detonantes de cómo ocupo el espacio publico.

De esta manera se emplean proyectos sociales, que veneficiar estos asentamiento urbanos en la laderas de la ciudad, las cuales son comunidades marginales, sin presencia del estado, y con condiciones de vida precarias, y conflictos de violencia entre si, a lo que conlleva un dominio único de este colectivo, para ejemplificar esto, podemos mirar a moravia, (firgura 1) donde se empelan estrategias de interacción urbana puntuales, emplear un espacio publico y una integración barrial, para solucionar problemáticas de degradación de la imagen

barrial, escasez del espacio publico, condiciones de vulnerabilidad y conflictos sociales. Provocando impactos sociales como , una apropiación del espacio, transformación barrial, una congregación social y una participación ciudadana.

Por otra parte se puede resaltar las dialécticas que existen en esos espacios publico y lo privando, esto quiere decir, esas infraestructuras que cuentan con equipamientos que le sirven a un espacio publico para una concentración en la estancia y en la realización de actividades, por ejemplo El museo de arte moderno en medellin (figura 2) se condiciona la calle, y sus escaleras crean un espacio dialéctico y com-

5

plementario con la calle lo cual se nombra como “espacio amoblado” Estas crean un lugar de reuniones informales, es un Sitio bastante concurrido por las actividades de ocio que se pueden generar allí, por lo tanto estimula la compleja relación de lo publico y lo privado, sin embargo logra tener este factor de lugar intermedio.

Otro espacio publico a tratar es la caja de madera en plaza mayor, (figura 3) en cuanto a su ubicación se puede decir que esta en el centro de la ciudad lo que hace que el flujo vehicula sea alto y tiene al servicio paradas de buses, también linda con sitios muy turísticos y representativos( teatro metropolitano, parque de los pies descalzos, museo del agua, Alcaldía de medellin, etc.) De la ciudad lo que hace que halla mucha movilidad en el sector en el trascurso de horario laboral • Uno de los lugares mas icónicos de este son las escalinatas( la caja de madera) el cual

6

Es lugar publico donde las personas pueden transitar libres y estar en este sitio sin ningún problama, pero dependiendo del evento que haya normalmente suele cerrarse ¿Cuáles son las principales problemáticas del espacio público a resolver? Uno de los problemas que podemos identificar es la movilidad del sector cuando tiene eventos, ya que este queda sobre la carrera 57 y la avenida ferrocarril y esta suele colapsar muy rápido por la magnitud de vehículos al intentar ingresar y dejar pasajeros en este lugar. A pesar de que el lugar cuando hay eventos tiene vigilancia privada, cuando no los hay en algunos horarios puede volverse un poco solo

7
Figura 2. Museo de arte moderno. Gráfico propio Figura 3. Caja de madera, plaza mayor. Gráfico propio

En conclusiones la ciudad debe tener parámetros los cuales beneficien a las sociedades e individuos que la recorran, la ocupen, la sientan, personalmente considero que desde el análisis de documentos como el de Jan Gehl o de arquitectos, e investigaciones a cerca de la ciudad dando un enfoque a medellin, siguen habiendo temas, te intereses socio-economicos que aun siguen sin solucionar, sin embargo han habido iniciativas de mejoras, pero poniendo en como ejemplo a la ciudad de tamaño de un niño de 8 años, aun sigue con asuntos de inseguridad, de desconexion de poca vitalidad, es por eso que nos quedan preguntas sobre ¿de que maneras la puedo habitar? ¿como evitar que las zonas sean abandonadas? ¿de que manera puedo yo como ciudadano aportarle a una vida urbana? hay muchas cuestiones por solucionar pero es el hecho de seguirme retroalimentando de problemáticas y soluciones para generar un avance en la vida púbica urbana

8

Bibliografía

1. CIUDADES PARA LA GENTE JAN GEHL 1.1 La ciudad vital, segura, sana y sostenible 2. La calle y la casa 3. https://issuu.com/cartillasinvestigacion/docs/pensar_y_habitar_el_espacio_urbano_ 4. https://www.youtube.com/watch?v=w7cfj2b0vKQ&ab_channel=CiudadesCreativas 5.https://www.youtube.com/watch?v=CFtLKU9AzZw&ab_channel=urbamEAFIT

9

ANÁLISIS URBANO

Geografía

El lote esta ubicado en la comuna 10 de medellin (la candelaria) frente a la estacion del tranvìa Bicentenario. Esta cercano al parque vicentenario, museo de la memoria los barrios boston las palmas y el salvador

Medellin en 1770, se situabanlas calles al rededor de las iglesias

Medellin en 1906, empieza a extenderse hacia el oriente

Medellin en 1951. barrios que llegaban hasta los límites de mis municipios vecinos, e industrias y comercio y viviendas en una mixtura

ASOLEAMENIENTO
10 SILVICULTURA CORREDORES VERDES RETIROS A RIOS Y QUEBRADAS

ANÁLISIS URBANO

Paisaje

Al hacer este recorrido por las aceras de la calle 49, estacion bicentenario, podemos percibir que hay un flujo peatonal constante gracias a el tranvia.los laterales que colindan con este medio de transporte, hay una mixtura de vivienda y comercio; por lo general sos viviendas no mas de 4 pisos de altura, y en el primero hay comercio como: comidas, peluquerias, tiendas de ropa, ferreterias, licoreras etc. estariamos hablando de un recorrido por bordes blandos, lo que nos permite percibir facilmente los olores de la comida, los carros, el ruido de la gente, el tren pasandoy las bocinas de los automoviles.

casetas en las caller, como punto de estancia Habitantes de calle afuera de los establecimientos

mural es memoria de lo que alguna vez fue este lugar

En las calles secundarias los vehiculos estacionados obstruyen el paso.

11
Zonas residenciales convertidas completamente en comercio Paso frecuente de patrullas LINEA DE TIEMPO TRANVIA

ANÁLISIS URBANO

Infraestructura

El sector cuenta con vìas las cuales son eficases para una buena movilidad, ademàs de un empaldo beneficiario de servicios publicos

Calle Bomboná Avenida ayacucho Calle 37 Avenida Colombia

Arterias existentes Arterias ampliación

PASAJES COMERCIAL

Avenida ayacucho Comercio local y de mayor escala

12
VÍAS
PRINCIPALES
ARTERIAS
REDES DE TRANSPORTE
Corredor Verde Ciclovia Tranvia-est. bicentenario
Redes de servicios

ANÁLISIS URBANO

Infraestructura

Est. Bicentenario.

Equipamientos

2. 4 400m

Est. Pabellon del agua 5.Clinica el sagrado corazon

1. Plazita de flores 1 2 3 5

13
El sector es caracterizado por su ucicacion en el centro por lo que contiene diferentes equpamientos que enriquesen su habitabilidad o tambien su paso, ya que por sus redes de transporte de facil acceso, sus sitios de vicida, educacin, cultura y salud, convieren al lote como punto estregico.
4.
3.Escuela Normal Superior Antiqueña

ANÁLISIS URBANO

arquitectura BIENES DE INTERES CULTURAL

Al ser un lugar integrado al centro de la ciudad, posee arquitecturas significativas, cercanas y dentro del sitio de estudio..

Arquitectonico

La iglesia nuestra señora del sagrado corazon es uno de los bienes culturales, dentro del radio de estudio del lote.

Iglesia Sagrado Corazòn

viviendas coloniales viviendas en crecimiento vertical

viviendas coloniales

14
del
Hito, a la vista del lote arquitectura, a escala
lote
del suelo en su mayoria, media
alta mixtura
Usos
y

BLOQUES

15 ANALISIS URBANO

MORFOLOGIA

En el recorrido por el sector nos damos cuenta que el tranvia permite una organizacion del comercio, estando con esa ocupacion de ruta del tranvia, la mayoria del comercio de organizo a los laterales de este, dejando “ libre” la calle

Alineacion por manzanas

TORRES

ramblas AUTONOMIA DE VOLUMENES

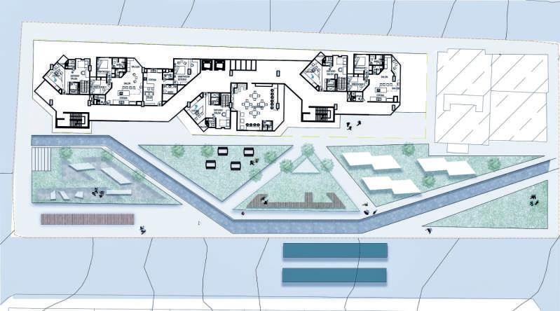
Teniendo en cuenta la morfología y tipología de este sector, nace la propuesta de un edificio de vivienda que posea ciertas características que sean acordes a este. al tener muy poca conectividad ecología se plantea una propuesta en el edificio de implementar más zonas verdes, huertas, balcones ecológicos entre otros mecanismos. Al tener un sector donde su mayor énfasis en el recorrido son las viviendas mixtas, por ende, este debe de poseer una serie de espacios y o locales que permitan ese comercio

16

CINE Y CIUDAD

Perro

come perro

perro come perro es una película con una temporalidad hacia los años 90, poco del narcotráfico en colombia

Escalas: la escalas que se pueden apreciar es una escala de ciudad, donde muestra los contraste de esta en el dia y noche, en la escala barrial muestra a sus habitantes transcurrir por las calles y su forma de habitarlas, en cuanto al vecindario es un sector comercial que posee hoteles, parqueaderos, restaurante entre otros. Geografía: Aquí podemos observar sus montañas y este elemento hidrográfico como este río que para la zona es utilizado como basurero y para este tipo de eventos ilegales. En el paisaje nos da la sensación de calles ruidosas, más que todo en los callejones donde se sitúa el comercio ambulante ya que se ve la magnitud del flujo de personas, su distinto tipo de comercio. en la plaza podemos ver la venta

de objetos relacionados con la esotería, por lo que hace de las calles un lugar para una libertad cultural. La vida que se da plaza es claramente agitada ya que se muestra un sitio donde no solo hay un paso de personas sino también una permanencia de ellas, hay autos estacionados, personas leyendo, vendedores, recicladores, entre otras actividades, allí se destaca un dinamismo diferente entres las personas y el espacio . se identifica una morfología de alineación por la calle, con casas residenciales, en cuanto a arquitectura muestra algunos hitos de cali como el puente ortiz que está sobre el río cauca otro punto a tratar es la seguridad del barrio y es que aun asi estuviera la ley, se seguía viviendo el vandalismo y la violencia, allí, se percibía un sitio muy inseguro y más por el contexto de la época, así estuviera la policía, ellos no tenían el “ poder”.

17

SOLUCIONES

Urbanisticas proyectuales

Localización

volumetria proyectual

Soluciones a las hipotesis proyectuales

1. Balcones con vista al tranvia y a la calle 49a, esto insentiva la seguridad al estar observando que sucede en la calle 2. Planteamiento de plataformas comerciales con la intencion sacar provecho de la zona de alta mixtura generando asi conexion entre lo privado y lo publico

18

SOLUCIONES

Soluciones a las hipotesis proyectuales

3. mobiliriario que permite la interaccion del usuario con este

4. En los recorridos se plantea lamparas para tener mejores recorridos y por seguridad

5. Bancas con arborizacion lo que permite tener recoridos verdes, sombra y un lugar donde descans a r

19

SALENTO

Ciudades

colombiana

CONTEXTO HISTÓRICO

Salento- Quindio es fundado en 1842 cuando el general y presidente de la republica Pedro Pablo Alcanta Herrera y como deseo de Simón Bolívar de abrir un camino que facilitara el paso por la cordillera central, uniendo el occidente con Santa-fe de Bogota, da beneficios y garantías, ademas crea un penal en la convergencia de la quebrada Boquia y el Rio Quindio los encargados de abrir las trochas del camino nacional era los reclusos, sin embargo antes de la conquista española cuando los indígenas

pasaban de un lado a otro de la cordillera central para el trueque de oro por sal y otros elementos en sus inicios se llamo el camino de os indios, después de la conquista española fue conocido como el camino real ya que era la única vía que comunicaba las vías de popayan y cali con santa-fe de bogota. La calle real fue creada con la plaza porque era el despliegue del camino nacional hacia el tolima o hacia bogota. Cuando comienzan sus construcciones sus casas al lado izquierdo son hechas de

un solo piso y al lado derecho de dos esto se da en 1880 con una arquitectura colonial, esta calle comenzó a convertirse en un espacio de comercio para artesanos de diferentes lugares de Colombia. A partir de la declaración de la Palma de cera como árbol nacional en 1986 todo salento comienza a volverse un lugar famoso y su turismo toma fuerza A finales de la década de los 90 e inicios del nuevo milenio, la llegada de extranjeros ansiosos por conocer empezó a aumentar su población, su comercio y turismo.

Antigua calle real imagenes/www.salentoquindio.com.co.

20
parque de salento 1856

SALENTO

Ciudades colombianas

ANALISIS URBANO

Arquitectura

Lo mas característico del municipio de salento es precisamente su arquitectura colonial de la casa antioqueña que tiene materiales sencillos y nobles como madera y teja de barro y muros de bareheque, espacios interior grandes y aireados, con colores limpios cálidos y alegres, con luz brillante que contrasta con el verde de las montañas. Es una colección de edificios de uno y es pisos con sus balcones colores ademas de puertas y ventanas.

21

SALENTO

Ciudades colombianas Infraestructura

Su movilidad para realizar recorridos o desplazarse a sus veredas y viceversa, es por medio de jeep, o caballos, para transportar el café y otros productos campesinos también para el turismo que lleva a el valle cocorà, en cuanto a las vías tiene la una vía principal para llegar al municipio va desde la vía pereira armenia, ademas de poseer su calle mas turística la cual es llamada la calle real, es una calle comercial y las mas turística del municipio, incluso guía a las escaleras de uno de los miradores, otra de sus vías de gran importancia es la carretera al valle del cocora ya que una de las principales razones de turismo es visitar este lugar, sin embargo es un trayecto largo, por carretera angosta y dado a su flujo es difícil transitar en especial los fines de semana.

22
Vías alternas Carretera valle del cocora Calle real Vía principal

SALENTO

Ciudades colombianas Infraestructura

Ahora bien, boquia esta ubicado a kilo-metros del casco urbano de salento, en los inicios boquia era uno de los puntos para el paso para la población de sus inicios, por lo que se crearon infraestructuras las cuales actualmente se encuentran abandonadas, pero que tenían gran potencial, por ejemplo el ferrocarril un proyecto entre armenia e ibague que se intento en y se abandono en 1949 sobre la quebrada boquia, aun queda el puente de piedra con sus 4 arcos salidos del lecho del cauce.

Geografía

Al ser la cuna del árbol nacional, en su ámbito de silvicultura su mas su espacie mas relevante es la palma de cera. El municipio de Salento se encuentra situado en el sector nororiental del departamento del Quindío sobre el flanco occidental de la Cordillera Central, es por eso que su contenido orografico es muy relevante, la composición de sus montañas y sus valles, y como estas rodean o abrazan el área urbana de una manera muy armónica, ademas, lo que conforma su topografía inclinada.

Salento tiene un temperatura que puede varias entre los 13ºC y los 22ºC. Hacia el norte y oeste se encuentra el componente hidrográfico del rio del quindio

23

SALENTO

Ciudades colombianas Social Salento se contruye a partir de la cultura regional como el hecho de ser parte de cultura paisa, y mas alla la cultura arriera de cual se contruyo el proceso de colonizacion de salento, de aqui parte el hecho de que los habitantes de y su conformacion sea de una ciudad que no le corre el tiempo, en diferentes ambitos como su manera de transportante y como la plaza del area urbana se convierte en el lugar de encuentro y tambien se presta para un momento de comercio e intercambio. incluso esta cultura y ademas tradicion es la presenta al municipio como un atratrativo para que su ciedad tambien sea la turitica, donde hay visita

24

SALENTO

Ciudades colombianas Morfologia-Paisaje

El municipio tiene un tasado en su área urbana bastante rectangular sus calles llevan a la plaza central, donde se encuentra hitos como la iglesia o la mayor parte de entidades que organizan el municipio como lo es la alcandia o estación de policía, a demás su comercio en artesanías o uno de sus factores fundamentales de la región, el café, es por eso también que los primeros niveles de sus casa son utilizadas para el comercio como restaurantes o tiendas de artesanías o cafés característicos del quindio, sin embargo sus balcones también se convierten en ese punto para formar terrezas donde se puede apreciar la vista a la calle mientras el aroma sale a las calles.

25

SALENTO

Ciudades colombianas Morfologia-Paisaje

El municipio tiene un tasado en su área urbana bastante rectangular sus calles llevan a la plaza central, donde se encuentra hitos como la iglesia o la mayor parte de entidades que organizan el municipio como lo es la alcandia o estación de policía, a demás su comercio en artesanías o uno de sus factores fundamentales de la región, el café, es por eso también que los primeros niveles de sus casa son utilizadas para el comercio como restaurantes o tiendas de artesanías o cafés característicos del quindio, sin embargo sus balcones también se convierten en ese punto para formar terrezas donde se puede apreciar la vista a la calle mientras el aroma sale a las calles.

26

SALENTO

Ciudades colombianas DETALLE ESCALAR Pieza

27
Unidad CONJUNTO

CIBERGRAFIA

Ciudades colombianas

https://www.quindio.gov.co/salento#:~:text=El%20municipio%20por%20sus% 20caracter%C3%ADsticas,%3A%20medio%2C%20fr%C3%ADo%20y%20p%C3%A1ramo.

https://issuu.com/jessyaristizabal/docs/cartilla_arquitectura_colonial http://academiadehistoriadelquindio.blogspot.com/2015/01/salento-175-anos.html

https://www.cronicadelquindio.com/noticias/region/historia-de-salento-calles-en-trochas-artesanos-y-arriera https://www.quindio.gov.co/salento#:~:text=El%20municipio%20por%20sus%20caracter %C3%ADsticas,%3A%20medio%2C%20fr%C3%ADo%20y%20p%C3%A1ramo.

https://www.turismoquindio.com/municipios/salento/ https://colombia.travel/es/blog/salento-quindio-pueblo-de-palma-de-cera-y-artesanias

28

Turn static files into dynamic content formats.

Create a flipbook
Issuu converts static files into: digital portfolios, online yearbooks, online catalogs, digital photo albums and more. Sign up and create your flipbook.
ANALISIS-URBANISMO-SALENTO by Estefania Agudelo - Issuu