PO FO RTA LIO
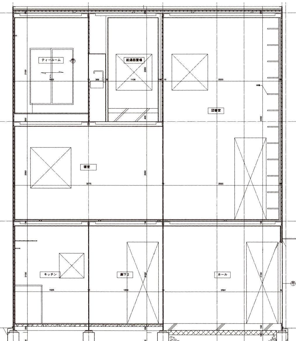
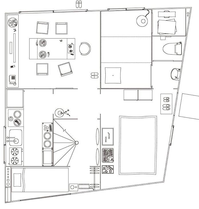
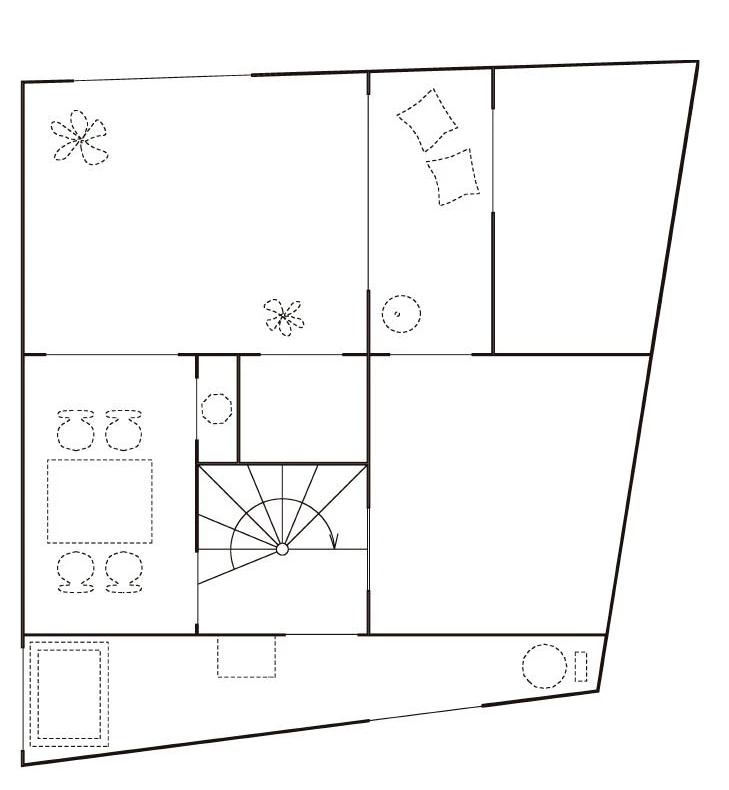
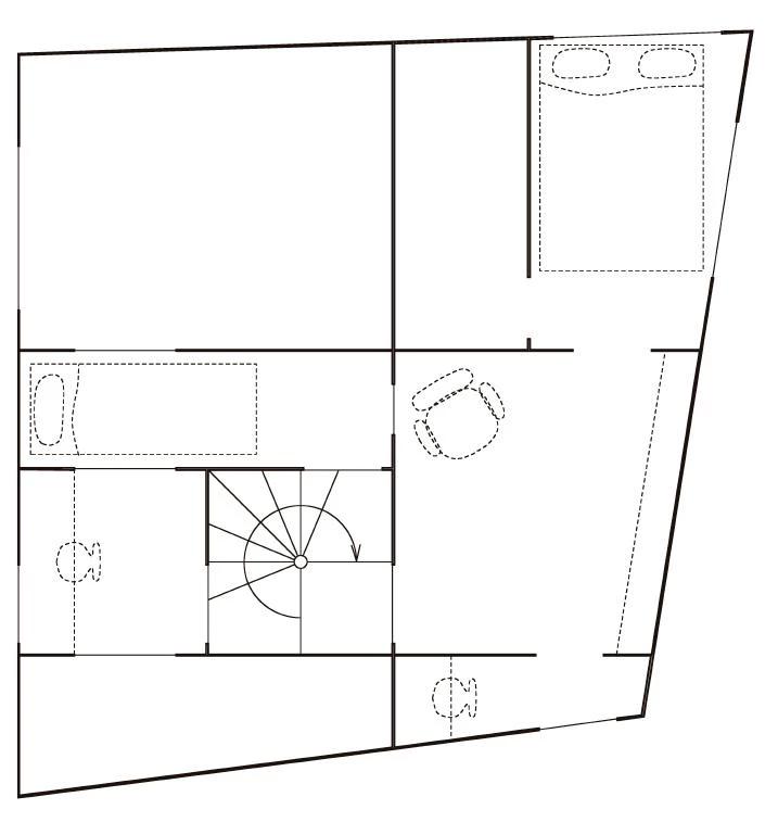
Análisis funcional en planta
Las actividades al interior de la espacialidad
Análisis espacial en sección
El pensamiento en sección
Análisis del caracter
Envolventes y espacios intersticiales
Análisis de las atmósferas espaciales
Análisis del emplazamiento y su relación con el paisaje
El emplazamiento de la casa
Arquitectas representativas
Kazuyo Sejima
Análisis funcional en planta
Japón
Tokio Distrito metropolitano de Tokio
Interpretación de modos de vida Interpretación de modos de vida
Espacios servidos Espacios servidores
Son los espacios depositarios de la actividad específica
Año: 2003
Área del terreno: 92m2
Área de construcción: 77m2
Los que comunican, reparten, conectan y permiten el acceso a los espacios servidos.



Habitaciones limitadas a la actividad del descaso


Espacios servidos y servidores
Elementos conector que articula las plantas
Espacios comunicantes
Son aquellos que están conexos a otra espacialidad identificable como una entidad individual
Espacios compartimentados y comunicantes
Análisis funcional
Espacios compartimentados
Análisis comunicación
Confinados completamente con alguna envolvente y a los cuales se accede únicamente desde un corredor, vestíbulo u otro espacio perteneciente al sistema general de la edificación.

Definir o identificar los espacios compartimentados por medio de un mapa de circulación
Análisis espacial en sección
Sección
¿Qué es lo que produce la atmósfera interior?
Comprender y comunicar los atributos espaciales y constructivos, en tanto muestra las relaciones y dimensiones de los espacios interiores, sus envolventes y entrepisos.
Ventilación cruzada
Expresa la espacialidad
¿Por dónde, con qué intensidad, y cómo entra la luz?

Conjunto de recintos conectados por vanos

La luz es direccionada al interior por la conexión de los espacios por medio de vanos



Análisis
Espacios de transición de dominios
Con funcionalidad

Sustracción de llenos y vacios


Sala/ Hall de acceso Salón de juegos

Biblioteca




Lenguaje plástico de la modernidad, volumen blanco, puro, cubierta plana, abstracción, huecos ortogonales, fachada libre.
Los muros de cerramiento de 50 milímetros de espesor se conforman con paneles estructurales de chapa de acero de 16 milímetros
Gracias a su delgadez, los planos verticales ocupan un espacio mínimo y admiten múltiples perforaciones de diversos tamaños a modo de ventanas que establecen nuevos tipos de relación entre las estancias, sin comprometer su carácter privado
Análisis de las atmósferas espaciales
La proporción es la que otorga la intimidad
Estrechez que produce sensación de recogimiento

Habitación de los padres

Conexión de espacios mediante a vanos
Terraza abierta
Uso de dobles alturas Habitaciones reducidas



El proyecto está situado en una pequeña parcela cubierta de ciruelos próxima a la ciudad de Tokio. Rodeada de una edificación baja, en la que las viviendas se han ido colmatando dejando huecos mínimos entre ellas, destaca por el hecho de ser visible desde dos calles y por retranquearse de la medianera.
Setogoya, barrio especial más poblado



