ESSENCE ROBICHAUX

I believe in andsustainabilityinteriorscreatingwithwellnessinmind.
When creating designs, I aim to be well-rounded in all aspects. Throughout my designs, I have implemented various creative processes that highlight both hand skills and digital software. I value sustainability, wellness, & universal design elements that provide comfort to individuals. In the near future, I would like to pursue residential, commercial, & hospitality design projects. I plan on producing thoughtful designs that integrate cultural awareness, versatility, & remain timeless within these design specialties.
Table Of Contents
01 CTCAHT UNFURLING FALL 2021 WITTE MUSEUM LET YOUR INSTINCTS GUIDE YOU FALL 20200302 CUBE PROJECT THE STAGES OF LIFE SUMMER 2019




CTCAHT CENTRAL TEXAS COALITION AGAINST HUMAN TRAFFICKING IS A NON-PROFIT ORGANIZATION THAT INCREASES PUBLIC AWARENESS AND IDENTIFIES TRAFFFICKING CASES. THIS GROUP ALSO PROVIDES MEDICAL AND SOCIAL SERVICES TO VICTIMS IN NEED.

Photoshop, InDesign 7
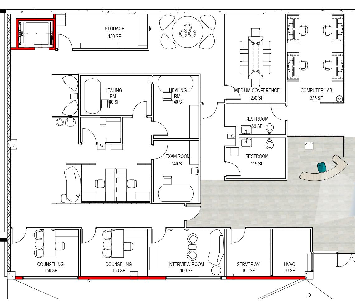
GROUND LEVEL HEALTH SUITE ENTRY ORIGIN (KORU): REPRESENTS THE FROND OF THE NATIVE NEW ZEALAND FERN





2 1 LIBRARY SYMBOLIZE: NEW BEGININGS, LIFE, GROWTH, HOPE, & PEACE SHAPE: CONVEYS PERPETUAL MOVEMENT, POTENTIAL ENERGY, LIGHT, RENEWAL 9








LEVEL ONE




GALLERY OF MEMORIES
RECEPTION AREA
The “Gallery of Memories” presents the captured moments experienced by the current tenants residing within this transitional housing. This dislpay encourages the residents to create memories and unfurl into the new journey they have begun.
11


INDIVIDUAL SEATING
On this new journey, residents are adjusting to their transition back into society. The lounge space provides the residents options to choose their social mood. This area emphasizes the importance of choice, peer support, and collaboration.


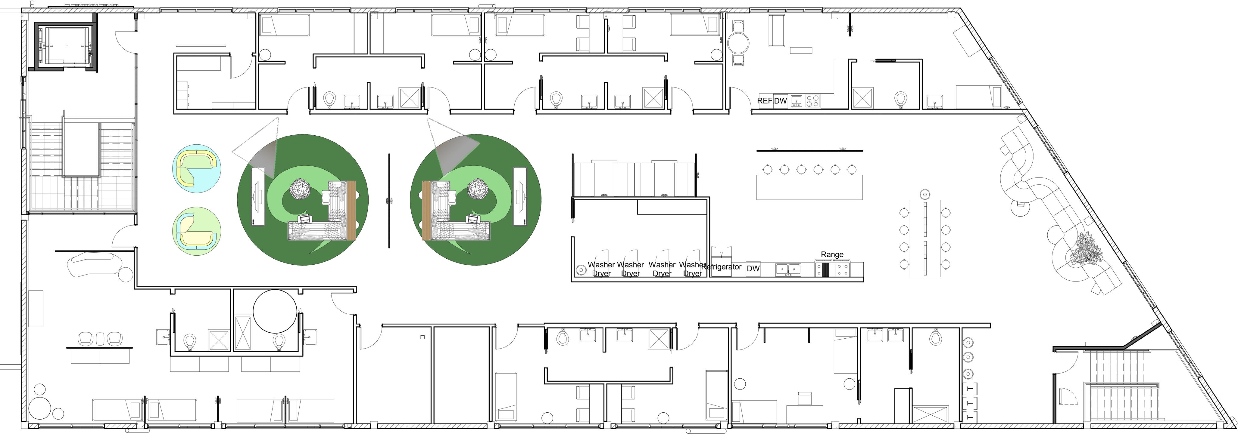
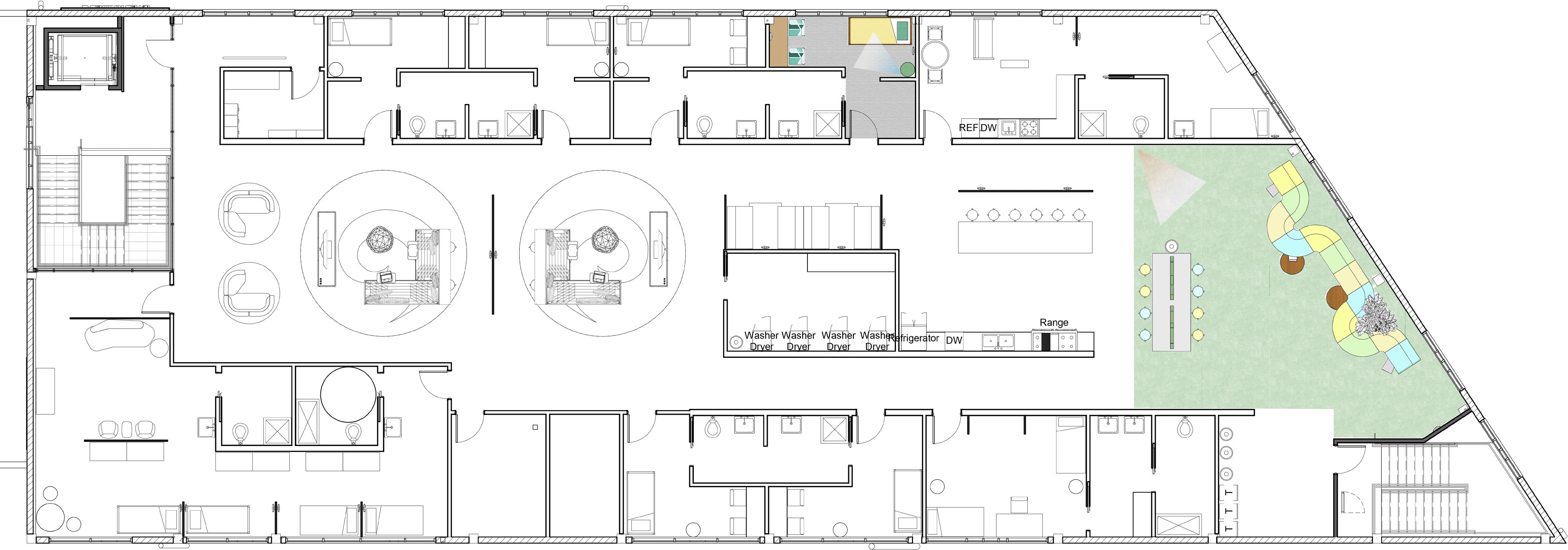
LEVEL TWO GROUP SEATING 13






BEDROOM SUITE DINING & LOUNGE
LEVEL TWO15
Residents have the option to personalize their bedroom. Controlling the aesthetic of the living chambers allows an opportunity for the residents to become more empowered within their space. Personalization enhances each individual’s voice and choice.


WITTE MUSEUM The Witte Museum project is inspired by the ‘People of the Pecos’ exhibit housed in the main building of the Witte complex. The design focuses on the Mays Family Center where visitors can experience unique dining, retail, & immersive interactive educational content.

As we see organic forms, shapes, colors, and materials influenced from the Lower Pecos region, we begin to see the connection forming between the visitor’s instincts and their natural attraction to these outside elements.
Revit, Photoshop, InDesign 17




445 5 667 8 3 3 OUTSIDE FOOD/DRINKPOPDININGSTAIRS/LIFTMAINSECONDARYSEATINGENTRANCEENTRANCEUPSHOPKIOSKINTERACTIVEEXHIBIT(2ND LEVEL)43215678 HOSPITALITY/ POP-UP SHOP LEVEL ONE 1 2 N 3



POP-UP SHOP: INTERIOR SECTION The pop-up shop and interactive area provide educational content visitors of all ages can enjoy. 19

FOOD & DRINK KIOSK The design for the food and drink kiosks are inspired by the lower Pecos region canyonlands and act as the foundation for the proceeding hospitality and retail areas. The kiosks are designed as a kit-of-parts and are made from sustainable materials that are locally sourced.

KIT-OF-PARTS KIOSK Canyon roof made from raw wood material and mimics the shape of layered canyon walls The pole and wall divider act as supports for the roof, made from cork veneer travertineemulating LED lighting illuminates through the Rattan shade SUSTAINABLE FEATURES 21


KIOSKS
The food and drink kiosks are easily accessible to visitors while visiting the museum.


POP-UP SHOP LEVEL ONE The pop-up shop allows visitors to buy special exhibition tickets, and to explore content hosted in the Witte.


The hospitality area provides a barrier-free space for all ages to travel through the canyonland.
HOSPITALITY AREA

POP-UP SHOP LEVEL TWO The interactive exhibit allows families to immerse themselves in the Pecos sky.


THE STAGES OF LIFE THE CUBE The cube project is located on Texas State University’s scenic campus. It provides an openair experience for students to connect with nature. This space is easily accessible and multifunctional. The cube offers group interaction and a private escape for personal time.

AutoCad, Revit, Photoshop, InDesign 27
The design for the cube project is based on the idea of growth. Inspired by the cambium cell layer within a tree trunk, the structure of the cube represents the growth of college students. Similar to the cell layer, the students experience being naturally positioned in a setting that constantly stimulates them to grow.




horizontal voids between beams represent the space for new wood to be formed. The concrete material symbolizes the central pillar of the tree. The center will not decay or lose strength while the outer layers are intact. The wood material represents bark, the protective layer of a tree. Vertical wood beams increase in stimulatingsymbolizingheightthegrowth cells inside a tree trunk. The horizontal beams symbolize the new wood that forms in the tree trunk.
STRUCTUREThe
EXTERIOR


INTERIOR STRUCTURE Cafe grants easy access for workers not located on the first level. 29

CONTACT INFORMATION Desoto, Texas docs/2021_portfolio_internship_issuuhttps://issuu.com/essencerobichaux/@essence-robichauxessencerobichaux@gmail.com75115




THANK YOU

ESSENCE ROBICHAUX
