ESSAM_ELARABY_SAMPLE_PORTFOLIO

Page 1


ABOUT ME

I am an architect driven by curiosity and innovation, recently completing my second master’s degree (MA Architecture) at the University of Liverpool to deepen my understanding of architectural theory and its expression. On track to becoming a fully accredited RIBA architect, I integrate tradition with modern practice, seamlessly blending contextual sensitivity with advanced tools such as AI in design development and execution.

My approach combines politics, history, urban context, and art with architectural theory to create impactful designs. Proficient in rendering, visualization, and parametric design, I utilize these skills to craft unique solutions. Beyond technical expertise, my strength lies in diagnosing complex situations, devising innovative strategies, and bringing concepts to life with clarity and purpose, shaped by my diverse education and experience.

ACADEMIC

Projects showcasing different concepts and ideas imagined with tools such as digital fabrication and understanding of theory.

ARCHITECTURE

Professional and personal architectural projects showcasing structures and design concepts.

INTERIOR

Projects focused on interior spaces, detailing design, materials, and spatial solutions.

OTHER

Design aspects related to Workshops, Photography, AI, and Side work that have an artistic vision and attention to detail.

01 03 04 02

MA Architecture Thesis: Pedestrian-Oriented Public Spaces in Heliopolis,

Reinterpreting Urban Space through Architectural Heritage and the Pedestrianization of Ibrahim Street in Heliopolis, Cairo

Cairo, a metropolitan city rich in architectural layers, reflects its history through diverse design elements marking distinct eras. Early designs emphasized walkability and livability. Heliopolis resembeled this, but post 1952 political shifts and security concerns made the creation of new public spaces a challenge, limiting opportunities for civic engagement.

The design leverages Heliopolis’s contextual lines to create a 4.5 x 4.5-meter grid, reflecting the area’s unique identity and social vibrancy. Drawing from the scale of a four-chair table, the module enhances the street’s role as a lively hub for cafés and restaurants.

A central seating area fosters community interaction, while low vehicular traffic enables pedestrianization without disrupting transportation networks. The site’s evolution over the years reveals a dynamic transformation, where my reinterpretation of its spatial narrative highlights the shifting priorities. The image captures this progression, illustrating the growing dominance of vehicular presence over time.

UNDERSTANDING THE SITE

Above: Comparison between Urban growth in Cairo before 1950 in blue and the expanison after until present in brown.
SITE LOCATION

the most critical challenge was selecting the site, as it needed to align within an urban design context, warranting the pedestrianization of this particular street ;creating a space that has all the above is a necessity not a luxury

The main reason for this section to showcase the transformation of a car centric street that has the potential to be a powerful combination of urban heirarchy as a public space

EXISITING PROPOSED

Referred to as the Heliopolis style, it includes different architectural elements, including Neomamluk, Italian, and Moorish spinning a unique blend of .

The supervisor commended the realism of my approach, recognizing its feasibility for real time implementation a vision I am actively pursuing in collaboration with authorities.

Height space relation of the buildings in the context surrounding the site with the seating areas and the sun shade.

PARAMETERIC DESIGN AND DIGITAL FABRICATION

Brick Extrusion Patterns Using Thermal Simulation

Group work of 4 : my role was concept , research + testing

Software :Rhino + Grasshopper + Ladybug

This course utilized Rhino and Grasshopper to design a modular, sustainable brick wall for robotic arm assembly. Inspired by the jackfruit’s spiky texture through biomimicry, the design featured interlocking, mortarfree bricks with selfshading surfaces to reduce heat absorption. My role centered on conceptualizing, designing, and testing the brick’s sun-reflective properties, ensuring both functionality and environmental performance.

technology as a tool can be an asset in a visionary design procedure. not a constraint or expense

Shadow Analysis during morning at 10 am
During production Scan for Production timelapse video QR

Housing Project Design: A

House for Artists

Focusing on designing affordable living spaces for artists in Liverpool’s dense city center, dominated by 5-story buildings. To counter this urban intensity, I developed a design module that breaks the monotony. Drawing inspiration from the surrounding graffiti; a raw, informal expression of art; I integrated its essence into the project’s vision, creating a unique dialogue between art and architecture.

Connecting the buulding within the context is not just by design or materials but by engaging through scoial activities in the open roofs engaging them with the surounding art.

Massing-Zoning Relation

Section show the relation of the openings within the building

Skylight Mass Development

MArch. Part 2:CHESTER

RIVERSIDE CULTURE

Buildings as Public Spaces

With the site located in Chester just next to the racecourse,what I am trying to achieve is how to apply contextualism with using the edges of the site as a potential of connecting it with the surrounding context to emphasize the building as an icon of Chester hertiage and culture.

On the right the Bubble diagram shows the relation between the user, Primary uses of the site and the temperorary uses during the event of a horse racecourse.

Mass Design Development

Inspired from the human eye view relationship ;the vista of Grosvenor bridge from the Chester Roman wall entrance to the town centre dictates the massing of the building.

Scan for walkthrough video

‘‘

architecture creates the built enviromnment in which human life evolves - Eberhard Zeidler

The blue zone is main services,red zone is the galleries, and green is public spaces such as the library and museum

Site relation with massing; Derviving the grid from the context can maxmises the potenial of the site .

Grossvenor Bridge arch seen from the main lecture room

Design Development it is inspired from the human eye view relationship with the Grosvenor bridge from the Chester roman wall entrance to the town centre.

The cross section above illustrates the relationship between the building’s activities and its surrounding context, linking the iconic Chester Race Coarse to the routes leading toward the river and the town center as shown in the visuals.

Housing Project

‘‘Density,

Type and Diversty”

The Birkenhead housing project combines residential units, workshops, and commercial spaces supporting low income families through integrated living and income generations.

It emphasizes spatial efficiency while addressing density, diversity, and human interaction within a cohesive architectural design.

ACADEMIC THROUGH AI

Buildings as Public Spaces

Software : Midjourney

Exploring art and architecture with it. Using aspects from my Part 2 Grad thesis and explore the limits in a more evolved way and see how can I build on it .

A public chair, Inspired from Egyptian Mamluk geometry in a parametric fashion.

AI provides a platform to explore my ideas from a perspective that deepens and enriches my creative inspiration; a powerful tool

Facade Design Language

01 SHELL

This protruding skin façade creates depth and maximizes space, offer a dynamic visual experience with shifting shadows and changing color tones as the sun moves.It ensures natural light and air circulation, captivating both children and adults, the primary users.

02 FACADE ELEMENTS

The horizontal and vertical elements between the façade shell and the main building enhance visual aesthetics, structural support, and offer shading.

03 MAIN CUBE

The building was strategically positioned north of the façade shell, with a 6-meter gap for air circulation and ventilation. The non load bearing shell protects the structure from southern winds while allowing ample daylight.

PART 1: Part Time Architecture Assistant

at IK Architecture Studio - Liverpool

Team work of 2 : my role was visualisation

Software :3D max + Corona + Sketchup

The design focused on refurbishing the building and introducing a rooftop outdoor area, best conveyed to the client through section renders.

The goal was to create a contemporary, laidback oriental interior, featuring red brick cladding to harmonize with the exterior context.

‘‘

the most selling part of this propsal was the Section Visual which exposes more detail

Exterior and Section Visualisation for Maple Culture Center ,London.

Freelance Work

Bootle Residential and Commerical tower Visualisation, Liverpool

The difference between option A and B is the building with the built in courtyard in the residential and commerical areas.

The courtyard in option A helps the idea of the ship comes alive more.

But initially the client decided to choose the best of both options into a whole new alternative. He wasn’t supportive of the court idea though.

Hence the massing had to be upgraded a bit.

The Visual shows the relation of the building with the context. As this was a very commerical focused property with residential apartments in the tower, I still tried to balance the spirtual sense in the building balancing it with greenery.

PRAYING AREA FOR A ORPHANGE CENTER

FOR A CLIENT - UK

at IK Architecture Studio - Liverpool

Team work of 2 in office : my role was visuaisation

Software :3d max + vray + photoshop

The prayer space at Kabul’s orphanage balances privacy and natural light within a compact design. Brick screens provide seclusion while casting intricate light patterns, complemented by wooden elements that add warmth. Durable and weather-resistant, the brickwork draws inspiration from Mamluk patterns, with dashed outlines integrated into the stone to reflect the motif.

Vernacularity, spatial harmony and spirtuality unite tradition and the human spirit

THE BRICK FOLLOWS A 45cm x 45cm module and is made of local sun dried mud bricks

Octagon Star Fabrication project

at IK Architecture Studio - Liverpool

Team work of 2: my role was 3d modelling +visuaisation

Software :3d max + vray

The Octagon Star

The octagon shaped is a project which I colloabrated with Islamic Art Designer and Architect Zeynab Iqbal Kayani from Turkey and based in London.

The Making of the product.

From trials of different wood materials to fabrication process. The final piece was made out of Oak wood and the sphere from Brass.

It was cut with a CNC machine in Iraq and shipped to Turkey in Istanbul where it will be placed in an Art exhibtion organised by Usterlab in Istanbul.

Final Product
During Production
Rendered trials
Choosen option from trials

ARCHITECTURE : PROFESSIONAL WORK

At Hassan Abou Seda Architects

Team work of 2 : my role was visualisation Software :3D max + Corona + Sketchup

Karim Zahran House Exterior Visuals
Karim Zahran

Furniture Visualisationans and setup

Designed by head Architect Hassan Abou Seda

Team work of 3 in office : my role was visuaisation

Software :Sketchup + vray

Visioning a photoshoot setup to highlight the designed furniture and effectively showcase its details. In scenarios where a full photoshoot isn’t feasible, this approach serves as an alternative plan.

O wood coffee chair
O wood coffee table
O wood Dining table

Ahmed El Tawel House Guest Toilet

Team work of 4 in office : my role was visuaisation

Software :Sketchup + vray

In a compact 1.2m x 1.8m toilet, material selection was key to enhancing spatial perception. Warm, light materials like walnut and terrazzo marble were applied vertically, emphasizing the space’s height and mitigating the sense of confinement, creating a more comfortable and inviting environment.

crafting visuals that capture the essence of materiality in a very limited space

Terrazzo Marble tiles Walnut Cladding

My work with ALCHEMY - Maadi, Egypt -2017

Meaet Resteurant Full Technical drawings

Team work of 2 : my role was CAD technical Arch package ( floors+elevations)

Software :Autocad

I managed the interior execution; producing detailed drawings for elevations, floors, ceilings, and architectural plans. Ensuring seamless coordination throughout the project to its successful completion as shown.

Meaet Restaurant in Dokki, Cairo, is a highend dining venue which specializes in butchery with a luxurious experience.

Pinnacle Construction Company

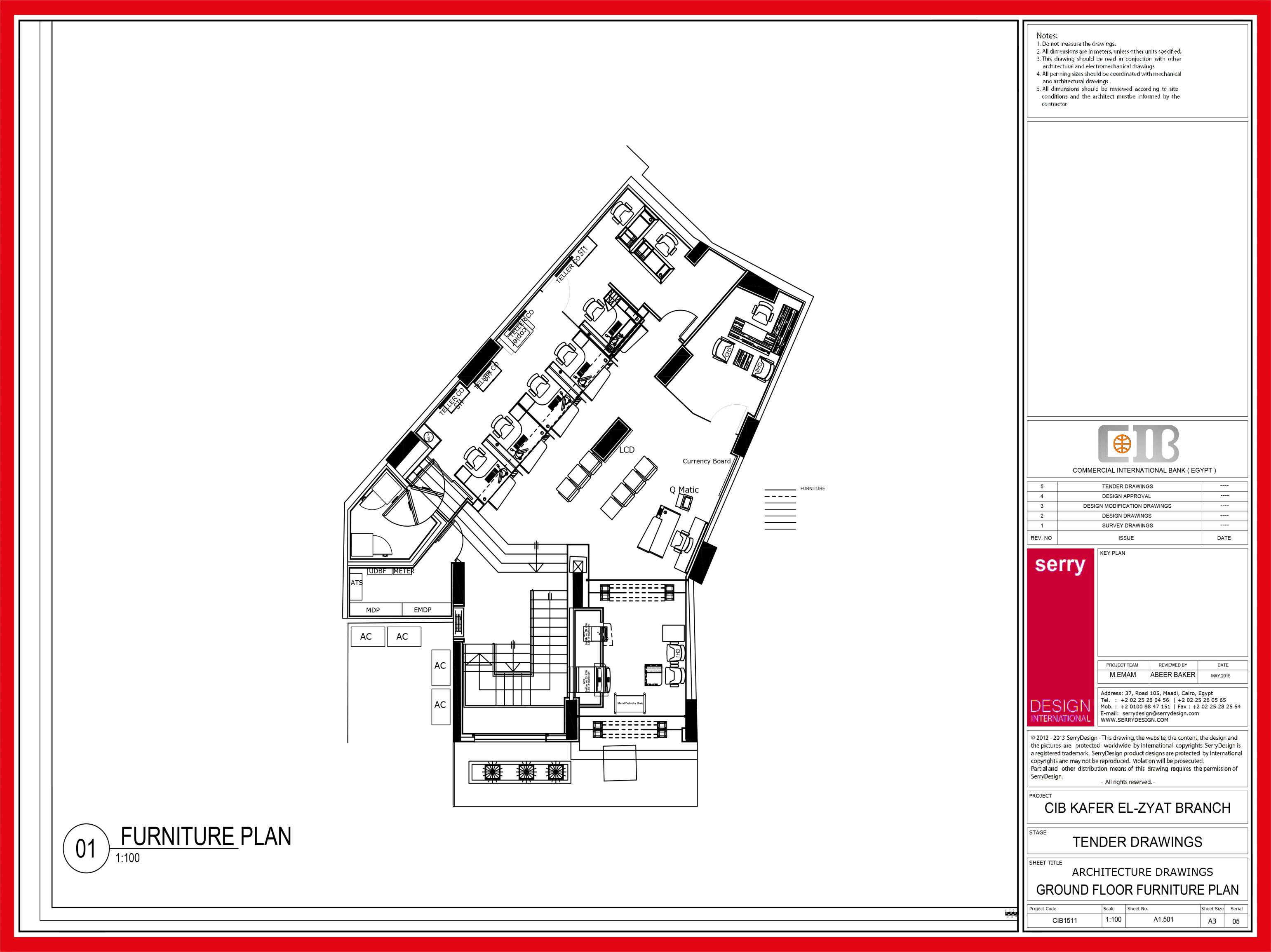
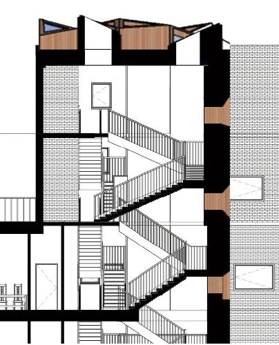
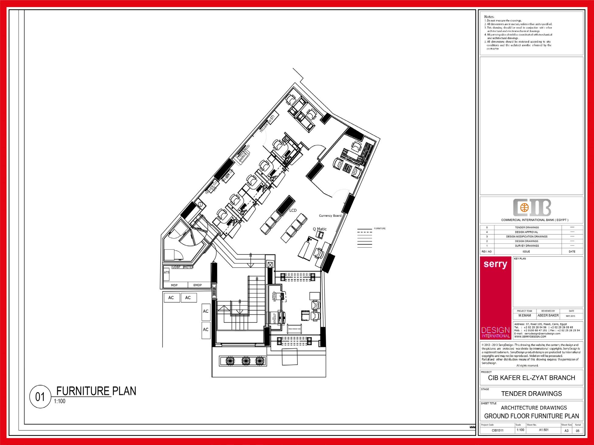
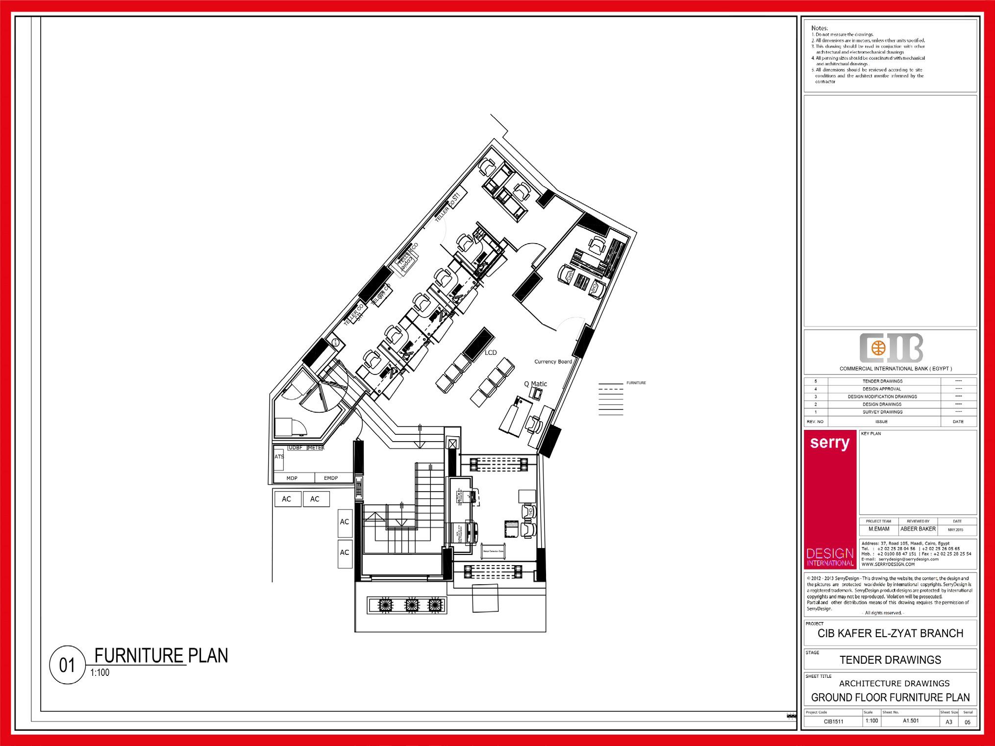
Commercial International Bank ( CIB ), Kafr El Zayat Branch fitout, Egypt

Team work of 4 in office : my role was visuaisation and cad drafting the plan

Software :Sketchup + vray

Designed by Serry design house, I was working on the execution and modeling the drawings from 2d to 3d until the final sub mission of the project.

facade show the difference between the 3d model and the built up in Branch Facade after handover to the client.

Contemporary interior visualizations achieved with compelling results. In instances where a client requires swift presentation of concepts, the integration of AI facilitates the generation of diverse ideas, enabling effective discussions within a limited timeframe.

Software: Midjourney

For my thesis on the impact of color on well-being, I examined the intersection of people, art, and architecture, which led to a deeper appreciation for abstract art. My painting Blue Hole earned 2nd place in the 2023 LAF Drawing Competition, held between the University of Liverpool and Liverpool John Moores University. Viewers interpreted it as evoking imagery of the moon, a blind eye, or the moon’s reflection in a city lake.

Samples of My Own Side Work

PRODUCT DESIGN : BOOKMARK - 2022

As I always wondered why can’t a bookmark have a really interesting design. I designed and laser-cut wooden MDF bookmarks that combine inspired cultural design, practicality, and versatility they can also serve as keyrings, desk décor, or tea coasters, all at an affordable price. In a Craft Bazar in Old Cairo, I was curious about people’s reactions and was thrilled to sell most of my stock!

Different designs depends on the pattern layout design to offer more

my aim was to create a product that can be a practical every day to use asset

BLENDING Ai , Art and Architecture

With the blending feature in MidJourney, I combined abstract paintings i did with a 3D model of arches to explore unique design alternatives.

The results are inspirational and aid in brainstorming out of the box ideas for interior spaces, architecture massing, or illustration concepts, bridging abstract art with architectural form.

ARCHITECTURE PHOTOGRAPHY

Architectural elements from around the world

I choose the door element as it captured my interest through my architecture walks in Cairo that it has wooden doors dating back to the 18th Century.

What surprised me was the resemblence of decoration elements similar to other doors I saw in my travels in Rome, Aegena,Athens and Veinna despite the culture difference.

Workshops

DESIGN FOR IMPACT: Story Mapping Zabbaleen

Manshyt Nasr workshop the second workshop, which I participated Netherlands. It was about mapping the area of Manshyt Nasr, the largest capabilities in Cairo, with over 85% of recycled waste each month. students.

Among the many workshops I attended, “Design for Happiness” by Dutch studio NEAR, supported by the Dutch Embassy in Cairo, stood out as the most special. Focused on total recycling using simple methods, the second stage, which I joined, involved mapping Manshyt Nasr, Cairo’s largest informal settlement, recycling over

The final product on the right was a group of 7 people. My part was sketching and locating the main keypoints of the general bird view 3d map as shown top right.

During the past few days, a workshop, "Design for Impact", was launched as a continuation previous workshop to map out parts of

Cairo
Birkenhead, Wirral
Athens
Raw, Shot by IPhone 12 pro max
In April 2017, our first workshop, “Design for Happiness”, took place. We asked ourselves question: if urban surroundings are powerful enough to shape a person’s feelings, can’t smallest change in public space happiness? The results were engaging, inspiring and realistic.
Zabbaleen through the eyes of the locals
Manshyt Nasr workshop: the second workshop, which I participated in, and done by Near Design studio from the Netherlands. It was about mapping the area of Manshyt Nasr, the largest Informal settlement with recycling capabilities in Cairo, with over 85% of recycled waste each month. The final product below was a group work of 7 students.

Turn static files into dynamic content formats.

Create a flipbook
Issuu converts static files into: digital portfolios, online yearbooks, online catalogs, digital photo albums and more. Sign up and create your flipbook.