Portafolio - Esli Venancio Castañeda

Page 1

PORTAFOLIO ESLI VENACIO CASTAÑEDA
ÍNDICE 1 2 3 4 5 DEPORTIVO UM SECTOR OESTE RENDER HOGAR VICTORIA INTEGRA SPACE 01 - 02 03 04 05 - 08 09 - 16

DEPORTIVO UM

Universidad de Montemorelos | Intervención de calle

Áreas de oportunidad

Áreas verdes.

Banquetas

Objetivos específicos:

Integrar de forma espacial a la Universidad de Montemorelos. Crear espacios seguros para los usuarios de la Universidad de Montemorelos. Utilizar vegetación como barreras naturales Mantener la armonía entre la calle, el deportivo y los edificios.

Vista Áerea
PORTAFOLIO | 01
Corte Transversal Planta de Conjunto

Texturas

Corte Longitudinal Detalle de Paisajismo Detalle de Mobiliario Detalle de Calle
PORTAFOLIO | 02
Mobiliario Ambientación

SECTOR OESTE

Municipio de Montemorelos | Intervención urbana

Áreas de oportunidad:

Las calles.

Objetivos específicos:

Priorizar la accesibilidad. Proveer medios de transporte viables Crear espacios de cultivo y áreas verdes . Diseñar áreas adecuadas y seguras par el usuario.

Ir de acuerdo al plan urbano

Perspectiva
PORTAFOLIO | 03
Corte Transversal Vista Área Corte Transversal
RENDER Montemorelos | Propuesta de vivienda
Planta
Nivel 1 PORTAFOLIO | 04
Planta de Conjunto
de

HOGAR VICTORIA

Montemorelos | Interiorismo

Objetivos específicos:

Diseñar los espacios interiores de una vivienda de interés media en el estado de Nuevo León, con la finalidad de adaptar cada espacio en donde el menor se desarrolla de acuerdo a sus necesidades durante la etapa de desarrollo preescolar.

Maqueta y Texturas

Planta

Corte Longitudinal

Fachada

PORTAFOLIO | 05
Corte Transversal Isométrico de la Recámara 2
PORTAFOLIO | 06
Isométrico del Patio de Juegos Isométrico de la Recámara 1 Isométrico del Baño Isométrico de la Sala Isométrico del Comedor Isométrico del Jardín Isométrico de la Cocina
PORTAFOLIO | 07
PORTAFOLIO | 08

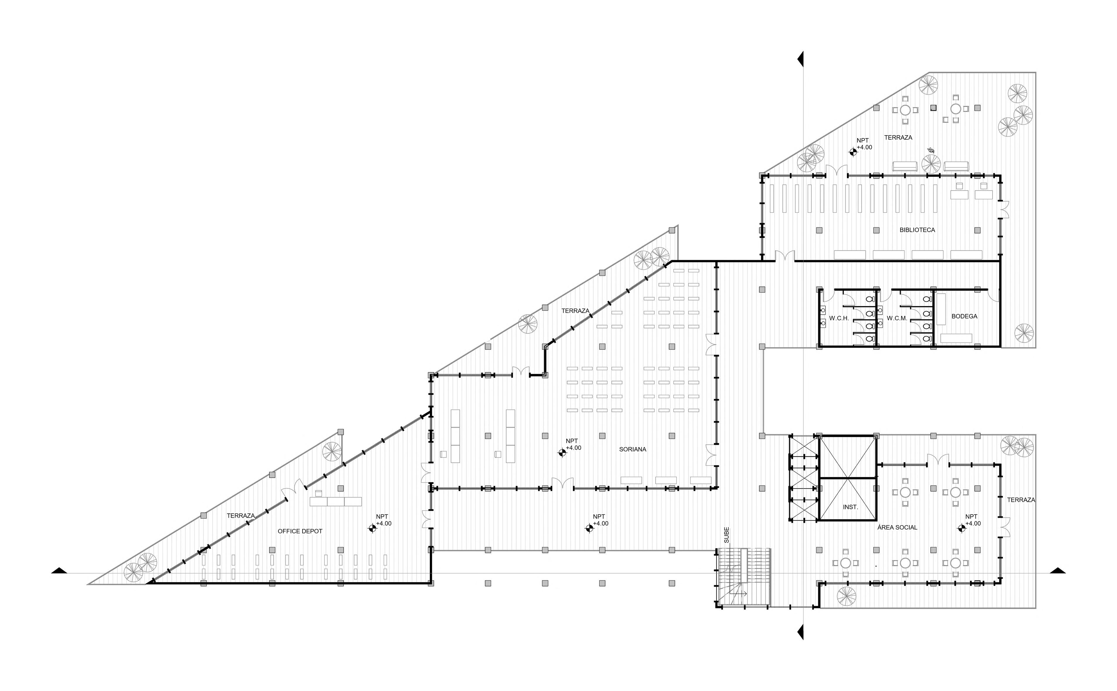
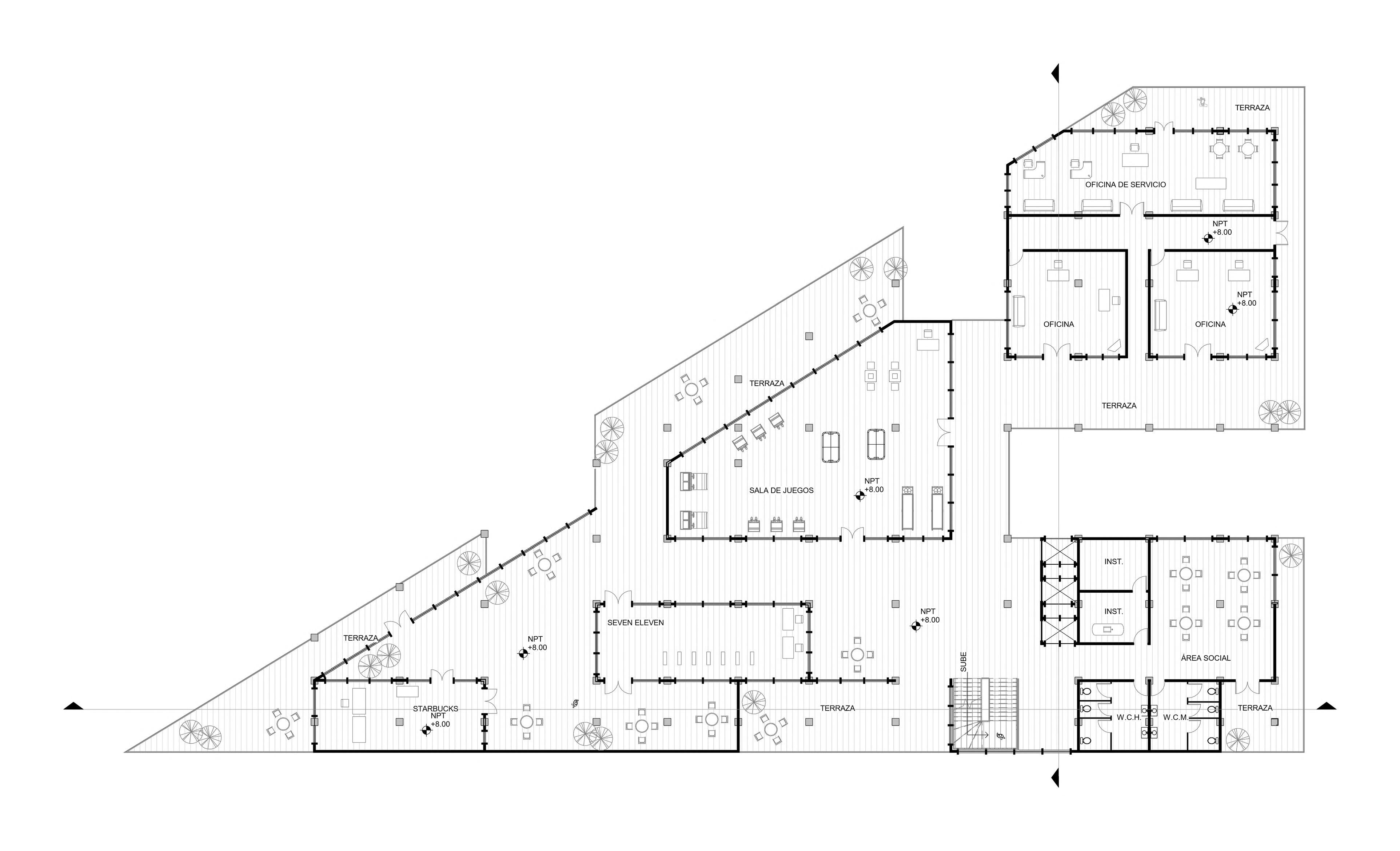
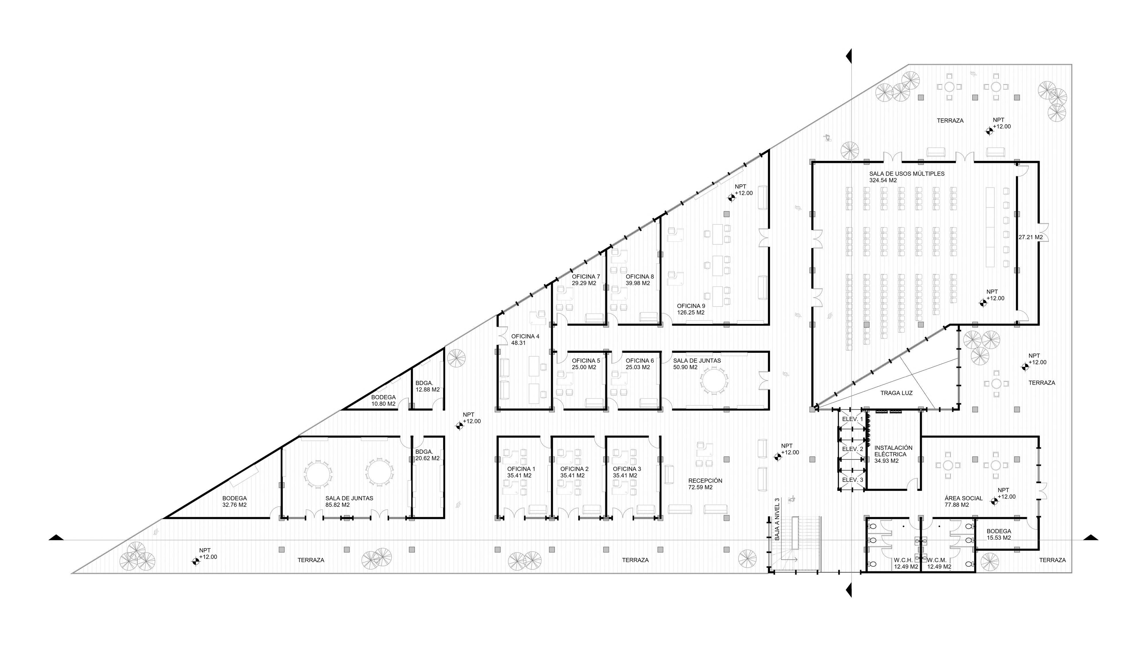
INTEGRA SPACE

Montemorelos | Usos mixtos

El concepto principal de este edificio de usos mixtos es la integración con el entorno.

Por medio de las entradas libres, se generan conexiones directas en donde el usuario experimenta un recorrido fluído. Al mismo tiempo el edificio mantiene la circulación de las áreas comunes y privadas por medio de pasillos amplios y ordenados

Los materiales y su uso ayudan a mantener la armonía con el exterior, ya que permiten que el usuario tenga vista constante a este per medio de ventanales y terrazas.

Corte Transversal
PORTAFOLIO | 09
de Conjunto
Vista Frontal
Planta
PORTAFOLIO | 10
Vista Interior Vista Interior Vista Interior

Corte Longitudinal

PORTAFOLIO | 11
Plano de Estacionamiento
PORTAFOLIO | 12
Planta del Nivel 4 Planta del Nivel 3
PORTAFOLIO | 13
Planta del Nivel 2
PORTAFOLIO | 14
PORTAFOLIO | 15
PORTAFOLIO | 16

Turn static files into dynamic content formats.

Create a flipbook
Issuu converts static files into: digital portfolios, online yearbooks, online catalogs, digital photo albums and more. Sign up and create your flipbook.