ROOF + TEN: Low Rise Housing Project

Page 1

ROOF + TEN

EMMA KARSTEN

ADS 3 PROFESSOR JOHNSON FALL 2023

STATEMENT OF INTENT

THE ROOF + TEN HOUSING UNITS ARE LOCATED IN EUREKA, A SMALL RURAL COMMUNITY IN KANSAS. THE NAME OF THE HOUSING UNITS COMES FROM THE CENTRAL THEME OF “BEING UNDER ONE ROOF”. WHILE EVERY RESIDENT OR SET OF RESIDENTS HAS THEIR OWN PERSONAL UNIT, THE STRUCTURE THAT HANGS OVER THE CENTRAL AMPHITHEATER ACTS AS THE ROOF THE CONNECTS THE RESIDENTS TOGETHER. THE AMPHITHEATER IS A SPACE THAT IS MEANT TO CREATE COMMUNITY AS CONCERTS, MOVIE NIGHTS, AND MORE CAN OCCUR IN THIS SPACE. THE BRICK MATERIALS ON THE OUTERMOST-EXTERIOR WALLS CONNECT BACK TO THE BRICK USED ON MAIN STREET. THIS CREATES A SENSE OF FAMILIARITY FOR THE CITIZENS OF THE TOWN. TO CONTRAST THE BRICK, THE INNERMOST EXTERIOR WALLS ARE MADE OF LIGHT GREY ARISTOLATH METAL PANELS. THIS HIGHLIGHTS THE EXTERIOR SPACES AND CREATES A BRIGHTER ATMOSPHERE.

SITE PLAN

MODEL PHOTOS

THE FIRST MODEL PHOTO SHOWS A BIRD’S EYE VIEW OF THE PARK ALONG WITH THE AMPHITHEATER. THE SECOND MODEL PHOTO SHOWS SHOWS A VIEW OF THE WHOLE MODEL FROM THE SOUTH WEST CORNER. THE THRID MODEL PHOTO SHOWS A BIRD’S EYE VIEW OF THE WHOLE MODEL, HIGHLIGHTING THE OVERHEAD SHADING STRUCTURE.

RENDERINGS

THE FIRST RENDERING SHOWS A PERSPECTIVE VIEW TOWARDS THE AMPHITHEATER. THE SECOND RENDERING SHOWS ONE OF THE SEMI-PRIVATE OUTDOOR SPACES THAT EACH UNIT HAS. THE THIRD RENDERING SHOWS ONE OF THE UNIT’S BEDROOMS. IT SHOWS THE STORAGE UNITS THAT IN OTHER UNIT STYLES ARE UTILIZED AS WALLS.

EAST - FACING ELEVATION

FACING ELEVATION

SOUTH -
1 5 10 20 1 5 10 20 1 5 10 20

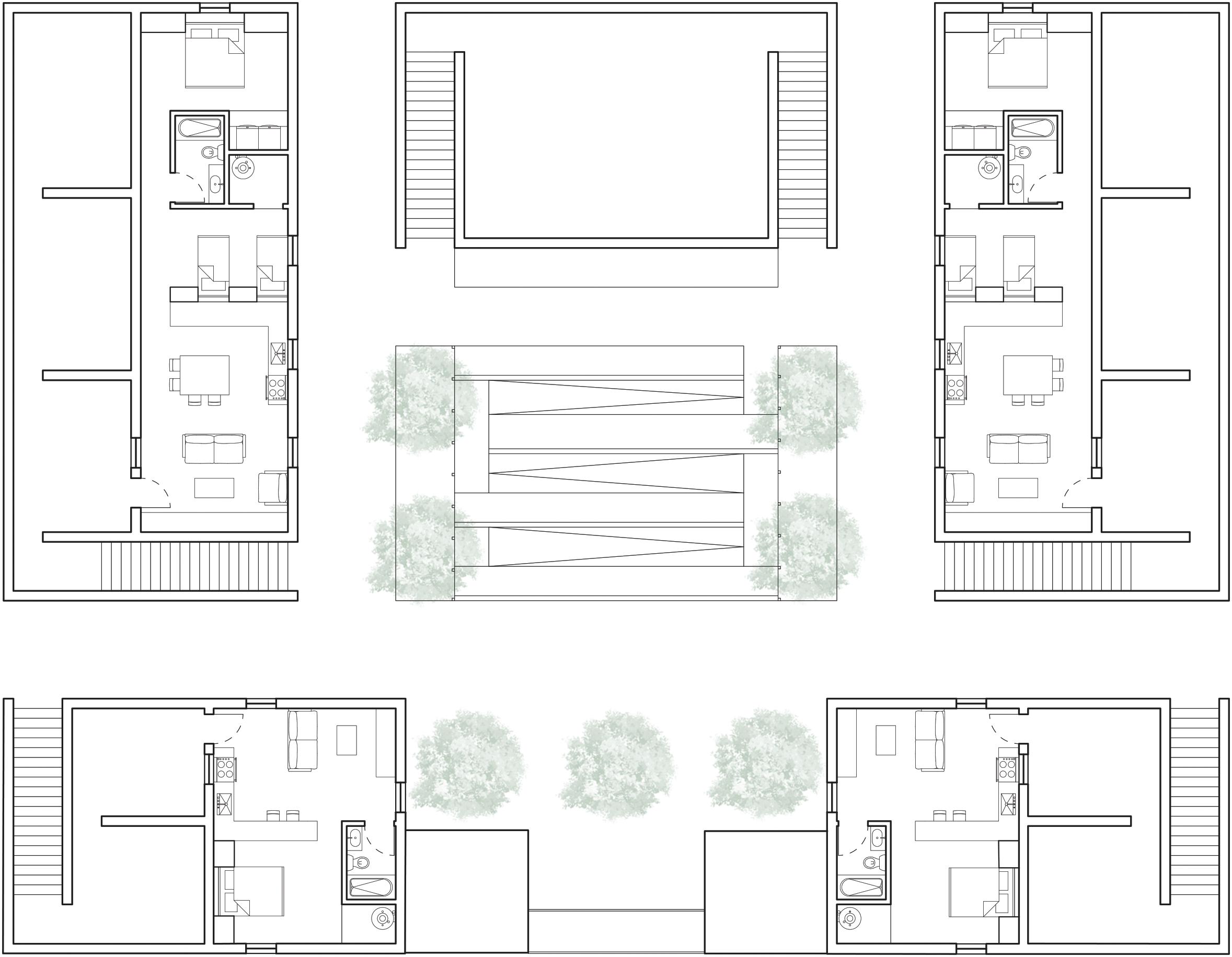
FIRST FLOOR PLAN

UNIT 1

UNIT 1 IS A TWO-PERSON UNIT THAT PROVIDES SEPARATE SLEEPINGN SPACES, BUT A COMBINED LIVING AND DINING SPACE. THIS UNIT COULD BE UTILIZED BY 2 FRIENDS THAT WANTED TO LIVE TOGETHER.

UNIT 2

UNIT 2 IS A SINGLE PERSON UNIT. IT IS A MORE OPEN PLAN THAN SOME OF THE OTHER UNITS, BUT STILL HAS SEMI - DEFINED SPACES FOR SLEEPING VERSES LIVING AND DINING.

UNIT 3

UNIT 3 IS A FAMILY-ORIENTED UNIT. IT IS CURRENTLY SET UP WITH ONE ROOM FOR THE PARENTS, AND A SECOND ROOM FOR THE CHILDREN. THIS UNIT HAS A LARGER DINING SPACE IN ORDER TO ALLOW ROOM TO EAT TOGETHER.

COMMUNITY SPACE

THE COMMUNITY SPACE IS UTILIZED AS A MULTI-PURPOSE SPACE. IT CAN BE RENTED AND USED FOR GROUP EVENT, BUT BECAUSE THE UNITS DON’T HAVE A DEFINED OFFICE SPACE, IT CAN ALSO BE USED BY THE RESIDENTS AS AN OFFICE -ESQUE SPACE.

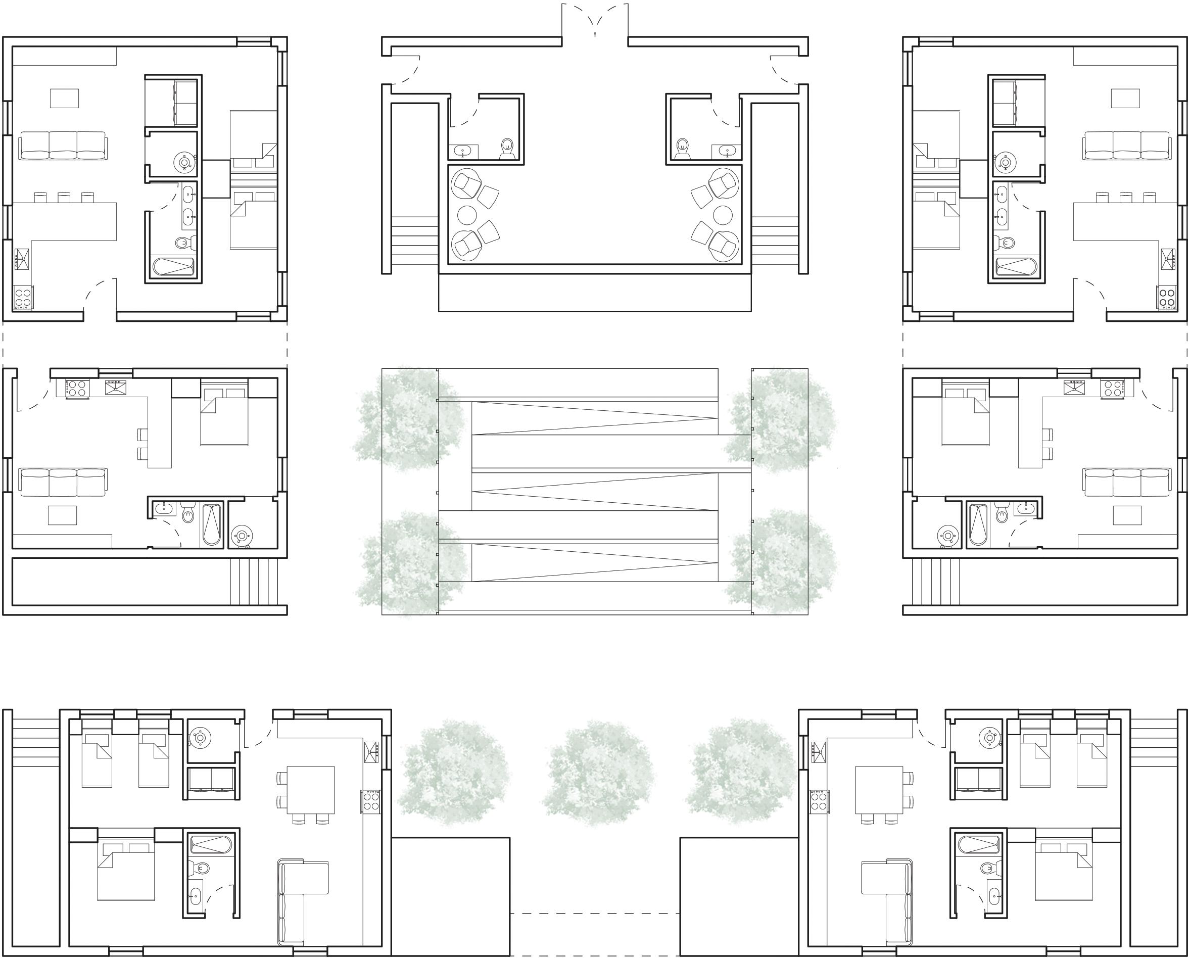
UNIT 4

UNIT 4 IS A FAMILY-ORIENTED UNIT. IT IS A VERY LINEAR DESIGN THAT ALLOWS THE DIFFERENT ROOMS TO BREAK OFF OF A SINGULAR HALLWAY. PRIVACY IS CREATED FROM STORAGE UNITS THAT ACT AS WALLS.

UNIT 5

UNIT 5 IS A SINGLE PERSON UNIT. IT IS SIMILAR TO THE UNIT 2 ON THE FIRST FLOOR, BUT DIFFERS BECAUSE OF SLIGHT DIMENSION CHANGES.

AMPHITHEATER

THE AMPHITHEATER IS PLACED IN THE CENTER OF THE PLAN IN ORDER TO INVITE THE RESIDENTS TO GATHER. THIS SPACE CAN BE USED FOR RELAXATION, BUT CAN ALSO HOST MOVIE NIGHTS, CONCERTS, & MORE.

SECOND FLOOR PLAN

A PARK IS INCORPORATED TO PROVIDE SPACE FOR CHILDREN WHO LIVE IN THE FAMILY UNITS TO PLAY. IT HAS TWO MAIN CLIMBING STRUCTURES THAT ARE CONNECTED BY A BRIDGE THAT IS ABLE TO SUPPORT SWINGS BENEATH IT. THIS PARK ALSO ACTS AS A SEPARATION FROM THE NEIGHBORING SITE.

WEST - FACING SECTION

NORTH - FACING SECTION
PARK 1 5 10 20 1 5 10 20 1 5 10 20 1 5 10 20

AXONOMETRIC

MATERIALITY

ON OUR SITE VISIT, WE WALKED AROUND THE TOWN AND TOOK NOTE OF THE MATERIALS USED. ONE OF THE MATERIALS USED REPETITIVELY ON MAIN STREET WAS BRICK. THIS INSPIRED THE IDEA OF USING BRICK ON THE OUTWARD-FACING EXTERIOR WALLS OF MY BUILDINGS TO CONNECT THE BUILDING BACK TO THE FAMILIARITY OF THE CITY. THERE ARE ALSO SECTIONS OF THE BRICK WALLS THAT HAVE A DIFFERING DESIGN WHERE BRICKS ARE REMOVED. THIS IS DONE ON THE SEMI-PRIVATE OUTDOOR SPACES ON THE SECOND FLOOR TO ALLOW FOR MORE LIGHT TO COME INTO THOSE SPACES. TO CREATE CONTRAST, ARISTOLATH METAL PANELS IN A LIGHT GREY COLOR ARE USED ON THE CENTRALFACING EXTERIOR WALLS. THIS CREATES A NEWER FEEL IN COMPARISON TO THE TOWN. IT ALSO ALLOWS THE OUTDOOR SPACES TO FEEL BRIGHTER AND MORE OPEN.

STRUCTURAL PLANS

WEST - FACING ELEVATION

NORTH - FACING ELEVATION
1 5 10 20 1 5 10 20

Turn static files into dynamic content formats.

Create a flipbook
Issuu converts static files into: digital portfolios, online yearbooks, online catalogs, digital photo albums and more. Sign up and create your flipbook.
ROOF + TEN: Low Rise Housing Project by Emma Karsten - Issuu