
EMMA KARSTEN
UNDERGRADUATE PORTFOLIO
KANSAS STATE UNIVERSITY: COLLEGE OF APDESIGN
PROJECTS
01 02 03
THEATER LOW-RISE HOUSING UNITS AGRICULTURAL MUSEUM

![]()

UNDERGRADUATE PORTFOLIO
KANSAS STATE UNIVERSITY: COLLEGE OF APDESIGN
01 02 03
THEATER LOW-RISE HOUSING UNITS AGRICULTURAL MUSEUM

I’m a design student at Kansas State University’s Masters of Architecture Program. I’m looking to enhance my knowledge of design through a professional internship. I believe architecture should provide spaces where we can feel comfort and safety, that also enhance our quality of life.
Phone: (913) 800 - 0020
Kansas State Email: eskarsten@ksu.edu
Personal Email: emmakarsten8@gmail.com
LinkedIn: www.linkedin.com/in/emma-karsten
Kansas State Univeristy | Expected Graduation: May 2026
Pursuing Masters of Architecture
EDUCATION INVOLVEMENT
APDesign Student Ambassador
NCARB | Student Licensing Advisor
Member | AIAS Freedom By Design
Member | AIAS Kansas State Chapter
EXPERIENCE
Hand-Drafting
Physical Modeling
Digital Modeling | Rhino, Revit, & SketchUp
Rendering & Editing | Enscape, V-Ray, & Adobe Illustrator/ Photoshop/ InDesign
SPRING 2024
INSTRUCTED BY: PROFESSOR GABBY COLEMAN
The Chelsea Theater is located in the Chelsea District, a neighborhood in New York City. This theater brings a new twist to the typical theater experience by incorporating the style of a promenade theater in order to reinforce the idea that a theater is a museum for performance art. On their way to the main theater space, visitors first encounter a sequence of exhibition spaces. These spaces are used as circulation to guide the visitors to the theater while also providing them the ability to learn about the show they’re going to see before they experience it. The theater space that comes next differs from the typical theater space one would encounter. Rather than having one theater space with a single stage and permanent seating, promenade theaters have multiple stages with spaces to stand and view the stage. As the actors move stages, the audience follows them. In my design, this is done by having three theater spaces that can be changed to fit the scene or scenes held in it with thresholds connecting them. All of these elements tie together to create a space that allows visitors to learn about and view performances, strengthening the concept that the theater itself is a museum.

Theater Exhibition







Exterior Theater
Exterior Gathtering Space

Circulation
FLOOR PLAN: FIRST FLOOR
FLOOR PLAN: SECOND FLOOR
FLOOR PLAN: FOURTH FLOOR
FLOOR PLAN: FIFTH FLOOR




FLOOR PLAN: THIRD FLOOR

FLOOR PLAN: SIXTH FLOOR
The lower three floors of the theater are for public use, utilizing the idea that as one moves up throughout the building, the more private the spaces get. The first floor holds the ticketing booth, both sitting and standing lobby spaces, an interactive exhibition space, and the loading dock/storage space. The second floor is primarily designated for exhibition space along with the scene shop/workshop. The exhibition space is open concept, only separated by the bar space in the center. The theater is on the third floor. The idea behind the promenade theater is that you can be in the first room for scene one, and maybe you’re watching Dorothy at her farm in Kansas, but then you move to the second room for scene two, and now you’re in Emerald City. This is done by having both indoor and outdoor stages that are the same proportion-wise, but the changeable museum-like aspect is created by having moveable stages and seating. The ceilings in these spaces can also rise or lower depending on what the room needs to feel like. Along with the theater space itself, there are also indoor and outdoor lobby spaces that support it.

The upper three floors are used by the staff and actors. The fourth floor holds dressing rooms and has easy access to the green room that connects to the theaters below. The technical room is also located in this space to give the staff the best views to help run the shows. The fifth floor holds the administrative spaces and a final, private exhibition space. This is a private floor, meaning the exhibitions hosted here would be an invite-only, post-show gathering space for the actors and crew, their friends, and family. The sixth floor is designated for rehearsal space. These spaces similarly reflect the size and height of the main theater spaces, allowing the actors to have a space to put together their performances. There are also smaller practice rooms that can be privately used to practice their parts on their own.






FALL 2023
INSTRUCTED BY: PROFESSOR BRUCE JOHNSON
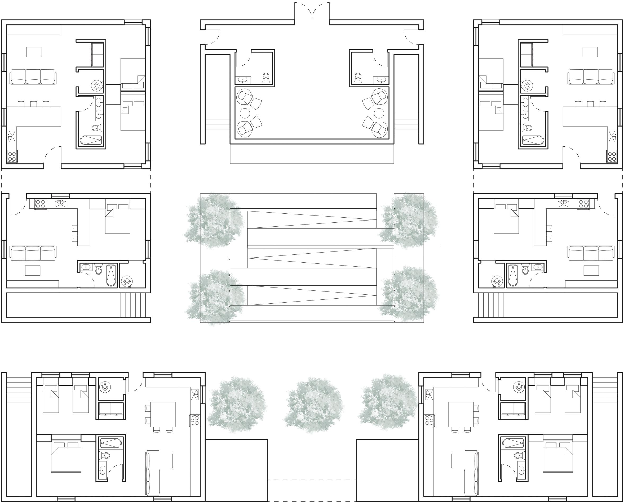
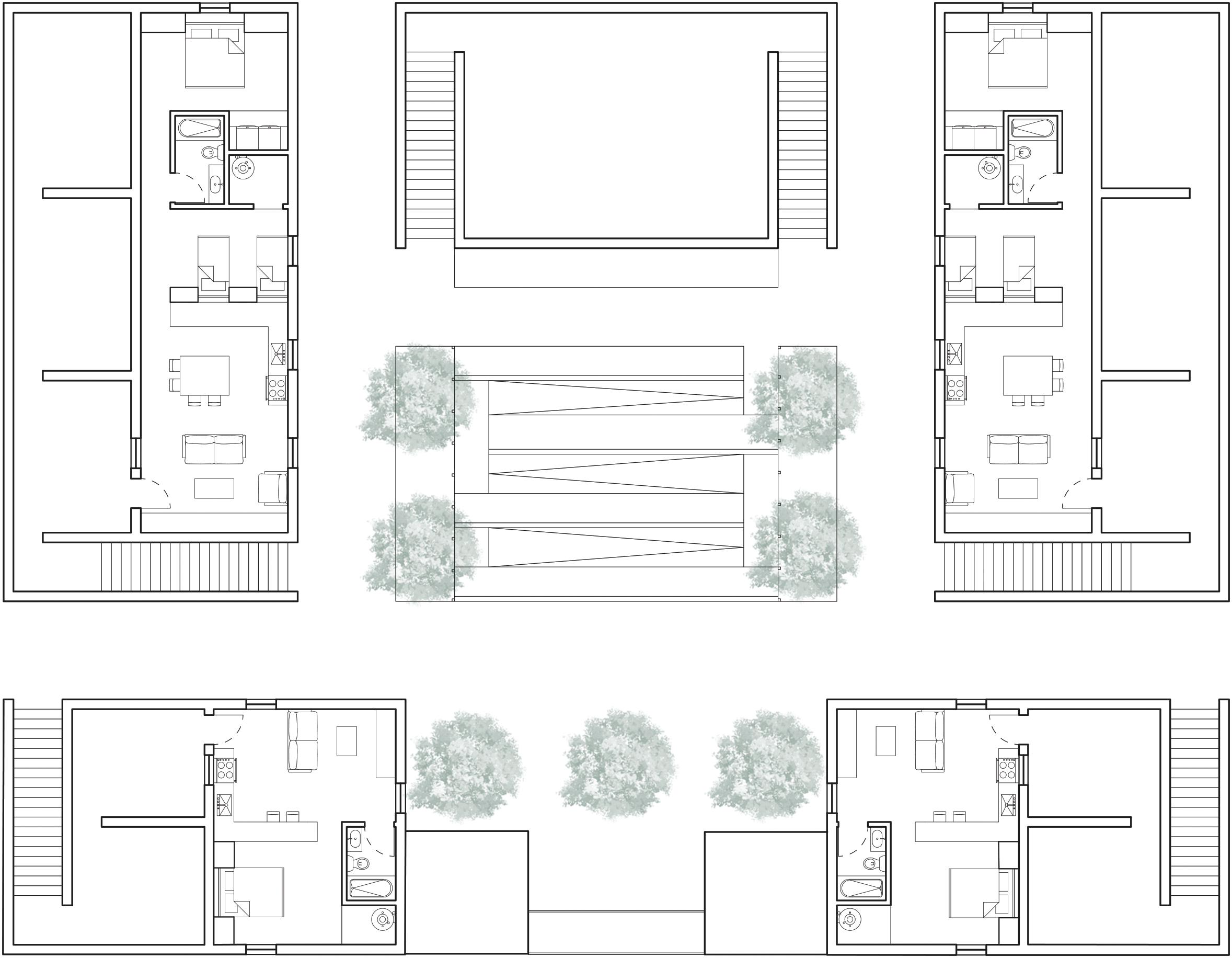
The roof + ten housing units are located in Eureka, a small rural community in Kansas. The name of the housing units comes from the central theme of “being under one roof”. While every resident or set of residents has their own personal unit, the structure that hangs over the central amphitheater acts as the roof the connects the residents together. The amphitheater is a space that is meant to create community as concerts, movie nights, and more can occur in this space. The brick materials on the outermost-exterior walls connect back to the brick used on main street. This creates a sense of familiarity for the citizens of the town. To contrast the brick, the innermost exterior walls are made of light grey aristolath metal panels. This highlights the exterior spaces and creates a brighter atmosphere.

FLOOR PLAN: FIRST FLOOR


FLOOR PLAN: SECOND FLOOR

Unit 1 is a two-person unit that provides separate sleepingn spaces, but a combined living and dining space. This unit could be utilized by 2 friends that wanted to live together.
Unit 2 is a single person unit. It is a more open plan than some of the other units, but still has semidefined spaces for sleeping verses living and dining.
Unit 3 is a family-oriented unit. It is currently set up with one room for the parents, and a second room for the children. This unit has a larger dining space in order to allow room to eat together.
Unit 4 is a family-oriented unit. It is a very linear design that allows the different rooms to break off of a singular hallway. Privacy is created from storage units that act as walls.
Unit 5 is a single person unit. It is similar to the unit 2 on the first floor, but differs because of slight dimension changes.
The community space is utilized as a multi-purpose space. It can be rented and used for group event, but because the units don’t have a defined office space, it can also be used by the residents as an office -esque space.
FLOOR PLAN: FIRST FLOOR

FLOOR PLAN: SECOND FLOOR

FALL 2022
INSTRUCTED BY: PROFESSOR CHAD SCHWARTZ
This Museum is located in Cico Park in Manhatttan, Kansas. It serves as an Agricultural Museum that can display all sizes of equipment. The museum itself draws the visitors in from both the main parking lot and also Cico Park by the use of angled sidewalks that guide and funnel the visitors towards the entrance. Once inside the museum, visitors can experience an open floor plan that provides views to all of the public exhibition spaces. These spaces are exposed from the interior because of the glazed facade that surround the outdoor exhibition that is embedded within the space. This outdoor exhibition is the central focus in the design.
Carving into the site is done to create a flat surface for the building to sit on. This now prevents the need for ramps and/or stairs.
The service block sits in the westernmost portion of the carved site. This is done to hide the service block which also acts as a retaining wall.
The remaining spaces are added. The height of this portion is taller to give it the ability to have multiple floors and to establish it as the main focus of the museum.
A portion of the museum is carved out to create a centralized, outdoor exhibition courtyard.
A portion of the building is removed to create space for the main entrance into the lobby. The overhand above acts as a guide for the visitors to follow.
Adding glazing to the courtyard walls provides a consistent view of the outdoor exhibition throughout the museum.














FLOOR PLAN: SECOND FLOOR



VIEW OF THE LOBBY LOOKING TOWARDS THE OUTDOOR EXHIBITION
As the visitors walk towards the museum, they are greeted with a very heavy exterior, but as the walk in the museum, they are then exposed to the courtyard glazing that provides views towards the public spaces of the museum.




VIEW OF THE EXHIBITION SPACE FOR MACHINES AND LARGE ITEMS
This space is meant to hold the larger agricultural artifacts and pieces that are used in the fields. The 30-foot ceilings and courtyard glazing allows for a sense of release from the lobby.




This view shows the open floor plan of the museum. The circulation is left very open so that visitors can explore the museum as they see fit. The staircase connects the exhibition of the large items with the small items exhibition.




The exterior courtyard is separated from the interior exhibitions by glazing walls. It is accessible through garage doors that are built into the glazing system. This allows for easy transportation of the pieces in the exhibition to the courtyard. The garage doors would ideally stay open on nice days to connect the interior and exterior physically and visibly.




THANK YOU
I appreciate you taking the time to review my work. I hope you’ll consider me for your summer internship and I look forward to hearing from you.
CONTACT INFORMATION
Phone: (913) 800 - 0020
Kansas State Email: eskarsten@ksu.edu
Personal Email: emmakarsten8@gmail.com
LinkedIn: www.linkedin.com/in/emma-karsten