
1690 Revere Beach Parkway - Phase 1 & 2
Everett, MA
Merrimack College North Andover, MA
Palm Beach Atlantic University Student Housing & Dining Commons West Palm Beach, FL
The Beck Haverhill, MA

![]()

1690 Revere Beach Parkway - Phase 1 & 2
Everett, MA
Merrimack College North Andover, MA
Palm Beach Atlantic University Student Housing & Dining Commons West Palm Beach, FL
The Beck Haverhill, MA

Role: Designer/CA Point of Contact for Phase 1
Status: Construction Completed Spring 2025
Construction Budget:
Phase 1: Aprox. $115 million
Phase 2: Aprox. $135 million
Size:
Phase 1: 432,000 GSF
Phase 2: 584,000 GSF
Sector: Multi-Family Residential
CUBE 3, LLC
A two-phase, mixed-use development in Everett Massachusetts Commercial district. Phase 1 broke ground in December 2022 and is currently in the pre-leasing/project closeout phase. Phase 2 construction completion is Fall of 2026.
Totaling almost 1 million sq ft, the project will deliver 741 units of housing across both phases. Plans for the project propose a transit-oriented residential development that includes marketrate housing units, amenities, and retail. Both buildings are 5 story wood construction over 2 story podium for parking and retail. The new development supports bike friendly infrastructure and walkability to neighboring developments, train station and on site public park.
























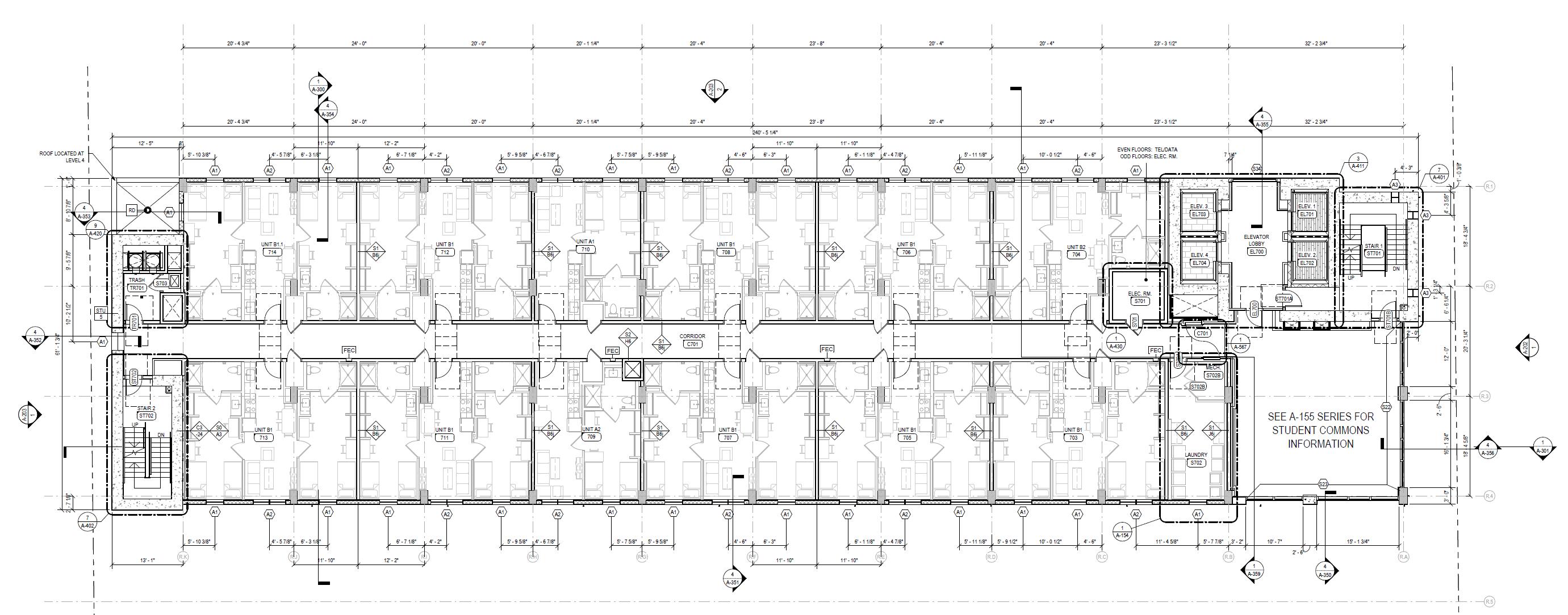
Role: Designer throughout project documentation
Status: Under Construction
Size: 139,600 GSF
Sector: Student Housing
CUBE 3, LLC
Two mixed-use passive house certified buildings with amenity, student housing, and academic classrooms. Building 1 is approximately 77,600 gsf/ 366 beds with 5,300 gsf of university programing shell space. Building 2 is approximately 62,000 gsf/174 beds with 5,500 gsf of university programing shell space.
The building masses form a welcoming gesture into the campus by framing a key view onto the site while sheltering exterior gathering space for students. A shell of dark gray horizontal paneling faces the streets, which carves away at the edges to reveal a warm wood-tone facade at the inner elevations.










Role: Designer throughout documentation
Status: Pre-Construction / Bidding Phase
Construction Budget: $250 million
Sector: Student Housing, Dining Commons
CUBE 3, LLC

This 25 story tower is designed to house 990 students attending Palm Beach Atlantic University in West Palm Beach, Florida. The project includes an 11-story pre-cast parking garage, student dining commons, fitness facilities, and student amenities. This much need facility for the school will bring students back on campus and will become an icon in the downtown skyline.























L25 - COMMUNAL CAFE
L24 - MEDIA LOUNGE
L23 - WELLNESS


L13 - STUDY ROOMS
L11 - QUIET STUDY






L8 - GAME LOUNGE
L7 -STUDY LOUNGE
L6 - STAFF SUITE
L3 - FITNESS
L2 - DINING & EVENTS



L1 - LOBBY & DINING

















Role: Designer throughout documentation
Status: Construction Completed
Construction Budget: $94 million
Size: 139,600 GSF
Sector: Multifamily Housing
CUBE 3, LLC
This project takes the vacant and overgrown former factory site at the Bradford Commuter Rail Station and transforms it into a vibrant community-oriented mixed-use development. This project envisions 290 residential units, 10,000 sq ft of retail, 3.2 ares of pubic parks and riverwalk, public amphitheater and significant offside roadway and infrastructure improvements. In addition, playgrounds and active trails will increase walkability and recreational uses for residents and community members alike and allow the community to enjoy the tranquility and spectacular vistas of the Merrimack River.
Ground break took place in the winter of 2022 and construction completed in Spring of 2025.












Personal Work
Left Page
Travel Photography (left to right)




-
Thank You -