Erik Vernon Portfolio

Page 1


INTRODUCTION

With over fifteen years of experience in a wide variety of project types and sizes, I bring passion, rigor and expertise to my design work. Equally at home with residential remodels or multi-million dollar mixed-use projects, I am always attentive to the client’s needs and budget, bringing my creativity, curiosity, flexibility and listening skills to every project. I can move smoothly between disciplines - architecture, immersive design, interiors, urban design or graphicsand strongly believe in the power of collaboration. I’m all about the big idea and how that gets translated into the smallest of details.

EDUCATION AND SKILLS

Bachelor of Architecture, University of Oregon.

Minor in History with an emphasis on twentieth-century urban America.

Adobe Creative Cloud (Photoshop, Illustrator, InDesign), AutoCAD, Bluebeam, Enscape, Revit, Rhino, and SketchUp.

THEMING AND IMMERSIVE DESIGN

The Shanghai Disney Resort is a $5.5 billion theme park and the largest Disney park at 963 acres. It specifically incorporates many Chinese cultural elements into its design—the Wandering Moon Restaurant being a prime example. Continuing the theme of “authentically Disney and distinctly Chinese,” Main Street USA is replaced by Mickey Avenue, inspired by the personalities of the Disney characters. As Senior Designer I was responsible for the overall Design Development package on one of the Mickey Avenue buildings, as well as assisting on design work for the Wandering Moon restaurant. I oversaw a team developing and detailing twelve different facades designed as individual buildings, scheduling assignments, monitoring progress, and reviewing work.

Previous Page: Wandering Moon Restaurant

1. Exterior, Wandering Moon Restaurant

2. Roof study, Wandering Moon Restaurant

3. Study, exterior facade of Mickey Avenue

4. Exterior, Mickey Avenue

I led an international team for the Columbia Studios portion of Motiongate, a motion picture based theme park in Dubai and part of a $2.77 billion development by Dubai Parks and Resorts. It comprises three theme parks, commercial developments and resorts. I coordinated our design development drawings and worked closely with our creative consultant to refine design intent.

The Londoner is a $1.1 billion re-imagining of the existing Sands Cotai Central Casino Resort in Macao that recreates some of London’s most iconic shopping areas and landmarks. I worked with a small team, sketching and modeling initial design concepts.

1. Revit model, Hotel Transylvania, Motiongate

2. Hotel Transylvania, Motiongate

3. Baby Brent’s Luncheonette, Motiongate

4. Retail arcade study, The Londoner

5. Crystal Palace lobby, The Londoner

Fantasy Springs is a $2.3 billion dollar expansion of Tokyo DisneySea, comprised of three new themed areas based on Frozen, Tangled and Peter Pan. Working with the Principal Interior Designer, I was responsible for the interior design of both Anna and Elsa’s Frozen Journey and the Snuggly Duckling Restaurant. Eventually I handed off the Snuggly Duckling and concentrated on Frozen Journey, developing the queue as a tour through the various rooms of the family wing of the royal palace. I met frequently with management and internal consultants to review designs, scope and adherence to schedule. I refined and detailed the designs, selected colors and finishes, managed a production team and mentored interns on design concepts and constructibility.

1. Conservatory, queue, Frozen Journey

2. Dining Room, Snuggly Duckling

3. Music Room, queue, Frozen Journey

4. Family Room, queue, Frozen Journey

RETAIL AND RESTAURANT

Collaborated on the interior design of Georgie’s Beachside Grill in Newport, Oregon, a renovation of an existing hotel restaurant.

Served as Senior Designer on the design development of Taj Lifestyle Center in Amman, Jordan, a complex that took it’s inspiration from the eroded sandstone cliffs of the region.

Senior Designer for Scottsdale Quarter, a 28 acre mixed-use development in Scottsdale, Arizona, comprised of retail, restaurant, cinema, entertainment venues and office space. I was responsible for the design and development one of the major retail and cinema buildings, dealing extensively with city agencies, design review board and city council.

Previous Page: Georgie’s, Newport OR

1. Georgie’s

2. Grand Staircase, Scottsdale Quarter

3. Study model of Grand Staircase and canopy

4. Study, retail elevation, Scottsdale Quarter

5. Elevation with materials and color selection

6. Taj Lifestyle Center

RESIDENTIAL AND MIXED-USE

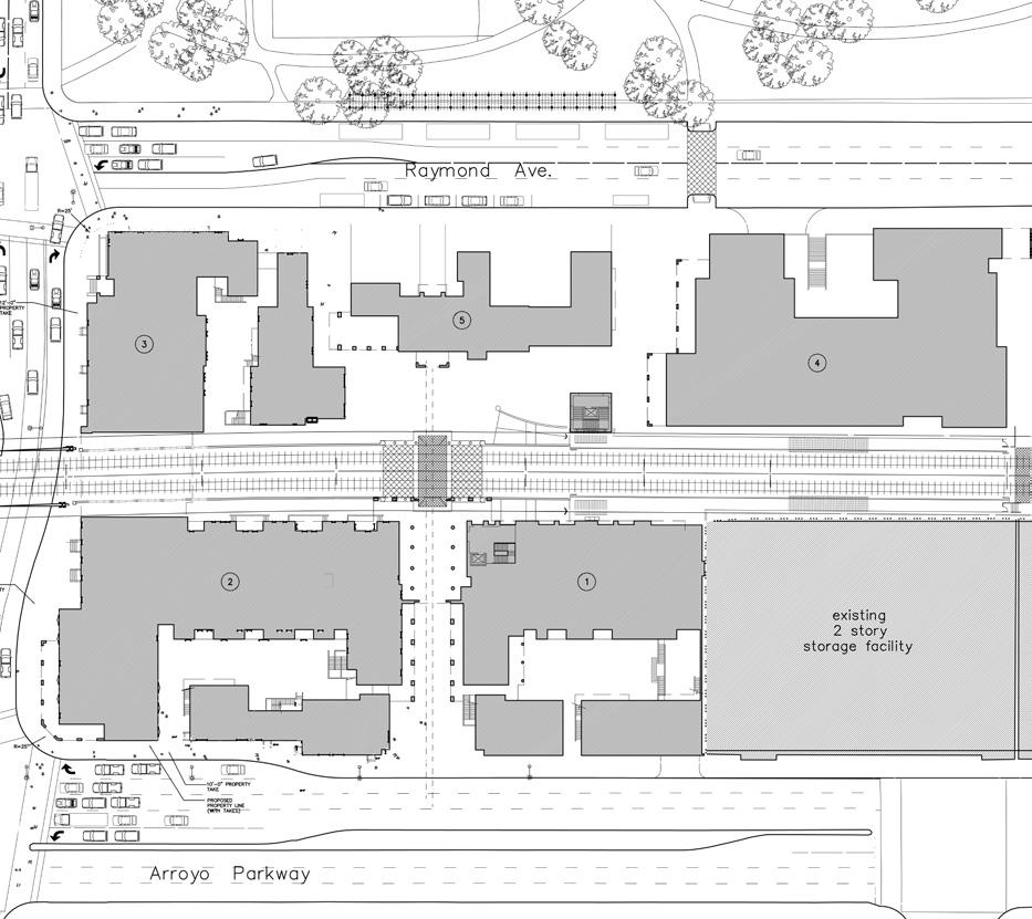
Del Mar Station is a $77 million transit-oriented development in Pasadena, CA. The project comprises four distinct buildings linked together with a series of public plazas, paseos and private courtyards. The restored historic Santa Fe train depot currently houses a popular restaurant. I was responsible for materials selection, design coordination and the design development package.

Mission Meridian is another transit-oriented development. Set in a historic neighborhood adjacent to a retail street in South Pasadena, CA, the project took on the typology of the surrounding Craftsman neighborhood. I designed the unit interiors and specified all interior and exterior lighting.

Previous Page: Del Mar Station and Santa Fe depot

1. Del Mar Station site plan

2. Mission Meridian loft building and retail

3. Del Mar Station with light rail stop

4. Mission Meridian bungalow courtyard

5. Mission Meridian overall elevation

Project Architect / Project Designer on a variety of large mixed-use projects both market rate and affordable. Responsible for design as well as production, leading internal teams and coordinating work with consultants and local jurisdictions.

1. 4th Street Condos, Lake Oswego, OR

2. Eagle Landing, Happy Valley, OR

3. Raymond Renaissance, Pasadena, CA

4. Mixed-use project, Washougal, WA

Developed a spec house in the Hollywood Hills. Designed to fit in with it’s 1920’s spanish-style neighbors, the four story home is nestled into the hillside, affording expansive views of the city below.

Also collaborated on the interior design and detailing of a series of loft buildings and other small residential projects.

1. Living area, loft, Portland, OR

2. Exterior, residence, Hollywood, CA

3. Living area, residence, Hollywood, CA

4. Primary bath, loft, Portland, OR

HIGHER EDUCATION

Wood Hall at Lewis and Clark Law School utilizes green building methods and sustainable materials, showcasing the college’s dedication to the environment. Teaming with a firm principal on the design and development of the structure, we took our design cues from the existing Boley Library. Seeking to minimize the new building’s physical impact on the landscape and surrounding forest, an existing parking lot and service drive was chosen as the site. The few fir trees removed during construction were recycled into stair treads. Additionally, I was the liaison between the architecture and interiors departments, assisting in the design of the new library’s interior spaces as well as the renovation of the existing Boley Library.

Previous Page: View of renovated Boley Library

1. Staircase with wood feature wall

2. Section through lobby clerestory

3. Exterior entry

4. Group study area

5. Massing studies

Turn static files into dynamic content formats.

Create a flipbook
Issuu converts static files into: digital portfolios, online yearbooks, online catalogs, digital photo albums and more. Sign up and create your flipbook.