INTERIORDESIGN
PORTFOLIO


![]()
PORTFOLIO


I’mcurrentlystudyingInteriorDesignTechnologyatGeorgeBrownCollege. EarlyonI learnedhowspacesarebuiltfromthegroundup. Everythingfromconstruction methodsandmaterialstounderstandinghowbuildingsystemswork. Thetechnicalsidereallystuckwithmeandhasbecomeoneofmyfavouritepartsofthe designprocess. Inmyprojects, I’veworkedthrougheverystage, fromconceptand schematicstodesigndevelopmentandfinalpresentation. I’veusedprogramslike AutoCAD,Revit,SketchUp,InDesign,andPhotoshoptobringmyideastolifeand communicatethemclearly.Whetherit’sdrawingdetailedfloorplans,building3Dmodels, orputtingtogetherfullpresentationboards,Ilovefiguringouthowtomakeadesignnot justlookgood,butfunctionproperlyandmeetrealneeds.
I’vehadthechancetoworkonresidentiallayouts, commercialspaces, andeven furnituredesign, whereIexploredhowdetailslikematerials,buildingcode,anduser experienceallcomeintoplay.There’sbeenalotoftrialanderror,butthat’spartofwhatI enjoy: problem-solvingandlearningasIgo.
Throughitall, I’vegrowncomfortableworkingunderpressure,collaboratingwithothers, andstayingorganized. I’mexcitedtokeepbuildingoneverythingI’velearnedsofar, connectwithothersintheindustry,andcontributemyenergyandfreshperspective whereverIcan.
2023-2026
BACHELOR OF INTERIOR DESIGN (HONOURS)
HONOURS BACHELOR S DEGREE - IN PROGRESS
GEORGE BROWN COLLEGE TORONTO, ON MAY 2025 - PRESENT (2026)
INTERIOR DESIGN TECHNOLOGY
ADVANCED ONTARIO COLLEGE DIPLOMA
GEORGE BROWN COLLEGE TORONTO ON SEPT 2022 – 2025
INTERIOR DECORATING
ONTARIO COLLEGE DIPLOMA
GEORGIAN COLLEGE BARRIE ON SEPT 2020 – MAY 2022
JUNIORINTERIORDESIGNER
LUMARINTERIORS RICHMONDHILL ON
JAN2018–JUN2018
GAINED VALUABLE EXPERIENCE BY SHADOWING PROFESSIONALS AND LEARNING INDUSTRY STANDARDS I HONED MY ORGANIZATIONAL SKILLS ABSORBING KNOWLEDGE AND INSIGHTS INTO THE INTRICACIES OF INTERIOR DESIGN PROCESSES
STUDENTLIFEVOLUNTEERSQUADMEMBER
GEORGEBROWNCOLLEGE
JAN2024–PRESENT
EXTRACURRICULARS
ARCHITECTURECLUB
ENCOURAGES SKILL AND KNOWLEDGE BUILDING THROUGH PARTICIPATION IN EVENTS HOSTED BY THE CLUB OR HOSTED EXTERNALLY. THIS CAN INCLUDE BUT IS NOT LIMITED TO SKETCH WALKS DESIGN COMPETITIONS TALKS WITH INDUSTRY PROFESSIONALS AND SITE VISITS.
R E S U M E

AUTOCAD
REVIT
RHINO
ENSCAPE
GRASSHOPPER
LUNCHBOX
DYNAMO
VRAY
SKETCHUP
LAYOUT
2020 DESIGN
ILLUSTRATOR
PHOTOSHOP
INDESIGN
EXCEL
MICROSOFT
ONTARIO BUILDING CODE
PROBLEMSOLVING
ORGANIZATION
COMMUNICATION
CUSTOMERSERVICE
COLLABORATION
LEADERSHIP
ATTENTIONTODETAIL
TIMEMANAGEMENT
DESIGNPRINCIPLES
SCHEMATICDESIGN
ADAPTABILITY
CREATIVITY

Year: 2023
Type: Residential
Location:Toronto,On
ClientBasedApproch
My vision involves a comprehensive renovation For Alex and Susanne’s Toronto home. The plan includes converting the basement into a stylish 2-bedroom rental unit with a separate entrance while emphasizing efficient use of space. The goal is to create distinct yet connected spaces throughout the home reflecting the principles of contemporary design and transforming their house into a comfortable and stylish home that caters to their growing family for

ThisprojectinvolvesafullrenovationofatwostoryhomeinTorontosRoncesvalles neighborhood tailoredtotheuniqueneedsofthe homeowners.Thedesignincludesachef-friendly kitchenforSusanawithfilmingcapabilities,anda photographystudiowithamplestorageforAlex. Theplanalsomaximizesstoragethroughoutthe homeandconvertsthebasementintoa functional2-bedroomrentalunitwithaprivate entrance,fullkitchen laundry,andbathroom.



ProposedFloorPlan-Fisrt Floor










Reflected Ceiling Plan-Ground Floor










Year: 2024
Type: Commercial
Location:Toronto,On CentralGatheringOffice
TheNienkämperCastleFieldsDistrictofficeis inspiredbyaradialdesignthatbringsindividual spacestogethertocreateaninclusivework environment.Theradial layoutencourages collaborationwhilestillprovidingprivateareas reflectingNienkämper’sbeliefthatgreatideas growthroughconnection Aresidentialstudiofor internationalartistsisalsopartofthedesign, givingthemtheopportunitytoworkclosetothe factory,collaboratewithdesigners andshowcase theirworkonexhibitionboards.
Theradialconceptisexpressedthroughfloor materialsthatguidemovementandcreatea visuallinkbetweentheresidentialstudioand collaborativezones Privateofficeslinethe perimeter drawingtowardthesharedspacesat thecenter,whichfeatureNienkämper’sunique puzzle-likedesksystems.Angularcurtainwalls keepthespaceopenandconnected whilewood paneling directionallighting andvariedceiling heightshighlightmeetingrooms,privateoffices andsharedareas.Thesedesignchoicesalso supportacoustics workflow,andemployeewellbeing








Elements&Principles -RadialLayoutConceptt

Exploded SectionDiagram


































Year: 2024
Type: Commercial
Location: UnionStation-Toronto,On
HiddenAlleyways :ATransitDiningExperience

Vicolo meaning “alleyway” in Italian is inspired by the winding streets of Italy, where the best food is often found off the beaten path Located in Toronto’s Union Station the restaurant unfolds like a series of hidden alleyways, each turn revealing a new and immersive dining experience At the heart of the space the central bar acts as the main gathering point a lively hub that anchors the surrounding “streets” and brings guests together in the spirit of Italian social culture
Designarestaurantforcommutersandbusiness professionalsthatoffersadistinctiveand memorableexperience Usematerials,lighting andspatiallayouttoconveyaclearconceptwhile balancingefficiencyandcomfort Createa narrative-drivenenvironmentthatstandsout withinthehigh-traffictransithub








Year: 2025
Type: Commercial
Location: 160KendalAve-Toronto,ON
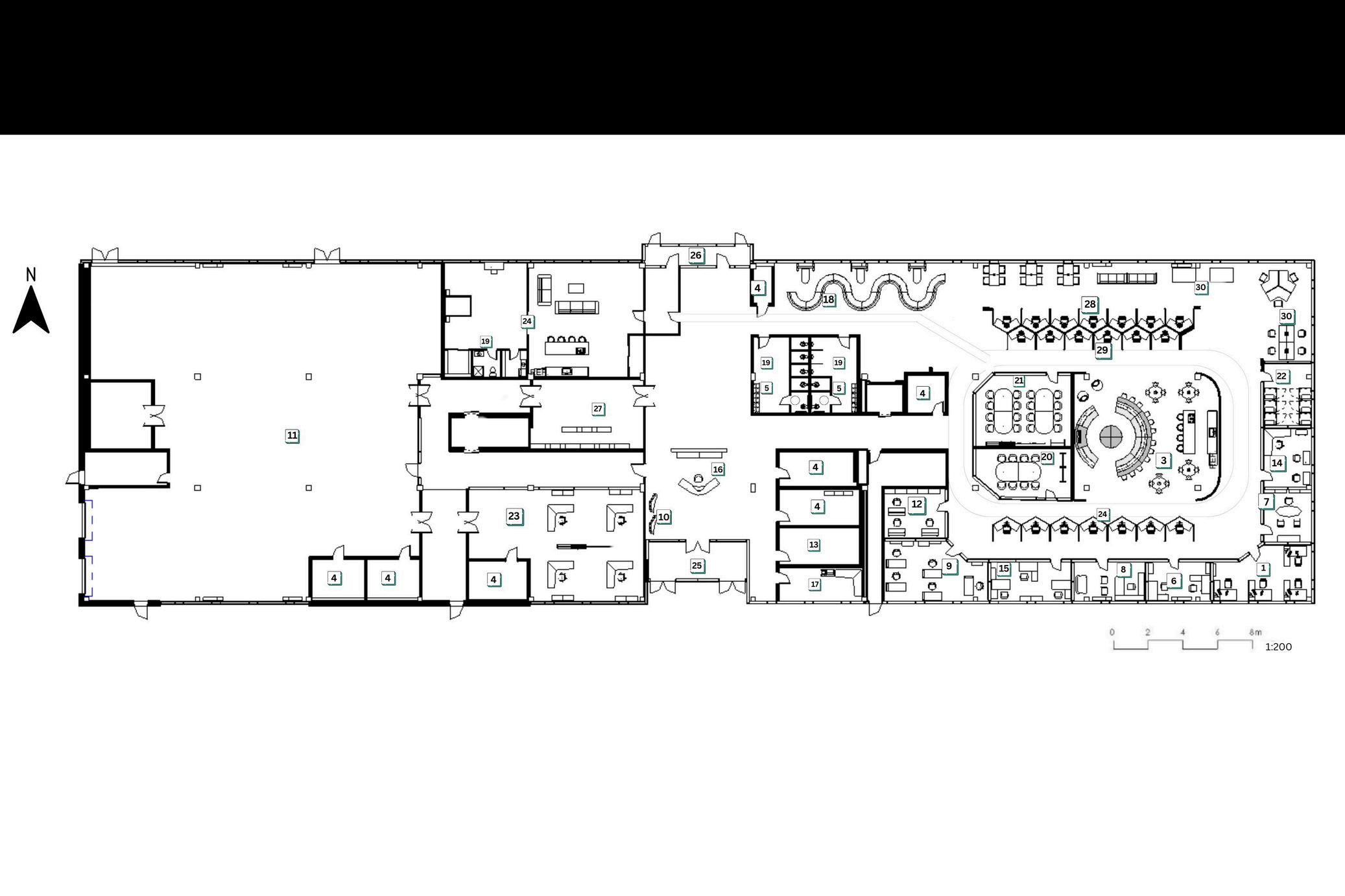
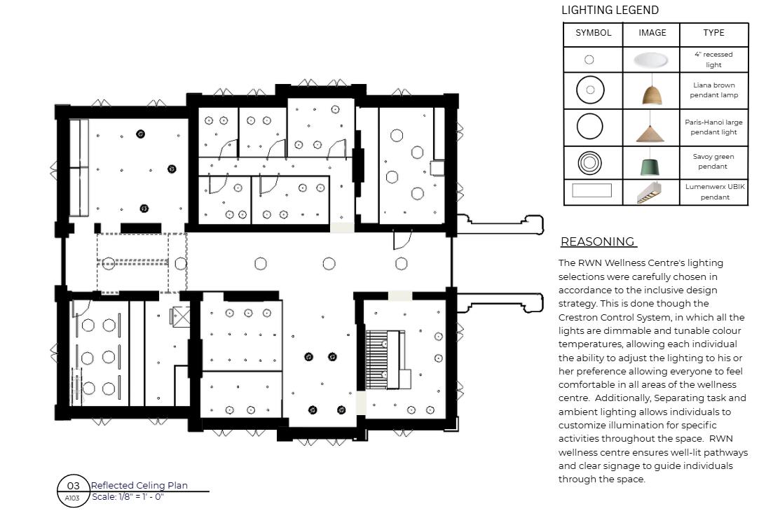
StudentWellnessCentre

The RWN wellness centre targets the students of Toronto in need of a space to bring themselves back in touch with reality. It is to be a safe space where one can relax, lounge make friends and most importantly have access to counselling and therapy. This project will also allow students the opportunity to normalize and frequent counselling and therapy as life can be difficult, tense and stressful seeking support should be easy to access and encouraged
Studentswillcreateawellnesscentrethatflows fromopen,socialareasintoprivate,restorative spaces.Thedesignwillfeatureawelcoming receptionandloungeforrelaxationand connection,leadingintosoundproofcounselling roomsforone-on-onesupport















Year: 2024
Type: Commercial
Location: MetroTorontoConventionCentre
Small Project -BoothDesign

The booth focuses on Plastic Fluxs goal of turning plastic waste into something stylish and longlasting The design plays with the contrast between raw plastic rubble and the finished products to tell the “before and after” story It’s inspired by their modern modular style and uses textures and tones to stay true to the brand’s sleek look
TheboothletsvisitorsseeandtryPlasticFluxs customtablesandchairsinperson Hexagon coastersareusedaswalltiles,andthefloorhasa marblefinishinblack,grey andwhite Thesetup showshowflexibletheproductsarewhile highlightingthebrand’stransparencyand commitmenttoupcycling.



PLASTICFLUXHEXAGONWALLTILING








www.linkedin.com/in/erikagallo12