EFECINCO
Mejora Urbana
Continua C.A.
RIF:J-411340340

Proyectos y Obras recientes
Remodelación vivienda bifamiliar, Macaracuay, Caracas 2024

Diseño y supervisión: @efecinco.ve
Status: inicio de obra




La vivienda se caracteriza por sus amplios espacios, tanto en horizontal como en vertical, que se interconectan de manera fluida. Esta distribución favorece la circulación natural de la luz y el aire, creandoambientesluminosos,frescosyacogedores
















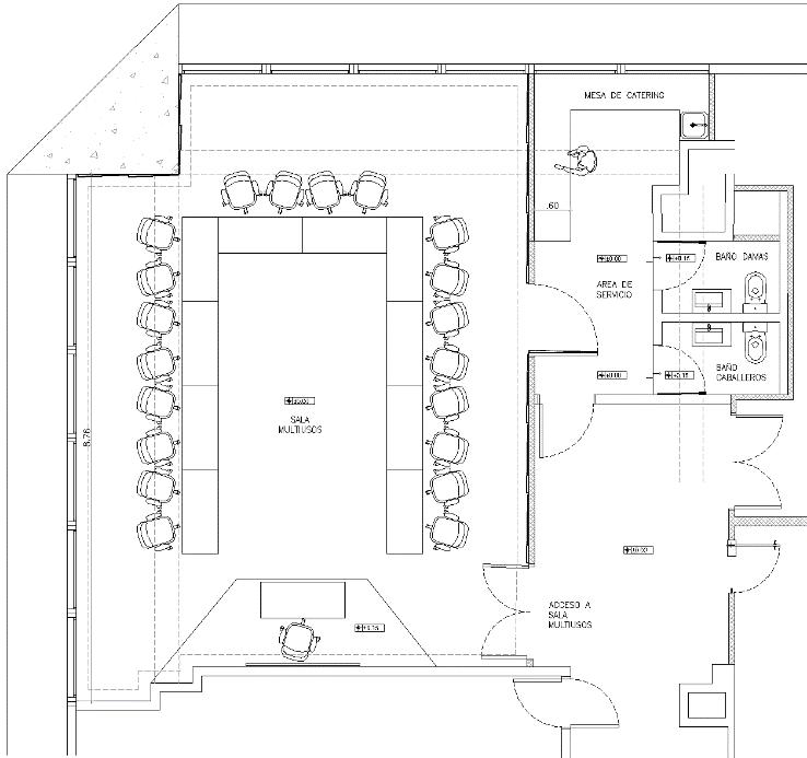
Sala corporativa multiuso
Torre Las Mercedes, Caracas
2024


El espacio existente ameritaba un mejoramiento y modernización en sus acabados, equipamiento sanitario y espacio para servir refrigerios para los eventos. Se implementó un tratamiento acústico en paredes y techo a fin de mejorar la calidad del audio de la sala, ofreciendo a la vez una estética amena,variadaysecuencial.

Diseño y supervisión: Erick Guillén & @efecinco.ve
Status: obra en ejecución








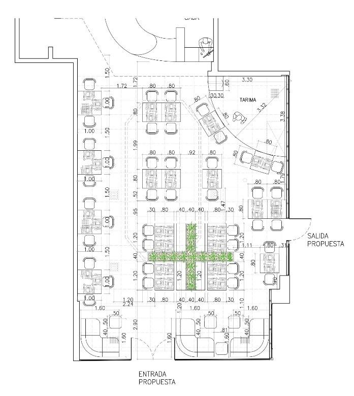
Restaurante Sabor
caraqueño, C.C.
Concresa, Caracas
2024


Diseño y supervisión: Erick Guillén & @efecinco.ve
Status: obra en ejecución






El concepto de este restaurante va más allá de la simple oferta gastronómica. Es una oda a la vibrante ciudad de Caracas, capturando su esenciaenunespacioíntimoy acogedor. El nombre, cuidadosamente elegido, evocaimágenesdelaciudad, mientras que los elementos decorativosrindenhomenajea iconos representativos a modo de síntesis de la ciudad donde se encuentran los sabores, el arte, la tertulia, y los sonidos acústicosdelacapital.Elcolor es esencial como referente de la diversidad cromática caraqueña.


Oficina comercial
SAECA
Aeropuerto Simón
Bolívar, La Guaira
2024

Diseño y supervisión: @efecinco.ve


Status: inicio de obra


El concepto de esta oficina va más allá de unasimplesaladeespera para vuelos. Se trata de un espacio especialmente diseñado paraofreceralosclientes una experiencia amena, cómoda y elegante durante la espera de su vuelo.
Lasalasecaracterizapor susacabadosmodernosy sofisticados, que combinan materiales de alta calidad con un diseño vanguardista. La iluminación tenue, los mueblesergonómicosyla decoración minimalista crean un ambiente relajanteyacogedor.




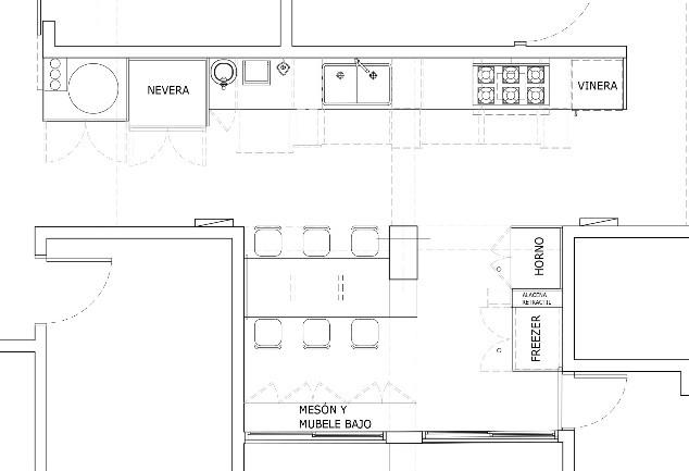
Cocina residencial, Caurimare,Caracas 2023


Diseño y supervisión: @efecinco.ve


Status: obra terminada







Al ser dos apartamentos unificados, el área de cocina es su conexión, por tanto liberamos el espacio y lo hicimospartecomolugardeencuentro.

Tienda Tech 4 Prime
C.C. Cerro Verde,



Diseño de proyecto: Erick Guillén & @efecinco.ve
Status: obra terminada


El conceptodeestatienda busca ir más allá de la simple venta de artefactos tecnológicos y accesorios. Su objetivo principal es crear un espacio interactivo donde los usuarios puedan experimentar de primera mano las características y funcionalidades de los productos. Para ello, se diseñaron áreas de demostración donde los clientes pueden probar los equipos, interactuar con ellosyrecibirasesoramiento personalizadoporpartedel personaldellocal.
En consonancia con la filosofía de la marca, se aprovechó la reutilización de piezas y elementos tecnológicos en desuso comopartedelmobiliarioy decoración del local. Esta iniciativa no solo aporta un toque único y distintivo al espacio, sino que también contribuye a la sostenibilidad del proyecto al reducir el impacto ambientalensusacabados y enviar un mensaje de pensar fuera de lo convencional.




Remodelación
Pent House CHR, Valle
Arriba, Caracas
2023

La idea de la remodelaciónsecentróen maximizarlaimpresionante vistahaciaelÁviladesde lamayoríadelosespacios ycreandounaconexióna doblealturaquenoexistía previamente. Esta intervención permitió una mayor entrada de luz natural, ventilación cruzada y una sensación deamplitudenelespacio.
La redistribución total de los espacios interiores fue clave para lograr una fluidez y funcionalidad óptimas,adaptandocada área a las necesidades contemporáneas de sus habitantes.
Proyecto y ejecución:
Erick Guillén & @efecinco.ve
Status: obra en ejecución
Además, se aprovechó cadarincónresidualpara integrar áreas sociales acogedoras y versátiles. Estos espacios, antes subutilizados, ahora sirven como puntos de encuentro y relajación, enriqueciendo la experienciadevivireneste hogar. Se consideró la utilización de materiales nobles y de alta resistencia.







Remodelación
Oficinas para escritorio jurídico, C.C.C.T., Caracas 2022


Diseño de proyecto: Erick Guillén & @efecinco.ve
Status: en proyecto



Propuesta remodelación acabados un leguaje sobrio, pisosexistentes.
Mobiliarios que propuesta
Propuesta para remodelación de acabados de oficina, con leguaje moderno y sobrio, manteniendo los existentes.


Mobiliarios de vanguardia se amoldan a la propuestamoderna.


Remodelación
Oficinas Importaciones
Internacionales MR.
La Urbina, Caracas
2022

Proyecto y ejecución: @efecinco.ve


Proyectodeadecuaciónydistribuciónde oficinas administrativas y almacén en planta industrial, aprovechando la morfologíadellugar,mobiliariopropiodel cliente y reutilizando a través del diseño materiales intrínsecos del negocio aplicandolametodologíadel upcycling.
Status: obra terminada



Al ser una importadora de vinos, se reutilizaron las botellas como elementos decorativos y funcionales al dejar pasar luzyllevaraguaenloslavamanos



Remodelación
Sala comedor y sala de juegos Casa 58B. La Unión, Caracas 2021/2022
Diseño de proyecto: Erick Guillén & @efecinco.ve

Status: en proyecto

Proyectoderemodelaciónencurso vivienda unifamiliar. En conjunto propuesta acorde a sus gustos y mejoresprácticasydiseñosdevanguardia.

cursodelos espaciossociales de una con el cliente desarrollamos una expectativas, de la mano de las vanguardia.


Remodelación
PH MGR. Los Chaguaramos, Caracas
2021/2022
Diseño de proyecto: Erick Guillén & @efecinco.ve



Status: en proyecto



Proyecto para remodelación apartamento tipo penthouse gustos minimalistas. calidez y color aprovechando amplituddellugar.Proyecto

Planta Baja
remodelación de los espacios de un penthouse para una pareja joven con Se concentró el esfuerzo en darle aprovechando las excelentes vistas y la Proyectoendesarrollo.






Redistribución de equipos de trabajo. Oficinas Cardón IV, Torre Galipán, Caracas 2021
Diseño de proyecto: Erick Guillén & @efecinco.ve


SITUACIÓN INICIAL

Status: obra terminada

SITUACIÓN INICIAL PROPUESTA EN EJECUCIÓN





Propuestas
Esteproyectoconsistióenelreaprovechamientodelosespaciosdetoda la planta y del mobiliario disponible, maximizando de manera acorde y ergonómica el número de puestos de trabajo así como la creación de espacios lounge paraelencuentrooreunionesinformales.


Concesionario de autos. Los Dos Caminos, Caracas

Diseño de proyecto: Erick Guillén & @efecinco.ve

PROPUESTA

Status: obra terminada






Concurso CAF
“Espacios públicos después de Covid-19”
Diseño de propuesta: Erick Guillén
Mención honorífica entre las mejores ideas de concurso






Nogales Café, UCAB, Caracas.


Diseño de proyecto:
Erick Guillén & @efecinco.ve
Status: en proyecto







Remodelación
Qta. La Chalana
El Hatillo, Caracas. 2020

Proyecto y ejecución: Erick Guillén & @efecinco.ve
Status: obra terminada

Proyecto de remodelación de todos bifamiliar(anexo). Se aprovechó la flexibilidad acabadosytexturasnoconvencionalespero

los espacios interiores de la vivienda flexibilidad del cliente de experimentar con peromuyacordesalmomento.




Tienda El Anaquel, Chacao, Caracas.


Proyecto y ejecución: Erick Guillén & @efecinco.ve


Status: obra terminada

































































