Ericka Brown Interior Design Portfolio 2023

Page 1

INTERIOR DESIGN PORTFOLIO ERICKA BROWN
TERRACES AT THE TREE FARM

ROLE AND RESPONSIBILITIES

• General Project Management

• Modeling in Revit of Public Spaces via Cloud collaboration with Architectural team

• Focus areas of development - Bistro, Reception, Sales & Leasing Offices, Second Floor Lounge, Exterior Patios

• Grand Fireplace Design

• Finish selections for Public Areas

• Modeling and Drawing Development for Residential Units

• Assistance with Finish selections for for Residental Units for both Scheme A and Scheme B

SCHEMATIC DESIGN PRESENTATION

TERRACES AT THE TREE FARM IS A PLANNED 55+ COMMUNITY WITH MODERN ASETHETIC FOR AN ACTIVE COMMUNITY OF ADULT RESIDENTS IN CARBONDALE, CO. THE PROJECT INCLUDES 42 UNITS IN 7 UNIQUE FLOOR PLANS, INTERIOR AND EXTERIOR AMENITY SPACES AND 2 RESTAURANTS.

BISTRO HAND SKETCH FOR PRE-DESIGN CHARRETTE

PUBLIC AREAS - SD FURNITURE PLAN

PUBLIC AREAS - SD FINISH SELECTIONS

SCHEMATIC DESIGN PHASE

PG 12 TERRACES
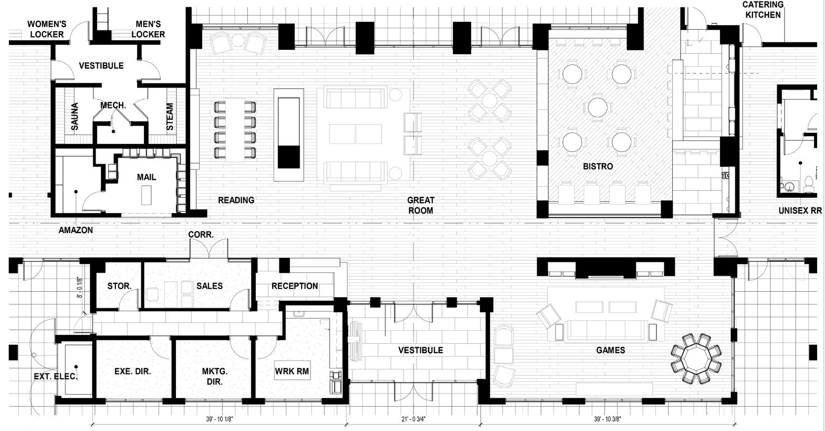
PUBLIC
& GREAT ROOM 4 1 5 2 3 6 2 FLOOR AND ACCENT TILE Manufacturer: Porcelanosa Style: Metropolitan Antracita Size: 16” 32” 1 RECEPTION DESK SLAB COUNTERTOP, FIREPLACE HEARTH Manufacturer: Marble Systems Style: Diana Royal Leathered Material: Limestone 5 6 FIREPLACE ACCENT TILE Manufacturer: Kafka Granite Style: Sierra Granite Cut: Dimensional Drystack Size: Varies 3 7 BLACKENED STEEL ACCENTS WOOD FLOORING Manufacturer: Southern Comfort Style: Horizon Ash Material: White Oak Finish: Aluminum Oxide Size: 9.5” W Plank Varying Lengths (12”- 84”) 7 8 HORIZONTAL WOOD PANELING Manufacturer: Bella Cita Walls/Joe Fleri Style: Tone Planking Color: Custom Stained to Coordinate with Wood Flooring Size: 7” W Plank x Varying Lengths 4 8 BISTRO SLAB COUNTERTOP Manufacturer: Arizona Tile Style: Calcatta Maywood Material: Quartz BISTRO BACKSPLASH TILE Manufacturer: Ann Sacks Style: Savoy Small Stack Mosaic Color: Lotus
AT TREE FARM
AREAS: VESTIBULE,BISTRO,RECEPTION
SADDLE CREEK RESIDENTIAL DEVELOPMENT ARTIST’S CONCEPTUAL RENDERINGS

PROPOSED SPACE PLANNING FOR MARKETING

DEVELOPMENT RENDERING FOR MARKETING BY OTHERS

THE SADDLE CREEK DEVELOPMENT IS A 6-ACRE PLOT COMPRISED OF 46 UNIQUE RESIDENCES DESIGN BY 5 UNIQUE ARCHITECTS TO CREATE A COLLECTION OF BOUTIQUE MULTI-FAMILY UNITS. ALL INTERIOR FINISH SCHEMES INCLUDE LUXURY FINISHES THAT CREATE TWO SIMPLE YET DISTINCTIVE PALLETS THAT SPAN THROUGHOUT THE ENTIRETY OF THE PROJECT.

FINISH SCHEME A & FINISH SCHEME B MOOD BOARDS

ROLE AND RESPONSIBILITIES

• Co-Project Managment with Architectural Designer

• Development of Marketing Strategies and Materials

• Modeling in Revit for 46 Residential Units

• Coordination and Development of Drawings for Construction and Interior Details

• Collaborate in Selection and development of 2 Finish Schemes

SCHEMATIC DESIGN PHASE
PROJECT SITE MAP BY OTHERS
SADDLE CREEK DESIGN INSPIRATION 1/11/2023 ALPINE FRESH BUILT-INS SIMPLICITY LUXURIOUS SPA-LIKE SPACIOUS CALMING LIFESTYLE WARMTH SADDLE CREEK DESIGN INSPIRATION 1/11/2023 MOUNTAIN MOOD OPEN VIEWS SIMPLICITY LIFESTYLE DETAILS RICHNESS
VICEROY SNOWMASS
CIRQUE RESIDENCES X
ARTIST’S CONCEPTUAL RENDERINGS

ROLE AND RESPONSIBILITIES

• General project manager

• Collaborative brand development

• Design leader for public and amenity spaces

• Collaborate and design of all custom furnishings and provide all details for fabrication

• Selection of lighting throughout public areas

• Modeling in Revit of all Unit and Amenity Spaces

• Development of all Finish Plans, Tagged Furniture Plans, Tagged Art and Accessory Plans and Plans for Marketing

• Participate in Collabortive efforts for Art Direction

• Work with Brand and Ownership to develop custom finishes with Manufacturers

PENTHOUSE WEST - FLOOR PLAN FOR MARKETING

THE CIRQUE RESIDENCES ARE A COLLECTION OF LUXURY CONDOS IN THE NEW ADDITION TO THE VICEROY SNOWMASS SKI-IN/SKI-OUT RESORT. THESE FULLY CUSTOM HOMES ARE IN THE $2000 - $3000 PER SQ. FT. PRICE RANGE AND WILL BE AVALIABLE FOR VACATION RENTALS AS THE PROPERTY FUNCTIONS AS A FULL SERVICE HOTEL.

ANTICIPATED COMPLETION SUMMER 2024
SCALE: 1/4" = 1'-0" PENTHOUSE WEST FFE FURNITURE PLAN -664 MARKETING F/K K STG K K
O S O S OS SO LUGGAGE ART423 ART710 ART710 3 ART710 4 5 ART710 6 7 2 ART710 1 LUGGAGE ART-P13 ART-P14 ART-P12 ART-P10 ART-P09 ART-P15 PIL-P03 UPH-P04 CG-P02 UPH-P02 AR-P02 CG-P01 UPH-P03 PIL-P01 UPH-P01 AR-P01 (2) (2) (3) (2) (4) (4) CG-P02 ART-P16 PIL-P02 (2) Drawing Title: Date: 130 WOOD ROAD SNOWMASS VILLAGE, CO 81615
BASE VILLAGE BUILDING 13B PUBLIC - ENTRY LOBBY FURNITURE PLAN SCALE: 1/8" = 1'-0"
-ENTRY LOBBY FURNITURE PLAN
VESTIBULE - TAGGED FURNITURE PLAN 59" 20" 88" 2" UPH-08.STG 74" 20"5" 74" 84" 59" 74" Detail Drawings 59" 20" 88" 2" 2" UPH-08.STG 74" 20"5" 62" 12" 74" 84" 59" 74" Detail Drawings UPH-10 59" 88" 2" 2" UPH-08.STG 20"5" 62" 12" 74" 84" 59" 74" Detail Drawings UPH-10
SNOWMASS
PUBLIC
LOBBY

ARTIST’S CONCEPTUAL RENDERINGS

ONE RIVERFRONT PROPERTIES, AVON, CO

THE RESIDENCES AT ONE RIVERFRONT - INTERIOR RENDERING FOR MARKETING

THE ONE RIVERFRONT PROPERTIES AT RIVERFRONT VILLAGE IS A PHASED DEVELOPMENT COMPRISED OF 4 INDIVIDUAL RESIDENCES, 13 TOWNHOMES, AND 40 CONDOMINIMUMS AND PUBLIC AND AMENITY SPACES AT THE WESTIN HOTEL INCLUDING A RESTAURANT AND ROOFTOP BAR.

ROLE AND RESPONSIBILITIES

• Drawing and design development of rooftop bar at Westin Hotel

• Public Area furniture selections throughout Westin Hotel

• Design Developement through all phases of ORF Residences, Townhomes, and Condos

• Point person for project management through Construction Administration phase of project

• Manage and Facilitate all buyer requests for customizations in conjunction with property development team and contractors

ONE RIVERFRONT TOWNHOMES - UNITS 5-8 FINISH PLANS

DRAWINGS UNIT 5 - MILLWORK BUYERS CHANGE REQUESTS

FURNITURE PACKAGE EXAMPLE BUYERS CHANGE PREVIEW FOR APPROVAL

LIVING ROOM FURNITURE WITH SOFA TRH ONE RIVERFRONT TOWNHOMES ROSE BOWL SOFA & LOVE SEAT AREA RUG ANTICIPATED COMPLETION SUMMER 2023
TERRACE OWNER STORAGE M1-016 STAIR M1-015 CLO 3 M1-009 CLO M1-013 BEDROOM 3 M1-008 BEDROOM 2 M1-012 ID6.02 ID6.02 13 STORAGE M1-014 HALL M1-005 CPT-01 CPT-01 MECH M1-001 CPT-01 CPT-01 CPT-01 CPT-01 CPT-01 TL-15 TL-11 VANITY M1-010 BATH 3 M1-011 VANITY 4 M1-003 BATH 4 M1-006 VANITY 4 R-003 BATH R-004 MECH R-001 HALL R-005 CLO R-013 CLO 3 R-009 BATH 3 R-011 VANITY 3 R-010 BEDROOM 3 R-008 BEDROOM 2 R-012 STORAGE R-013 LINEN M1-002 CONC BEDROOM 4 R-006 LINEN R-002 TL-17 CPT-01 CONC TERRACE CPT-01 CPT-01 CPT-01 CPT-01 CPT-01 CPT-01 CPT-01 TL-15 TL-11 CONC TL-17 CPT-01 CONC OWNER STORAGE R-016 BONUS ROOM M1-006 BONUS ROOM M2-006 BEDROOM M2-008 BEDROOM 2 M2-012 BEDROOM L-012 CLO L-013 CLO 2 M2-013 STORAGE M2-014 STORAGE L-014 HALL M2-005 HALL L-005 STAIR M2-015 STAIR L-015 OWNER STORAGE M2-016 OWNER STORAGE L-016 MECH M2-001 MECH L-001 LINEN M2-002 VANITY M1-026 VANITY 4 M1-026 LINEN L-002 VANITY M1-034 BATH M1-035 BEDROOM 4 L-006 CLO L-007 VANITY M1-030 BATH M1-029 CLO 3 L-009 BEDROOM 3 L-008 CPT-01 CPT-01 CPT-01 CPT-01 CPT-01 CONC CONC CPT-01 CPT-01 CPT-01 CPT-01 CPT-01 CPT-01 CPT-01 CPT-01 TL-15 CPT-01 TL-17 CPT-01 TL-11 CONC CONC TL-11 CPT-01 TL-17 VANITY 3 M2-010 CLO 3 M2-009 CPT-01 CLO 4 R-007 CPT-01 TERRACE TERRACE TRV SHEET No. SCAL E: CHK BY PROJECT No. ISSUE SEA L 101 El Paseo Santa Barbara, California 93101 (805) 963-6890 FAX (805) 963-8102 ARCHITECTURE -PLANNING -INTERIORS AND ASSOCIATES, INC. Z E H R E N 48 East Beaver Creek Blvd., Suite 303 P.O. Box 1976 -Avon, Colorado 81620 (970) 949-0257 FAX (970) 949-1080 LANDSCAPE ARCHITECTURE Copyright © 2020 by Zehr en & Associates Inc. KEY PLAN AS SHOWN ID1.01 20182642.09 09/24/2020 CC, KS KM FINISH FLOOR PLAN (+89'-0") RIVER LEVEL UNITS 1/2/3/4 (RIVER EAST) ONE RF TOWNHOMES AVON, COLORADO 970.927.5174 KL&A ENGINEERS & BUILDERS, INC. INNOVATIVE LIGHTING CONSULT. ALPINE ENGINEERING, INC B-G BUILDING WORKS 970.926.3373 KM 720.248.8208 970.949.6108 CIVIL CONSULTANT STRUCTURAL CONSULTANT MECHANICAL CONSULTANT LIGHTING CONSULTANT 1/4" 1'-0" ID1.01 1 FINISH FLOOR PLAN (+89'-0") RIVER LEVEL No.DATE COMMENT A09/25/2020SD SET B12/18/2020PZC DRB SET C12/23/2020100% DD SET D02/19/2021REV PZC SET E03/03/2021REV DD SET F04/16/202150% CD SET G05/05/2021GRADING PERMIT
ID6.05-5 2 SL-02 WD-01 MW-01 MW-01 SL-02 MW-01 MW-01 PF-01A P-01 MW-01 1 1/2" 2'6" 1'10 1/2" 3'0" 1 1/2" 1' 0" 2' 5 1/4" 2' - 0 1/4" 2' 0 1/4" 1 1/2" SL-02 PF-14 PROVIDE UNDER CABINET LIGHTING EQ-14 EQ-15 TRASH PULL OUT HW-02 TIP OUT DRAWER LOCAKABLE OUTLET ON RETURN OUTLET ON RETURN ID6.05-5 5 SL-06 SL-06 SL-06 PF-01A PF-14 MW-01 EQ-09 EQ-08 LVT-01 3'7" 1 3/4" 4'0" HW-10 1 1/2" 3' - 4" 1 1/2" MW-01 SL-06 MW-01 MW-01 HW-02 HW-02 PF-01A PF-14 SL-06 MW-01 1' 0 1/2" 4" 2' - 6" MW-01 OPEN OPEN OPEN OPEN OPEN EQ-08 EQ-09 CAVITY FOR RETRACTABLE DOOR 6'2" 4" 8'6" 3'0" 2'3" 3'0" FIXED SHELF (1) ADJ SHELVES (3) 1/2" = 1'-0" ID6.05-5 1 ENLARGED PLAN -UNIT 5 -WET BAR OC 1/2" = 1'-0" ID6.05-5 2 ELEVATION -UNIT 5 -WET BAR OC 1/2" = 1'-0" ID6.05-5 3 ENLARGED PLAN -UNIT 5 -LOWER LEVEL LAUNDRY OC 1/2" = 1'-0" ID6.05-5 5 ELEVATION -UNIT 5 -LOWER LEVEL LAUNDRY OC ASI 027
ONE RIVERFRONT TOWNHOMES ROSE BOWL WITH OWNERS CHANGES UNIT 7 LIVING ROOM FIREPLACE FINISHES FIREPLACE STONE TILE BUECHEL STONE CORPORTAION DIMENSIONAL STONE VENEER VARIOUS DIMENSIONS: 6”-24”L, 2.25”-5” H, 0.75”-1.25”W GROUT COLOR: TRUFFLE; STANDARD JOINT INDIANA LIMESTONE STANDARD SILVER BUFF SMOOTH FINISH STONE SLAB WOOD FLOORING VILLAGIO SANREMO WHITE OAK FIREPLACE BOX DIMPLEX 60” ELECTRIC FIREPLACE BLACKENED STEEL 1 1' 0" 1' 6" 6" 6" 5' 8" 4'4" 5' 8" 4'4" CORBEL MATERIAL BLACKENED STEEL

WillowCreek

WILLOW CREEK FIXTURES PRESENTATION

DESIGN INSPIRATION

10.14.22

RESIDENCE - BOULDER, COLORADO
PG 1
INTERIOR DESIGN
TRH

EXTERIOR FRONT ELEVATION BY ARCHITECT

MAIN LEVEL FLOOR PLANS WITH FURNITURE

UPPER LEVEL FLOOR PLANS WITH FURNITURE

S1.1 Foundation Plan D2.2 Exterior Demolition Elevations

S1.2 Main Level Floor Framing Plan S1.3 Low Roof / Upper Level Floor Framing Plan South Garage Main & Upper Level / Roof Demolition Floor Plan D2.4

S2.1 Foundation & Framing Details S2.2 Framing Details S2.3 Framing Details S2.4 Framing Details S2.5 Framing Details S2.6 Framing Details S2.7 Framing Details S2.8 Framing Details S2.9 Framing Details

Architectural Drawings

D2.1 Partial Main Level Demolition Floor Plan A2.3 Upper Level Floor Plan

C2.1 Existing Site Plan C2.2 Proposed New Site Plan A4.6 Building Section A4.7 Building Section

MAIN LEVEL - GAME ROOM PERSPECTIVE

S1.4 Upper Roof Framing Plan S1.5 Garage Foundation / Garage & Breezeway Roof Framing Plan A2.8 Upper Level Reflective Ceiling Plan A4.8 Building Sections A4.9 Stair Sections & Details

S0.1 Schedules, Notes & Key Structural Drawings A4.2 Building Section A4.1 Building Section Main Level Electrical & Plumbing Plan

A2.2 Partial Main Level Floor Plan A2.5 Lower Level Floor Plan

Partial Main Level Exterior Floor Plan A3.3 Partial Garage Exterior Elevations

A2.1 Partial Main Level Floor Plan A5.1 Window & Door Schedules

D2.3 Exterior Demolition Elevations A3.2 Exterior Elevations A4.4 Building Section A4.3 Building Section A4.5 Building Section E2.2 Upper & Lower Level Electrical & Plumbing Plan

A2.4 A2.6 Partial Roof Plan A2.7 Partial Roof Plan A5.2 Window & Door Elevations E2.3 Electrical & Plumbing Schedules

Cover Metro Design Group LLC Cover Sheet Drawing List A3.1 Exterior Elevations E2.1

THE WILLOW CREEK PROJECT IS A RENOVATION PROJECT OF A 1989 SINGLE FAMILY RESIDENCE IN UNINCORPORATED BOULDER COUNTY, COLORADO. UPON COMPLETION OF THIS TO THE STUDS RENOVATION THE RESIDENCE WILL REACH MORE THAN 12,000 SQ. FT. WITH THE SECOND FLOOR ADDITION AND SITS ON A NEARLY 5-ACRE LOT.

ROLE AND RESPONSIBILITIES

• Overall project manager

• Revit modeling of full project from architect’s CAD drawings

• Finish and fixture selections and scheduling

• Development of Tagged Finish Plans, Furniture Plans, and Detail Drawings as neseesary

• Design of all Custom Details

• On site coordination with contractor and subcontracting teams

• Furniture Layouts and Selections

ANTICIPATED COMPLETION SPRING 2023
UP FRE DN LTG102 GFI GFI OPEN TO BELOW
• Client communication and interface remotely throughout construction process P.O. Box 1742 Boulder, CO 80306 Ph. 720.441.7460 25 Lone Mountain Trail Big Sky, MT 59716 406-223-3009 1657 North Rockwell St. Chicago, IL 60647 Ph. 312-655-0940

RanchodelosReyes

RESIDENCE - NIWOT, COLORADO

ROLE AND RESPONSIBILITIES

• Collection of As-Built data of site to generate and develop Design Plans

• Ideation through Schematic Design Proess

• Create Model in Revit based off As-Built data collection and hand drawn sketches and details

• Focus area customization of Primary Bedroom Millwork, Primary Bathroom, Lower Level Bar, and 3-Story Entry Vestibule

• Collaboration on Finish Selections and Schedule development

THE RANCHO DE LOS REYES PROJECT IS AN INTERIOR RENOVATION OF A 6,000+ SQ. FT. RESIDENCE ON A HORSE RANCH LOCATED IN NIWOT, COLORADO. ALL INTERIOR SURFACES AND GENERAL LAYOUT OF TO BE CONSIDERED IN THIS TO THE STUDS REIMAGINING OF A SINGLE FAMILY HOME.

ANTICIPATED COMPLETION SPRING 2023
UP UP EGRESS 1'-3" BAR 003 G. BATH 1 005 LIBRARY 007 GAME ROOM 008 GUEST BEDROOM 2 009 LL BATH 010 GUEST BEDROOM 1 006 MECH/STROAGE/AV 004 ENTERTAINMENT 002 STAIR 001 STORAGE 011 PROJECTOR SCREEN OR OVER SIZED TV W/ AV ELECTRICAL PANEL AV PANEL WINE RM 012 Revisions: Project No: Drawn by: Sheet: Drawing Title: Date: 9300 HILL VIEW DRIVE LONGMONT COLORADO RANCHO DE LOS REYES RANCHO CCC A3.4 LOWER LEVEL SD 10/12/21 LOWER LEVEL DN KITCHEN POWDER MUDROOM DINING LIVING (N)ENTRY 10'-0" 4'-0"2'-1" 1'-1 1/2" 5'-2"4'-0" 9'-1 3/8" 1'-3" MINI OFFICE WASHER DRYER W/ SHELVING ABOVE FEED BINS ON STEEL SHELVES FOLDING TABLE BENCH W/ HOOKS ABOVE FOR COATS BOOT WALL HAT WALL COATS 7'-0" 21'-0" Revisions: Project No: Drawn by: Sheet: Drawing Title: Date: 9300 HILL VIEW DRIVE LONGMONT COLORADO RANCHO DE LOS REYES RANCHO CCC A3.3 MAIN LEVEL PLAN SD 10/12/21 MAIN LEVEL PRIMARY BEDROOM 201 PRIMARY BATH 202 P.CLOSET 203 UPPER GUEST SUITE 204 UPPER BATH 205 Revisions: Project No: Drawn by: Sheet: Drawing Title: Date: 9300 HILL VIEW DRIVE LONGMONT COLORADO RANCHO DE LOS REYES RANCHO Author A3.5 UPPER LEVEL SD 10/12/21 UPPER LEVEL Revisions: Project No: Drawn by: Sheet: Drawing Title: Date: 9300 HILL VIEW DRIVE LONGMONT COLORADO RANCHO DE LOS REYES RANCHO CCC 3DLL-02 3D LL BAR & WINE 10/12/21 LOWER LEVEL - BAR & WINE ROOM PERSPECTIVE
Revisions: Project No: Drawn by: Sheet: Drawing Title: Date: 9300 HILL VIEW DRIVE LONGMONT COLORADO RANCHO DE LOS REYES RANCHO Author 3DUL-01 3D UL PRIMARY BEDROOM 10/12/21 UPPER LEVEL - PRIMARY BEDROOM ENTERTAINMENT MILLWORK
erickabrown.design@gmail.com 479.420.7087

Turn static files into dynamic content formats.

Create a flipbook
Issuu converts static files into: digital portfolios, online yearbooks, online catalogs, digital photo albums and more. Sign up and create your flipbook.