

E R I C P A G A N REGISTERED
ARCHITECT | FL
University of Florida’s alum and proud Orlando native. My belief is that incorporating storytelling into design is crucial for architecture to truly connect with its users and make a lasting impact on the community. Looking to make something meaningful together.
CONTACT
407.432.5992
ERICFRPAGAN@GMAIL.COM

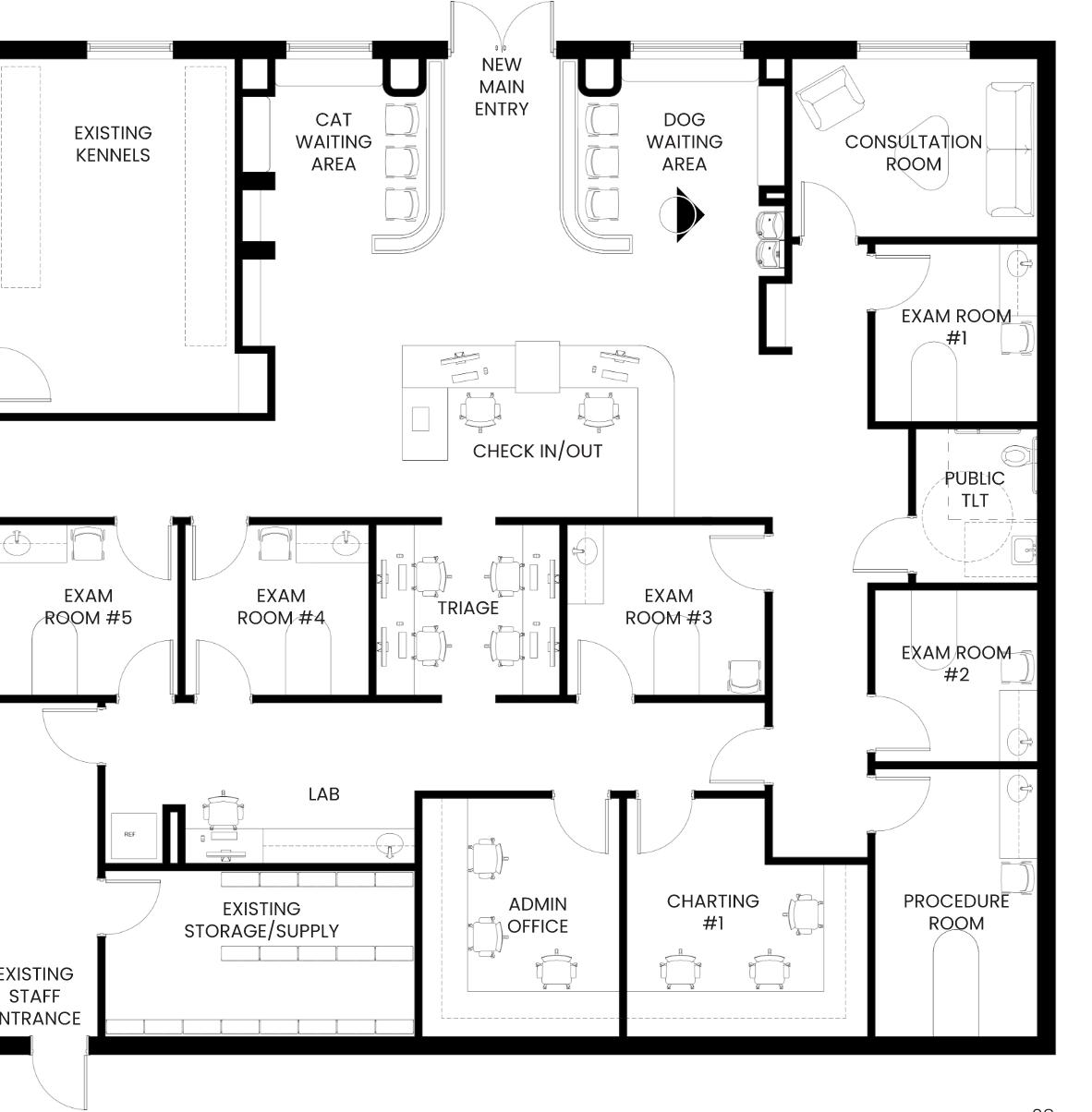
01 RESCUE VET EXPANSION

02 ELEVATE SPA RENOVATION

03 CONNECT RADIO



05 COMMUNITY GRADUATE THESIS 04 CULTURE THE COMMONS

RESCUE VET EXPANSION
PROGRAMS
AUTOCAD | REVIT | ENDSCAPE | PHOTOSHOP
SCOPE
EXPANSION OF VETERINARY CLINIC INTO ADJACENT SUITE. REDESIGN OF FRONT OF HOUSE PROGRAM.
CONCEPT
DESIGN A SPACE THAT INTEGRATES THE “FEAR-FREE” CONCEPT, WITH A FOCUS ON ALLEVIATING PATIENT STRESS DURING TREATMENT. THIS CONCEPT INFLUENCES FINISH SELECTIONS, EXAM ROOM LAYOUT, AND, NOTABLY, ENHANCES THE WAITING ROOM EXPERIENCE.









ELEVATE SPA RENOVATION
PROGRAM
REVIT | ENDSCAPE | PHOTOSHOP
SCOPE
DESIGN THREE OPTIONS FOR NEW LOCKER ROOM CONFIGURATION FOR EXISTING SPA
CONCEPT
TO CRAFT A SPA LOCKER ROOM EXPERIENCE THAT EXUDES LUXURY AND RELAXATION, STEERING CLEAR OF THE TYPICAL UTILITARIAN VIBE YOU MAY SEE AT AN AVERAGE GYM LOCKER ROOM. AIMED TO ENSURE THAT THE SPA TREATMENT JOURNEY COMMENCED THE MOMENT YOU STEPPED INTO THE LOCKER ROOM.







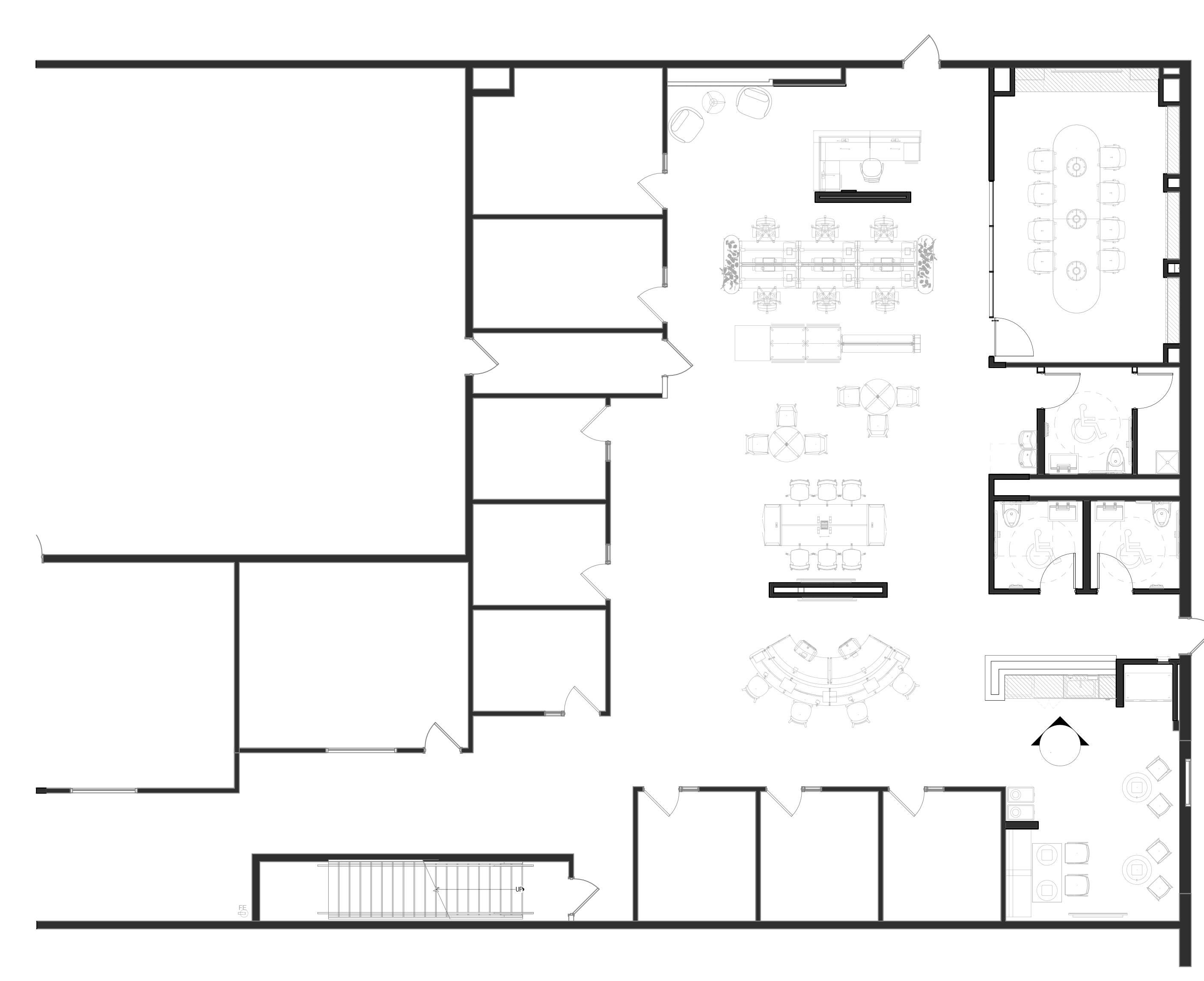
CONNECT RADIO REFRESH
PROGRAM
REVIT | ENDSCAPE | PHOTOSHOP
SCOPE
REFRESH RADIO STATION OFFICE SPACE INCLUDING NEW OPEN WORK AREA CONCEPT, CAFE, RESTROOM LAYOUT, AND NEW FURNITURE THROUGHOUT SPACE
CONCEPT
PROVIDE A NEW SPACE THAT BETTER REPRESENTS THE CLIENT AND THEIR MISSION. A SPACE THAT IS WELCOMING, FRESH, AND COMMUNITY FOCUSED.





UPGRADE FURNITURE THROUGHOUT
CONVERT CUBICLES TO OPEN WORK AREA
CHANGE TO SINGLE USER RESTROOMS
NEW CAFE STYLE BREAKROOM

(EXISTING)
OFFICE (EXISTING)
OFFICE (EXISTING)
OFFICE (EXISTING) VESTIBULE
OFFICE (EXISTING) OFFICE (EXISTING)

CULTURE
THE COMMONS
PROGRAM
REVIT | ENDSCAPE | PHOTOSHOP
SCOPE
TRANSFORM AN EXISTING SINGLE-TENANT WAREHOUSE INTO TWO SEPARATE TENANT SPACES WITH A VERSATILE ACCESSORY AREA. FACADE REMODEL INCORPORATING LAZING AND NATURAL MATERIALS TO ENHANCE THE EXISITNG BUILDING AESTHETIC.
CONCEPT
ESTABLISH A MARKET VENUE THAT ENHANCES THE LOCAL COMMUNITIES SENSE OF PLACE WHILE CHAMPIONING AND CELEBRATING ITS UNIQUE CULTURE.. DESIGN A FLEXIBLE EVENT SPACE ACCOMMODATING LOCAL VENDORS, ARTISTS, AND CHARITIES.





COMMUNITY GRAD THESIS
PROGRAM
AUTOCAD | REVIT | LUMION | PHOTOSHOP
SCOPE
RELOCATION/RENOVTION OF THE CURRENT LGBTQIA+ CENTER AND ESTABLISHING NEW PROGRAMS THAT ENCOMPASS ARTS/THEATRE INTIATIVES, ALONG WITH HOUSING/RESOURCE OPPORTUNITIES TO SUPPORT QUEER YOUTH EXPERIENCING HOMELESSNESS.
CONCEPT
TRANSFORM THE EXISTING LGBTQIA+ CENTER INTO A HUB THAT HELPS FOSTER COMMUNITY COHESION FOR THE QUEER COMMUNITY AND ITS ALLIES, DOUBLING AS A NEW MAJOR LANDMARK WITHIN THE BROADER CITYSCAPE TO HELP BRING VISIBILITY AND ACCEPTANCE TO THE QUEER COMMUNITY.







IN ORDER TO DESIGN BUILDINGS WITH A SENSUOUS CONNECTION TO
MUST THINK IN A WAY THAT GOES FAR BEYOND FORM AND CONSTRUCTION
-PETER ZUMTHOR
