ERDeWitt Portfolio 2024

Page 1


Portfolio

Above: The Interlock, Models. Parti model (left), Form model (right). Cover Page: The Road to LA is Paved with Crystals, Digital Collage.

The following portfolio represents a collection of research, academic and fabrication work. I am academically trained with a Bachelors in geology and a Masters in architecture, with over a decade-long career in the gem and jewelry industry, providing me with a hands-on approach to design and problem solving. I think of myself as an interdiscplinary thinker and doer, taking on architectural and structural pursuits at all scales.

Erica Radcliff DeWitt

BA Geosciences, Williams College ‘09 MArch, University of Massacshuetts Amherst ‘23

erdewitt@umass.edu

e.radcliff.dewitt@gmail.com

+1.413.884.4845

Studios

1 Rock Water Waffle

2 Ribbon Building

3 Module

4 The Interlock

Research

2022 / Graduate 5 Studio 2021 / Graduate 2 Studio 2021 / Graduate 3 Studio 2022 / Graduate 4 Studio

5 Architecture of Extraction: Imagining New Modes of Inhabitation and Reclamation within the Mining Lifecycle

a Site Research, Site Narrative b Speculative Design

Exhibitions

6 In the Wake

7 While a Leaf Breathes (Mientras Una Hoja Respira)

2022 / Master’s Thesis 2023 / Master’s Thesis

2022 / Group Exhibition 2023 / Consulting + Fabrication

1 Rock Water Waffle 2 Ribbon Building

Module

The Pearl; Line Drawing.

1 Rock Water Waffle

2022 / Academic Project

Graduate 5 Design Studio

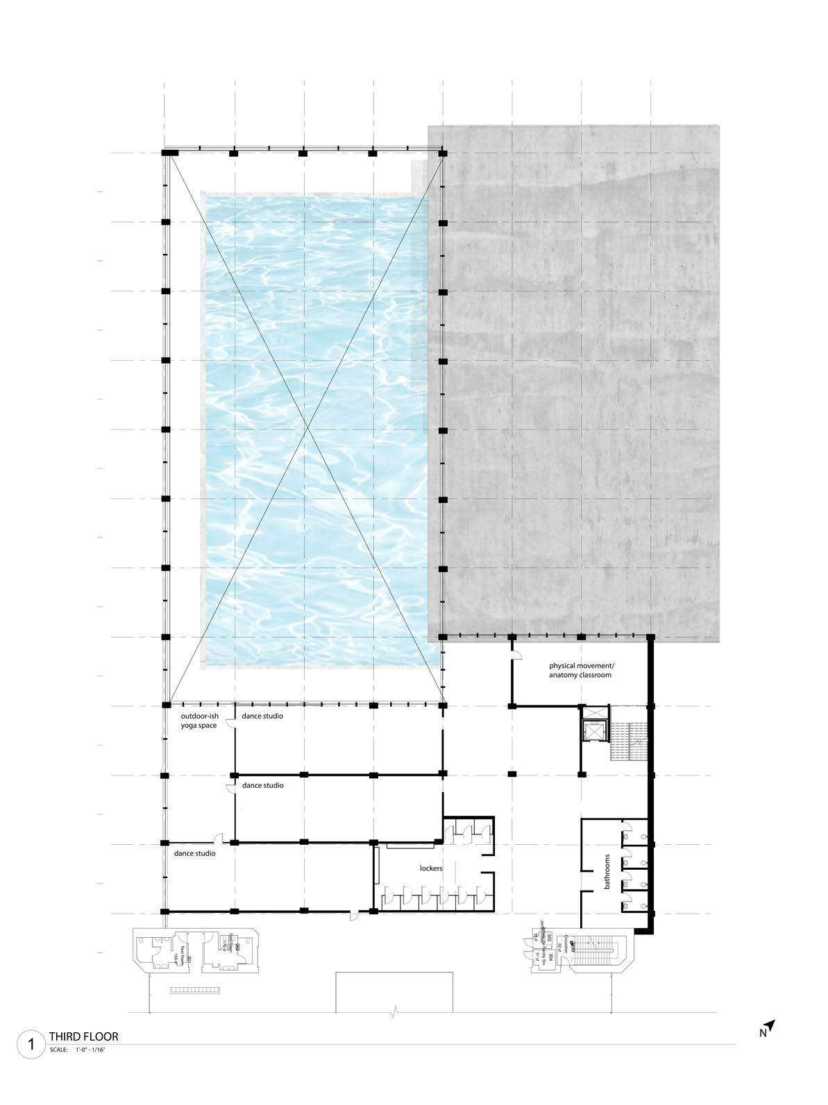
This studio was structured around the exploration of “wellness,” especially with regards to the rejuventaing aspects of water. While the end goal of this class was indeed to design a wellness center containing a natatorium both an olympic pool and recreational swimming areas for our campus (UMass, Amherst), the curriculum challenged us to consider wellness holistically. (1) As college and university campuses evolve to include “wellness” as part of their culture, what does this changing definition of wellness mean? (2) On a broader sense, how can this building be a circulatory center of campus, connecting students, faculty, and staff alike? (3) Holistically, can we design the building itself to be “well,” by using mindful materials (ie. wood, local stone), and what would this look like?

Deeply guided by the spatial discrepancies provoked by the two center diagrams to the right (Sunlight and Intimate vs. Exposed), Rock, Water,

Waffle, was designed with all of these consideratoins in mind. Taking inspiration from the historical aspects of the campus of Umass (both geologic and historical), it introduces two separate languages. The “Rock,” is based on the metamorphic outcrops of the Connecticut Valley, and contains the playful water-based spaces of the natatorium, bringing the outdoors inside. The “Waffle,” is a reimagination of the Brutalist concrete waffle motif seen on multiple campus buildings, such as Breuer’s Lincoln Campus Center and Tobin Hall, designed by Coletti Brothers. The wooden waffle encases the natatorium, allowing for both sunlight and privacy, while also providing a simple structure solution to the long span needed over the olympic pool. The following two pages explore the experiential aspects of this building through collage and collaged sketches, along with the conceptual aspects, depicted through a series of axonometrics drawings.

Rock Water Waffle, Collage. Picturing Rock, Water, Waffle.

Rock Water Waffle Diagrams. Programmatic diagrams guided project design and realization.

Above: Duration, Wet vs. Dry, Fast vs. Slow, Ciculation (Clockwise from top left).

Left: Sunlight (top), Exposed vs. Intimate (bottom).

foundation, water, enclosed rock
foundation, water, enclosed rock, waffle columns, floor structure, floors
foundation, water foundation, water, rock
foundation, water, enclosed rock, waffle columns
foundation, water, enclosed rock, waffle columns, floor structure
foundation, water, enclosed rock, waffle columns, floor structure, floors, waffle
foundation, water, enclosed rock, waffle columns, floor structure, floors, waffle, rooves
Rock Water Waffle Axon Series. Axonometrics depicting progression of structure relationships.

2 3

Rock Water Waffle plans + Perspectives. Plans correlate to desginated perspective sketches.

2021 / Academic Project

Graduate 2 Design Studio

Ribbon Building

Ribbon Building was designed as an architectural introduction to the city of Northampton, a bustling urban area in Western Massachusetts. Designated for an empty, but frequently trafficked lot in the center of town, it combines public and private space into a mixed use structure, and connects these disparate programs through a continuous “ribbon.” This sweeping form, which interrupts an otherwise rectinlinear buidling logic, creates a membrane through which visitors can connect with eachother and to the building itself. The ribbon’s ability to expand and shapeshift provides opportunities for programmatic elasticity: as one visitor rests in the cafe, accompanied by the ribbon in the form of a wall and balcony railing, another visitor can appreciate it’s overhead protection and dynamism in the fifth floor office spaces. Calling on inspirative precendents such as the

Swatch Headquaters by Shigeru Ban, and Stephen Holl’s Maggie’s Centre Barts, Ribbon Building works with a mix of materials (local Goshen Schist, Massachusetts white pine, and locally mixed concrete), to create strcutural and aesthetic interest and contrast.

In a world that is increasingly moving towards the digital realm, I wanted Ribbon tp tests the limits of these capabilities--both in its design and its possibility for social connectedness. Ribbon suggests new modes of design through the use of unique forms and relationships; however, it does so with the ultimate aim of bolstering inhabitant interaction through creative physicality. Finally, its representational style suggests a playfulness and humor, refusing to take itself too seriously, a relief in an otherwise technologically serious world.

Ribbon Building, Axon and Exploded Axon. Illustrations of Interior and Exterior.

Ribbon Building, Long Section. Comic-style depiction of program and interaction between curvilinear ribbon and rectilinear building structure.

2022 / Academic Project

Graduate 3 Design Studio

Module

Module is an affordable housing complex designed for a dynamic site in the heart of Holyoke, Massacshuetts. Situated between two canals and on complex topography, I felt passionate about creating Module with buildability in mind, calling reference to the designs of Alejandro Alavera’s firm, Elemental. Prioritizing quality over space, Module, creates units that are versatile and plentiful. The unit options, which consist of a studio, a one bedroom, and a two bedroom are all designed with exactly the same plan and square footage--as the indoor spaces shift in size, private outdoor balconies make up the difference. Since all three unit types have identical footprints, building the structure and creating the subsequent material is relatively “easy,” keeping

costs low, and flexibility high. While I design this complex for a specific community in in Massachusetts, this building model could be used for any number of urban areas, adjusting unit type and building size as site and demographic needs dictate.

Finally, I designed Module to contain ample indoor and outdoor communal space, with usable spaces that are often absent in urban affordable housing complexes. Each unit also has two methods of egress: a protected stairway facing streetside, leading into a modest but private garden, and an open staircase facing inwards towards the large communal gardens, encouraging community engagement and providing a shared sense of inhabitation.

Outdoor Balconies
Bedrooms
Studio.
2 Bedroom. 1 Bedroom.
Module, Collaged Render. Colorful and vibrant outdoor spaces and communal gardens.

2022 / Academic Project

Graduate 4 Design Studio with: Lincoln Nemetz-Carlson

The Interlock

The Interlock is an American Mission in Geneva, Switerland, the collaborative result of a design studio organized in conjunction with architects from the American State Department. With a form that references politically complex precedents like Gropius’ 1961 American Embassy in Greece, The Interlock does not shy away from America’s complex history, but rather addresses it and presents a humble, understated alternative for American security on foreign land. The conceptual framework behind this building begins as a platonic rectangle, and, using the spatial logic behind wood joinery, is broken into multiple sections. Each section is then strategically shifted to allow for metaphorical transparency and literal building access.

The majority of this low-tothe-ground four-story building is constructed from mass timber, referencing multiple Swiss building projects, but perhaps most directly the Swiss School of Engineering

for the Wood Industry, by Meili, Peter, and Partner. The structure is then clad in a subtle wooden screen facade system, with slats shifting in density to accomodate for programmtic needs of differing securities. Glass and steel surfaces designate where the rectangle has broken apart, highlighting the intricate joints, the negative space they reveal, and their previous connections. In addition, The Interlock holds a green roof, helping the political structure blend into the surrounding Swiss Forests.

The design of this building offers an alternative mode of representation for the United States--working with a simple conceptual model, referencing Swiss building project, and designing to coordinate with the surrounding landscapes, it blends in with the culture and site, illustrating that while America is a problematic country with a complex history, there is subtle hope in its diplomatic future.

JOINTS

Entrances and Exits Expressed Through Materiality

VOIDS

Moments Through Negative Space

The Interlock, Diagrams. Joints/Entrance Transparency (top), Negative Space (bottom).

The Interlock, Chunk Model. Key moment displaying solid/void relationships.
1/16” : 1’
3/32” : 1’
3/32” : 1’

1 Rock Water Waffle

2 Ribbon Building 3 Module

4 The Interlock

5 Architecture of Extraction: Imagining New Modes of Inhabitation and Reclamation within the Mining Lifecycle

a Site Research, Site Narrative b Speculative Design

2022 / Master’s Thesis 2023 / Master’s Thesis

Architecture of Extraction; Axonometric Line Drawing. Woven mining and courtyard complex: mines, trelisses, houses, light wells, water collection.

Architecture of Extraction 5

Imagining New Modes of Inhabitation and Reclamation in the Mining Lifecycle

Mining is the primary method through which modern society obtains the minerals needed to fuel the global economy, provide for modern energy requirements, and support the built environment. Presently, mining accounts for nearly 1% of the global ice-free land surface, with a dramatic increase anticipated in the coming decades. Mining permanently changes and often destroys the pre-existing topography, hydrology, and ecology of the ground associated with mining, and efforts to reclaim mining landscapes—with the aim of encouraging reforestation and soil replenishment—are often unsuccessful, rendering the land of abandoned mines both unusable and uninhabitable.

This thesis addresses the current state of mining in the Democratic Republic of the Congo and focuses specifically on a cobalt and copper mining complex within and adjacent to the town of Kolwezi. This is a complex site that is crucial for the

global transition to renewable energy, and yet contains many of the climate and social injustices currently implicit with mining. This research formulates a novel model of mine reclamation for the landscapes of Kolwezi, and, in the process, introduces new options for the symbiosis of extraction and inhabitation: the results of which will challenge many of the existing narratives within architecture. This model is guided by concepts of geologic and deep time, with an emphasis on longterm holistic solutions and uses the opportunity of building in terraformed land as a practice to invert traditional relationships of vertical space and hierarchy. Finally, this thesis works to create an alternative design for living, one that accounts for our outsized impact on planetary ecologies, ultimately redesigning and restructuring our relationships to our sacred ground.

2023 / Masters Thesis

Architecture of Extraction; Collage. History, geology, borders, and open pit mine.

aSite Research, Site Narrative

The site parameters for this project push the scale boundaries at which the discipline of architecture analyzes and designs. As we investigate the vast predicament of cobalt extraction, it is an unavoidable fact that the planetary demands of this rare mineral affect the very soil of the urban areas in which those affected by extraction reside. Architecture, traditionally, investigates a site at the scale of the building, which, as we are bombarded with global issues such as climate change climate injustice, is a limiting way to design. Thus, the design challenge of this project is to find a way to deploy architecture that accounts for and intervenes at three scales of a single site: the scale of the planet, the scale of the region and city, and the scale of the individual mine.

Cobalt mining, the lens through which this thesis is researched, is a global industry, the majority of which (approximately 75%) is located within the Southern part of Democratic Republic

of the Congo, with small percentages of the industry spread throughout the rest of the world. A poorly monitored cobalt supply chain and the meager labor wages associated with it results in a large humanitarian and environmental cost.

The second site scale is focused on the territory of Central African Copperbelt. This geological formation hosted within the Central African Plateau, currently contains the highest concentrations of copper and cobalt in Africa, and as far as we know, the world.

Within the Central African Copperbelt sits Kolwezi , the capital city of the Lualaba Pronvince with a population of 572,942. Kolwezi is often referred to as the “Lungs of the Congo,” because of its economic importance from mined materials.

Within Kolwezi sits the neighborhood or Kasulo, which sits atop a particularly rich outcrop of Cobalt. Kasulo is explore in more detail in the next section.

Architecture of Extraction; Digital Map and Mining Flipbook. Map of Kolwezi in 2022 (left), Flipbook of Kolwezi mining activity throughout time. This map, along with the flipbook, were important tools for communicating the scale of cobalt mining in Kolwezi currently and throughout history.

Architecture of Extraction; Digital Map. Map of Kasulo: mining tunnels, homes, paths of circulation, water.

b2023 / Masters Thesis

Speculative Design

The design challenge of this research was to find a way to deploy architecture that accounts for the historical and current political and social complexities but also the very real human needs of this site. Because of this, I began the design process with the identification of five major needs within the site: shelter, mine (tunnel) stabilization, water collection, shade, and space for agriculture. As a way to identify the quantitative needs of the site, I mapped individual mine tunnels, existing structures, circulation networks, and locations of water in a series of layers (previous page).

With the complexity of these maps in mind, I began my initial design ideation with experimental collages, introducing large- and small-scale interventions that might provide solutions to one of many of these needs. However, many of these ideas, while helpful for pushing the boundaries of what could be deployed on the site, did not engage with the site and ground in a

way that was regenerative or novel. One of the main goals of this project was to explore and design architecture that may begin to restructure its relationship to its site and the ground, as well as rethinking the ways in which architects use and conceptualize of building materials within the greater resource chain.

Using inspiration from the bamboo mushroom structures shown in the collages forthcoming, and bringing in historical traditions of local basketry, geotextiles, and a large amount of speculation, I designed a series of digital and physical prototypes that could be morphed and formed into simple structures that could solve all five necessities of the site: shelter, soil stabilization, water, shade, and agriculture. This language also allowed for the simple design of a structure that could address each one of the needs throughout the site: trellis (for agriculture), shelter, mine tunnel stabilization, water collection, and shade.

Architecture of Extraction; Line drawing and collage. Section: Mine + Courtyard Complex (above). 3D printed bamboo network (left).

1 Rock Water Waffle

2 Ribbon Building 3 Module

The Interlock

/ Graduate 5

/

5 Architecture of Extraction: Imagining New Modes of Inhabitation and Reclamation within the Mining Lifecycle

a Site Research, Site Narrative b Speculative Design

Exhibitions

6 In the Wake

7 While a Leaf Breathes (Mientras Una Hoja Respira)

2022 / Master’s Thesis 2023 / Master’s Thesis

2022 / Group Exhibition 2023 / Consulting + Fabrication

In the Wake, 3D Print. Assymetric Vortical Case. (From catalog for “Chaosmosis: Assigning Rhythm to the Turbulent,” National Academy of the Sciences Exhibition, March 2024.)

6

In the Wake

Drawing Dynamics of Vortical Structures

2022 / Group Exhibition

John Olver Design Building Amherst, Massachusetts

with:

Fey Thurber, BSArch ‘22

Pieter Boersma, ME PhD ‘24

Adrian Carleton, ME PhD ‘25

Kamil Quinteros, MArch ‘23

Pari Riahi, Architecture

Yahya Modarres-Saghedi, Engineering

Ali Sarvghad, Computer Science

One piece currently on view: “Chaosmosis: Assigning Rhythm to the Turbulent,” The National Academy of the Sciences, Washington DC.

In the Wake: Drawing Dynamics of Vortical Structures is an exhibition showcasing the results of a two year long indisciplinary research project between members of three disparate fields: architecture, engineering, and computer science. This project takes a commonly studied vortical case in fluid dynamics and analyzes it through an alternate lens by using traditional and digital methods of architectural representation. This mode of study serves to inform one’s understanding of a phenomenon while revealing the imaginative possibilities it offers for inhabitable spaces.

Presently, this project contains a broad range of multi-scale artifacts, including but not limited to an immersive sculpture consisting of over 400 acrylic rods, a collection of thirty 2D digital drawings, three laser printed physical models, and three display boxes made up of CNC-milled wood and laser-etched acrylic sheets. The process of assmebly involved an intense, month long design-build-assembly process--which has been, as of yet, my favorite favorite month in architecture school-where each team worked

closely, learning new skills from one another in pursuit of a singular goal.

These spaces and artifacts ultimately allowed for interaction, conversation, and curiosity among the academic community but also among the visiting public, providing an approachable space for scientific and architectural exploration. Much of the feedback our team received highlighted how this exhibit communicated an abstract scientific concept by creating the opportunity for inhabitation. Finally, this novel model of creative process has revealed not only interesting and beautiful spaces and objects but previously unobserved discoveries in the field of Fluid Mechanics, helping to bolster the field’s knowledge base, and providing potential alterative modes of poetic inquiry moving forward.

For more information, visit the following websites:

https://www.umass.edu/news/ article/art-exhibit-wake-offerspoetic-interpretation-science

http://www.cpnas.org/ exhibitions/archive/ chaosmosis-catalog.pdf

In the Wake, Digital Line Drawing. Alternating Symmetric Vortical Case, Plan.

In the Wake, Digital Line Drawing. Alternating Symmetric Vortical Case, Axon.

This drawing, too, helped

This style of “open”

In the Wake, Digital Line Drawing. Alternating Symmetric Vortical Case, Vertical Split Axon. “open” axon, was crucial to our process of design as dicovery, as they allowed the engineers to clearly see the spatial differences in vortex size and position. helped to form and define the plan and section of the immersive installation. Data supplied by engineering team, drawings produced by DeWitt (myself).

2023 / Consulting + Fabrication

ArtYard Frenchtown, New Jersey

for/with:

Lucia Monge, Artist

While a Leaf Breathes

(Mientras una Hoja Respira)

As a freelance fabrication and installation consultant, I have had the chance to design and build out multiple exhibitions at diverse scales. This exhibition entitled, “While a Leaf Breathes (Mientras Una Hoja Respira),” imagined by artist Lucia Monge explores stomata—the pores through which plants breathe —as a metaphor for life and human vulnerability. Exchanging air with the environment is key to the photosynthetic process of plants; however there is a vulnerability in opening up, and loss and nourishment must be balanced in order to sustain life.

While a Leaf Breathes explores a conceptual fusion of art and biology, yet also examines this relationship through materiality. The challenge of this exhibition, for me, was to work for only biodegrable materials while creating all of the structure

elements exhibited in the installation, while maintaining the imagined aesthetics of Monge.

To do this, I designed and fabricated dozens of bamboo stands to act as devices to allow for the “floating” of fabricated plant cells, as well as eight-foot tall curved walls which encased the entire exhibition as a way to create separation and intimacy. I designed and constructed the curved walls with a simple but effective internal structure of waffled, notched plywood, which helped toprovide a strong, solid guide to ensure the curved nature of the wall but also cut down on material use and labor. I also developed a system to suspend bamboo screens within the opening of the wall, to create multiple condititions and multiple ways for exhibition visitors to interact with the created work.

While a Leaf Breaths; Photograph. View of Installation through bamboo “tunnel” in parantheses wall.

Materials needed:

Wiggle board (3/8” - 3/4” ?) for outer shell

1/2” plywood for internal wa e structure

see sheet 3 for rounded brace specs

2” (or thicker?) plywood for wa e structure base

see sheet 3 for straight brace specs

see sheet 2 for speci cations of both shells

The Pearl, Collage.

Thank you for your interest and attention!

Erica Radcliff DeWitt BA Geosciences, Williams College ’09 MArch, University of Massacshuetts, Amherst ‘23

erdewitt@umass.edu e.radcliff.dewitt@gmail.com +1.413.884.4845

Turn static files into dynamic content formats.

Create a flipbook
Issuu converts static files into: digital portfolios, online yearbooks, online catalogs, digital photo albums and more. Sign up and create your flipbook.