Architecture RIBA Part 1 Portfolio

Page 1

ARCHITECTURE PORTFOLIO

Part 1: University of Kent

Ephraim Beleke

ARCHITECTURE PORTFOLIO

As a graduate architecture student from the University of Kent, I am pleased to offer my portfolio for the Part 1 architectural assistant position. Throughout my academic career, I have developed a firm basis in architectural principles, design theory, and practical abilities that I am excited to use in a professional situation. This portfolio features samples of my work that demonstrates my ability to think critically, solve challenging design issues, and effectively express ideas.

1

ARCHITECTURE DESIGN

Concept:

My proposed architectural design project aims to provide a safe haven for troubled teenagers and young adults in Chatham, England. The envisioned center will offer a multi-faceted approach to rehabilitation and a change of behaviour, focusing on three primary activities: Boxing, Music and Art. These three activities have demonstrated their efficacy in helping individuals cope with antisocial and violent behavior.

The overarching goal of this project is to create a nurturing environment where troubled individuals can receive essential support, mentoring, and therapy, ultimately empowering them to embrace personal growth and become positive contributors to society. To make this design more inclusive, the addition of a multipurposed sports hall, restaurant, cafe and shop have been added to my project

2

Design Development phases:

In my design, the initial focus revolves around the boxing gym and its adjacent therapy rooms, establishing them as key elements. As the project progresses, additional facilities seamlessly integrate into the design, while an enhanced emphasis is placed on the building's form, ensuring a cohesive and visually captivating architectural composition.

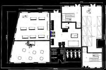
Site (Demolition) Plan
3
Elevation of the ground floor
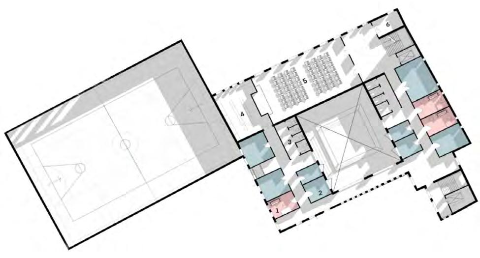
Ground Floor (1) Reception & Lounge Area (2) WCs Toilets (3) Boxing Gym (4) Storage Room (5) Therapy/Mentoring rooms (6) Changing Rooms (7) Restaurant (8) Multi-purpose sports hall (Basketball and football) (9) Small Cafe (10) Small shop First Floor (1) Therapy/Mentoring Rooms (2) Music Rooms 2.1 Music studios 2.2 Music Band Rooms (3) WCs Toilets (4) Storage Room (5) Events Space/Hall (6) Storage Room Second Floor (1) Art Studios and Workshops (2) Storage Room (3) Therapy/Mentoring rooms (4) WCs Toilets
FLOOR PLANS 4
Therapy rooms Music Rooms/Band Rooms (First floor) Art studios and Workshops (Second floor)

Exploded diagram

The construction hierarchy of one of the structural components the multipurposed sports hall, which reuses some of the steel components from the existing B&N structure.

Tertiary

The central atrium serves as a vertical link between the building's various spaces and also plays a critical role in the transmission and diffusion of sound throughout the building

To ensure that sound propagates effectively travels up in the atrium, I incorporated several design features For example, the atrium has a high, open space with hard surfaces such as walls, floors and ceilings, which helps reflect and Amplify sound waves The atrium also has strategically placed openings and balconies at different levels to allow sound to escape and travel upward

Secondary

Primary

5
Atrium Outlet
Section AA
North Elevation South Elevation ELEVATIONS AND SECTIONS 6
Detail Section Atrium Section

Cooling:

To cool the building throughout the winter, the heat pump will reverse its function from heating to cooling mode. In this mode, the outside unit of the heat pump serves as the evaporator, while the inside unit serves as the condenser.

Heating:

During the winter, a heat pump is able to warm a building by taking heat from the outside air or ground and transferring it inside. The heat pump works by employing a refrigerant, which absorbs heat as it evaporates and releases heat as it condenses.. The hot air now produced will then flow into the building.

Stack Ventilation

By designing the atrium to function as a stack ventilation system, I have produced a sustainable and energy-efficient approach that helps reduce the building's environmental effect while also increasing the user's comfort.

ENVIRONMENTAL STRATEGY 7

On of the main features within this building is the public passageway that guide you towards the picturesque river walk. The design of my building incorporates strategically placed glass walls, granting glimpses into events such as boxing matches or artistic displays. Enhancing the journey through the building or intricately carved wooden structures, complemented by enchanting LED ceiling lights, creating a truly memorable experience. The LED’s change colour after a number of steps have been triggered.

Underground Walkway
8

The wooden interior for my multipurpose sports hall provides a balance of beauty, durability, acoustic advantages, and environmental sustainability. It has the potential to provide an aesthetically beautiful, practical, and environmentally friendly environment in which players and spectators may participate in a variety of athletic activities.

9

In this project, I've included a design that incorporates both old and new parts of the urban surroundings. I intended to include the themes of harmony, community, and cohabitation in my design. I designed four distinct housing types to host a variety of individuals, retired persons, small families & young professionals, and multi-generational family groupings.

In order to foster a stronger sense of community, I have introduced a vibrant market space within my design. This market area follows a thoughtfully planned route, extending from the southern to the northern portion of the site. On days when the market stalls are not present, the public realm remains open, offering ample seating for people to gather and enjoy the space.

COLLECTIVE DWELLING
Public realm/route where the market stalls will be placed Private realm Apartment complex with ground floor commercial area 4 Bed Multi-generation home 2 Bed small family, retiree, young professional home 3 Bed small family home
10
Site Plan Ground Floor First Floor Second Floor Weathered brick White clay Dark brown cedar wood North Elevation South Elevation West Elevation East Elevation Four Bed House Elevation Three Bed House Elevation
DWELLING ELEVATIONS PLANS 11
Two Bed House Elevation Engineered timber Burnt beige brick
1 Bed/Studio 2 Bed
APARTMENT COMPLEX 12
Grey Clay Ground Floor First Floor (x2)
North Elevation South Elevation West Elevation East Elevation

My design approach for this module has been centred on the building of a vibrant and integrated urban setting that tackles modern environmental concerns in response to the stated criteria. The centre square, which serves as a meeting spot for people to come together and build a feeling of community, is a significant focal point of my design.

To complement this central square, I have strategically incorporated new buildings into the urban fabric. These new structures include residential buildings, cafes, food halls, and other amenities that contribute to the vitality and functionality of the neighborhood. Each building has been thoughtfully designed to harmonize with the historic context of the Chatham Intra area while adding a contemporary touch.

URBAN INTERVENTION
plan 13
Central Square

Deciduous tree (For shading)

Serious floods: While the soakaway crates will temporarily store water and drain surface water, the implementation of an Under drained swale will collect and move water to reduce peak flows in river water. One-half of the square will use Soakaway crates, while the other will use swales.

Geotextile Flexible

Soakaway/attenuating crates
Soil 1720 mm 1:50 section BB Original ground level
membrane
Marshall stone permeable paving Permeable sub-base Capping layer
Subsoil
Topsoil
Subsoil Geotextile Pipe
URBAN INTERVENTION SECTION 14
Engineered Subsoil
Filter Inlet Pipe

Vertical; Loading

Lateral; Loading

The building's foundation has been constructed to withstand moment forces, while the top has been engineered to withstand shear forces. Shear and moment are carried by the diagonal elements of the diagrid.

Gravitational force

Vertical load

Reaction force

Tension force

Compression force

Load path

Lateral force

Reaction force

Tension force

Compression force

Horizontal shear load

Floor plan
FORMS AND STRUCTURE: 30 ST MARYS AXE 15
High Low
MODELS 16
DRAWINGS 17
DRAWINGS 17

ARCHITECTURE PORTFOLIO

Part 1: University of Kent

Ephraim Beleke

Turn static files into dynamic content formats.

Create a flipbook
Issuu converts static files into: digital portfolios, online yearbooks, online catalogs, digital photo albums and more. Sign up and create your flipbook.