PORTAFOLIO - PARTE 1 - GRUPO DE CERRO DE PASCO

Page 1

POR TAFO LIO

INTROD

"ElpresenteportafoliocontienelaproducciónacadémicadelTallerPre-Profesional deconstrucciónsostenibleduranteelsemestre2022-2enlaEscueladeArquitectura delaUniversidadPrivadaAntenorOrrego.Eltallerbuscapotenciarlaconcienciay lacompetenciadelosnuevosarquitectoseneldiseñoylagestióndelosrecursos duranteelprocesoconstructivo,atravésdeseispropuestasdeintervenciónen distintasciudadesdelPerú.Laspropuestasseencuentranubicadasenregionesde costa,sierrayselva,dondesuscaracterísticasclimatológicas,socialesypsicrométricas sonparticularesencadauna.Esteejercicioaplicativobuscainstruiryejercitaral estudiantedearquitecturaenunametodologíadeanálisisqueinterrelacionalas dinámicasentreelmedioambiente,energíanaturalyarquitectura"

Arq.JuanDiegoGarciaHonores

UCCIÓN

"ElpresenteportafoliocontienelaproducciónacadémicadelTallerPre-Profesional deconstrucciónsostenibleduranteelsemestre2022-2enlaEscueladeArquitectura delaUniversidadPrivadaAntenorOrrego.Eltallerbuscapotenciarlaconcienciay lacompetenciadelosnuevosarquitectoseneldiseñoylagestióndelosrecursos duranteelprocesoconstructivo,atravésdeseispropuestasdeintervenciónen distintasciudadesdelPerú.Laspropuestasseencuentranubicadasenregionesde costa,sierrayselva,dondesuscaracterísticasclimatológicas,socialesypsicrométricas sonparticularesencadauna.Esteejercicioaplicativobuscainstruiryejercitaral estudiantedearquitecturaenunametodologíadeanálisisqueinterrelacionalas dinámicasentreelmedioambiente,energíanaturalyarquitectura"

Arq.YsabelSachieKobashigawaZaha

C E R R O

D E

P A S C O

"CiudadRealdelasminas"

UbicaciónyLocalización 0 1

CERRODEPASCO

UBICACIÓNYLOCALIZACIÓN

PERÚ PASCO CERRODEPASCO

DESCRIPCIÓN

UbicadaenlavertienteorientaldelosAndes,enla zona central del territorio peruano. Está vigilada serenamenteporlalagunadePatarcocha ytieneuna geografía privilegiada, con paisajes que incluyen nevados, lagunas, sitios arqueológicos, museos, santuariosybañostermales.

TEMPERATURA

LatemperaturadeHuantavaríaentre los-4°Cenelperiodomásfríoy 14°Cenelperiodomáscaliente.

HORASDESOL

Las horas de sol varían en 45 minutos, por lo que no se ven muchoscambiosconsiderables.

RADIACIÓN

EnCerrodePascoseregistraunaalta radiaciónsolarde6.7KWhduranteel mesdeseptiembre.

HUMEDAD PRECIPITACIONES

El porcentaje de humedad media promedioesde70.9%,elcualsupera elrangoaceptable(40%-60%)

Cerro de Pasco presenta una precipitaciónlíquidaequivalentea15 cmyunasólidade1cmdenieve.

VIENTOS

Lavelocidadmáximaesde10.1km/h

ALTITUD SUPERFICIE Z.BIOCLIMÁTICA 10°40’93"S 76°15’24"O 4330ms.n.m. 697.15km²
CARACTERÍSTICAS LATITUD LONGITUD
ALTOANDINO DATOS
AnálisisdeVariablesClimáticas 02

TABLADERESUMENDEVARIABLESCLIMATICAS

ENEROFEBREROMARZO ABRIL MAYO JUNIO JULIO AGOSTOSETIEMBRE OCTUBRENOVIEMBRE DICIEMBRE

TEMPERATURA

Temperaturamáx: Noviembre (6°C)

Temperaturamín: Agosto (3°C)

PRECIPITACIÓN 153mm 11mm 126mm 6 4 2 0 73% 80% 72% 77% 73% 74%
NUBOSIDAD
VIENTOS HUMEDAD RADIACIÓN Máxima:91% Mìnima:44% 81% 81% MAYORMENTENULADO MAYORMENTENULADO MAYORMENTEDESPEJADO Probabilidad:70% Máxima:153mm Minina:11mm 73mm 151mm 134mm 30mm 11mm 18mm 85mm 35mm 97mm 82% 78% 76% 74% Predominante: Noreste velocidadmáx: 11.7km/h velocidadmín: 9.1km/h 9.1km/h 117km/h NO SSO NO N NNE ENE SO NNO SO ENE SE SSO Humedadmáx:82% Humedadmin:72% 5.7 Kwh 57 Kwh 58 Kwh 5.8 Kwh 6.1 Kwh 58 Kwh 5.7 Kwh 65 Kwh 67 Kwh 6.4 Kwh 62 Kwh 59 Kwh MayorRad.:Dicie. MenorRad.:Enero 3°C 6°C zonadeconfort 30 28 26 24 22 20 18 16 14 12 10 8

CONSECUENCIAS

ALERGIAS RESPIRATORIAS

ASMA

PROBLEMAS EN LA PIEL PÉRDIDA DE CULTIVOS

Fuente:Meteoblue

BAJAS

TEMPERATURAS

INUNDACIONES

Calma (0-1 km/h) Nohaymovimientoperceptibledelaire.

Brisa suave (1-10 km/h) Elvientoesapenasperceptibleynocausaningúnimpacto.

Brisa moderada (10-20 km/h) Sesienteunvientoagradableyrefrescante.

Intensidad del viento Efectos
AnálisisPsicrométrico 03

ANÁLISISPSICROMETRICO-GIVONI

ORIENTACIÒNDEVANOS

Seaconsejatenerlamínimacantidad deventanasquedanalsurestepara evitarrecibirlosvientosfríosy mantenerelcalordentrodelacasa.

TECHOSDOBLEAGUA

Estetipodecubiertacondos pendientes,permitequeelaguapluvial sedesliceysedrenedemanera eficiente,sinpermitirlaestancación.

VENTANASCON PORTICIONES

Aportarámayoraislamientoyuna barreraadicionaldeseguridad,que dependerádelmaterialelegido

REUTILIZACIONDE AGUASPLUVIALES

Estesistemacapta,filtrayreciclade lamismaparausoscomoelriegode plantasy/oelalmacenamientoen tanquesdeinodoros.

MUROTROMBE

Diseñadoparaaprovecharlaradiación solarconelfindecalefactarlas estanciasdeformapasivaeindirecta.

USODEPANELES SOLARES

Tomanlaluzsolarparageneraruna corrientedirecta,lacualestransferiday aprovechadaporlamayoríadelos equiposeléctricos.Haceusodelefecto fotovoltaico.

AnalisisdeCasos 04

ANALISISDECASOS

MATERIALES PIEDRA ADOBE PAJA

Muros(5%) Pisos(10%)

ELEMENTOS VENTAJAS

Muros anchos de 30.00 cm y 40.00 cmparaobtenerproteccióntérmica.

Tiposdetechos:1aguaconinclinación de8°y2aguasconinclinaciónde18°a 20°.

Muros(95%)

Ventanas pequeñas evitando la perdidadecalor.

Ejecución a base de técnicas para encontrar protección de las condiciones climatologicas. Usodematerialespropiosdelazona. No emplea alturas mayores para evitar perdidadecalorenlosambientes.

ANÁLISISGRÁFICO

Techos(5%)

CALAMINA

Techos(95%)

VIDRIO

Simple(perfilmetálico)

RENOVACIÓNDEAIRE

PRECIPITACIONES AIREFRIÓ

ASOLEAMIENTO HUMEDAD

Malo Bueno

CUADROZONASYAMBIENTES

CASO 01 - VIVIENDA RURAL

ZONAALTOANDINA- CERRODEPASCO

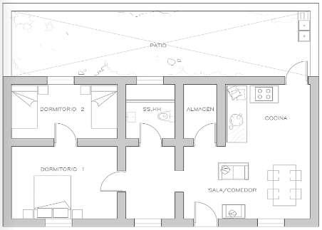
ZONA AMBIENTES AREA SOCIAL Patio 33.22m2 PRIVADA Cocina-DormitorioPrincipal 9.23m2 DormitorioDoble 9.23m2 SERVICIO Almacen 9.94m2 CocinaFogon 180m2 Baño-Letrina 1.80m2 A.DETRABAJO Recintodeanimales Aprox.25m2 CIRCULACIONYMUROS 30%
PLANTA1erPISO

ANALISISDECAS

MATERIALES

ELEMENTOS VENTAJAS

Muros anchos de 30.00 cm y 40.00 cmparaobtenerproteccióntérmica.

Muros(5%)

Pisos(10%)

Tiposdetechos:1aguaconinclinación de8°y2aguasconinclinaciónde18°a 20°.

Muros(95%)

Ventanaspequeñasevitandolaperdida decalor.

Ejecución a base de técnicas para encontrar protección de las condiciones climatologicas.

VIDRIO

Techos(5%)

Techos(95%)

Simple(perfilmetálico)

Usodematerialespropiosdelazona.

No emplea alturas mayores para evitar perdidadecalorenlosambientes.

PIEDRA ADOBE PAJA CALAMINA
RENOVACIÓNDEAIRE ANÁLISISGRÁFICO PRECIPITACIONES AIREFRIÓ ASOLEAMIENTO HUMEDAD
Malo Bueno

CUADROZONASYAMBIENTES

CASO 01 - VIVIENDA URBANA

ZONAALTOANDINA- CERRODEPASCO

ZONA AMBIENTES AREA SOCIAL Patio 3322m2 PRIVADA Cocina-DormitorioPrincipal 9.23m2 DormitorioDoble 9.23m2 SERVICIO Almacen 994m2 CocinaFogon 1.80m2 Baño-Letrina 180m2 A.DETRABAJO Recintodeanimales Aprox.25m2 CIRCULACIONYMUROS 30%
PLANTA1erPISO
CartaEstereográfica 05

CARTAESTEREOGRÁFICA

PROPUESTA PRELIMINAR DE AMBIENTES

FACHADASSE-NNW

Según el análisis de nuestra carta solar, tomandoencuentalossolsticiosdeinvierno y verano, podemos ver que el mes más frío puedellegaralos-2°C.

JULIO AGOSTO

SEPTIEMBRE

Segúnelanálisisdenuestra carta solar, tomando en cuenta los solsticios de inviernoyverano,

DORMITORIOS- SALA DE ESTAR

OCTUBRE

FACHADASSE-NNW

Según el análisis de nuestra carta solar, tomando en cuenta los solsticios de inviernoyverano,

Según el análisis de nuestra carta solar, tomandoencuentalossolsticiosdeinvierno y verano, podemos ver que el mes más frío puedellegaralos-2°C.

NOVIEMBRE

ORIENTACIÓN SSE-NNW

Segúnelanálisisdenuestracartasolar,tomandoen cuentalossolsticiosdeinviernoyverano,podemos verqueelmesmásfríopuedellegaralos-2°C.

SOLSTICIO DE INVIERNO

Duranteestaépocadelaño,laluzdel sol entra desde el lado noreste, haciendo que las fachadas más expuestas estén orientadas hacia el NoresteyNoroeste

SOLSTICIO DE VERANO

Durante esta época del año, la luz del sol entra desde el lado Sur, eso significa que las fachadas con mas solsonSuresteySuroeste.

-COORDENADASCELESTES

-CAPTARINCIDENCIASOLAR -BLOQUEO DE MASAS DE AIRE DIRECTAS Horasdesol 9:00 12:00 16:00 AZ ALT AZ ALT AZ ALT 20dejunio 11h31min 52,74 33,06 -1,20 55,89 -58,38 23,67 21dediciembre 12h 112,47 47,57 -161,57 77,22 -111,08 32,45
JUNIO MAYO ABRIL MARZO FEBRERO ENERO DICIEMBRE
PropuestadeMateriales 06

MATERIALES: TECHO

Eltechode2aguastermoaislanteestacompuestopordos capasdeaceroconunrellenodelanaderocaycubierto porunacapasuperiordepajadeIchu,estoapartirdelas condiciones climáticas siendo las temperaturas entre los 13°a-10°C.

TECHO UN AGUA

Material e (m) y= Coeficiemte de transmisión térmica (W/M K) Resistencia térmica (W/m².K)

PAJAICHU 0.05 1.00 0.05

LANADEROCA 005 0031 016

PAPELMETALICO 0.025 0.440 0.05

MADERA 005 0026 192

RSI (SEGÚN EM 110) 004

RSE(SEGÚN EM 110) 0.13

RESISTENCIA TOTAL 2.18

TRANASMITANCIA TÉRMICA(W/M².K) 0.42

Aislante, lana de roca plancha, Acero galvanizado

LEYENDA

Re: Resistencia

Superficialexterna

Rsi:Resistencia

Superficialinterna

R: Resistencia

U:Transmitencia

Cara exterior, Ichu plancha, Acero galvanizado

TRANSMITANCIA TÉRMICAMÁXIMADEL

Altoandino 1.00 0.83 3.26

ZONABIOCLIMÁTICA TRANSMITANCIATÉRMICA MÁXIMADELMURO TRANSMITANCIATÉRMICA MÁXIMADELTECHO
PISO
PAJA ICHU
MADERA ACERO GALVANI ZADO
LANA DE ROCA

MATERIALES: MURO

Este muro esta compuesto por diferentes números de materiales y diferentes características ,el cual su función consisteencrearunacámaradeaireentredosmateriales: adobeymadera,asicomotambiéneladobeiríareforzado concañadecarrizo

Otracaracterísticadelmuroesqueimpedirálaentradadel fríoexteriorytambiénlapérdidadelcalor.

Revestimiento de yesoe=0.03m

Refuerzo vertical caña carrizo

Bloque de Adobe de20x 30x10cm

LEYENDA

Re: Resistencia

Superficialexterna

Rsi:Resistencia

Superficialinterna

R: Resistencia

U:Transmitencia

Listones de maderatornillo e=0.05m

cámara de airede5cm

Refuerzo horizontal caña carrizo

CARA EXTERIOR DEL MURO Material e (m) y= Coeficiemte de transmisión térmica (W/M K) Resistencia térmica (W/m².K) RECUBRIMIENTO DEYESO 0.03 0.30 0.10 ADOBE 0.35 0.90 0.38 CAÑACARRIZO 0.025 0.122 0.20 AIRE 005 0026 192 MADERA TORNILLO 0.05 0.150 0.33 RSI (SEGÚN EM 110) 004 RSE(SEGÚN EM 110) 0.13 RESISTENCIA TOTAL 3.01 TRANASMITANCIA TÉRMICA(W/M².K) 0.33 CAÑA CARRIZO
YESO ADOBE
CAMARA
AIRE LISTON DE MADERA TORNILLO ZONABIOCLIMÁTICA TRANSMITANCIATÉRMICA MÁXIMADELMURO TRANSMITANCIATÉRMICA MÁXIMADELTECHO TRANSMITANCIA TÉRMICAMÁXIMADEL PISO Altoandino 1.00 0.83 3.26
MURO COMPUESTO POR
DE

MATERIALES: PISO

Seproponeunsistemabasadoenlacolocaciòndecimiento deenrocadorellenadoconpiedrasdecantorodado,sinla colocaciòndemorteroquepermitiràqueelaguanopueda ascenderporcapilaridad.Entrelascorreassecolocaràun capadebarroconpajaquebrindaràaislamientotèrmicoy sobreesteunentabladodemadera,apoyadoellistonesde

PISO PAJABARRO

Capa

LEYENDA

Re: Resistencia

Superficialexterna

Rsi:Resistencia

Superficialinterna

R: Resistencia

U:Transmitencia

PIEDRA DE CANTO RODADO PAJABAR RO
maderatornillo Material e (m) y= Coeficiemte de transmisión térmica (W/M K) Resistencia térmica (W/m².K) PIEDRADECANTO RODADO 025 350 007 BARROCONPAJA 0.02 0.09 0.22 LISTONESDE MADERATORNILLO 005 015 039 MADERATORNILLO MACHIHEMBRADA 002 015 013 RSI (SEGÚN EM 110) 0.04 RSE(SEGÚN EM 110) 0.13 RESISTENCIA TOTAL 093 TRANASMITANCIA TÉRMICA(W/M².K) 1.07
MADERA TORNILLO MACHIHEMBR ADA ZONABIOCLIMÁTICA TRANSMITANCIATÉRMICA MÁXIMADELMURO TRANSMITANCIATÉRMICA MÁXIMADELTECHO TRANSMITANCIA TÉRMICAMÁXIMADEL PISO Altoandino 1.00 0.83 3.26
MADERA TORNILLO
LISTON DE
de piedra de canto rodado sin mortero e = 0,10 m Capa de pajabarro e = 0,02 m
Entablado de Madera tornillo de
x 2.5
Listones de madera tornillo e = 0,02 m (Cada 50 cm)
15
cm e = 0.02 m

MATERIALES: PUERTA

Estesistematérmicoconsisteenubicarunacapadelanade rocaentrelashojasdelapuertaparaevitarlaentradade fríoalinteriordelespacio.Estacapadelanaderocaactúa comounaislantetérmico,manteniendoelcalordentrodel espacio en condiciones de temperaturas bajo cero y la maderaquetambienayudaaconservarelcalor.

PUERTA AISLANTE TERMICA

Resistencia
Material e (m) y= C transmi
MADERATORNILLO
002
0.04
0.03
MADERATORNILLO MACHIHEMBRADO 002 RSI (SEGÚN EM 110) 0.04 RSE(SEGÚN EM 110) 0.13 RESISTENCIA TOTAL 1.83 TRANASMITANCIA TÉRMICA(W/M².K) 0.5
mineral 1.00x0.49m
térmico)
R:
U:Transmitencia
PRIMERAHOJADE
MACHIHEMBRADO
LANADEROCA
LISTONDEMADERA TORNILLO
SEGUNDAHOJADE
Capadelana
(aislamiento
Listónde maderaTornillo 0.03x1.00m
ZONABIOCLIMÁTICA TRANSMITANCIATÉRMICA MÁXIMADELMURO TRANSMITANCIATÉRMICA MÁXIMADELTECHO TRANSMITANCIA TÉRMICAMÁXIMADEL PISO Altoandino 1.00 0.83 3.26
Madera Machihembrada Tornillo (e=0.02m) Marco contrachapode maderasólida Tornillo
TORNILLO LANA DE ROCA LISTON DE MADERA TORNILLO
MADERA

MATERIALES: VENTANA

Estesistematérmicoconsisteenubicarunacapadelanade rocaentrelashojasdelapuertaparaevitarlaentradade fríoalinteriordelespacio.Estacapadelanaderocaactúa comounaislantetérmico,manteniendoelcalordentrodel espacio en condiciones de temperaturas bajo cero y la maderaquetambienayudaaconservarelcalor.

VENTANA 1

Soporte de Madera Tornillo

Marco de Madera Tornillo e = 0,05 m

Tipo de abertura Oscibatiente

Vidrio doble acristalado ATR

e = 0,024 m

Resistencia Superficialexterna
Superficialinterna
Resistencia
Material e (m) y= Coeficiemte de transmisión térmica (W/M K) Resistencia térmica (W/m².K) VIDRIOSIMPLE 0.004 1.5 0.016 CAMARADEAIRE 0.04 VIDRIOSIMPLE 004 MADERA 0.05 0.026 1.92 RSI (SEGÚN EM 110) 004 RSE(SEGÚN EM 110) 0.13 RESISTENCIA TOTAL 1.936 TRANASMITANCIA TÉRMICA(W/M².K) 0.51 ZONABIOCLIMÁTICA TRANSMITANCIATÉRMICA MÁXIMADELMURO TRANSMITANCIATÉRMICA MÁXIMADELTECHO TRANSMITANCIA TÉRMICAMÁXIMADEL PISO Altoandino 1.00 0.83 3.26
LEYENDA Re:
Rsi:Resistencia
R:
U:Transmitencia
MADERA TORNILLO VIDRIO DOBLE ACRISTALADO CON AISLANTE TERMICO

MATERIALES: INVERNADERO

Este invernadero esta cubierto y acondicionado para mantener una temperatura regular que proteja las plantas de las inclemencias extremas propias del tiempo frío e invernal,heladas,vientosetc,yasievitaremoslasperdidas decultivoenesasépocas

LEYENDA Re: Resistencia Superficialexterna Rsi:Resistencia Superficialinterna R: Resistencia U:Transmitencia Material e (m) y= Coeficiemte de transmisión térmica (W/M K) Resistencia térmica (W/m².K) MADERATORNILLO 0.004 0.150 0.26 PLÁSTICO POLICARBONATO 002 020 01 RECUBRIMIENTO DEYESO 003 030 010 ADOBE 035 090 038 RSI (SEGÚN EM 110) 0.04 RSE(SEGÚN EM 110) 0.13 RESISTENCIA TOTAL 101 TRANASMITANCIA TÉRMICA(W/M².K) 0.99 ZONABIOCLIMÁTICA TRANSMITANCIATÉRMICA MÁXIMADELMURO TRANSMITANCIATÉRMICA MÁXIMADELTECHO TRANSMITANCIA TÉRMICAMÁXIMADEL PISO Altoandino 1.00 0.83 3.26
INVERNADERO
TORNILLO Recubriemto de yeso Plástico policarbonato Adobe madera tornillo ADOBE PLASTICO POLICARB ONATO YESO
MADERA

MADERA

Proveedor"CorporaciónFerreiraPalacios

Precio$73soles

Horadeviajehastaelproyecto:30min

Proveedor"CorporaciónFerreiraPalacios

Precio$73soles

Horadeviajehastaelproyecto:30min

ACERO

Proveedor"CorporaciónFerreiraPalacios

Precio$73soles

Horadeviajehastaelproyecto:30min

1 2 3 01 02 03
PROVE
YESO

CAÑA

Proveedor"CorporaciónFerreiraPalacios

Precio$73soles

Horadeviajehastaelproyecto:30min

LANADEROCA

Proveedor"CorporaciónFerreiraPalacios

Precio$73soles

Horadeviajehastaelproyecto:30min

MADERA

Proveedor"ElBosqueMaderero"

PrecioS/13solesxplancha

Horadeviajehastaelproyecto:30min

EEDORES 4 5 6 04
05 06
TerrenosPropuestos 07

TERRENOSPROPUESTOS

CONTEXTO

DESCRIPCIÓN

Elterrenoseubicaenlacarretera100queconectaconzonaurbanasy seencuentranterrenoscongrandesáreasparacultivo.

Comocontextoinmediatotenemosunaiglesia,colegios,viviendasy algunasbodegas.

Serviciosbásicosconlosquecuentaelterreno:

VIVIENDAS PROXIMAS

ÁREA: 1.200.00m²

Accesibilidad:

Esunterrenoaccesible,yaqueseencuentraalasalidade del anchodevíaconposibleaccesibilidadatodotipode transporteterrestre.

PERFILURBANO:

Viviendasde2niveles

FORMA:

COLEGIO

FRENTES:

RREGULAR 10°41'44"

LATITUD:

LONGITUD:

4 76°15´48"

ALTITUD:

4340

IGLESIA

TERRENOSPROPUESTOS

CONTEXTO

ÁREA:

1.200.00m²

PERFILURBANO:

Viviendasde2niveles

FORMA:

DESCRIPCIÓN

FRENTES:

LATITUD:

REGULAR 10°40'59"

LONGITUD:

ALTITUD:

4 76°14´14" 4327

VIVIENDASPROXIMAS

Elterrenoseubicaenlacarretera100alasafuerasdelaciudad Comocontextoinmediatotenemoscomercio,áreaagrícola,viviendasy algunasbodegas.

Serviciosbásicosconlosquecuentaelterreno:

ACCESIBILIDAD:

HUERTOS

Esunterrenoaccesible,yaqueseencuentraalaafueras con9.33metrosdeanchodevíaconposibleaccesibilidad atodotipodetransporteterrestre.

COMERCIO

TERRENOSPROPUESTOS

CONTEXTO

DESCRIPCIÓN

Elterrenoseubicaenlacarretera100,seencuentraalasfuerasdel centrodelaciudadconuningresoindirectoalavíaprincipal Comocontextoinmediatotenemosindustria,zonaminerayviviendas.

Serviciosbásicosconlosquecuentaelterreno:

VIVIENDASPROXIMAS

ÁREA: 4,560.91m²

PERFILURBANO:

Viviendasde2niveles

FORMA:

ACCESIBILIDAD:

Esunterrenocondificilaccesibilidad,yaqueseencuentra frenteaunacarreteraangostanoasfaltadascon6metros de ancho de vía con accesibilidad a todo tipo de transporteterrestre.

ZONAMINERA

FRENTES:

IRREGULAR 10°41'40"

LATITUD:

LONGITUD:

4 76°16´02"

ALTITUD:

4320

INDUSTRIA
CRITERIODEELECCIÓNDETERRENOS TERRENO UBICACIÓN DISTANTEALACIUDAD 2 2 CERCANOALACIUDAD 4 ACCESIBILIDAD 1VÍADEACCESO 2 4 2VÍASDEACCESO 4 TOPOGRAFÍA PENDIENTE>a5m 2 2 PENDIENTE<a5m 4 ORIENTACIÓN N-O 2 4 NO-SE 4 N-S 6 NE-SO 8 EQUIPAMIENTOS BÁSICOSPRÓXIMOSAL ENTORNO 1DE5 2 2 2DE5 4 3DE5 6 4DE5 8 5DE5 10 RIESGOSNATURALES RIESGOSDEHUAYCOSE INUNDACIONES 2 2 SINRIESGOSDEHUAYCOSE INUNDACIONES 4 VEGETACIÓN CAMPOSDECULTIVO 2 2 CAMPOSSINVEGETACIÓN 4 SERVICIOSBÁSICOS CUENTACON1SERVICIO 2 6 CUENTACON2SERVICIOS 4 CUENTACON3SERVICIOS 6 TOTAL 24

TERRENOSPROPUESTOS

TERRENO 1

TERRENO 2

TERRENO 3

Turn static files into dynamic content formats.

Create a flipbook
Issuu converts static files into: digital portfolios, online yearbooks, online catalogs, digital photo albums and more. Sign up and create your flipbook.
PORTAFOLIO - PARTE 1 - GRUPO DE CERRO DE PASCO by ENZO ALESSANDRO VEGA LEON - Issuu