

ABOUT ME
I am Enam, an Architectural Designer, currently working in the greater Philadelphia area. I am passionate about sustainability, historic preservation, adaptive reuse, and design involving communities.
For the last two years, I have gained comprehensive experience across all phases of building design, and construction under the direct mentorship of architect JB Nicholson. I have contributed to 16+ projects from inception to construction including residence, adaptive reuse, vacation house, commercial interior and retrofitting. I am an associate member of the AIA, completed my education and AXP requirements for NCARB and currently preparing to take the ARE exams for licensure.

I have 7 years of experience as an architecture practitioner and academic. I have worked in 3 countries, studied in 3 universities for my undergrad and post-graduate degrees, taught in 2 universities in architecture programs, and professionally worked in 3 offices over the years in the U.S. and Bangladesh. In my pastime, I love sketching as a means of communication, often to document what I have seen or to express unseen ideas. Old buildings, the details and stories embedded within them fascinate me. My B. Arch and Master’s thesis both pivoted around historic settlements of Bangladesh focusing on adaptive reuse, preservation and sustainable community development.
CONTENTS








JB Nicholson Architecture LLC
GILLESPIE RESIDENCE
Lake Ariel, PA, USA
Page: 04-07
JB Nicholson Architecture LLC
ROBBINS RESIDENCE
Buck Hill Falls, PA, USA
Page: 08-09
FORM.3 architects
OLD DHAKA CENTRAL JAIL
Bakshibazar, Dhaka, Bangladesh
Page: 10-13
FORM.3 architects
NAVANA ASCENCION
Banani, Dhaka, Bangladesh
Page: 18-19
JB Nicholson Architecture LLC
KEIGHTON PARAPET
Swarthmore, PA, USA
Page: 14-15
JB Nicholson Architecture LLC
ALTER SHAH GARAGE
Ardmore, PA, USA

BUET
REVIVING BIRULIA
Savar, Bangladesh
Page: 20-23
PENN
WORLD STUDIO 2020
Ahmedabad, India
Page: 24-27
GILLESPIE RESIDENCE
A DREAM HOME AT LAKE WALLENPAUPACK
PROJECT TYPE
PROJECT LOCATION
STATUS
ROLE
PHASES WORKED
VACATION HOME LAKE ARIEL, PA, USA ONGOING DESIGNER
PERMIT APPROVAL, CONSTRUCTION DRAWINGS, INTERIOR DESIGN, STRUCTURAL MODEL DEVELOPMENT






Nestled on a hillside overlooking the majestic Lake Wallenpaupack, a stunning contemporary vacation home is coming to life. This exciting project is designed to seamlessly blend with its environment, maximizing the breathtaking lake views while respecting the unique challenges of the narrow, sloped lot.
The architect’s vision masterfully utilizes every inch of the property. Key living areas and bedrooms are strategically positioned to capture panoramic vistas of the water, creating a truly immersive experience.
Despite the slope, the home offers a seamless flow. Tucked cleverly into the hillside, the walk-out basement and garage ensure ample storage and functionality. Spacious living areas occupy an entire floor above the driveway, providing convenient access to a delightful rear patio and porchperfect for relaxing and enjoying the outdoors.










ROBBINS RESIDENCE
PROJECT TYPE
PROJECT LOCATION
STATUS
ROLE
PHASES WORKED
A KITCHEN RENOVATION AT THE HEART OF POCONOS
INTERIOR RENOVATION BUCK HILL FALLS, PA, USA BUILT DESIGNER/DRAFTER
PERMIT APPROVAL, CONSTRUCTION DRAWINGS, CONCEPT DEVELOPMENT




OLD DHAKA CENTRAL JAIL
PROJECT TYPE
PROJECT LOCATION
STATUS
ROLE
PHASES WORKED
HISTORIC PRESERVATION AND LANDSCAPE DESIGN OF THE SURROUNDINGS
HISTORIC PRESERVATION OLD DHAKA, BANGLADESH ONGOING MEMBER, PRESERVATION TEAM DESIGN CONCEPT, RESEARCH AND MUSEUM CURATION


The proposed master plan has three zones designated to meet specific priorities.
Zone A is designated for regional use. To host occasional, regular and every day users the activities are composed to meet every need. It will enhance commercial activity along with new infused social recreations.
Zone B is the reminiscence of the old Chawk area. It will be used by the local users more frequently. Shops, Play fields, Public amenities, mosques are the functions social dimensions added to zone B.
Zone C is perceived as of national interest. Marked in the history of post-independence of Bangladesh, Central Jail has an important stance. Bangabandhu Sheikh Mujibur Rahman was imprisoned in in various occasion from 1948- 1969. Four leaders were killed in this premise in 1975. The historical remarks and the preservance of Jail life helped converting the arena into a museum of national importance.







KEIGHTON PARAPET
RESTORATION OF A HISTORIC HOUSE
PROJECT TYPE
PROJECT LOCATION
STATUS
ROLE
PHASES WORKED
RENOVATION, PRESERVATION
SWARTHMORE, PA, USA ONGOING DESIGNER
PERMIT APPROVAL, CONSTRUCTION DRAWINGS


In Swarthmore, Pennsylvania, a historic preservation project is underway. The meticulous task at hand for the architect is the accurate measurement and reconstruction of the building’s copper parapet.
This decorative element, typically capping the exterior wall at the roofline, plays a crucial role in both aesthetics and functionality. Precise measurements are essential to ensure the reconstructed parapet seamlessly integrates with the existing structure, preserving the building’s architectural integrity while restoring its luster. The project promises to breathe new life into this significant landmark.
Architect of the record is JB Nicholson.








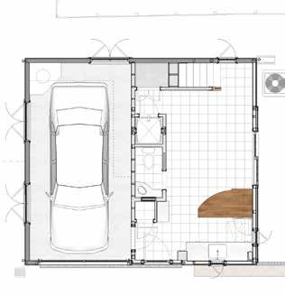
ALTER-SHAH ACCESSORY DWELLING UNIT
PROJECT TYPE
PROJECT LOCATION
STATUS
ROLE
PHASES WORKED
ACCESSORY DWELLING UNIT ARDMORE, PA, USA ONGOING DESIGNER PERMIT APPROVAL, CONSTRUCTION DRAWINGS, CONCEPT
TRANSFORMATION OF CHAUFFEUR’S QUARTER TO A GUEST-SUITE

This project breathes new life into a long-forgotten 1920s chauffeur’s apartment above a garage. The bare-bones space is transformed into a luxurious guest suite, perfect for hosting visitors in style.
The reimagined suite boasts a wet bar, inviting entertaining area, and a powder room for added convenience.
The sleeping quarters feature a single bedroom with Juliet balconies, a spacious walk-in closet, and a spa-inspired bathroom. The dual vanity bathroom boasts a custom shower with a window, while built-in laundry maximizes space utilization.
This project cleverly addresses zoning code limitations that restrict new construction and expansions. Despite limitations in height, setbacks, and overall area, the design utilizes every available inch to create a remarkably comfortable guest retreat. Architect of the record is JB Nicholson.






NAVANA ASCENCION
PROJECT TYPE
PROJECT LOCATION
STATUS
ROLE
PHASES WORKED
A MULTISTORIED RESIDENTIAL BUILDING AT DHAKA
MULTI-STORIED RESIDENTIAL BANANI, DHAKA BUILT DESIGNER PERMIT APPROVAL, CONSTRUCTION DRAWINGS, CONCEPT

The Navana Ascension residential apartment is a thoughtfully detailed and well-planned project located in the calm locale of Gulshan Road Number 68. The apartment sought creative solutions to address noise and sun, shielding and protecting its inhabitants while offering light and efficient ventilation. The project is designed by Form.3 Architects and developed by Navana Real Estate Ltd.
The nine-storied building stands on a land of 6.68 katha, spanning seven apartments along with the basement, and the ground floor that serves as a community space. Each apartment is 3080 square feet composed of a clear and uncluttered layout.

Night view from the road
REVIVING THE NEIGHBORHOOD: BIRULIA
THROUGH ARCHITECTURAL CONSERVATION & ADAPTIVE REUSE
B.Arch Thesis Project
Duration : 12 Weeks
Advisors
Dr. Zebun Nasreen Ahmed
Patrick D Rozario
Dr. Farida Nilufar
Md. Tahajibul Hossain


‘The buildings need proper conservation since it is an evidence of uprise of a societal class in nineteenth century Bangladesh’
Birulia, a century-old settlement on the outskirts of Dhaka, holds significant historical value as a testament to the rise of the middle-class elite—particularly Hindu merchants— during the late 18th century. Once a vibrant commercial hub, an important river port, and a sacred site for Hindu worship during the reign of the Vawal kings, Birulia flourished as a center of both economic and spiritual activity. By the late 19th century, local elite merchants began constructing houses and temples along a brick-paved road. The remaining structures reflect a unique blend of British Colonial and Mughal architectural styles, thoughtfully adapted to the local climate and traditional housing forms.





View of the Ghats
View of the Promenade
The Shaha House
The Mandapa at Birulia




WORLD STUDIO 2020
BRIDGING THE GAP BETWEEN POWER AND PEOPLE
MS Design Group Project
Duration : 12 Weeks


The World is experiencing significant growth in population and fast urbanization particularly in the regions in the global south. This rapid “uncontrolled” development puts an enormous pressure on cities giving rise to numerous political, social, infrastructural, and ecological, problems. The formal sector does not always accommodate people immigrating to urban centers, forcing them to be entrepreneurial and develop alternative settlements, with varying forms of governmental engagement.
Studio Mentors
Jose P Duarte, PhD
Marc Miller, PhD
Farnando Lima, PhD


Ahmedabad has a system of facilitating new growth in the city using social housing, changing the role of the designer when compared to Rio. That said, we have used research work was conducted to identify the spontaneous rules underlying the emergence and development of the Santa Marta informal settlement in Rio as the foundation for understanding politics and housing in Ahmedabad.

Planning Principles







Principle 1
Preserve lifestyles by referring to the existing communities.
Principle 2
Preserve the natural stream and nearby green area.
Principle 3
Use the access points of the site as references for planning of new roads.





Rules for developing the Masterplan
Rule 1: Parcel division - Voronoi Diagram is used to divide the site into 10 parcels to determine a point with shortest distance to the center.
Rule 2: Center location - The center points are offset 4000 sqm for the minimum area needed to house the community center plot.
Rule 3: The Ring Road - Create a road that connects all community centers, using existing roads as reference points; therefore enhancing the site circulation.
Rule 4: Community Division- Overlay our concept onto the existing road network.
Rule 5: Distribution of Amenities - Required programmed amenities can be distributed along the central road within each community.

evelopment of the site by generation of parametric rules
Ring Road
Distribution of Amenities
Plots and Parcel Development
Phases of Development
Parcel Division & Center
Development of Plots within a parcelD
Different Iterations of Housing using parametric features in GH












The rules that the dwelling units follow are based on 6 decisions that a resident can make:
1. House Type: Determines the number of modules in a unit.
2. Width: Determines the width (m) of a unit.
3. Length: Determines the length (m) of a unit.
4. Setback: Determines how far back (m) a unit is from the road.
5. Hall Location: Determines which side the interior hall is on.
6. Entrance Size: Determines the width (m*2) of the opening out front.

The dwellings are our opportunity to create comfortable, workable living conditions for the women and children of the site to inhabit and flourish within.


