

PORTFOLIO
EMMA FELLOWES

Emma Fellowes
Phone: +1 (309)-317-5199
Email: emma.fellowes7@gmail.com
LinkedIn: emma-fellowes
Location: Charleston, SC.
Originally from Christchurch, New Zealand, I moved to The United States in 2017 to follow my dream of playing college soccer, while obtaining my college degree. My life has seen many challenges and changes, but the goal of pursuing a career in Architecture has remained constant.
In 2024, I graduated from North Carolina State Univeristy with a Masters of Architecture; Concentration in History and Theory, and a Certificate in Disaster Resilient Policy, Engineering, and Design.
I see myself as an adaptable, ambitious, self-motivated individual, that would like to continue learning and refining my skills to help others visualize and successfully see their own dreams come to life.
Education
Master of Architecture, 2021 - 2024
North Carolina State University
History and Theory Concentration
Disaster Resilient Policy, Engineering, and Design Certificate
Bachelor of Fine Art, 2017-2021
Upper Iowa University
Studio Art (Painting and Photography), Minor in Marketing
NCAA Division II Student Athlete - Women’s Soccer
Resident Assistant. President of Kappa Zeta Tau, UIU International Student Association, and Art Club.
Work Experience
Architectural Designer, September 2024 - Current
Coastal Creek Design (Charleston, SC)
Created custom residential homes with ranging sizes and scopes, focusing on client-driven designs.
Designed over 25 projects as an Architectural Project Manager and completed work through all phases of project timeline, assisting with over 40 other residential projects.
Generated construction documents for permit and installation.
Experience working with BAR, BoZA, and various Architectural Review Boards for 9 of South Carolina’s jurisdictions.
Worked directly with The City of Charleston and Town of Mount Pleasant to ensure permit approval.
Actively pursuing Architectural Licensure, with near completion of AXP Hours.
Architectural Intern, May 2023 - August 2024
LMHT Associates / National Restaurant Designers (Raleigh, NC)
Assisted in concept design, site documentation and code research. Engaged with clients and team members for seamless workflow.
Coordinated with Engineers and City Officials to ensure code compliance and permit approval.
Managed 5 social media platforms and company website.
Freelance Photographer, 2018 - Present
Emma Fellowes Photography
New Zealand and Carolina’s Based Travel, Architecture, Portraits, Landscape, Sports, Editorial, and Still life Photography.
Skills
Autodesk AutoCAD, Revit
Adobe Photoshop, InDesign, Illustrator, Lightroom and Premiere Pro
SketchUp, Rhino
Enscape, Twin Motion, Unreal Engine, Lumion
Physical Model Making, Sketching, Hand Drafting
Design Interests
Historic Preservation / Adaptive Re-Use
Residential Design
Disaster Resilient Design and Recovery Strategies
Other
Avid sneaker collector
Highly passionate about family lineage and heritage studies
Enjoys painting, drawing, and crafting
Teaching Assistant, Fall 2022, Fall 2023
With Robin Abrams, PhD, FAIA, ASLA
at North Carolina State University College of Design
ARC211 Natural Systems and Architecture
Monitored and recorded attendance.
Graded all projects and provided feedback for students.
Social Media Manager, 2020 - 2021
Upper Iowa University Women’s Soccer Social Media Manager
Managed all social media presence associated with team on multiple platforms, utilising analytical data to design new and engaging content.
Organised media shoots and communications with University.





THE VILLAGE AT PAMLICO RECREATION CENTER
Studio: ARC503 - Advanced Studio
Semester: Spring 2024
Instructor: Dr. George Elvin
Project Partners: Pamlico County, NC. Jewel Szostak
Collaborating with Pamlico County, North Carolina, and many community members, this project aimed to develop a Master Plan for a new Community and Economic Development Center. Serving as a hub for community engagement, economic growth, and environmental sustainability, it will also hold health, transportation, and emergency services that will serve and meet community needs. After developing a Master Plan as a class group of 12, individual buildings were developed in correlation to the plan and further needs of the county. The Village at Pamlico Recreation Center brings together the community through fitness, leisure and outreach.

MASTER PLAN
PROJECT BRIEF
Collaborating with Pamlico County, North Carolina, community members to develop a Master Plan for a new Community and Economic Development Center. The Center will serve as a hub for community engagement, economic growth, and environmental sustainability. In addition hold health, transportation,and emergency service that help serve and meet the county needs. and the 20 miles Additionally, environmental including wetlands, is
OBJECTIVE:
MASTER PLAN

EXISTING SITE
challenged by environment.


To cultivate a vibrant, sustainable, and resilient community hub in Pamlico County, fostering collective pride, connection to the land, and a shared future for all residents.
GUIDING PRINCIPLES + STRATEGIES
NURTURE COMMUNITY:
Working directly with Pamlico County allowed for many community concerns to be met, which included but was not limited to, protecting the crucial water sources, soils and wetlands that will be critical in the county’s future. The lack of transportation infrastructure, as well as absence of hospitals or urgent care centers within 20 miles, pose significant logistical hurdles for residents. The county’s landscape is characterized by Stockade loamy fine sand, a soil type prone to high runoff and shallow water tables, and with a coastal location, exposes the land to environmental risks and hurricanes.
Cultivate opportunities for social interaction, collaboration, and shared experiences among residents, fostering a strong sense of community spirit. While Acknowledge and celebrate the rich history and heritage of Pamlico County.
• Enhance public spaces like parks, plazas, and community centers to create inviting gathering spaces for residents to connect and engage in activities.
• Encourage local artists, musicians, and storytellers to share their unique perspectives and enrich the cultural experience.
STEWARDSHIP OF THE LAND:
Protect and enhance the unique natural environment of Pamlico County, including its waterways, wetlands, and diverse wildlife, ensuring its sustainability for future generations.
• Implement sustainable practices in public spaces and encourage residents to adopt green initiatives in their homes and businesses
While collaborating on this Master Plan, our goal was to make sure that pedestrian and vehicular traffic was prioritized, as well as regenerative design strategies that benefited the environment surrounding the site.
• Incorporate nature-based solutions and green infrastructure projects to enhance the community’s resilience.
INVEST IN THE FUTURE:
Focus on sustainable development strategies that address the challenges and opportunities facing Pamlico County, ensuring its continued prosperity, well-being, and accessible mobility options.
• Support initiatives that create job opportunities and attract new businesses to Pamlico County while maintaining its unique character and charm.

• Promote local businesses and entrepreneurship, fostering a sense of local pride and economic self-sufficiency.
TEAM: Reagan Bray, Kylie Bridges, Emily Chavez, Will Condra, Massimo Criscuolo, Emma Fellowes, Abigail Hunt, Lizandro Marcial-Armas,Jack Pierce, Connor Schwartz, Lucas Stott, Jewel Szostak
OBJECTIVE:
To cultivate a vibrant, sustainable, and resilient community hub in Pamlico County, fostering collective pride, connection to the land, and a shared future for all residents.
members to Development Center. economic growth, transportation,and VEHICULAR CIRCULATION
GUIDING PRINCIPLES + STRATEGIES
NURTURE COMMUNITY:
Cultivate opportunities for social interaction, collaboration, and shared experiences among residents, fostering a strong sense of community spirit. While Acknowledge and celebrate the rich history and heritage of Pamlico County.
• Enhance public spaces like parks, plazas, and community centers to create inviting gathering spaces for residents to connect and engage in activities.
• Encourage local artists, musicians, and storytellers to share their unique perspectives and enrich the cultural experience.
STEWARDSHIP OF THE LAND:
Protect and enhance the unique natural environment of Pamlico County, including its waterways, wetlands, and diverse wildlife, ensuring its sustainability for future generations.
• Implement sustainable practices in public spaces and encourage residents to adopt green initiatives in their homes and businesses
• Incorporate nature-based solutions and green infrastructure projects to enhance the community’s resilience.
INVEST IN THE FUTURE:
Focus on sustainable development strategies that address the challenges and opportunities facing Pamlico County, ensuring its continued prosperity, well-being, and accessible mobility options.
• Support initiatives that create job opportunities and attract new businesses to Pamlico County while maintaining its unique character and charm.
• Promote local businesses and entrepreneurship, fostering a sense of local pride and economic self-sufficiency.
PROMOTE WELLNESS:
Foster self-efficiency and healthy lifestyle choices to prevent health problems and promote well-being for all. Address all dimensions of well-being: physical, mental, emotional, social, and spiritual.
• Ensure accessibility for all residents, regardless of age or ability, in public spaces.
• Promote access to affordable, healthy food options through community gardens, farmers markets, and nutrition education programs.
• Support safe and accessible opportunities for physical activity through public spaces like parks, trails, and recreation centers.






martime forest: Trees, bushes, and other plants help to withstand the strong winds, periodic flooding, and salt spray caused by the coast.
RECREATION CENTER
native species: Planting native plants provide essential habitats and food sources for native wildlife, fostering a healthier and balanced ecosystem.
low impact development: By incorporating practices, like stormwater management or habitat friendly development, our wildlife can become more resilient to climate change.



The Recreation Center of The Village at Pamlico aimed to bring together people of all ages in a way that was accessible for all. Currently Pamlico County High School has a swim team, but no pool, and a track team, with no facilities to run on. This was a priority for not only the county, but for the high school as well. Tournaments and meets would allow for the community to bring in money during events, and create a space that everyone can enjoy.

Surrounding the project are trails and fitness equipment areas that allow visitors to spend time at the site for more than what they came for.
As part of an ongoing discussion with Pamlico County, louvre panels were added as a shading solution however, do not reflect the final

VIEW OF RECREATION FACILITIES FACING NORTH



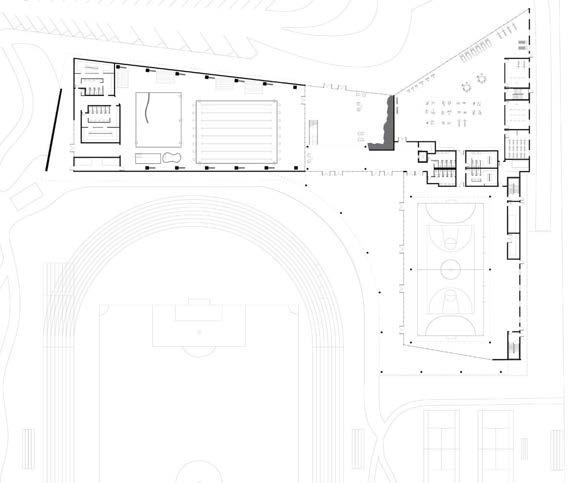
The Recreation Center of The Village at Pamlico boasts many features that highlight the depth of the project and its community. The aquatic center has a 25 meter pool for recreation swimming and competitions. The leisure pool, also large in size, can be used for a multitude of events, including water aerobics and swimming lessons. The hydrotherapy and spa are used in conjunction with health services and their rehabilitation program, which resides in the health building of the Village campus. The spacious lobby holds a large climbing wall, and plenty of space to view activities taking place.
The gym area, in conjuction with regulation basketball and indoor soccer courts provide the community with many ways to stay active. The first floor holds a mezzanine running track, which circumnavigates the courts below. This floor also holds a cafe which serves during event days, as well as a games room. The Non-Governmental Organization (NGO) offices are housed here as per request by Pamlico County in a way to aid the community, while also including opportunities for daycare and teen help.


VIEW OF LOBBY FACING SOUTH EAST
VIEW OF LOBBY NORTH WEST

NC STATE CENTER FOR STUDENT ATHLETES
Studio: ARC500 - Integrative Studio
Semester: Spring 2023
Instructor: Dr. Jianxin Hu

The NC State Center for Student Athletes is proposed by NC State University to replace older facilities on campus, providing a new development to help the academics, nutrition, personal, and professional capabilities of student-athletes.The site for the proposed building is located on the current softball stadium site, at the intersection of Cates Avenue and Morrill Drive. This site is surrounded by important buildings of NC State’s beautiful campus, including Talley Student Center, Carmichael Gym, and the historic Reynolds Coliseum. Serving as a spine for Central Campus, Cates Avenue functions as a main connector for much of the campus. This intersection is the focal point of an emerging student hub, consisting of significant buildings and a platform for bus routes, in which the entire student body community is directed.

VEGETATION

VEHICULAR TRAFFIC & SERVICE


SOLAR & BUILDING HEIGHTS





















The Center for Student Athletes reciprocates to the site context, keeping the significance of existing buildings intact, and creating a design that blends effortlessly with the existing design language of the immediate site, without overpowering the surrounding buildings. The softball stadium sinks 20 feet below the street level which is used to its advantage in designing a basement level. This is used in conjunction with a street level, and upper levels with a well-distributed program. The design concept for the building is to create a solid structure, with plenty of outdoor areas. This structure consists of a larger bar, with two smaller structures flanking either side, bringing together a form that functions as a circulatory system.
VIEW FROM CORNER OF SITE FACING CATES AVE



























330’-0”
330’-0”
330’-0”













330’-0”
330’-0”
350’-0”


VIEW OF LOBBY FACING NORTH


VIEW OF SOUTH ELEVATION


























This building is predominantly oriented along the north-south directions which enables maximum heat gain during the winter along the southern facade. Horizontal sun shading is provided on the glazing on all four sides of the main bar, to minimize glare and reduce heat gain in the summer, early mornings and evenings. The outdoor open spaces on the southern and western sides allow for people to enjoy the weather without issue. This proposed building also has a sunken plaza which capitalizes on the grade change, allowing for an outdoor seating area with year round protection from the elements. Throughout the site there are plenty of opportunities for seating, and with the established connection to the adjacent soccer field, allows for guests to make use of the space during sporting events.
CHUNK MODEL
VIEW OF SUNKEN PLAZA FACING NORTH
VIEW OF SUNKEN PLAZA FACING SOUTH

CHAVIS FOOD HUB
Studio: ARC405 - Building Technology Fundamentals
Semester: Fall 2022
Instructor: Matthew Griffith, FAIA
Partners: Reagan Bray and Chase Strom
The Chavis Food Hub located in downtown Raleigh aims to preserve the social and culinary traditions of the historic neighborhood amidst the rapid monetization of space. This region was once a culturally rich and healthy middle class black neighborhood, and has now been reduced to a food desert, experiencing systematic bias, sparse investment, absentee property ownership, and sporadic infrastructural development. The project’s fundamental goal is to provide the residents of this neighborhood with an opportunity to practice their businesses by creating a more integrative and usable space, rather than invading the neighborhood with yet more disruptive elements.





1. GROCERY STORE
2. GROCERY STORE SUPPORT
3. GROCERY COLD STORAGE
4. EXTERNAL MARKET AREA
5. GARDENS
6. GREENHOUSE
7. PRODUCE STORAGE
8. PRODUCE CLEANING 9. RESTROOMS 10. MECHANICAL

11. RESTAURANT
12. KITCHEN
13. ACADEMY
14. COLD STORAGE
15. PANTRY
16. GREENHOUSE
17. RESTROOMS
18. MECHANICAL

19. APARTMENTS
20. GREENHOUSE
21. ROOF GARDEN
SECOND FLOOR
DIAGRAMS
ENCLOSURE


CIRCULATION




STRUCTURE
As a result of the wide neglect throughout the neighborhood, developers have jumped at opportunities to convert this region of Raleigh into a high-end neighborhood in order to attract an influx of wealthy, young professionals. These developments, like the one directly north of this site, pose a massive threat to affordable and diverse housing, community gardens, and locally owned restaurants and businesses. The Chavis Food Hub is an inclusive project that comprises an outdoor garden, greenhouse, grocery store, restaurant, culinary academy, external market spaces, and residential housing.



NORTH SECTION PERSPECTIVE





The concept for the food hub emerges from the site and its surrounding features. The community garden sits to the west of the site, allowing guests to wander in on their own accord to gather and plant what they need. This is paired with the restaurant and culinary academy also being located on the same level, to allow accessibility for all. This entrance takes guests through a covered walkway in the greenhouse, meaning that people can take a look at the harvesting of fruits and vegetables from the gardens, before being served them in the restaurant for a real garden to table feel. The choice of having the market and grocery store on the ground floor and partially in ground, allowed for cascading gardens to follow the grade of the site and drew people into the area. The pulley system located on the underside of the cantilevered structure allows for market tables to be set up and taken down on a whim, meaning that the market does not have to comply with scheduled selling days. The four, two-bedroom apartments that are located on the second floor are for resident chefs and culinary experts from around North Carolina and the rest of the United States in an attempt to broaden the skills and palettes of locals.The bus stop located on the west side of the site provides convenient access to public transport for residents who do not own a private vehicle, and therefore prevents them from resorting to long walks from grocery stores, market or restaurants, to the nearest existing transit stops.This project aims to address the challenges faced by the community of Raleigh regarding the rapidly changing infrastructure and act as a stepping stone towards the preservation and celebration of a neighborhood in the city with a rich culture and immense historic significance.

VIEW OF RESTAURANT INTERIOR
VIEW FROM CULINARY ACADEMY WALKWAY

PRECEDENT STUDY KUNSTHAUS BREGENZ
Studio: ARC405 - Building Technology Fundamentals
Semester: Fall 2022
Instructor: Matthew Griffith, FAIA
Partners: Reagan Bray
Kunsthaus Bregenz, designed by Peter Zumthor, is located in Bregenz, Austria, and stands as a box of light on the shores of Lake Constance. This precedent study aimed to carefully study the concepts and ideas, design process, materials and tectonics, and the architect’s motivation behind every design decision that culminated in the final product of this museum. The museum features a glass and concrete construction, which has received multiple distinctions for its construction methods. Standing as an example of architectural minimalism, the inner light is ever-changing, depending on installations inside or the color of the sky.


The discrete design of the façade and core of Kunsthaus Bregenz was made possible by a skeleton construction that is usually found in high-rise buildings. The structural elements inside assume the load-bearing functions instead of the outer walls, but in Kunsthaus Bregenz, these are three vertical slabs of exposed concrete, each approximately 72 cm (2.3 feet) thick that extend through all levels. Peter Zumthor aimed to provide this as a structure to the interior. Since all of the infrastructure was located behind the three concrete slabs, it enabled the creation of the expansive, column-free exhibition space that we see today.

DIAGRAMS
ZONES
BASEMENT 2
BASEMENT 1


The glass façade of Kunsthaus Bregenz confers the large architectural structure with a transparent lightness, while also acting as a waterproof membrane, which is an essential component of the building’s lighting system. The 712 panels of etched glass, each 1.72 x 2.93 m, (3.2’x 9.6’), absorb the changing light of the sky, filter it, and then guide it into the building’s various levels. The façade is self-supporting, and is structurally independent of the actual building, enveloping the free-standing concrete structure like a double casing: a steel truss framework accommodating both the glass panels on the outside and the thermal façade on the inside. Thorough research of this design revealed that there is a 90cm (2.9’) gap between the exterior and interior glazing, which is equipped with four lift cabins, enabling maintenance and servicing of the façade, as well as spotlights that illuminate the Kunsthaus at night.













WALL SECTION DETAIL
SECTION DETAIL: GLASS PANEL SYSTEM BRACKET



“HIGHLANDOVERTHEHILL”, 2023

“THESKYLINEATAUCKLAND”, 2018

“TUNNELBEACH”, 2020


“CHAPELONTHEROCKS”, 2021


“CHURCHOFTHEGOODSHEPPARD”, 2022
“AORAKI,MTCOOK”, 2022


“TUNNELCOVE”, 2020
Phone: +1 (309)-317-5199
Email: emma.fellowes7@gmail.com
LinkedIn: emma-fellowes
Location: Charleston, SC. THANK YOU
EMMA FELLOWES