Emily Juliet Korompis - Interior Design and Styling Portfolio

Page 1


Hand-Drawn Study of Kengo Kuma’s Structural Systems

EDUCATION

PARSONS SCHOOL OF DESIGN

BFA Architectural Design (with Honours)

New York, New York

prOfEssiONAl ExpEriENCE

DAVID BERS ARCHITECTURE

Architectural Design Intern New York, New York

RAFAEL DE CARDENAS

Interior Design Intern New York, New York

ASH STAGING

Design Assistant New York, New York

misCEll ANEOUs ExpEriENCE

DANISH INSTITUTE OF STUDY ABROAD

Architectural Design Student

Copenhagen, Denmark

STUDIO CONGKLAK

Jewelry Designer

New York, New York

August 2018 - May 2022

October - December 2022

January - September 2023

March 2024 - March 2025

June- July 2021

Ongoing

A designer has the responsibility to design spaces that enhance human interaction; with their surroundings, with their community and with one another. As a designer of the built environment, I am interested in how a structure acknowledges the people it is made for and how it responds to its physical conditions. Doing this requires an understanding of the built environment as it already exists. Why are these structures here? Who inhabits them? What groups are associated with them? What systems have been put in place for it to be this way?

CONCEpT, CONTExT, COllECTION

Design is a process that requires a multidisciplinary and thoughtful approach. This is a personal study of form, texture and color in relation to a broader yet detailed idea. Decisions are made through an understanding of proportion, of architectural technique and of a narrated experience.

Time Period: Forever Ongoing

Institution: Personal Project

Location: Imagined

Skills: AutoCAD, Rhinoceros 3D, VRay

Franco Albini Modular Bookcase
Material Palette: Organic Shapes and Modern Reflections
A Reading and Vanity Corner
Soft Textures, Bold Colors
Gino Sarfatti 1091

55 BrOAD sTrEET

Playing with narrative and character driven design, each unit in this multi story development is tailored to a personality.

Minding that individuals have their own unique tastes, each of these units embody them through color composition, form and texture.

Time Period: March 2024 - June 2024

Collaborator(s): Kevin Lagasse, Ruth Grigorov

Institution: Ash Staging

Location: Financial District, Manhattan, New York

Skills: AutoCAD, FF&E Sourcing, Styling, Project Management

The Berliner
The Siren
The Naturalist

2205 w pEmmICAN rOAD

Curated to elevate the views of the Sleeping Indian mountains of Wyoming, the furnishing of this home finds companion between modernism and natural materials. The lavish yet comfortable stylings of a home are yet more embellished by the lush, rolling landscape it is nestled within. The built and the natural are married with grace and delicacy.

Time Period: June 2024 - August 2024

Collaborator(s): Ruth Grigorov

Institution: Ash Staging

Location: Teton Range. Jackson, Wyoming

Skills: AutoCAD, FF&E Sourcing, Styling

To Sleep: Organic Linens and Soft Goods
To Dine: Modern Forms and Minimalist Colors
To Sleep: Natural Materials and Curved Geometries

21 wEsTwOOD rOAD

In a matter of days, the furnishing and styling of this Hamptons home speaks to a combination of light and warmth. A mixture of vintage and modern pieces, this project plays with wood tones, sun rays and rounded shapes to create the vision of a home.

Time Period: June 2024

Collaborator(s): None

Institution: Ash Staging

Location: Wainscott, Hamptons, New York

Skills: Styling, Project Management

An ongoing renovation of a historic brownstone located on the east side of Fort Greene Park. With the original moldings and millwork details in tact, the project embodies a marriage between the historic and the contemporary. The project respects the New York brownstone’s timeless allure, blending historic details seamlessly with modern materials and forms.

Time Period: Ongoing

Collaborator(s): Kyat Chin, Andrea Wong

Institution: Rafael de Cardenas Ltd.

Location: Fort Greene, Brooklyn, New York

Skills: AutoCAD, Rhinoceros 3D, VRay

(C) Wallpaper: Soft Graphics
(A) Millwork: Modern Forms and Material
(B) Existing Structure: Unaltered, Refinished to Historic Accuracy

111 wEsT 57Th sTrEET; UNiT 65

A realized interior design vision of a luxury residential unit overlooking panoramic views of Central Park. Carefully curated textiles and bespoke furniture come together to find nuances within the setting and within one another. The opulent environment created within the unit comes head to head with the panoramic views to find a delicate balance.

Time Period: January - April 2023

Collaborator(s): Robert O’Connell, Rafael de Cardenas

Institution: Rafael de Cardenas Ltd.

Location: South Central Park, Manhattan, New York

Skills: AutoCAD, FF&E Sourcing

Unit 65; Great Hall, Photography by Adrian Gaut

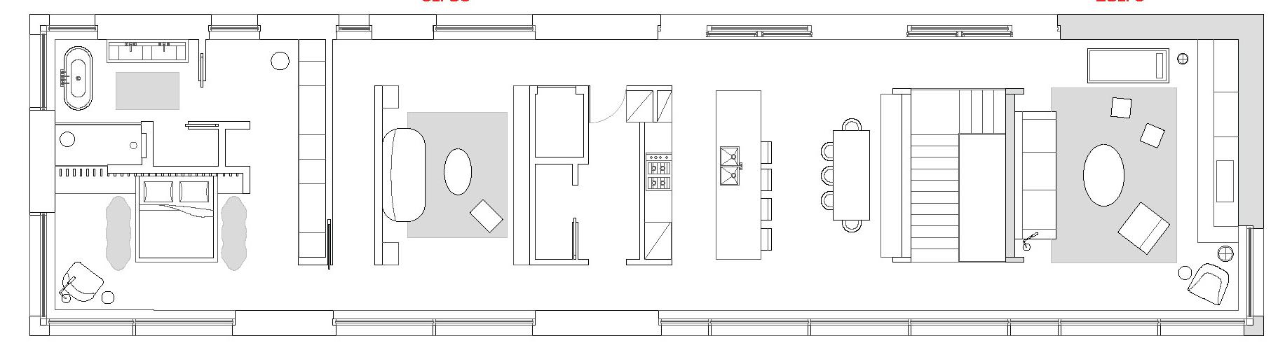
Floorplan of Unit 65

(B) View Gallery; Soft Baroque Center Table
(C) Primary Bedroom; RDC Custom Bed Frame
(A) Dining Area; Bruises Gallery Dining Table

F32 Adjustable Floor

Vintage Side Tables
Designed by Sergio Terzani
Sunbeam Lounge Chair RDC x MGBW
(D) Great Hall; Lounge and Side Table Set
RDC Custom Coffee Tables
Manufactured by Patrick Townsend
Antique 1920’s Chinese Art Deco Rug
Saturday Sofa RDC x MGBW
(E) Great Hall; Sofa and Coffee Table Set
Paola Navone for Gervasoni Ghost Sofa
Vintage Etienne Fermigier
Lamp
Nordic Knots Big Buds Rug
All Textiles by Dedar Milano
(F) Den; Sofa Area

sTrEET sEATs fOr ThE NEw sChOOl

A public seating program designed and built by Parsons’ School of Constructed Environments.

The project served as a temporary space resulting from a collaborative effort by graduating Architectural, Interior and Product Design Students to the city of New York; and for the school community to come together with the public.

Time Period: June 2022

Instructor: Michael Verbos

Collaborator(s): School of Constructed Environments

Institution: Parsons School of Design

Location: Union Square, Manhattan, New York

Skills: AutoCAD, Woodworking, Industrial CNC Machine

The Street Seats realized in a public context

Construction Documentation

Step 1: Hand extracting sheets of cork from raw material

Step 2: Manufacturing jigs in accordance with the forms in design drawings

Step 3: Utilizing the flexibility of the materiality to create formally soft but enduring bench seating

The Street Seats inhabited by Flora and Fauna

BAkø

A cafe overlooking the Sankt Jørgens Lake in the middle of bustling Copenhagen aims to provide a place of respite from the busy city life. The form and framed structure of the design are mimicked in the way people interact with the seating built into the ground. It is named after the Japanese puzzle, Bako, a box in which wooden components slot into one another with careful precision.

Time Period: Summer 2021

Instructor: Søren Amsnæs

Institution: Danish Institute of Study

Location: Frederiksberg C, Copenhagen, Denmark

Skills: Hand Drawing, Watercolor, Hand Modelling, Adobe

Photoshop

Conceptual ‘10 Second’ Watercolor Drawing visualizing the parti of the project
Hand Drawn Plan and Elevations
Sun Orientation Study

hIrO TAkANAgI’s DwEllINg

A ‘dwelling’ intertwining the contrasting thermal conditions which are demanded by the imagined lifestyle of a chef who grows their own ingredients. Working and living areas are framed by a garden, serving as a transitory cavity. It explores the use of greenery in spaces to counter the high-intensity spaces from the dweller’s busy work life in the kitchen.

Time Period: Fall 2020

Instructor: Andreas Benzing

Collaborator(s): Raina Tarisia

Institution: Parsons School of Design

Location: Calgary, Alberta, Canada

Skills: AutoCAD, Rhinoceros 3D, Adobe Photoshop, Grasshopper

A vision of our dwelling in the summer months
‘Inbetween spaces’ converted into a greenhouse in the winter months

Thermal Evaluations

A study to locate plants geographically within the dwelling

Sun Path studies of different seasons

COmmUNiTy mUsiC wOrks

A combination of two volumes with geometric lines that delineate the spaces within. Back of house and front of house are connected in unseen ways defined by angles drawn out from the surrounding site.

Time Period: Spring 2020

Instructor: Paula Allen

Institution: Parsons School of Design

Location: Fort Greene, Brooklyn, New York

Skills: Hand Drawing, Hand Modelling, Sketchup

Models and Hand Drawings of Floor Plans

In floor plans, the geometric lines are explored as different rooms to house programs within. Explored in volumes as a physical model, the geometric lines are drawn from the surrounding site slice directly through the structure before being joined back together.

wOODwOrkiNg sTUDy mODEls

A series of wood models exploring ideas that can be carried into architectural objects and concepts. These objects are three dimensional studies of spatial relationships put into the context of scale and form.

Time Period: Fall 2019

Instructor: Rosannah Harding

Institution: Parsons School of Design Skills: Woodworking

Turn static files into dynamic content formats.

Create a flipbook
Issuu converts static files into: digital portfolios, online yearbooks, online catalogs, digital photo albums and more. Sign up and create your flipbook.