INTERIOR DESIGN PORTFOLIO 2024

Page 1

INTERIOR DESIGN - Humber College

EMILY RAMSUCHIT

Selected Works: 2022-2024

Emily R

(647) 979-1782

emilyramsuchit16@gmail.com

Emily Ramsuchit emr.design

PROFILE

Emily Ramsuchit is an International student from Guyana who moved to Canada to pursue an education in Interior Design at the Humber College. Her adventurous personality has led her to become a wellrounded individual, but her interests in design stemmed from the desire to influence the way people live, work and unwind. She is fascinated with the relationship between people, spaces, colors, light and energy, and believes that every interior should be an experience rather than just a physical area. This portfolio is a compilation of her best work from her academic pursuit as an Interior Design student

EDUCATION

DIPLOMA IN INTERIOR DECORATING (HONOURS)

Humber College, Canada 2019-2021

BACHELORS DEGREE IN INTERIOR DESIGN

Humber College, Canada 2022-2025 (Expected)

PROFICIENCY

REVIT ENSCAPE SKETCH-UP AUTOCAD MICROSOFT OFFICE

ADOBE CREATIVE SUITE

HAND SKETCHING + RENDERING TWINMOTION

WORK EXPERIENCE

OFFICE ASSISTANT

Automotive Paint Station & General Supplies, Guyana 05, 2021 - 08, 2022 / 05 , 2023 - 08, 2023

Data entry and record keeping.

Handled phone calls, emails and other communications.

Drafting, formatting, and proofreading documents

Providing information and assistance to clients or customers

PEER TUTOR

Peer Assisted Learning Support (PALS), Humber College 02, 2023 - 01, 2024

Conducted one-on-one sessions with students who required academic assistance in design related courses.

Helped student learners to understand challenging concepts

Provided constructive feedback on assignments and coursework.

INVOLVEMENTS/ ACHIEVEMENTS

ARIDO Student Member

IDC Student Member

City Cultural Events Volunteer Captain

ARIDO BID Activation - Interior Design Show 2024

Canadian Bureau for International Education (Ontario

Regional Conference) 2023 - Co-Presenter

Nuit Blanche 2023 - Volunteer Captain

Cavalcade of Lights 2023 - Information Ambassador Captain

Youth in Natural Resources (Guyana) 2021 - Host Speaker

Humber Arboretum 2021 - Community Connector

Placed Top 5 in Interior Decorating Humber Hotel

Competition 2020

Youth in Natural Resources (Guyana) 2018 - Apprentice

Best All-Rounder Award - Class of 2018 (Berbice High School)

CONTENT

RESIDENTIAL COTTAGE

01

A retreat that supports the client's simple lifestyle and their passion for honoring the cottage tradition.

RETAIL BOUTIQUE

02

A luxury designer handbag outlet that embraces natural materials, sustainability and technology

CUSTOM MILLWORK

03

A Mexican inspired tiny home for which a custom millwork piece was designed.

ITALIAN RESTAURANT

A fine-dining restaurant and flower shop in Italy that celebrates nature and human creativity.

IN THE SKETCHBOOK

A compilation of hand sketched and rendered interiors, exteriors and furniture from smaller projects

04
05

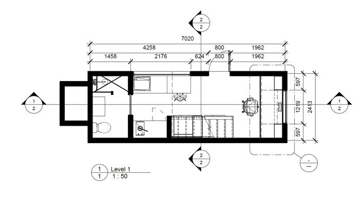
RESIDENTIAL COTTAGE

Project Location: Georgian Bay, Ontario

Project Scale: 1375 Sq.Ft.

Completed: 2nd Year - Winter 2023

Tools: Revit, Enscape, Photoshop, Sketching, Watercolor

The project's primary objective is to create a place of respite from the chaos of the urban environment, tailored to support the client's simple lifestyle and passion for the cottage tradition while harmonizing with the natural surroundings. This vision is materialized through thoughtful design choices, such as incorporating exterior elements like limestone and cedar wood into the interior, adopting a minimalist interior approach, and navigating the land's challenges without disrupting its essence.

Views

01
SITE PLAN Sun Path - Summer Solstice Wind Path - Prevailing Winds Property Line Property Wind Path - Winter Winds Wind Path - Winter Solstice CL CK FOR AN MATION

SCHEMATIC VERTICAL REPRESENTATIONS

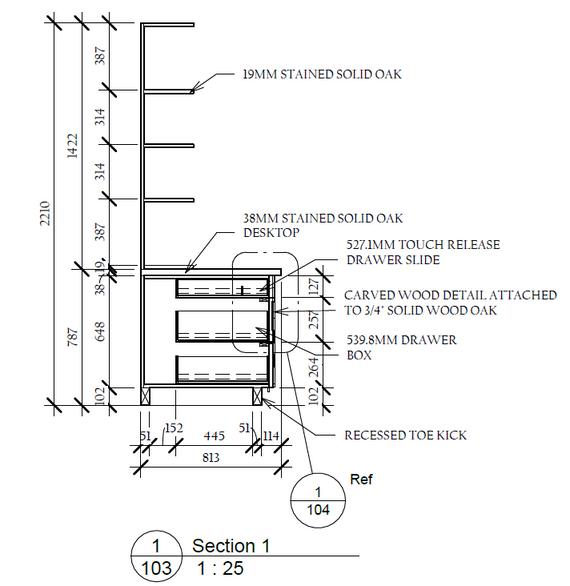
SECTIONS
PROFILE
Left View Front View Section 1
EMILY RAMSUCHIT - INTERIOR DES GN PORTFOL O - 2024
Section 2

OUTDOOR DECK

LIVING ROOM

DINING ROOM

KITCHEN

MUDROOM

POWDER ROOM

ENTRY

BEDROOM + BATHROOM 1

BEDROOM + BATHROOM 2

OUTDOOR SHOWER

FIRE PIT

A
C D E F G H I J K
LEGEND
B
A B C D E F G H I J K
Scale: 1/8" = 1'-0"

INTERIOR MATERIALS BOARD

LEGEND

A Heron Glen Oak Floor

EE-SS-420

3/4" x 5-7/8", 24" - 75" Length

TORLYS

B Mare Blanco Limestone

Slab 2cm

STONE TILE

C Bianco Rhino Marble

MARBLE.COM

D Basic White Polished Ceramic Subway Tile

3 x 6

TILEBAR

E Antique Brass Patina

RAW URTH

F Kebony/SSB/Gator Exterior Cladding

1 x 8, 10' - 16 length

EXTERIOR MATERIALS BOARD

DELTA MILLWORKS

G Interior Stone Veneer

CANYON STORE CANADA

H Onyx Slate Roof

BRAVA ROOF TILE

I Exterior Deck Tile

TILE TECH PAVERS

Exterior Perspective

Interior Perspective

Exterior Elevation

Space Section

A B C D E F G H I SCHEMATIC SKETCHES
EMILY RAMSUCHIT - INTERIOR DES GN PORTFOL O - 2024

LEGEND

OUTDOOR DECK

LIVING ROOM

DINING ROOM

KITCHEN

MUDROOM

POWDER ROOM

ENTRY

BEDROOM + BATHROOM 1

BEDROOM + BATHROOM 2

OUTDOOR SHOWER

FIRE PIT

A B C D E F G H I J K
FLOOR AREA = 1385 SQ.FT
G A B C D E F H I J K EMILY RAMSUCHIT - INTERIOR DES GN PORTFOL O - 2024
TOTAL
RENDERED FLOOR PLAN
Scale: NTS

INTERIOR SPACE SECTION

INTERIOR SPACE SECTION

EXTERIOR VIEW

DIGITAL INTERIOR RENDERINGS

EMILY RAMSUCHIT - INTERIOR DES GN PORTFOL O - 2024

RETAIL BOUTIQUE

Project Location: Distillery District, Toronto

Project Scale: 1650 Sq.Ft.

Completed: 2nd Year - Winter 2023

Tools: Revit, Enscape, Photoshop, Sketching,

ALEXANDER MCQUEEN

The Alexander McQueen luxury handbag boutique, situated in Toronto's Historic Distillery District, epitomizes exclusivity and quality, offering a carefully curated selection of McQueen merchandise. The brand's identity, characterized by the romantic red, powerful black, and comforting browns, draws inspiration from the natural world. This identity informs the design concept of "continuation & freedom," symbolizing Alexander McQueen's life and creative legacy The physical manifestation of this concept is achieved through free-flowing movements in line and form that fosters a sense of exploration and nonchalance.

02
EMILY RAMSUCHIT - INTERIOR DES GN PORTFOL O - 2024
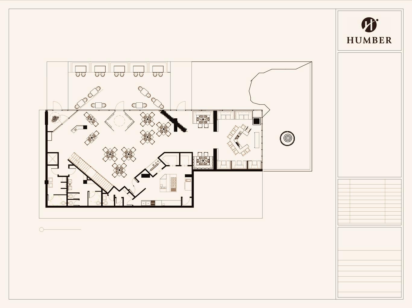
PARTI DIAGRAM AND DEVELOPMENT

PRIMARY ENTRY

CASH & WRAP

MERCHANDISE DISPLAY + SCREEN

OFFICE

SECONDARY ENTRY

UNIVERSAL WASHROOM

SEATING + BEVERAGE AREA

MERCHANDISE DISPLAY

HOLOGRAPHIC DISPLAY

GENERAL NOTES

Wheelchair Turning Radius of 60" in Diameter

Universal washroom is gender inclusive and contains an adult change table.

All paths of travel are appropriate dimensions for accessibility. Vertical displays contain 3 shelves only to have merchandise at reachable height.

Seating area includes space for a wheelchair to park.

Mirror is floor to ceiling to cater for all human heights.

Multiple layers of lighting to facilitate different needs

Audio and visual technology is included to enhance customer experience

Both entry doors are accessible

Accessible cash & wrap area with appropriate wheelchair clearance.

F G H I
LEGEND A B C D E
N D
RENDERED FLOOR PLAN A B C E F G H I

The Alexander McQueen boutique's embrace of natural materials, eco-friendly paint, recycled packaging, and responsible waste management reflects a commitment to sustainability. These practices align with growing consumer expectations for businesses to adopt environmentally friendly measures, contributing to both ethical and eco-conscious brand positioning

The incorporation of natural textures and a rich red accent color creates an ethereal, sophisticated, and refined ambiance. The minimalistic nature of the design encourages a deep appreciation for the materials, forms and lines present within the space and simultaneously encourages the focus to be on the essential elements of the interior.

EMILY RAMSUCHIT - INTERIOR DES GN PORTFOL O - 2024

NORTH WINDOW DISPLAY

The storefront consists of the original brick facade and must remain untouched as required by law. However, the black and white signage and window display enhances the overall visual appeal of the main entrance.

HOLOGRAM

SOUTH WINDOW DISPLAY

CASH & WRAP BEVERAGE COUNTER WASHROOM DIGITAL SCREEN

The holographic display at the Alexander McQueen boutique, serves as an interactive element for customers and represents a cutting-edge use of technology to enhance the shopping experience.

EMILY RAMSUCHIT - INTERIOR DES GN PORTFOL O - 2024
DIGITAL SCREEN OPEN DISPLAY UNIT CLOSED DISPLAY UNIT CUSTOM BENCH PRIVATE OFFICE + STORAGE SOUTH EXIT

DIGITAL INTERIOR RENDERINGS

EMILY RAMSUCHIT - INTERIOR DES GN PORTFOL O - 2024

CUSTOM MILLWORK DESIGN

Project Location: Mexico,

Project Scale: 200 Sq.Ft.

Completed: 3nd Year - Fall 2023

Tools: Revit, Enscape, Photoshop

The aim of this project is to design a bespoke workstation tailored to the unique needs of a Mexican journalist residing in a quaint tiny home in Pueblo Magico Malinalco. This endeavor seeks to create a functional and aesthetically rich millwork design that serves as an authentic reflection of the client's vibrant personality, deeply rooted in Mexican culture

1 01
03
HOME FLOOR PLAN WASHROOM STORAGE STARCASE WORKNGSPACE KTCHEN&DNNG
PERSPECTIVE
TINY
MILLWORK
EMILY RAMSUCHIT - INTERIOR DES GN PORTFOL O - 2024
EMILY RAMSUCHIT - INTERIOR DES GN PORTFOL O - 2024

ITALIAN RESTAURANT 04

Project Location: Milan, Italy

Project Scale: 3788 Sq.Ft.

Completed: 3nd Year - Fall 2023

Tools: Revit, Enscape, Twinmotion

Potafiori is a unique establishment merging fine-dining Italian cuisine with a flower shop. It embodies the concept of "The Italian Garden," featuring a design that reflects principles of order, balance, and timeless beauty. Drawing inspiration from Ching and Alexander’s theories, a floral landmark connects the interior and exterior dining areas. Natural materials like wood and stone provide a tactile richness, establishing an authentic connection to the earth and enhancing the dining experience

THEORY APPLICATION

UNRENDERED

SECTION

PARTI DEVELOPMENT TO FLOOR PLAN
DN MEZZANINE FLOOR PLAN
EMILY RAMSUCHIT - INTERIOR DES GN PORTFOL O - 2024
EMILY RAMSUCHIT - INTERIOR DES GN PORTFOL O - 2024
05 EMILY RAMSUCHIT - INTERIOR DES GN PORTFOL O - 2024
IN THE SKETCHBOOK
EMILY RAMSUCHIT - INTERIOR DES GN PORTFOL O - 2024

emilyramsuchit16@gmail.com

Emily Ramsuchit Emily R

Turn static files into dynamic content formats.

Create a flipbook
Issuu converts static files into: digital portfolios, online yearbooks, online catalogs, digital photo albums and more. Sign up and create your flipbook.
INTERIOR DESIGN PORTFOLIO 2024 by Emily Ramsuchit - Issuu