Light & Health

Page 1

LIGHT & HEALTH LIGHT & HEALTH

EMILY YOUNG

10.12.23

NAME AGE LOCATION

OCCUPATION

MARITAL STATUS KIDS Amanda Spencer Information Technology Fort Worth, TX 28 Single No

BACKGROUND

CHALLENGES

Just returned from 5 years deployment and currently transitioning back to civilian life. Has been living with her parents, and is now moving out on her own. Amanda works in Information Technology, so she spends much of her day indoors and on the computer.

Recent Post-Traumatic Stress Disorder (PTSD) diagnosis; experiences insomnia, anxiety, panic attacks, nightmares, and depression. Has an irregular sleep schedule, and mostly gets poor quality sleep. Experiences eye strain and headaches from working with computers.

7:00 AM wake up 7:30 AM medication 8:30 AM leave for work 9:00 AM work day starts (indoors) 1:00 PM lunch (indoors) 2:00 PM resume work (indoors) 6:00 PM return home 11:00 PM - 2:00 AM go to bed A M A N D A A M A N D A

PROPOSED SOLUTIONS

GOALS

Utilize daylight coming into the space, place general daylight mimicking fixtures. Warm night lighting throughout the space for wayfinding, insomnia, panic, confusion, and PTSD episodes.

Set up and maintain a regular sleep schedule, ease moments of distress, and offset negative effects from working with computers.

SCHEDULE/ROUTINE

P R O J E C T S C O P E P R O J E C T S C O P E

DAYLIGHTING

Utilize existing daylight in the space in order to support the circadian rhythm when the user is in the space.

NIGHT LIGHTING

1800-2000K night lighting in order to avoid circadian disruption during episodes of insomnia and anxiety. Dimmed but still useful for wayfinding.

ACOUSTICS

Implement acoustic control with the use of panels, acoustic recess fixtures, & acoustic carpeting and tiles. Intended to reduce noise in the event of insomnia and anxiety attacks.

ADJUSTABLE COVE LIGHTING

Cove lighting throughout all the spaces to create a warm/calming atmosphere. RGBW color choices for decorative purposes. Can also be used to accentuate daylight.

AMBIENT LIGHTING

Recess fixtures that provide warm white & tuneable white light that can be set to mimick daylight conditions throughout the day.

CONCENTRATED LIGHT THERAPY

Bedroom can be converted to a blackout space, where the user can use built-in light therapy features. The room is convertible in order to support light therapy.

LIGHT THERAPY LIGHT THERAPY

CONCEPT STATEMENT CONCEPT STATEMENT

This apartment is designed in order to support circadian & mental health in an individual suffering from various types of issues, ranging from insomnia to anxiety attacks & PTSD episodes related to military service.

The space will use daylight from large windows, accentuated with adjustable cove lighting that can change throughout the day. Electric night lighting strategies are used throughout the entire space in order to support a user experiencing insomnia, without causing circadian disruption.

The bedroom is a convertible space which can utilize a mix of daylight & electric light, or a blackout space that can be used for concentrated light therapy. The fixtures that are to be used for light therapy purposes can be color-adjusted and customized to meet the user ’ s therapeutic needs.

V I S U A L R E S E A R C H V I S U A L R E S E A R C H

F I X T U R E S F I X T U R E S

RGBW
tuneable white cove RBGW mirror
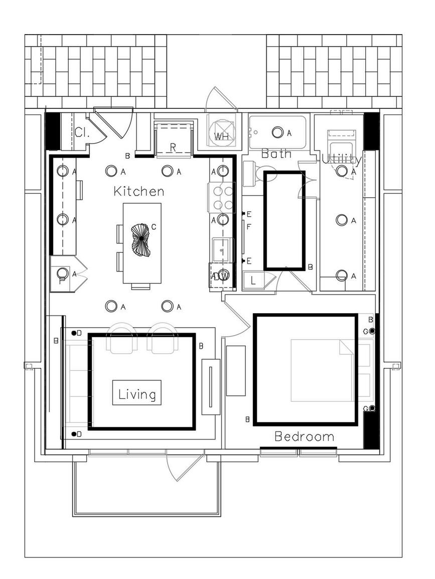
kitchen bathroom living
bedroom A B B C G D F E
cove
recessed downlight
room

C U T S H E E T S C U T S H E E T S

F L O O R P L A N F L O O R P L A N

L I G H T I N G P L A N S L I G H T I N G P L A N S

ELECTRIC LIGHT DAYLIGHT

L I G H T T H E R A P Y L I G H T T H E R A P Y

BLUE - STIMULATING AMBER - CALMING RED - AIDS IN COGNITIVE

REHABILITATION AFTER DEVELOPING PTSD

SKETCHES SKETCHES

tuneable white can be adjusted througout the day to mimick daylight conditions

light therapy

ELEVATIONS ELEVATIONS

Turn static files into dynamic content formats.

Create a flipbook
Issuu converts static files into: digital portfolios, online yearbooks, online catalogs, digital photo albums and more. Sign up and create your flipbook.