Interior Design Portfolio

Page 1

EMILY MARIE

Interior Design Portfolio

About me

An interior designer with exemplary organizational skills. Focused and ambitious designer that meets deadlines and goes above what is required. A proven hardworker with determination and passion for design.

Experience

EDUCATION

BACHELOR OF FINE ARTS IN INTERIOR DESIGN

Design Institute Of San Diego, CIDA And WASC Accredited

Graduation: August 2022

WORK EXPERIENCE

DESIGN SALES CONSULTANT

DALTILE - JACKSONVILLE, FL

Tile Manufacturer and Distributor

January 2023- June 2023

DESIGN ASSISTANT

MHAUS INTERIORS + CONSTRUCTION - DEL MAR, CA

Residential And Commerical Interior Design Firm

February 2022- April 2022

INTERN

SIMPLY STUNNING SPACES - MIRAMAR, CA

Residential And Commerical Interior Design Firm

November 2021- January 2022

SKILLS

• AutoCAD

• SketchUp

• InDesign

• Lumion

• Enscape

• Quick Sketch

• Perspective Drawing

• Architectural Drafting

• Space Planning

• Conceptual Design

• Model Making

• Design Development

• Time Management

• Meeting Deadlines

• Organization

CONTACT

emilybenkes@gmail.com

858. 472. 2762

linkedin.com/emilymcbride

The Campbell Residence Trouvaille Wellness Center Table of Contents 09 13 05 The Jones Residence
Ladera Resort Re-Inventing the Patient Room Amangata Hotel 17 21 25

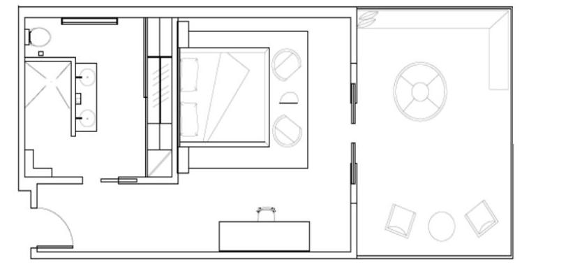
Jones Residence PROJECT Residential

COURSE

PROGRAMS USED

Concept

Visual Communication III

SketchUp, Lumion

The goal of this project was to create a space for a couple that was looking to remodel their living room, kitchen and to add windows to the master bedroom. The concept of this residence was to create a modern space that incorporated warm wood tones with contrasting dark accents.

05
Bedroom Kitchen

Materials

07
Elevation Wood Flooring Black Painted Marble Wall Paint

Living Room

Campbell Residence

PROJECT

Residential

PROGRAMS USED ID4 SketchUp, Lumion, AutoCAD

COURSE

Concept

This project was based on developing a concept for a couple that was rennovating an apartment space that was above a small business. The design follows a cool color palette that is complimented with warm accents, creating a well-balanced color scheme.

09
Dining Room Kitchen
11 Materials
Plan Wood Flooring Area Rug Wall Paint 1 Powder Room 2 Master Bedroom 3 Master Bathroom 4 Guest Bedroom 5 ADA Bathroom 6 ADA Bedroom 7 Kitchen 8 Living Area 9 Dining Area 10 Patio
Floor

Guest Bedrooom

Trouvaille Wellness Center

PROJECT

Commerical

PROGRAMS USED Sustainable Environments

COURSE

SketchUp, Lumion, AutoCAD

Concept

Based in Bozeman, Montana is a boho inspired mountain chic wellness center that aims to target the feminine market while promoting mindful and sustainable practices with treatments that offer a purifying and gentle experience. Trouvaille not only offers clean and gentle spa treatments, it takes sustainability to a whole new level.

13

Waiting/ Reception Biophillic Feature

15 Materials
1 Reception 2 Retail 3 Waiting Area 4 Treatment Rooms 5 Offices 6 Yoga Studio 7 Meditation Studio
Floor Plan
Wood Shelving Acoustical Wallcovering Stone Counter Wall Paint
Retail Area

Amangata Hotel

PROJECT Hospitality

COURSE

PROGRAMS USED ID3 SketchUp, Lumion, AutoCAD, Photoshop

Concept

For this group project I was responsible for designing the guest suite. The overall concept for this program was creating a space that emphasized Iceland’s Blue Lagoon landscape and creating a design that emphasized dark contrasting materials and warm neutral tones to create a cozy hotel where guests to feel they were one with nature in the comfort of their rooms.

17

Guest Bath

19
Materials Floor Plan
1 Bathroom 2 Closet 3 Suite 4 Patio 2 1 3 4
Marble Nighstand Exposed Lava Rock Wood Desk Veneer Concrete Flooring
Guest Suite

Ladera Resort

PROJECT Hospitality

COURSE

PROGRAMS USED

Concept

Visual Communication III

SketchUp, Lumion

This hospititality project was inspired by a mediterranean style that features natural materials such as warm woods and bamboo that are complimented by warm tones. This project based in Saint Lucia incoporates a simple color palette that creates a relaxing yet chic atmosphere where guests can enjoy a drink after checking into their rooms or lounge by the full height windows overlooking a calming body of water.

21
Lounge Bar
23 Materials
Plan 1 Bar 2 Lounge 3 Reception 4 Guest Suites 5 Patio 2 1 3 4
Floor
5
Stucco Wall Texture Bamboo Wood Slats Area Rug
Guest Suite

Re-Inventing the Patient Room

Thesis

Lack of stimulants and natural elements in the hospital environment is causing elderly patients’ mental state to decline at a faster rate. According to the New York Times, “some of the most interesting research on the way hospitals are built examines the role of nature to promote healing. When it comes to recovering from illness, the more nature the better. But too often patients and physicans find themselves cooped up in dim rooms and sterile hallways with little access to natural light or views of nature: too much concrete, not enough jungle.”

Implementing stimulating elements would work to engage the patient and slow the decreasing mental decline.

Creating a sector in the hospital that is dedicated to elderly patients would allow them to recover and heal in a space that incorporates biophillia, natural light and stimulating audio to slow the rate of mental deterioration.

25

Site Analysis

Re-Inventing the Patient Room

PROJECT Healthcare

COURSE

PROGRAMS USED Senior Thesis

SketchUp, Lumion, Enscape

Concept

For this project we were to research a problem that was occuring in the world and design the solution.

27
Patient Room

Concept

The concept behind patient room 1 was following the idea of an open, airy, bright space. Emphasizing biophillic elements such curves and organic features that work together to create a sense of movement that mimics the natural enviorment.

Materials

29
1 Bathroom 2 Nurse’s Counter 3 Patient Area 2 3 1
Floor Plan
Acoustical Wood Slats Terrazzo Countertop Wall Paint Ceramic Backsplash
1
Patient Room

Concept

The concept behind patient room 2 was inspired by earthy tones, warm woods and biophillic elements. This room was meant to emphasize connections to nature by enhancing the stimulants through calming green tones and wood materials to hone in on natures natural healing elements.

31
Plan 1 Bathroom 2 Nurse’s Counter 3 Patient Area 2 3 1
Materials Floor
Wood Veneer Cork Flooring Wall Paint Ceramic Backsplash
2
Patient Room

emilybenkes@gmail.com

858. 472. 2762

linkedin.com/emilymcbride

Get in Touch
Thank you!

Turn static files into dynamic content formats.

Create a flipbook
Issuu converts static files into: digital portfolios, online yearbooks, online catalogs, digital photo albums and more. Sign up and create your flipbook.
Interior Design Portfolio by emilymariedesigns - Issuu