

Emily Linesch
Urban Planning + Design Portfolio
About Me Education
University of Cincinnati - Cincinnati, Ohio
Bachelors of Urban Planning
Expected graduation April 2026
Dean’s List Fall Semester 2021 - Present

Hello! My name is Emily Linesch and welcome to my urban planning & design portfolio! I am a fourth year at the University of Cincinnati, working towards a Bachelor of Urban Planning. I was born and raised in Northern Kentucky with a great interest in my community and all things creative. If I am not in school, you can usually find me reading a book, kayaking, hiking, or doing some sort of craft! I got into Urban Planning because I started taking real estate courses, and I was searching for a degree to supplement that certfication. Once I started my Urban Planning degree, I found that this was my niche and how much I enjoy design and I have been studying planning ever since! I am a curious and knowledgeable designer with a diverse viewpoint and I can’t wait to present thtat skillset to you!
Member of Phi Sigma Pi National Honor Fraternity, National Co-op Ambadssador Scholarship
Participating in the Professional Practice Program, alternating semesters of classroom study with work in the field of design
Randall K Cooper High School - Union, Kentucky
Class of 2020
Honor Roll 2016-2020
Chamber Choir, Varsity Track & Field, Varsity Womens Soccer
Soft Skills
Time Management Emotional Intelligence Adaptability
Work Ethic Patience Public Speaking
Accountability Active Listening Innovation
Interests





Oriented Design












University of Cincinnati DAAP - Cincinnati, Ohio
August 2024 - Present
Student Worker
Collaborated with other students and professors on design for a booklet proposing transit intitiatives for a major Cincinnati bus route
Utilized communication skills in a diverse setting to ensure the team met deadlines quickly and efficiently
College Hill Community Urban Redevelopment Corporation - Cincinnati, Ohio
May 2024 - Present
Community Development Coordinator
Led and managed a unique business incubator program, offering six months of free rent, while fostering entreprenueriship and supporting the growth of local businesses
Assisted in the planning and implementation of neighborhood revitalization initiatives
Created new and exciting urban design ventures to beautify the business district and produce funding opportunities
Michael Graves Architecture - Washington, DC
August 2023 - December 2023
Architectural Design Co-op
Conceptualized multiple mixed use planning projects at the neighborhood and urban scales
Devised the beginning stages of the Howard University West Campus Master Plan
Collaborated with other designers to create insightful and descriptive plans, graphics, and maps
Created exciting and informative presentations for meetings within and outside the company
Union Township - Cincinnati, Ohio
January 2023 - April 2023
Planning and Zoning Co-op
Performed research and design for an updated community profile with an emphasis on community demographics for future comprehensive plans
Created insightful graphics for a variety of meetings and events
Assisted in the performance of zoning inspections of existing residential, institutional, and commercial properties
Organized administrative duties to break down the zoning application process for residents of the community
Volunteering
March 2023 - Present
Metro Parks of Butler CountyPlanning Volunteer
Certifications
Google Digital Garage
Fundamentals of Digital Marketing Certificate
Design Skills
Adobe InDesign
Adobe Photoshop
Adobe Illustrator
ArcGIS Pro
ArcGis Online
QGIS
SketchUp
AutoCad
Microsoft Office
Bluebeam
Contact Experience
Activities
Community Development Advisory Member
- University of Cincinnati, School of Planning
Pages of Color Book Club
- University of Cincinnati, Student Organization
(859)-640-6389
linescec@mail.uc.edu
LinkedIn.com/EmilyLinesch
Address: upon request



Section 1: Master Planning

Kernersville, North Carolina - Multi-Use Development
Displayed below is a hand drawn master plan of a multi-use develiopment proposed in Kernersville, North Carolina. This project includes a farmers market, retail, self-storage, stormwater management, a community center, trails, townhomes, multi-family apartment complexes, single family homes, and even a gas station.






A hand drawn section displaying the farmers market, retail, multifamily residential, and the community center, as well as added green space and room for streets and pedestrian pathways.
Kernersville, North Carolina - Renderings
BIRDS EYE VIEW RENDERING





*images were made in collaboration with a third party based on the hand drawings made by me, renderings belong to Michael Graves Architecture
Vignette was done in coordination with Dale Waldron Jr., Director of Design
RETAIL RENDERING
BIRD’S EYE VIEW RETAIL RENDERING
Resiliency: Creating a Closed Loop Neighborhood in South
Project Overview:
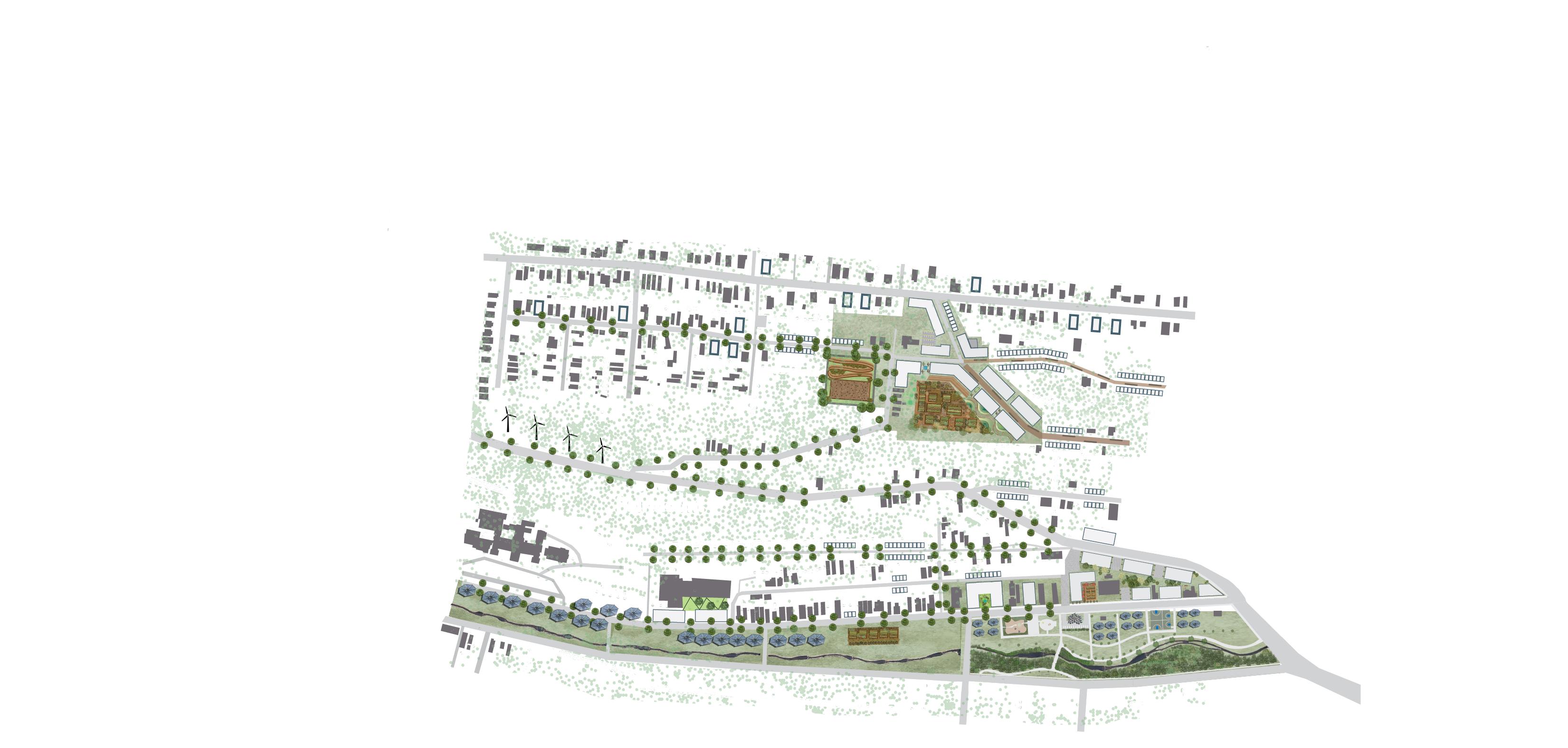
This studio project was based in one of Cincinnati’s neighborhoods, Fairmount, located west of Cincinnati’s downtown. North and South Fairmount have seen years of disinvestment, but the tides are changing now that the Lick Run Greenway has been brought into the neighborhood. This studio project aims to capitalize on the amount of effort and investment put forth into the Lick Run, and utilize that energy to create a closed loop neighborhood through renewable energy practices and closed loops of food and waste, all grounded in a culture of collaboration and education to achieve resiliency.
WHY SHOULD WE CARE ABOUT RESILIENCY?

FOCUS AREA

EXISTING BUILDING FOOTPRINT


existing buildings

PROPOSED BUILDING FOOTPRINT


existing buildings

proposed buildings

FOCUS AREA PLAN

PROPOSED CROSS SECTION

Resiliency: Creating a Closed Loop Neighborhood in South
Now, we zoom into a more detailed view of the masterplan, located along Queen City Avenue. The goal of this project was to create a neighborhood-wide closed loop of food, waste, and energy, but also encourage the same closed loop values integrated into smaller subsets of the community.
Buildings were placed to encourage social interaction, renewable energy is incorporated as public art, and practicalities such as fruit trees, street trees, and parking come to fruition.

Multifamily,Mixed
Use Building
Permeable Surface
Parking Lot
Community Garden
Fruit Trees
Solar Art (Renewable Energy)
Existing Splash Playground
Solar Art Shade Structure
Pattern Alternation Between Street Trees & Sunflowers
Lick Run Greenway
South Fairmount
On your right, you’ll encounter a detailed 3D model of the masterplan, offering a zoomed-in perspective of the neighborhood’s closed-loop system. In this model, you can see how various elements interact on a deeper level. The neighborhood thrives on a cycle of self-sufficiency, where food production (through strategically planted fruit trees), waste management (via composting systems), social interactions (in communal courtyards), and mobility (within a walkable, pedestrian-friendly environment) all work together in harmony. These interconnected systems foster a culture of sustainability, encouraging awareness, collaboration, and shared responsibility among residents. This holistic approach not only enhances the quality of life but also serves as a model for how communities can function as living ecosystems, minimizing waste and maximizing resources.


On the left, you’ll find a striking installation of Sunflowers— solar panels uniquely designed as public art pieces. These vibrant structures became the cornerstone of my masterplan, seamlessly integrating renewable energy solutions with artistic expression. By positioning renewable energy at the heart of public spaces, I aimed to spark engagement and raise awareness about sustainability while simultaneously creating interactive community hubs. This fusion of form and function not only highlights the beauty of clean energy but also serves as a reminder of how art can inspire positive environmental action.

Section 2: Conceptual Rendering

Conceptual Rendering







* Images made in collaboration with Ben Lee and Dale Waldron Jr.

Section 3: Utilizing Bus Rapid Transit for Green Initiatives

Cincinnati Ohio - Utilizing BRT for Green Initiatives
Proposed BRT line connecting Cincinnati neighborhoods Air Quality and Tree Canopy along the BRT


• The BRT route stems from the Central Business District up through multiple of Cincinnati ‘s neighborhoods


• Studying environmental factors along the BRT route allows us to capitalize on the utilization of the BRT to benefit both people and the eonvironment
• Studying factors such as air quality and tree canopy help us pick out where to install green infrastructure along the BRT route
Green Infrastructure ApproachWeaving Technique

Particle Matter 2.5
12.3


• The Weave approach installs green infrastructure along the BRT route and weaving into pockets of each neighborhood
• The Weave approach provices equitable and green infrastructure along with connection of approaches
Priorities for a 2050 Plan
1 Improve Air Quality
• Lower Average Particle Matter 2.5 to 12.5 mg/m
2 Decrease Heat Island Effect
• Reduce heat islands by 35%
3 Provide Green Solutions Tailored to Each Neighborhood’s Needs
• Increase amount of green infrastructure along the route by 50%
4 Set the Example for the Rest of Cincinnati
• Increase community engagement efforts and provide resources that get people excited about green initiatives

Cincinnati Ohio - Utilizing BRT for Green InitiativesZooming into the Neighborhood of Clifton

Location of Clifton Neighborhood Green Initiative Masterplan





























Existing Parks
Weave Approach
BRT Route
Proposed Bike Lanes

Existing Bike Lanes

Industrial Transformation District

Green Streets

Eco Villages
Green Infrastructure

Least Intensive
Most Intensive
*Masterplan was done in coordintation with other group members Makenzie Stewart and Sage Morrison
What Does a Green BRT Look Like?
Bus Stop


• The City Tree is a combimation of street furniture and a biofilter
• It uses air purifying moss to clean and cool the air

• Buses would run down the center of the street allowing for improvement of pedestrian and vehicular movement
• Bus stops would include city trees as street furniture, permeable surfaces, and green roofs that allow for shade
Green Infrastructure Along the BRT

Strategies in this model include:


Section 4: Site Planning

Cincinnati Ohio, Riverfront [Re]design
This project explores taking inventory of a site and figuring out the needs of the community. Cincinnati’s riverfront is avid with entertainment options with stadiums, bars, and different types of businesses. Taking inventory of the site, I found that there is a lack of mobility. The streetcar route does not reach down to the riverfront or the stadiums, and there is only one existing bike lane, which shares a path with cars on a very busy road causing the riverfront to feel very disconnected from the rest of the city.









































• Expanded streetcar design to be brought down into the site
• New bike paths and bike lanes to activate the Banks themselves and Smale Park
• Connection of the riverfront back into the city with an emphasis on mobility

The Banks Experience Bike Path


















































































Proposed Bike Lanes Proposed Streetcar Route
Scenic Greenspace Bike Path

Section 5:College Hill, Cincinnati, Ohio

College Hill Community Urban Redevelopment Corporation
Throughout my time working as a community development co-op, I worked on many different urban design initiatives to give the neighborhood of College Hill a more uniform identity. Two programs I initiated are the light pole banner plan and business district bench plaques, which in turn created a fundraising opportunity for the company


Light pole banners help create a cohesive and recognizable visual theme throughout a business district, making the area feel more unified. They showcase consistent branding, colors, or messaging, reinforcing the district’s identity to both locals and visitors. By tying together various streets and businesses, these banners enhance the overall atmosphere and promote a shared community feel.
Light pole banner design
Light pole banner mock up
Corporation - Urban Design


Plaques on benches and planters offer residents a personal way to contribute to the character of the business district, fostering a sense of belonging. By dedicating plaques to loved ones or significant events, locals leave a lasting mark on the community space. This personal connection strengthens ties between residents and the district, making it feel more inclusive and community-centered.
Planter mock up
Real life planter plaque!
College Hill Community Urban Redevelopment Corporation
Over the course of my co-op semester at College Hill CURC, I was in charge of the OurShop Program. The OurShop program provides brick and mortar businesses rent free space for 6 months, sales data analysis, financial education, mentorship, marketing, and storefront activation support. I oversaw the entire process from applications, scoring, interviews, and through to the grand opening!
Current Businesses That are Participating in OurShop

David, a fantasy artist, created Everlore, an inclusive tabletop roleplaying game, along with various products that enhance the gaming experience. At ManChild Ltd., he offers a diverse range of art and games, focusing on inclusivity, unique storytelling, and personalized services to ensure each customer feels welcome and valued.

Melissa Wirth, founder of Dahlia –Mexican Handmade Accessories LLC, partners with four talented families from various regions of Mexico to showcase and sell their handcrafted products. Her mission is to share Mexico’s vibrant culture with the United States, offering unique items while empowering artisans to earn a living through their incredible art.

Danielle Perdue, founder of Exklusive Jewels LLC, empowers individuals through personalized healing practices, including life coaching, Reiki therapy, and crystal healing. Her mission is to provide a supportive space for exploring transformative healing, offering curated crystal jewelry, herbal teas, and other items that promote personal growth and well-being
Corporation - Community Development


Being able to execute this round of OurShop meant securing funding from the City of Cincinnati, extensive amounts of coordination between perspective tenants and stakeholders in the process, and holding many conversations about branding, activating the storefront, and community outreach.


Section 6: Hand Drawing

Hand Drawing












Section 7: Urban Photography

Urban Photography







Thank You For Reading!


