Architecture Portfolio Summer 2023 - Emily Karnok

Page 1

ARCHITECTURE PORTFOLIO

EMILY KARNOK

EMILY KARNOK

WORK EXPERIENCE

Intern - OBMI / UCO - [August 2022 - December 2022]

Co-op Fall 2022

Assisted with high-end residential and hospitality projects within their schematic and design development phases by sketching designs, modeling in Revit/ AutoCad, and completing construction documents.

“We were absolutely thrilled to work with Emily, her attitude and willingness to participate and take on big tasks was exceptional. She showed tremendous growth and demonstration of specific knowledge and skills by the end of her internship.” -Theresa

Intern - Works Progress Architecture - [January2022-April2022]

Co-op Spring 2022

Assisted with multi-family buildings by working on schematic design by completing construction documents and rendering interior/exterior designs.

“Emily has a rare gift - she is incredibly outgoing and assertive but in a collaborative and considered way, Once Emily’s skills are developed, I have every confidence that she will find herself in a leadership position, both on projects and within project teams.” - Michael

Intern - Growth Opportunity Partners - [June 2018 - August 2018]

Future Connections Internship Program

Offered community development capital to small minority-owned businesses in low-income communities in Ohio.

Intern - Cleveland Hopkins International Airport - [May 2018 - June 2018]

Future Connections Internship Program

Marketing Department

Applied statistical analysis to create a presentation on how to improve the ambiance of the airport.

Architecture PortfolioEmily Karnok 2

EDUCATION

University of Cincinnati - [August 2019 - Present]

College of Design, Architecture, Art, and Planning (DAAP)

Bachelor of Science in Architecture - Class of 2024

Dean’s List

ParticipatingintheProfessionalPracticeProgram,alternatingsemestersof classroomstudywithworkinthefieldofdesign.

Cuyahoga Community College - [August 2017 - May 2019]

College Credit Plus Program

Berea-Midpark High School - [August 2015 - May 2019]

Honors Diploma

TECHNICAL SKILLS

Sketchup

Enscape

Adobe Creative Cloud

Rhinoceros 3D

AutoCAD

Autodesk Revit

Microsoft Office

Grasshopper

Vray

3

ABOUT ME

Hello! My name is Emily Karnok. I am a third-year architecture student at the University of Cincinnati. I have an interest in hospitality and high-end residential architecture. My passion lies in innovative designs and the use of sustainable practices for the future. After graduating with my degree in architecture, I am planning to pursue a master’s of architecture. Forwarding that will be my journey to become a licensed architect. While school can be busy, in my free time I enjoy working out, taking care of my plants, cooking, and listening to music.

Architecture PortfolioEmily Karnok 4
5 CONTENTS .01 Findlay Market Bathroom .02 collective housing .03 cincinnati discovery center .05 OBMI/ UCO - THE MOON RESIDENCE .06 WPA - COLONIAL/ GOING .04 apartment unit study

.01 FINDLAY MARKET BATHROOM

CONCEPT

Designed a gender neutral public restroom that would be located outside Findlay Market in Cincinnati. The project focused on the elemental, constructive matter of architecture and landscape and its capacity to inform atmospheric qualities while providing basic human hygiene needs.

Architecture PortfolioEmily Karnok 6

PRECEDENT FORM

PRECEDENT AND DIAGRAMS

PRECEDENT FORM

PRECEDENT FORM

The precedent expresses directionality within the ciruculation of each structure and three volumes represented each have a different curvlinear form. I examined the volumes and decided that I wanted to combine my design into one. I used the curves related to the circulation and created rectilinear shapes to manipulate the three paths of entry and exit. The modules I created provided a different sense of how cirulation could be used within the restroom.

PRECEDENT FORM

PRECEDENT FORM

7
Three Pavilions - H2O Architects
SECTION PERPECTIVE

COLLECTIVE HOUSING .02

CONCEPT

The objective for this project was to create a collective housing solution for 12 travel nurses. Their commute to a hospital is located a short walk down the street. Inside the collective housing building included a community kitchen, fitness center, laundry room, workspaces, lounge areas, and bedrooms and bathrooms for all occupants. The goal of this design was to analyze how to incorporate private and public programming within a multi-occupant living space.

Architecture PortfolioEmily Karnok

diagramatic progress work

To study the relationship between private and public programming, I itterated the form of using rectangular prisms by sketching; smaller prisms representing the housing and the larger prisms representing community spaces.

final form

To fit the program adequately, four ‘tiny homes’ were designed to be integrated within the community levels. A roof pitch was added to visually separate the spaces and to add height for each housing floor.

“Separation” - The divide of housing and community space in separate modules within the site.

“Layering” - Placing housing modules on top of the community space to allow for more square footage to be used within the site.

“Insertion” - Adding a level to the housing modules and inserting them to be connected within the community spaces.

11

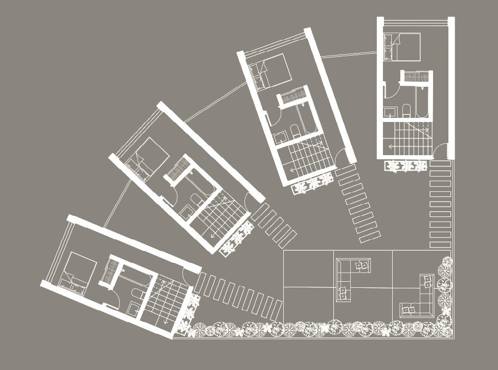
floor plans

Architecture PortfolioEmily Karnok 12 parking level first floor community level second floor first

floor community level/ first floor housing

green roof terrace/

second level housing

third floor housing

13

tiny home isometric

Architecture PortfolioEmily Karnok 14

section perspective

CINCINNATI DISCOVERY CENTER .03

CONCEPT

Our task was to design a museum in a park of Cincinnati that would hold exhibits of all Cincinnati themed artifacts. The museum included four exhibitions, a gift shop, event space, administrative offices, education center, and a cafe.

I gained experience in this project by designing in a site that included a pond, hertiage trees, and a sloping topography. This strengthened my skills with entrances and circulation reaching in and around the site.

Architecture PortfolioEmily Karnok 16

parti

The initial design concept was to use rotating modules to represent layered floors with a different use of the program on each floor. As the design progressed, I lowered the square footage as the levels layered. My final design divided the modules into smaller sections and kept the layering throughout the form.

initial render study

17
longitude section
education/ administration exhibition space public spaces

transverse section

This section drawing captures the separation of program within the floors as well as how each floor interacts with each other. the main entrance includes a double height space with a grand stair leading visitors to the bottom level that includes the ticket booth and other public programming. Along side of the grand stair are elevators that allow administrative and educational personale to access the floor easily.

final rendered veiws exploded axonometric view

apartment unit study .04

CONCEPT

A short study in school was to create two units of an apartment building that included a double height space, two bedrooms, a kitchen, and a living room. Unit 1 required no bathroom door and unit 2 required each wall of the kitchen to be filled with cabinetry.

To the left are initial iterations of required service areas followed by initial unit designs on the bottom. On the next page are the final graphics for the study.

Architecture PortfolioEmily Karnok 20
unit 1 unit 2

OBMI/ UCO - THE MOON RESIDENCE .05

The Moon Residence is a project located in the British Virgin Islands. This residence includes five floors of program including a master suite, a guest wing, a library, cinema, spa, art studio, music studio, pool, and other unique spaces that fit the client’s needs for their dream home. My task was to assist with interior architecture aspects in schematic design and design development phases.

My initial task for this project was to assist with the transitioning of AutoCAD drawings into a Revit model. I created all of the sheets for the floor plans and elevations.

After the foundation was set, I took views of each interior wall and created elevations for each space in the house. While creating these elevations I was given the opportunity to design millwork pieces for areas like the art studio, spa, and miscellaneous millwork pieces.

Architecture PortfolioEmily Karnok 22
Images provided by project brief

RENDERING

To the left are a few interior bathroom renders that I completed during my time at OBMI/ UCO. I referenced fixtures, finishes, and furniture pieces from the interior designer to assist with the presentation of rendered elevations to the client.

23
Image provided by POOL BATHROOM ELEVATIONS GUEST BATHROOM ELEVATION

intial spa design

One of my main focuses for the project was to progress the design of the inhome spa. The spa included a steam, sauna, massage area, plunge ice bath, and a full size bathroom with an experiential shower.

To the left is an early sketch provided to me to use as reference when implementing the design into digital formats. When doing this, I was able to give my design input on how each space would interact with each other.

At the bottom are renderings and elevations of the massage area which I designed a partition wall that is sunken into the elevated stone flooring. This allows for privacy and the opportunity to take in the outdoor views which are located on the other side of the spa.

Architecture PortfolioEmily Karnok 24

final spa design

To the right is a larger plan of the final design for the spa. At the bottom are examples of the types of plans I would develop. Setting out plan, which shows all of the elevation markers for each interior elevation. Reflected ceiling plan, which identifes the type of ceiling as well as the height (lighting not inserted at the time.) Floor finish plan, noting the types of flooring. Furniture plan, tagging all furniture. I developed these types of floor plans for each floor of the residence, updating changes as needed.

25 SETTING OUT PLAN REFLECTED CEILING PLAN FLOOR FINISH PLAN FURNITURE PLAN

wpa - colonial/ going .06

EXTERIOR RENDERING

I was given a task of rendering two apartment buildings on the same lot with the exterior materials and placing all of the landscape site context. Referencing the landscape plans and material documents, the final render was achieved in Enscape.

Architecture PortfolioEmily Karnok 26
27 before after
Architecture PortfolioEmily Karnok 28 THANK YOU. Emily Karnok Karnokem@mail.uc.edu 216.333.7310

Turn static files into dynamic content formats.

Create a flipbook
Issuu converts static files into: digital portfolios, online yearbooks, online catalogs, digital photo albums and more. Sign up and create your flipbook.