PORTFOLIO

![]()

Jardin des Plantes, Montpellier (Hérault)

Ce projet en deux parties consiste à créer, dans un premier temps, une topographie en tant qu’espace d’assise ou de détente, suivie d’une structure couverte permettant de relier la partie haute et la partie basse du terrain.
La topographie est une sorte de podium sur quatre niveaux proposant des positions assises et allongées grâce au pli et à l’inclinaison de plaques d’acier. Sa forme octogonale est issue de la base supportant les vases d’Anduze, composants importants de cet axe du Jardin des Plantes.
Le passage reliant les deux niveaux est composé d’un abri dont la structure reprend la forme et le système constructif de la topographie. La forme octogonale se répète, puis se déroule pour inciter le visiteur à parcourir l’allée du bas.

Jardin des Plantes, Montpellier (Hérault)

Ce projet consiste en l’élaboration d’un pavillon d’exposition de 25 m².
Mon choix a été d’y exposer des sons de la nature par l’intermédiaire de cloches sonnores positionnées en des points où l’on peut apprécier la vue. L’installation domine une pente et propose des cadres sur la bambouseraie.
Le pavillon reflète la végétation alentour grâce à ses façades en acier inox réfléchissant. A l’intérieur, le revêtement des murs et plafond en bois crée une ambiance chalereuse.

Avenue de Lodève, Montpellier (Hérault)


Ce projet propose cinq maisons : un T5, deux T4 et deux T3. la difficulté était de ramener de l’individualité dans l’habitat collectif sur un terrain très exigu.
Dans le volume bas s’alignent les chambres donnant sur un espace vert à l’est. le volume haut est une déformation du premier permettant de cadrer des vues.
La façade nord est entièrement vitrée à l’étage, très ouverte sur l’extérieur. la façade sud quant à elle ne dispose que d’un bandeau permettant un apport de lumière. il s’agit donc d’un projet tourné vers la nature et fermé sur la ville.
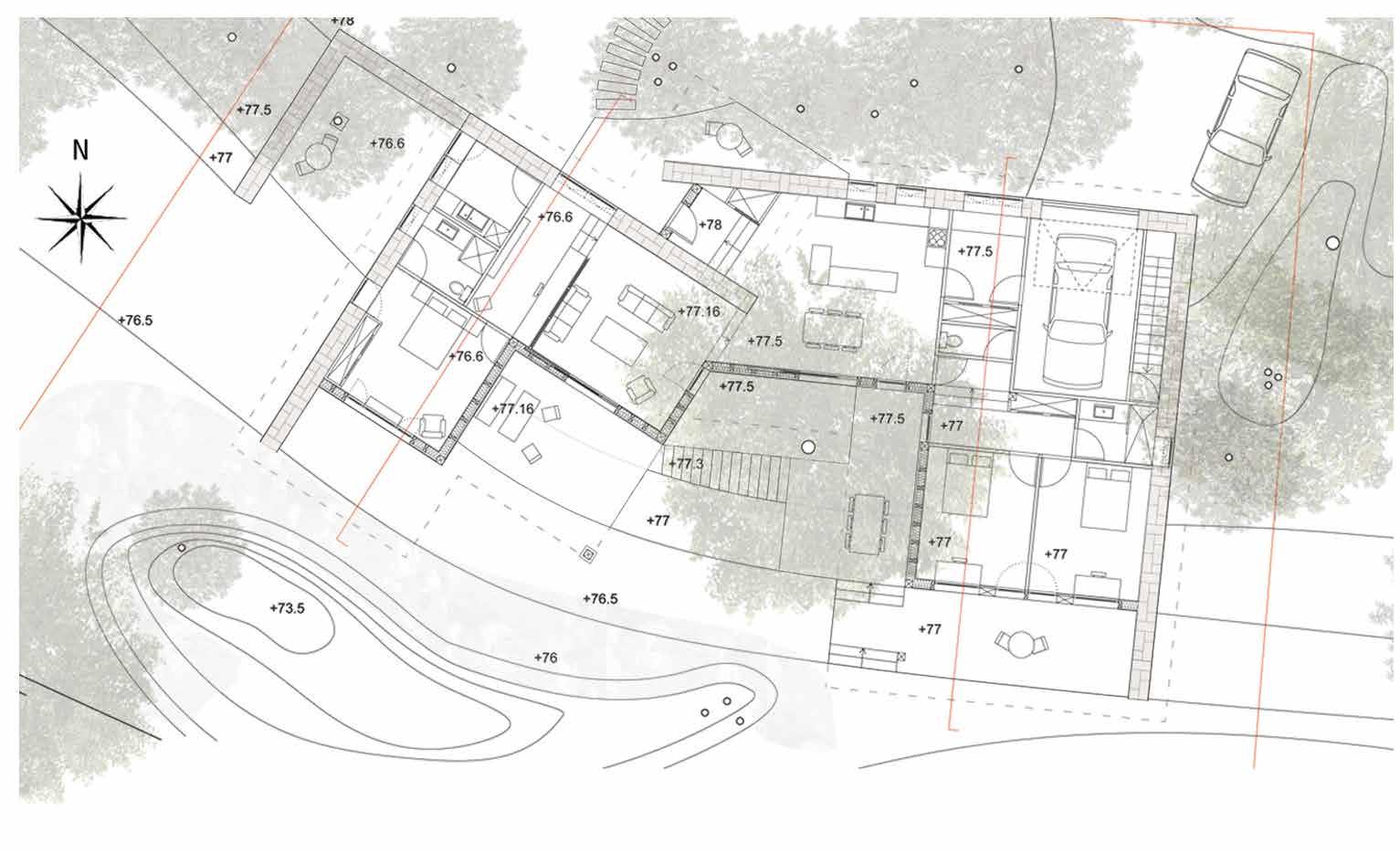
Bois de Montmaur, Montpellier (Hérault)


Ce projet est une maison d’habitation pour une famille composée d’un couple et de deux enfants.
Elle se situe au milieu du Bois de Montmaur, à la fois proche de la ville et isolée dans cette forêt rocheuse.
Deux volumes, contenant les espaces individuels, sont positionnés dans des directions différentes. Ils se rencontrent et créent les espaces communs.
La maison se parcourt de la même façon que se pourrait parcourir le terrain, plus on avance dans les volumes, plus on descend. Aussi, chaque volume est orienté selon la topographie existante.
Les façades sont pensées de manière bioclimatique : la façade sud est munie d’un bardage bois, de grandes ouvertures verticales ouvrent les espaces sur le jardin. L’arrière de la maison est construit en pierre. Les ouvertures se font plus rares, protégeant ainsi des vents du Nord.

Promenade maritime, Las Palmas de Gran Canaria (Espagne)
Ce projet est un centre pour praticants de surf, situé sur la promenade maritime de Las Canteras de Las Palmas de Gran Canaria. Il se divise en deux parties : une école de surf au rez de chaussée, puis aires sociales et logements sur les étages supérieurs.
Partant d’une maille obtenue par le quadrillage du terrain en fonction des édifices alentours, se crée un jeu de plateformes soutenues par des murs écrans à la façon de Mies Van der Rohe. Chaque pièce se définit comme une volume géométrique clair, toutes connectées par une zone à l’air libre. De cette façon se créent des parcours différents, à la volonté de l’usager.
L’espace génère un dialogue constant entre l’édifice et le paysage : depuis l’intérieur les limites s’étendent jusqu’à l’océan. De la promenade à la rue de derrière, le bâtiment gagne de la hauteur. De cette façon on retrouve la forme en escalier donnée aux autres bâtiments du front de mer. En montant, la densité du bâti diminue, offrant des vues spectaculaires du lieu.


Promenade maritime, Las Palmas de Gran Canaria (Espagne)
Ce projet de maison de retraite, situé entre la promenade de Las Canteras et la rue Numancia, est divisé en deux parties : espaces publics ou communs sur les deux premiers niveaux, et zone de logements sur les niveaux hauts. Dans sa composition, le bâtiment s’ouvre sur la promenade et le paysage. En prenant de la hauteur, les volumes reculent de sorte à créer des terrasses sur les toits des niveaux inférieurs.
Les façades sont recouvertes de pierre volcanique de l’île, donnant au bâtiment une couleur noire rappelant le sable de la plage en contrebas et permettant l’utilisation de matériaux locaux.


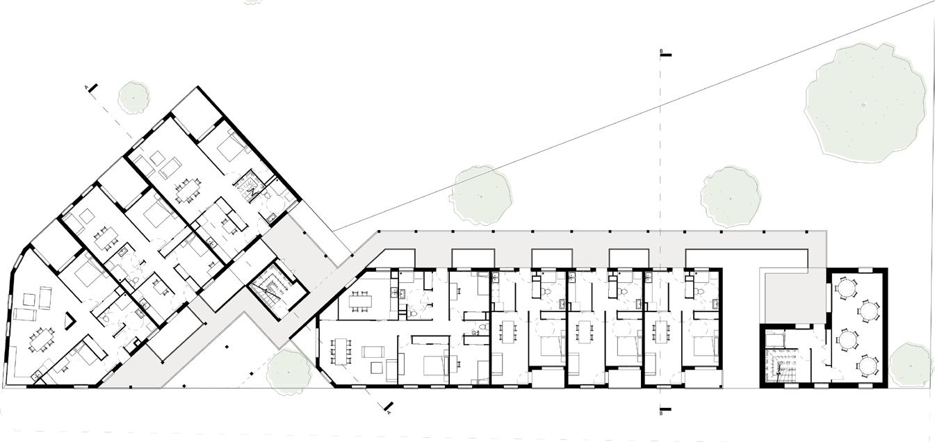
Las Alcaravaneras, Las Palmas de Gran Canaria (Espagne)

Le nouveau port de plaisance consiste en la continuité et la progression de volumes empilés le long de la ligne qui marque le quai, dans une composition de pleins et de vides. Le complexe croît et se densifie à mesure que nous nous approchons de la courbe, pour rediminuer quand commence la jetée. L’idée est basée, à la fois sur le positionnement des pierres de la jetée, puis dans l’empilement de containers portuaires, présents dans le paysage.
Un grand axe piéton aménagé relie les deux plus grands espaces : la place publique du pôle le plus dense du projet, et le skatepark - qui permet la transition avec la plage.
Sur la jetée, la ligne de volumes se décompose, restent seuls quelques volumes abritant l’agence portuaire.


Cet ensemble de logements pour navigateurs, situé dans le port de plaisance de Las Palmas de Gran Canaria, se décompose sur deux axes longitudinaux en direction de la mer.
Les logements se situent au Nord, offrant des vues spectaculaires sur la grande plage de Las Alcaravaneras. Son autre façade donne sur le vide central du projet. Cet axe est composé de trois types de logements (T2, T3 et T4) regroupés en quatre volumes permettant une certaine porosité.
Le second bras vient mettre une limite entre le projet et le port pour préserver l’intimité des habitants. Très poreux, il laisse ainsi passer la lumière du Sud. Les quelques volumes posés sur des plateformes de béton accueillent les espaces collectifs totalement vitrés.
La circulation est matérialisée par des passerelles en bois reliant les deux axes construits. Le jeu des directions offre des parcours différents pour l’usager.










Las Alcaravaneras, Las Palmas de Gran Canaria (Espagne)
Ce projet consiste en la création d’installations pour la voile latine canarienne, abritant un espace public (pôle d’informations, restaurant), une école de voile et un espace de stockage pour les bâteaux.
La forme naît d’une maille reprenant les directions du contexte, créant ainsi un module triangulaire de 6x9x7.5m. Les volumes se font face et la relation entre eux est dans la tension entre leurs parois. Ainsi, le projet est structuré par le vide.
Une passerelle permet de relier l’Avenue Maritime au Port de Plaisance, séparés par une hauteur de 5m. Elle matérialise un parcours de l’édifice et apporte son unité au projet.



La Habette, Créteil (94)
Ce projet, réalisé en groupe dans le cadre d’un studio intitulé « Le Grand Paris de la jeunesse et de l’énergie », vise à revitaliser l’espace public du centre commercial de la Habette à travers la sensibilisation à l’eau et à sa consommation.
La démarche du studio consiste à travailler en collaboration avec les jeunes d’un quartier visé par l’ANRU.
Le projet s’articule autour de l’écoulement de l’eau selon un parcours sur le site. Ainsi, nous ajoutons un système de récupération de l’eau à travers un chéneau contournant les toitures du bâti existant. L’eau parcourt ensuite les tuyaux de poteau en poteau, ces derniers étant parsemés sur le site de façon à modifier la circulation piétonne. Leur dessin permet la création d’une résille en toiture, générant un paysage au-dessus des passants.
Certains poteaux, 6 d’entre eux, permettent la création d’énergie via la circulation de l’eau dans des moulins. L’électricité récupérée propose des points de charge pour les téléphones et l’illumination de LED situées dans l’un des tuyaux.
L’eau est ensuite stockée dans une façade conçue selon un système de mur trombe.
Pour le confort de l’usager, nous choisissons d’installer des espaces d’assises en bois recyclés recouverts par des toitures du même matériau.
Ce dispositif est rendu possible par la mise en place d’un système de jeu permettant d’actionner la circulation de l’eau dans les tuyaux au gré des usagers. L’usager est donc acteur du projet.

tème de mur trombe. La façade étant orientée Sud-Ouest, le so-


quand il ne pleut pas.
En fin de parcours, l’eau retourne à la façade. L’un des tuyaux permet l’apport en eau dans le parc en contrebas, contribuant au développement des espaces verts.



Ce dispositif est rendu possible par la mise en place d’un système de jeu permettant d’actionner la circulation de l’eau dans du projet. tionnement, prendre des utiliser l’eau


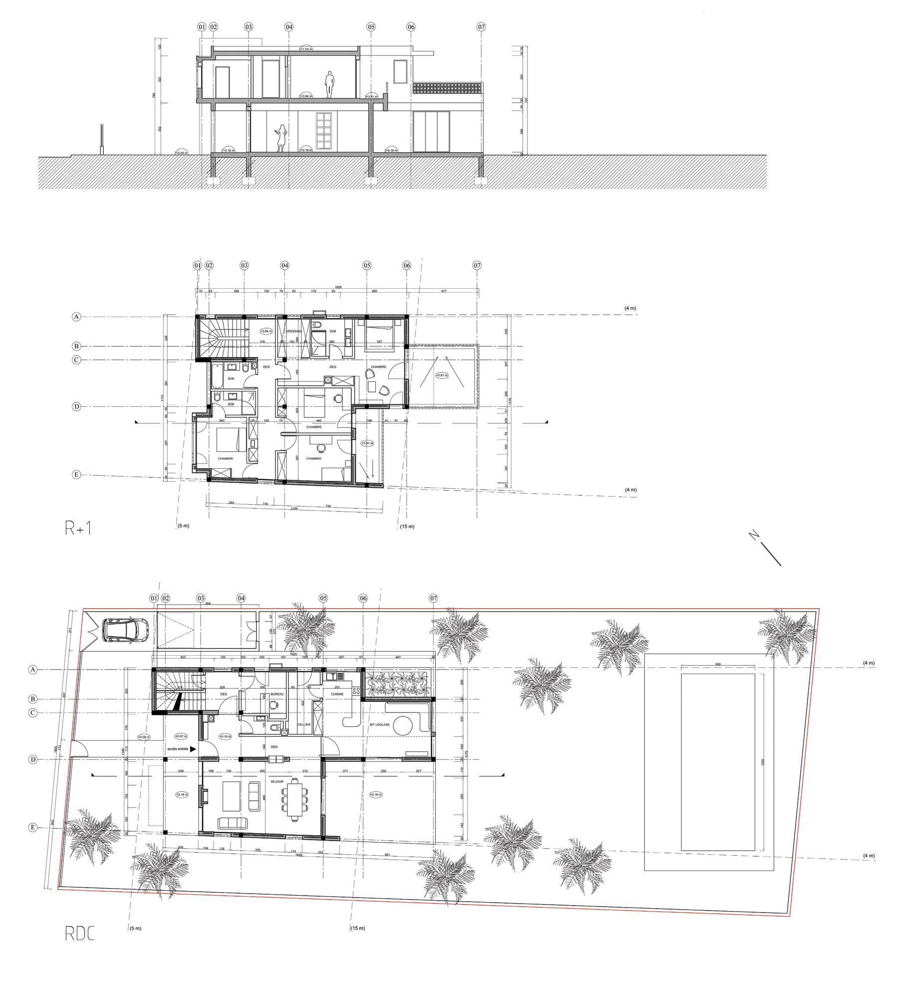
Lotissement fictif en banlieue parisienne
Ce projet est une maison individuelle conçue pour une famille de deux parents, un adolescent et un enfant en bas âge. Elle se situe sur une parcelle étroite de 4.5 m de large sur 25 m de long
La façade Sud est reculée de 3 m par rapport à la limite de la rue, ce qui génère un espace tampon re couvert d’une pergola qui vient repousser la limite avec le privé. On retrouve à l’arrière un espace plus intime propice à l’aménagement d’un jardin planté
Les murs latéraux sont opaques, pour répondre aux normes imposées par la commune, ce qui rend l’illumination des espaces plus complexe. Pour ce faire, la maison dispose d’un couloir de lumière latéral.
Tous les espaces, à tous les étages, s’ouvrent sur cette frange lumineuse.

Parallèlement, cette faille facilite la l’air et des esprits originales à travers l’espace de la maison.
Le bois est un élément fondamental dans ce projet. Le parement, les menuiseries, la pergola... La mai son se rapproche de la nature grâce à et la souplesse que lui octroie le matériau.
L’utilisation du bois s’inscrit également dans une démarche environnementale. L’utiilisation de tériaux biosourcés portant du XXIème siècle.




Vitry sur Seine (94)



Cet immeuble d’habitation se situe en bordure du centre ville de Vitry-sur-Seine, dans une zone aux allures de village. Il est conçu pour accueillir des personnes âgées, pour lesquelles la proximité des commerces et établissements médicaux est un véritable avantage ; ainsi que pour des familles qui pourront bénéficier de la bonne desserte des transports pour relier le site aux établissements scolaires et culturels.
L’avenue marchande Paul Vaillant Couturier trouve sa continuité dans le projet grâce à l’aménagement de locaux commerciaux en rez-de-chaussée, dans l’angle de la parcelle. De cette manière, l’espace public du square est déplacé un peu plus loin sur l’avenue Jean Jaurès, dans une faille qui sépare les deux volumes principaux.


Sur l’empreinte d’une maison qui prenait auparavant place sur le terrain, la tour collective construite en meulière s’élève de façon à desservir les étages. L’accès aux appartements se fait par cet espace. A chaque étage, une salle polyvalente est à disposition des habitants, pouvant servir de salle de travail comme de sport ou de relaxation.
Les appartements sont desservis par le biais d’une coursive qui file entre les deux volumes. Celle-ci se situe côté jardin, les habitants sont donc en contact direct avec la nature à la sortie de leur appartement.

Haux (Gironde)


Ce projet consiste à concevoir un nouveau quartier respectueux de l’environnement dans le petit village de Haux, qui compte 800 habitants.
Il est composé de plusieurs espaces publics et d’une zone résidentielle se déployant autour d’un chemin fluide qui mène à la forêt.
La place principale permet une revitalisation du village. On y trouve un médiathèque, donnant à la fois de l’importance à la culture et aux nouvelles technologies. A côté se trouvent deux locaux commerciaux : une boulangerie et un marché aux légumes où l’on peut acheter les produits du jardin.
La conception des maisons essaie d’être aussi bioclimatique que possible, afin d’économiser de l’énergie et d’apporter un confort maximal aux habitants.





Quartier résidentiel, Marrakech (Maroc)

Cette maison individuelle est conçue pour une famille d’expatriés français, composée d’un couple et deux enfants, située dans une zone résidentielle de Marrakech. La surface habitable est de 250 m².
Durant mes trois mois de stage réalisé au sein de l’agence marocaine ARJITEC, cette maison aura été mon activité principale.
De l’extérieur, cette maison a tout d’une création contemporaine aux emprunts à la culture marocaine. Pourtant, l’aménagement intérieur de l’espace est tout à fait européen, dans ses proportions et sa logique.



Ecole d’Architecture de Nanterre (92)



Ce projet de fin d’études porte sur l’ancienne Ecole d’Architecture de Nanterre, réalisée suite aux bouleversements de l’enseignement de l’architecture en 1968. Ses architectes, Jacques Kalisz et Roger Salem, développent une architecture modulaire conçue pour une adaptabilité des usages. Malgré leurs intentions, l’école ferme en 2004 et est depuis abandonnée.
De nombreux bâtiments sont ainsi laissés pour compte, ils constituent une rupture et un vide dans le territoire dans lequel ils sont implantés : ce sont les délaissés urbains. Réhabiliter ces bâtiments répond aux objectifs du XXIème siècle de reconstruire la ville sur elle-même.
Face au potentiel spatial de cette structure, ce projet propose de réinvestir l’école d’architecture à partir d’une situation réelle : la relocalisation de l’ENSA Paris La Villette.
Comment faire revivre l’école d’architecture de Nanterre pour l’inscrire dans le paysage du Grand Paris en respectant sa valeur mémorielle tout en réinterprétant les enjeux qui définissent la société d’aujourd’hui ?
L’école a été conçue pour être reliée au parc André Malraux. Il s’agit donc d’imaginer une nouvelle vie pour le quartier du parc de Nanterre, en ouvrant l’école au public. Ce travail s’articule donc entre une approche territoriale et paysagère, puis une approche programmatique, spatiale et sociétale.

Gütersloh (Allemagne)
Ce projet réalisé pour un concours au sein de l’agence BAU WERK STADT à Bonn, consiste en la réhabilitation d’un collège dans la ville de Gütersloh. Le bâtiment existant a été construit dans les années 1950. Il s’agit d’un squelette de béton, donc les façades en bande sont marquées par d’épais garde-corps en béton également.




Partant de l’existant, nous avons choisi de préserver le squelette en béton et de créer par-dessus un système de quadrillage en façade, également en béton. Les vides générés sont par la suite soit vitrés, soit remplis par des panneaux de ventilation en bois. Le choix du béton relève du lien avec l’existant, alors que celui du bois se rapproche de considérations écologiques et durables.

Realisierungswettbewerb






Marseille (Bouches du Rhône)
Ce projet réalisé au sein de l’agence SOLARI & ASSOCIES
Architectes à Aix en Provence porte sur la réhabilitaton d’un centre paroissial à Marseille. Le rez‐de‐chaussée existant de la salle est réhabilité et reconverti en Centre médical ouvert sur un jardin. Une surélévation en bois est créée pour accueillir 4 logements
L’objectif du projet est de rénover la salle suivant une démarche bioclimatique et durable, en mettant en valeur son implantation. Ainsi, le dégagement de ses façades par la suppression des annexes qui l’entoure lui redonne sa place prédominante sur la parcelle et permet d’éclairer l’intégralité des espaces intérieurs. Le mur de clôture est supprimé pour ouvrir le coeur de parcelle sur la rue et apporter de la respiration au projet comme à l’espace public.
Une structure saillante en bois rythme la façade de la surélévation, et des panneaux solaires thermiques sont installés dans la trame de la structure en façade Sud de manière à bénéficier du meilleur apport solaire et éviter la surchauffe des composants.
Le permis a été accepté et est actuellement en phase PRO.


La Seyne sur mer (Var)


Ce projet porte sur la rénovation d’une maison des années 50 à la Seyne sur mer. Il s’agit d’une maison familiale, l’importance de garder l’identité de la maison était primordiale pour les maîtres d’ouvrage.
La maison est surmontée d’une surélévation en bois sur deux étages, de manière à créer trois appartements différenciés pour cette famille multigénérationnelle.
La descente de charge a été particulièrement contrainte et a amené à des réflexions poussées sur la structure. Le chantier est en cour pour cette maison dont les études ont duré 3 ans !



Ce projet d’éco-quartier porte sur la rénovation thermique de logements ouvriers construits à Espinasses pour les travailleurs du barrage de Serre-Ponçon. Il s’agit de transformer ce quartier en éco-quartier exemplaire pour la mairie d’Espinasses, dans la vue de réhabiliter l’ensemble de son patrimoine ouvrier.
Les 14 logements existants sont rénovés et dotés de nouvelles serres bioclimatiques en façade Sud.
Le projet prévoit aussi la construction de 20 logements neufs en ossature bois, une requalification paysagère et la création d’une maison communautaire pour favoriser le vivre ensemble au sein du quartier.


Luc en Diois (Drôme)

Cette maison individuelle s’inspire de la forme du nautile, déduite du nombre d’or. Ses futurs habitants, Sophie et son fils Arjoun, la construisent sur le modèle de chantier participatif. Chaque bénévole apporte sa richesse à la maison, construite en harmonie avec son environnement naturel.
Les murs sont construits sur trois épaisseurs : une résille en bois, soutenant la charpente, des bottes de paille accrochées à l’aide de cordes de chanvre puis un enduit de terre et de fibres. Les matériaux viennent pour la majorité d’un rayon de 15km autour du chantier et ont été transportés à vélo ou en camion électrique. La terre provient du terrain lui-même.
La maison se situe sur un terrain en copropriété avec 7 autres familles. Toutes les maisons sont construites selon un mode constructif écologique : briques de terre crue, isolation paille, enduits et dalles de terre, toilettes sèches, toitures végétalisées, réemploi, et bien d’autres techniques à la fois ingénieuses et poétiques.



Nkidinimikki (Cameroun)


Ce projet a été réalisé en tant que volontariat au détour d’une rencontre parisienne. La maison est conçue pour une famille de 20 personnes dans une forêt de baobas au Cameroun.
Elle est divisée en deux zones correspondant aux deux parties différentes de la famille. Chaque partie compte 8 chambres, une salle de bain sèche, une cuisine, une salle à manger et deux salons (pour les hommes et les femmes séparément).
Une grande pièce au centre relie les deux familles, qui est ouverte sur la terrasse côté rue et sur la cour privée. Cette maison est en partie en autoconstruction, les briques de terre crue étant fabriquées par la famille elle-même.
La maison africaine a été pour nous très intéressante à concevoir, surtout dans le langage et la vision des espaces qui étaient très différents de ce que nous avons l’habitude de voir dans les projets universitaires.

Les projets réalisés dans ce cours d’Arts Plastiques sont des créations en rapport avec le jeu de cartes tel qu’il est connu depuis tant de siècles. Il s’agit de le revisiter, de le repenser.
Plus loin que le jeu de carte, nous avons choisi d’aborder un sujet d’actualité et d’utiliser le jeu de carte comme simple illustration. Il perd son statut ludique pour prendre un rôle dénonciateur. L’énergie nucléaire peut-elle être vaincue par les énergies naturelles ?

Quartier Boutonnet, Montpellier (Hérault)
Je garde la tête basse, sans pouvoir regarder le ciel devenu éblouissant. C’est comme une nouvelle limite imposée par le soleil.
Un scooter vient chambouler le calme qui régnait dans la rue – rue du Faubourg Boutonnet.
Je suis une raquette de tennis. Elle se balance de droite à gauche, de haut en bas. Un peu plus loin, elle rencontre un sac en plastique jaune – court échange entre les deux objets. Une baguette de pain traverse la rue puis entre dans un bar. Le sac jaune est secoué par la vitesse de son déplacement. Encore un scooter. La raquette, le sac et la baguette ont disparu.
J’aperçois un morceau de papier. On dirait une adresse, il se déplace sans tout à fait connaître sa destination – sur une poubelle « Réunion publique.
Un arrêt, un changement de direction, décidément ce papier ignore la position qu’il prétend indiquer. Je ne le vois plus. Peut-être s’est-il envolé, ou peutêtre est-il dans cette mallette bleue à la poignée rouge – demi tour. Une musique rap vient perturber le rythme de la mallette. Des chants d’oiseaux, eux, viennent l’accompagner – rue Lakanal.
Une remorque bleu azur vient attirer mon attention et éloigne définitivement la mallette. Elle tourne dans une rue étroite et va se cacher derrière une porte de garage.
Un mouchoir prend l’air puis retourne dans l’obscurité d’une poche, il n’aura pas eu la chance de voir autre chose qu’un nez, au-delà de l’impasse des Coccinelles.
Une canne accompagne une enveloppe, elle lui indique une direction et la lettre disparaît comme dans un envol.
Laquelle suivre ? Quelle destination sera la plus surprenante, enrichissante ?
Certaines personnes ont un objectif, d’autres rodent sans but. Toutes se croisent, apparaissent, disparaissent. C’est un parcours sans fin de l’objet qu’on a dans les mains, aperçu et même parfois ignoré. Tous ces objets qui se promènent, nous les connaissons, nous les possédons et les utilisons. Pourtant, dans un contexte qui n’est pas le leur, ils n’attirent pas notre attention, ils sont comme des vagabonds dans un univers de transition.
née le 14 novembre 1993 à Aix en Provence permis B
Adresse Rue Jean Parès - Les Rosiers 3 13100 Aix en Provence
Contact + 33 6 29 37 12 51 suissemilie@gmail.com

« Au marché je lis
Lentilles vert émeraude je reviens sur mes pas et je lis
Lentilles vertes Eure-et-loir une troisième fois qu’aurais-je lu je ne sais pas »
Gegores Perec, Courir les rues