
EMILIE COOPER portfolio
![]()

EMILIE COOPER portfolio
Illinois Architecture Study Abroad Program in
Barcelona-El Vallès (Illinois at ETSAV)
Barcelona/Sant Cugat, Spain
September 2024 - May 2025
Year-long architecture-focused study abroad
University of Illinois Urbana-Champaign
Urbana-Champaign, Illinois
August 2022 - Present
Pursuing a Bachelor of Science in Architecture
GPA 3.73
Hanford High School
Richland, Washington
August 2018 - June 2022
English - Native Language
Mandarin - Intermediate
06
Brise Soleil
Translation
22 26 32 34 Habitation Through Time
Architectural Vocabulary
Freehand Sketches
Social Housing in Poblenou Barcelona
designing in the human scale
Team Studio Project with Professor Alejandro Lapunzina and Laia Cistero
In designing an affordable residential building in Poble Nou, a district undergoing rapid urban transformation, we focused on three core principles: connection with the outside, fostering community, and creating spaces for gathering. These guiding themes were woven into the design through open-plan units, strategically designed communal areas, and a deep respect for the surrounding context. Our approach sought to address a diverse range of concerns—conceptual, sociological, technical, and theoretical—acknowledging that architecture is a discipline that demands critical and creative thought.
Final project, Brise Soleil, in collaboration with Maia Hrejsa and Miracle Thomas. Site analysis and ergonomic studies in collaboration with Jacob Chi, Maia Hrejsa, and Valentina Domiano.






Drawing true-to-life dimensions of real people allows for the visualization of appropriate heights and measurements for furnishings. This method of iteration aids in the design of furniture and spaces that are tailored to the actual body sizes and comfort needs of the home’s users, thereby creating a more livable residential environment.
Drafting 1:1 plans of rooms helps visualize the spatial needs of residents. This approach ensures that the core elements of a home fit within a space comfortably, allowing for design optimization using the minimum required space for a function without compromising usability or comfort.
The design process was rooted in iterative studies, blending handmade (analog) and digital drawings with exploratory models to define and refine the final proposal. This process enabled us to consider and integrate the building’s relationship with its site, taking into account the urban fabric of Poble Nou and the seamless transition from the public realm to the building’s private spaces.



Evacuation staircase in the Teresianas Ganduxer protected site / picharchitects
Sharif Office Building / Hooba Design
NgĂłi Space / H&P Architects

Pan House / 2BOOKS design House of Windows / officePROJECT
MDC-Campus Berlin-Buch / Glass Kramer Löbbert

The Eixample blocks (manzanas) were oriented northwest to southeast to maximize daily sun exposure. Each one had almost identical proportions, with buildings of unified heights, spacing and a preponderance of green space. Originally, each of Cerdà ’s blocks was to have buildings on just two sides (sometimes three), occupying less than 50 percent of the total area, with the bulk of the interior space devoted to gardens and green space.
The buildings were to be low enough (no more than 20 meters tall and 15 to 20 meters deep) to allow for almost continuous sunlight in the interiors during the day.


Through our analysis, we discovered that the site is oriented with a prominent south and southwest-facing facade, exposing it to strong sunlight. The building’s height also emerged as a critical factor, particularly when considering the contrasting scale of neighboring structures and the presence of a small, low-rise school adjacent to the site. This prompted us to carefully evaluate the building’s massing to ensure harmony with the surrounding context while respecting the scale of the neighboring school.

A key consideration was also the social dimension of housing, with a focus on new ways of living, domestic quality, and social awareness. This project is not just a physical space, but a response to the evolving needs of residents and the broader urban landscape, offering a thoughtful solution to the challenges of contemporary living.


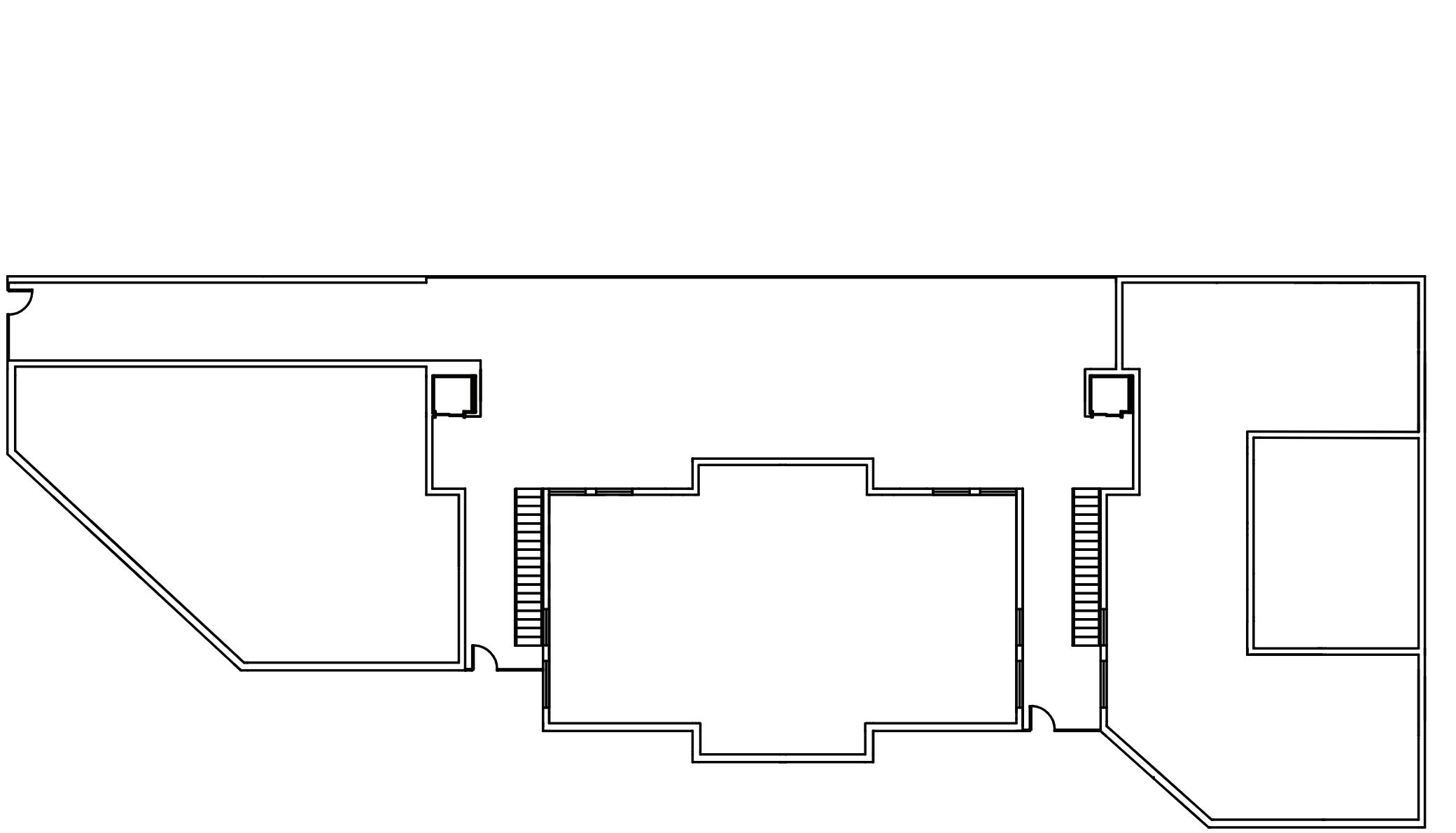
With these considerations in mind, we designed the project to maximize the site’s potential while ensuring the creation of functional and comfortable living spaces. Comprising 26 units, our housing development reflects Barcelona’s local urban style, with a focus on optimizing ventilation, natural light, and the characteristics of the Eixample blocks. Situated at the corner of an Eixample block, the site’s chamfered edge presented a unique design challenge. We embraced this by incorporating a rhythm of three “towers” that step back in alignment with the chamfer’s angle. This not only enhanced the aesthetic appeal of the building but also allowed us to optimize sunlight exposure, ensuring the spaces are bright and inviting












FLOORS 3-4 PLAN

5-7 PLAN





















Ricker Report Fall 2024
As Editor-in-Chief in collaboration with the Ricker Report Team
The Ricker Report is an award winning independent architecture publication produced by the students of the Illinois School of Architecture. Dating back to 1953, this publication is one of the first student run architectural publications. It originally began as the Ricker Notes, a student-run periodical that contained student work, articles, and news regarding the school. The title of the publication refers to Nathan Clifford Ricker, the first graduate of an architecture program in the United States.
As the Editor-in-Chief, I coordinated the list of featured professionals and initial communications with them as well as directing the overall flow and design of the publication in collaboration with the Art Director, Xiaoyi Zhu. HOW IS ARCHITECTURE UNIVERSAL






Kankakee River Wildlife Habitat
seeking
and
Independent Studio Project with Professor John Clark This project centers around the idea of animal architecture, taking the techniques used by conservationists to build and create artificial refuges for animals and combining that with the design and beauty we put into our own buildings.
Inspired by the natural landscape, the habitat evokes images of sweeping hills with fluid corridors imitating the natural flow of a river. The surface of the habitat carries a variety of textures, made to imitate the abundance of textures found in nature.


Design and thought process with rough initial sketch
Intention of being reclaimed by nature

Textured to mimic natural textures

Base structure that is organicly shaped




Tiny holes on the surface to promote bug populations
Cracks, soil, and rough texture for vegetation to take root on
Layered panels to create cracks for animals to begin digging and burrowing


















Continuity Foreign Language Building

Datum Foreign Language Building

Concave/Convex South Bell Tower

Articulation ECE Building

Transformation Funk Library

Independent Studio Exercise with Professor Isabella Hillman
Assigned with four architectural related vocabulary words, I found buildings on campus that showed traits of the word and sketched diagrams based on that.
Pen on Paper
Collection of Independent work and Studio Exercises Freehand sketches are a powerful way for me to express myself through an analog medium, allowing me to communicate my unique perspective with others.


tive

Perspective Sketch












