

![]()



EMILIA NEDELCHEVA ATANASOVA
BULGARIAN (EU)
CONTACT
+359 876762608
emilia.ned.atanasova@gmail.com
SOFTWARE COMPETENCE
AUTOCAD 2D
ARCHICAD
REVIT
RHINOCEROS + VRAY
GRASSHOPPER
PHOTOSHOP
ILLUSTRATOR
INDESIGN
SKETCHUP
LUMION
LANGUAGES
ENGLISH
FLUENT
ITALIAN FLUENT
SPANISH
RG Partners
Plovdiv, Bulgaria
Junior Architect
May 2021 - Present
ECDM Architectes
Paris, France
Internship
September 2018 - April 2019
Bureaux lot D5 ZAC Seguin Boulogne-Billancourt
Ilot du Tri Postal ZAC Belcier Bordeaux
Studio Dorell
Paris, France
Internship
June - August 2018
Reinventer Paris II - Tunnel Henri IV
Winning proposal
EDUCATION
POLITECNICO DI MILANO
Milan, Italy
Master in Architecture
2016 - 2020
CUAAD
Guadalajara, Jalisco, Mexico
Exchange - Architecture
August 2017 - January 2018
POLITECNICO DI MILANO
Milan, Italy
Bachelor in Science of Architecture
2012-2015
FIELDS OF INTEREST
Design for Extreme Territorities
Sustainable Architecture
Climate Control Landscape Design
INTERMEDIATE
FRENCH FLUENT
BULGARIAN NATIVE
Interior Design
Urban Resilience
UX/UI Design

































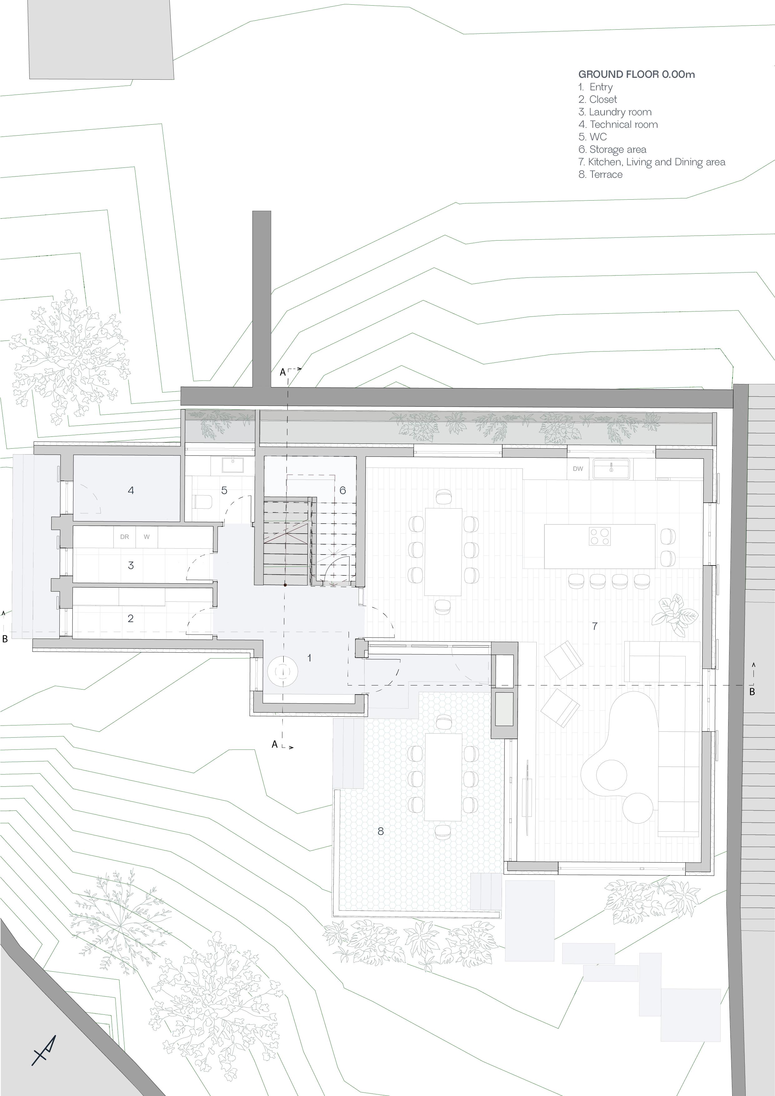
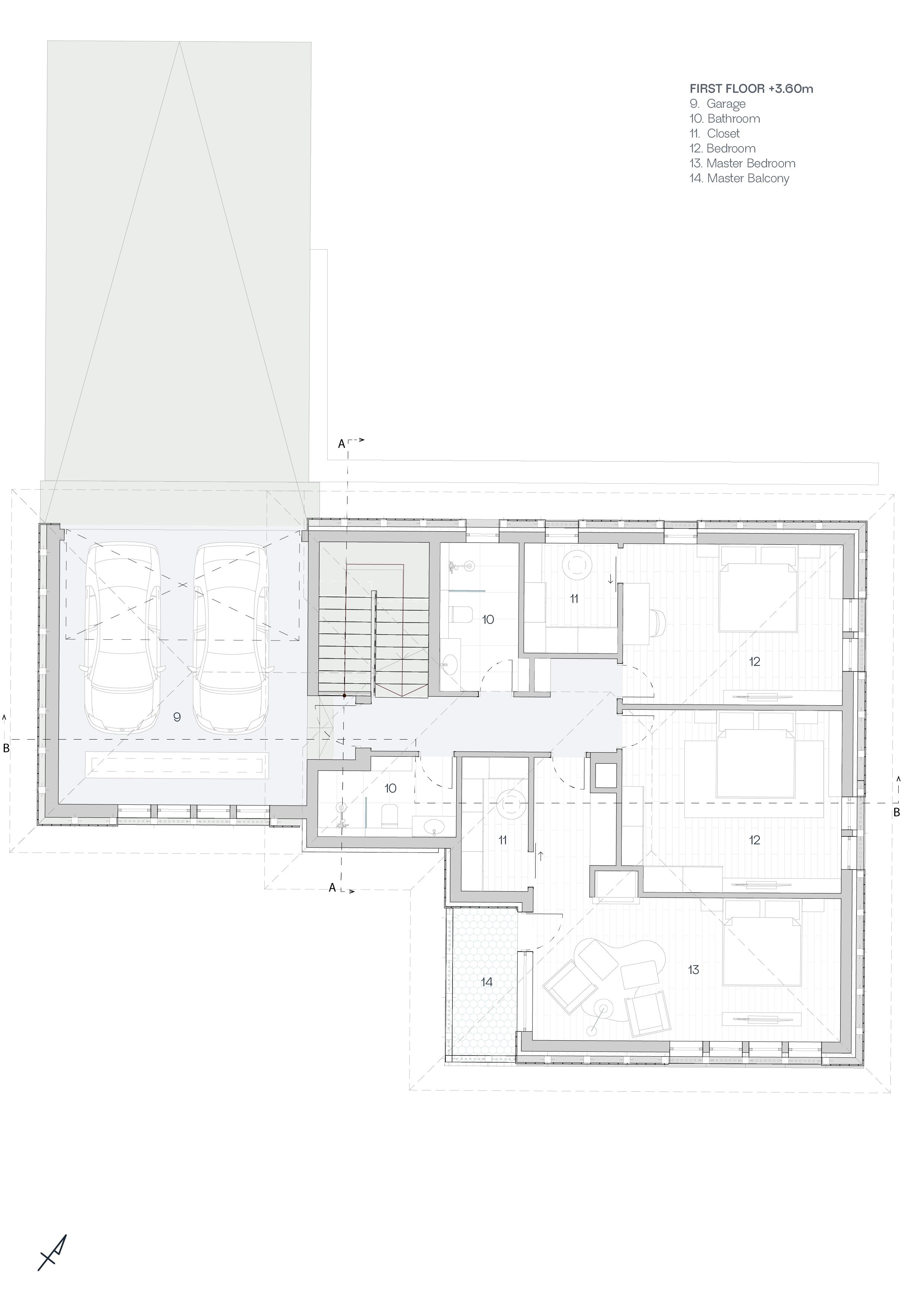
Developed at RG Partners in Plovdiv, Bulgaria











