BAC STUDIO 2 MIDTERM REVIEW

Page 1


The Common kitchen

where food is treated as an archive of people, places, and memory, and the Borderless Table turns that archive into shared practice.

“ Food encodes migration, seasons, tools, and techniques.”

This project frames cuisine as a living archive—collected, exhibited, cooked , and shared. A reconfigurable “Borderless Table” dissolves front- and back-of-house, staging learning, making, and eating as one continuous act.

The space archives culture while actively producing it through classes, dinners, and open labs.”

Precedent Study 1

Polyhaus Tetra-One (San Diego, CA) (540 SF): 24’x24’ (Footprint)

+San Diego’s first full mass-timber structural diaphragm.

+Program: living, kitchen, bonus, sleeping loft.

+Structure: 100% CLT; tight, air-sealed assembly.

+Digital/robotic fabrication for precision.

+Douglas-fir CLT via Vaagen Timbers (Colville NF).

+Envelope: insulated metal panels for added fire/thermal performance.

+Fire: CLT char ≈ 1.5 in/hr; panels 4.5–7.5 in thick.

+Wildfire: aerodynamic form; ~3–5× resilience vs conventional framing.

+Recognition: CalHFA ADU Grant; low-carbon, climate-resilient.

Precedent Study 2

Morphosis :Blades Residence

Santa Barbara, CA, United States

4,500 ft² / 418 m²

As a precedent, it shows how spatial compression and release are orchestrated across the site, with paneled apertures (carved reveals/recesses) modulating light, views, and privacy to fuse indoor and outdoor rooms.

Precedent Study 3

Various Architects

LEBBEUS WOODS/ VARIOUS PROJECTS ( THE NEW CITY )

London, United Kingdom

Septembre / Kialatok

Paris , France

+Edible garden + teaching kitchen → indoor/outdoor learning “education through food.

Formal: nested frames with subtractive cuts/voids → interlocking zones, tuned apertures , and compression→expansion sequences.

Reimagines urban work–live as adaptive, plug-in infrastructures—provisional, citizen-driven rather than zoning-fixed.

+Entry compression → garden expansion; low-cost adaptive reuse + community programs create a flexible, inclusive hub.

+Storage wall = cultural index + flexible kit: displays diverse tools/rituals, then swallows furniture to clear the floor for any workshop setup.

Program: cooking lab

“ In Paris there is a new flexible space, organized by a single storage wall, which reflects the universe of world cooking, and the diversity of different food cultures”

Concept: Archive-as-infrastructure—making culinary cultures visible so the room itself teaches, invites participation, and signals diversity through use.

Hackney School of Food / Surman Weston

The Borderless Table

Breaking invisible borders with shared meals.

( 4-week schedule) : Series

Four Plates, One Block — Weekly cuisines from the neighborhood.

Week 1 —

Group 1: Trinidadian — green seasoning, roti, pelau, doubles

Week 2 —

Group 2: Haitian — diri ak djon djon, pikliz, (veg) griot

Week 3 —

Group 3: Puerto Rican — sofrito, arroz con gandules, tostones

Week 4 —

Group 4: Jamaican — jerk seasoning, rice & peas, festival/plantain

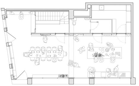
THE COMMON KITCHEN

Spatial system (translate concept → architecture)

Archive Wall (visible index):

A 1:1 library of tools, spices, vessels, and stories. Peg/track system + shallow vitrines; each item has a QR tag linking to origin, recipe, and oral history. Doubles as flexible storage + exhibition.

Borderless Table (central device):

A continuous, stepped CLT platform with embedded induction pods + sinks on flip-up lids.

Configs: line kitchen, seminar horseshoe, banquet, two islands. No hard edge between “chef” and “guest”: everyone can reach, learn, and plate.

Hearth Line (making band):

Low, linear utilities (power, water, hood spines) expressed as service ribs—didactic, exposed, easy to maintain.

Street Porch (threshold):

Sliding façade + bar rail for passerby tastings and pop-up markets—archives spill outward.

Back-of-House Nucleus: Prep, wash, walk-ins arranged in a compact pinwheel behind the Archive Wall; short runs, sightlines kept open.

SECTION : Sketch of Spatial Condition Section

SECTION : Sketch of Spatial Conditio

Program Overview: Production, Consumption & Community

Community Engagement Space (±20% of exhibition/production area)

+ Classrooms

+ Gathering rooms

Consumption Space

+ Café

+ Kitchen

+ Gallery / exhibition

Production Space(±15% of primary program)

+ Food production

+ Support & circulation

+ Storage

+ HVAC / mechanical

+ Administration

ARCHIVE EXPLORATION

CONSTRUCTION SYSTEM + DIAGRAMS

NEW DATA

+ Mission Hill availability spike: At the start of the 2025 school year, Mission Hill (a neighborhood adjacent to Roxbury with high + concentrations of student renters) is experiencing a dramatic +88% increase in available apartments compared to the previous year .

+ Citywide apartment availability: Across Boston as a whole, the availability rate of apartments beginning Sept.1 is up approximately 4% compared to the same period in 2024

These figures strongly suggest that apartment demand in areas deeply tied to college student enrollment is highly sensitive to international student visa policy changes—an economic vulnerability that your community kitchen concept could strategically address by reinforcing connections with local residents across the academic cycle.

MASS TIMBER

Material Choice: Mass timber as the primary construction system

Technique: Cross-Laminated Timber (CLT) panelization for modularity and efficiency

Joinery: Exposed timber joinery to highlight craft and connection

Sustainability: Renewable, low-carbon building material supporting ecological goals

Conceptual Alignment: Panelization and joinery as architectural metaphors for education, cultural exchange, and community connection

North

Star

Create a welcoming, teaching-forward kitchen where food is the medium for cultural exchange, dignity, and skill-building.

Every spatial and material decision must make learning visible, participation easy, and community ownership real.

Vision & Goals

Education through food

+Classroom/stage orientation; AV-ready teaching line.

+Workshops, demos, and shared meals s upported by smart storage.

Living archive

+Tools/recipes on display along movement paths.

+Rotating content doubles as wayfinding + curriculum.

Radical accessibility

+Barrier-free routes mapped to desire lines.

+Multi-height stations; clear street-to-teaching sightlines.

Street connection

+Glazed frontage telegraphs activity.

+Entry sequence invites passersby to join

Guiding Principles

Human → Site

+Align doors/views with how people actually arrive.

+Make pauses and gathering points intentional.

Excavation to Site

+Compress services; expand public workshop field.

+Expose structure where teaching happens.

Archive Exploration

+Modular wall docks carts/furniture.

+Room resets in minutes; culture stays visible.

Spatial Strategy

Public Spine (street side)

+integraded to sidewalk; the main entrance anchors teaching line.

Archive Wall (display + docking)

+Rotating tools/stories; dock/stow furniture fast.

Workshop Field (compress/expand)

+1200–1400 sf of semi outdoor space ; layouts shift depeding on season and program

Back-of-House Ring

+Dry/cold + dish in low-daylight; direct links to teaching.

Massing & Approach

+Low, legible volume on approach paths; transparent corner as beacon.

PROPOSED FOUNDATION PLAN

1 : MECH (HVAC)

2 : MECH ( PLUMBING)

3 : WINE STORAGE

4: DEEP ARCHIVE (XXSF)

5:FLEXIBLE GALLERY SPACE (XXSF)

6: MECH SPACE FOR WALL SYSTEM GROUND FLOOR PLAN

7: OUTDOOR FLEXI SPACE + KITCHEN

8: BATHROOM 1 (59 SF)

9: WALK IN FRIDGE

10: MAIN KITCHEN (722 SF)

11: FLEXI CLASS(600 SF) 12: BATHROOM 2 (WIP) ROOF PLAN

13: ROOF DECK IMBEDED

WEST ELAVATION

EAST ELAVATION

STREET TO SEAT CUISINES

+JAMAICAN

+JAPANESE

+INDIAN

+CHINESE

“Street food, I believe, is the salvation of the human race.”

On my day off, I rarely want to eat restaurant food unless I’m looking for new ideas or recipes to steal. What I want to eat is home cooking, somebody’s — anybody’s — mother’s or grandmother’s food. A simple pasta pomodoro made with love, a clumsily thrown-together tuna casserole, roast beef with Yorkshire.

Anthony Bourdain

Turn static files into dynamic content formats.

Create a flipbook
Issuu converts static files into: digital portfolios, online yearbooks, online catalogs, digital photo albums and more. Sign up and create your flipbook.