Portfolio EV

Page 1

PORTFOLIO

selected works
17/24
Emil Vrkić

Architect and Urban Designer

2013.- 2017.

2009. - 2012.

2004. - 2008.

CURRICULUM VITAE

EDUCATION

Faculty of Architecture I Zg

Graduate Study of Architecture and Urban Planning

Faculty of Architecture I St

Undergraduate Study of Architecture and Urban Planning

Gymnasium Franjo Petrić (ex. MIOC) I Zd General-program secondary school

WORK EXPERIENCE

2013. 2014. 2017. 2017-18. 2018.

2018-21. 2021-23. 2023-24.

3 month internship at Porticus St 3 month internship at 4uHa I Zg

8 month internship at ACES I Zd

Junior architect at HDA I Zd

Competition 1. prize

Zadarska kockica - New Zadar festival house

Junior architect at Architecture Square I Zd

Project architect at 3LHD I Zg

Freelance I Zg

name nationality date of birth current location driving license email phone linkedin

Emil Vrkić Croatian 05.05.1989. Zagreb, Croatia B

emil.vrkic@gmail.com +385 095 397 6006 www.linkedin.com/in/emil-vrkic about me contact

LANGUAGES

Native proficiency

Elementary Proficiency Croatian English German Dutch os office

Professional working proficiency (C2) Basic Proficiency (A1) Goethe Institut

COMPUTER SKILLS

Windows

Word

PowerPoint Excel

cad 2d cad 3d bim

Autocad

SketchUp pro 3dsMax

Archicad Revit image

EMIL
VRKIĆ
rendering
Lumion
Thea
3 2 curriculum vitae I I about me
Photoshop InDesign
Vray
render
PELEGRIN HOTEL Hotel
2022 MARASKA
Zd I 2022 OIV CAMPUS Zg I 2022 MARITIME
Zd I 2017 CONTENT 5 4 01 I p.6 02 I p.14 03 I p.22 04 I p.32 05 I p.40 selected works I I content
QUARRY REUSE Hotel Valkane I Pu I 2021
Pelegrin I Du I
HOUSING
MUSEUM

PROJECT TEAM:

Saša Begović, Marko Dabrović, Tatjana Grozdanić Begović, Silvije Novak, Paula Kukuljica, Zoran Šuša, Nicky Vojvodić, Emil Vrkić, Jure Živković I

RENDERING:

Mario Harni, Branimir Turčić I

LOCATION: Pula, Croatia I Year: 2022 I

SOFTWARE:

Archicad, 3dsMax, Vray, Photoshop I

I QUARRY REUSE

WHY ?

By rehabilitating the quarry which is the physical and visual limitation of development the network of public spaces and green areas is revitalized. The accomodation capacities of the City of Pula are improved. Restored green surfaces enriched with new content in the area of exploited landscape.

HOW ?

Reused barriers of the quarry are afirmated as the main rotor of territory development. The barrier is delaminated and becomes the main programmatic bridge between height differences. Visual and physical barrier of the quarry is activated. The surrounding landscape is connected through the added hotel program with the revitalized green parterre and the public surfaces by the sea. exploited landscape.

WHAT ?

It is a house that returns ambient and formal values to the “artificial nature” quarry which was created under the influence of man. It activates existing context and provides the possibility of change in accordance with different needs and wishes of permanent and temporary users.

7 6 01
Hotel Valkane I I 3LHD architects
rendering view from northwest I
9 8 Hotel Valkane I I 3LHD architects rendering site plan I 100 50 20 10 5 0
11 10 Hotel Valkane I I 3LHD architects axonometry room mix I IV. floor upper plateau public spaces I quarry edge existing
concept lower volume I executive suite 2M I x2 junior suite 2M x2 presidential suite 3M I x1 garden suite 1M I x27 standard double room 1M I x148
Fascade
13 12 Hotel Valkane I I 3LHD architects section lobby and pool I section kongres and wellness I 0 5 10 20
I rendering view from the pool

02 I PELEGRIN HOTEL

PROJECT TEAM:

Marko Dabrović, Saša Begović, Tatjana G. Begović, Silvije Novak, Paula Kukuljica, Uršula Juvan, Ivana Kazija, Zoran Šuša, Dragan Dodoš, Tamara Jeger, Aljoša Kotnjek, Ana Oršolić, Ivona Šimunović, Filip Tomaško, Emil Vrkić, Sanja Hokal I

RENDERING:

Mario Harni, Branimir Turčić I

LOCATION:

Kupari, Croatia I Year: 2022 I

SOFTWARE:

Archicad, 3dsMax, Vray, Photoshop I

KUPARI

Kupari was always one of the most glamorous resorts on Adriatic coast designed for military elite known as Croatian “Monte Carlo”.

HISTORY

Resort Kupari is situated on Adriatic coast, 6 km southeast of Dubrovnik. The nearest settlement Kupari is a part of Municipality of Župa Dubrovačka. The site is located between two hills; Goričina on the east and Pelegrin on the west. The beautiful natural pebble beach Kupari extends along the south boundary of the site.

HOTEL PELEGRIN

Originally was designed by architect David Finci in the 1960s and it was a part of the larger military resort Kupari together with hotel Grand, Goričina I and Goričina II.

15 14 Pelegrin hotel I I 3LHD architects
I rendering site plan
17 16 Pelegrin hotel I I 3LHD architects floor plan 1. floor I floor plan 4. floor I
I rendering view from lungomare
19 18 Pelegrin hotel I I 3LHD architects floor plan ground floor I floor plan -1. floor beach level I I rendering view from hotel I section 1-1
21 20 Pelegrin hotel I I 3LHD architects
I rendering view from lungomare

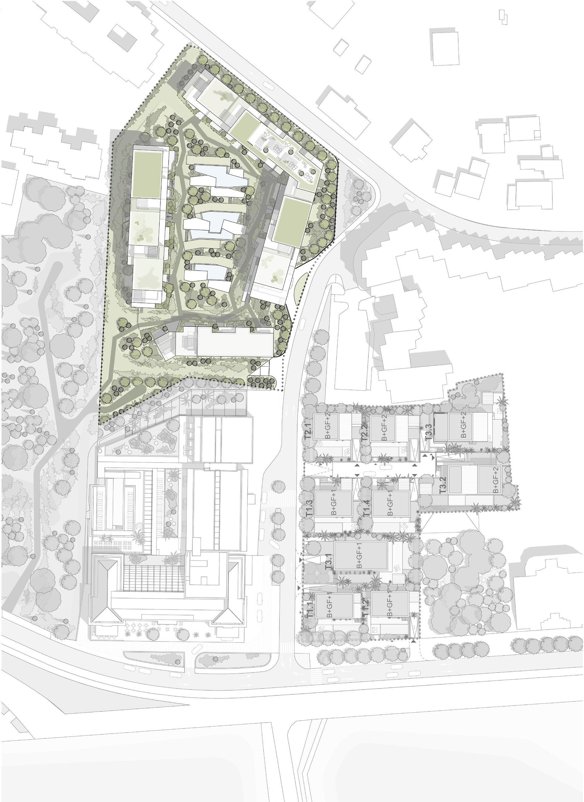
03 I MARASKA HOUSING

PROJECT TEAM: Saša Begović, Marko Dabrović, Tatjana Grozdanić Begović, Silvije Novak, Paula Kukuljica, Zoran Šuša, Vesna Jelušić, Monika Prinčić, Ivana Šajn, Emil Vrkić, Luka Šen I

RENDERING:

Mario Harni, Branimir Turčić, Jan Ružić I

LOCATION: Kupari, Croatia I Year: 2022 I

SOFTWARE: Archicad, 3dsMax, Vray, Photoshop I

MARASKA HOUSING

Passing by the hotel, we are coming to the site, our residential oasis hidden behind the hotel, just as the historical villas used to be hidden in the park behind the factory.

Our home has a modern appearance yet relaxed character. It is respectful of the old and noble ‘ladies’ around and doesn’t try to overshadow them. Extroverted windows are eager to communicate with the landscape while introverted garden protects our intimacy. We can take a short break in the owner’s lounge. It’s a place to enjoy fine coffee with the Maraschino liqueur served by our residential concierge.

MARASCHINO & HOTEL

The building of the Maraska, today a luxury hotel, still narrates the story about the liqueur which was of great importance to Zadar. The liqueur was first made in Dominican monastery under the name Rosolj, meaning sundew, whose pharmacist used the Marasca cherry to produce it. A couple of families fell in love with the taste and started the production of the cherry liqueur - Maraschino. One of these families was Luxardo, whose successor has made this impressive factory.

23 22 Maraska housing I I 3LHD architects
I site plan
25 24 Maraska housing I I 3LHD architects
I diagrams I rendering view from the sea I rendering main entrance
27 26 Maraska housing I I 3LHD architects
I rendering view from the sea
29 28 Maraska housing I I 3LHD architects I building A floor plan ground / 1. floor I building A floor plan 2. / 3. floor
31 30 Maraska housing I I 3LHD architects
I section A I section B I rendering view from the courtyard

PROJECT TEAM:

Saša Begović, Marko Dabrović, Tatjana G. Begović, Silvije Novak, Paula Kukuljica, Marijana Pivac, Ana Bjelić, Joško Kotula, Tamara Pavković, Emil Vrkić, Sofija Vrtarić, Dominik Žuvela I I site plan

RENDERING: Mario Harni, Branimir Turčić I

LOCATION: Kupari, Croatia I Year: 2022 I

SOFTWARE: Archicad, 3dsMax, Vray, Photoshop.

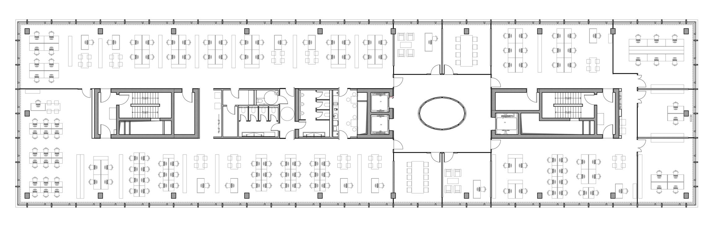
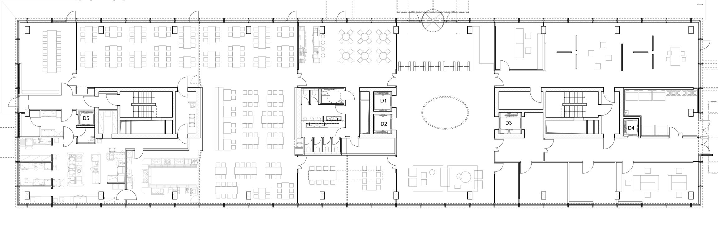
OIV CAMPUS

The construction of an office building with an antenna tower and a data center, as well as reserved space for the construction of a multimedia center in the future, is planned on a building plot of 13.366 m².

According to the spatial plan, the land is in the business construction zone, which allows the construction of a building up to eight floors above ground as well as two underground floors.

The land already has all infrastructure connections (gas, water, steam pipeline, sewage, electricity with a medium-voltage connection of sufficient capacity), and is connected by a core network of optical fibers. The land is only 5 minutes from the highway and approx. 10 minutes from Zagreb airport.

33 32 OIV campus I I 3LHD architects
04 I OIV CAMPUS
I rendering view from the south
35 34 OIV campus I I 3LHD architects
floor public spaces 1:400
1:400
I ground
I second floor offices
I rendering view from the northwest
37 36 OIV campus I I 3LHD architects
I facade southeast I axonometry I section longitudinal
39 38 OIV campus I I 3LHD architects
I section steel antenna column I section facade segment

05 I MARITIME MUSEUM

MARITIME MUSEUM

PROJECT TEAM: Emil Vrkić I

RENDERING: Mladen Ileš, Emil Vrkić I

LOCATION: Zadar, Croatia I Year: 2017 I

SOFTWARE: Autocad, SketchUp, Thea render, Photoshop I

The building with its function and form corresponds to the needs of the space it inhabits. It is located on the northwest part of the Zadar peninsula. The location is frequently visited by the locals and tourists , especially in the summer. With its relationship to the existing spatial qualities primarily the renaissance wall it corresponds to the inadequate use of the site as playground. The location for the Maritime museum is justified by public use, the theme of the museum and by the relevance of currently neglected and inadequate exhibition area.

Concieved as lamella it gives a logical urbanistic context to the street on the southeast side. Problems of privacy and attitude of the building towards existing structures on the northwest is resolved by positioning the service verticals adjacent to the problematic joint area. In that way the main function of the building is separated from the side facades of adjacent existing buildings. The main facade is left open towards the street, renaissance wall and newly formed introverted courtyard with public program.

41 40 Maritime museum I I Diploma project
I site plan
0 10 20 50
I rendering view from west I 1. floor site plan I -1. floor
Maritime museum I I Diploma project 43 42
I axonometry view from east
Maritime museum I I Diploma project 45 44
I axonometry view from south
Maritime museum I I Diploma project 47 46
I ground floor I roof plan I rendering interior
Maritime museum I I Diploma project 49 48
I rendering view from the street
Maritime museum I I Diploma project 51 50
I Fascade rendering expanded mesh I exploded axonometric
you for your time and feel free to contact me +385 095 397 6006 emil.vrkic@gmail.com I
Thank

Turn static files into dynamic content formats.

Create a flipbook
Issuu converts static files into: digital portfolios, online yearbooks, online catalogs, digital photo albums and more. Sign up and create your flipbook.