PORTFOLIO DARRICADES EMILIA

Page 1

Darricades, María Emilia

Arquitecta

Portfolio

Darricades, María Emilia

30 años Argentina +54 9 351 7559849 darricadesmed@gmail.com

Pabellón

Concurso

Año:

Localización:

El pabellón cuenta con aguas brasileñas, ríos y manglares. Elige el agua como tema central de discusión. El agua significa fertilidad de la vida y es el recurso natural más importante para la sostenibilidad global. Todo el lote está inundado por una fina capa de agua en una topografía continua.

Con un marco de acero tensado y tela blanca ligera, crea una pantalla capaz de recibir proyecciones, creando una atmósfera inmersiva de imágenes, sonidos, olores y temperatura variables. Es un lugar de animaciones y lugares de interacción con un marcado carácter escénico.

Al mismo tiempo, es un escenario para ver y experimentar la naturaleza y las culturas, tanto del pasado como del futuro. El programa de exhibición y servicio está contenido en un bloque de acero suspendido sobre la plaza de agua. En el área principal de exhibición, una ventana alargada brinda al visitante una nueva perspectiva del pabellón y las proyecciones. Debajo de este bloque, un restaurante y una tienda tienen lugar en una plataforma pavimentada con una vista de 360 grados del pabellón. El enfoque es preservar y promover la naturaleza y la sostenibilidad a través de la tecnología.

de Brasil en EXPO Dubai 2020
Internacional de Diseño - PRIMER PREMIO
2018
Dubai

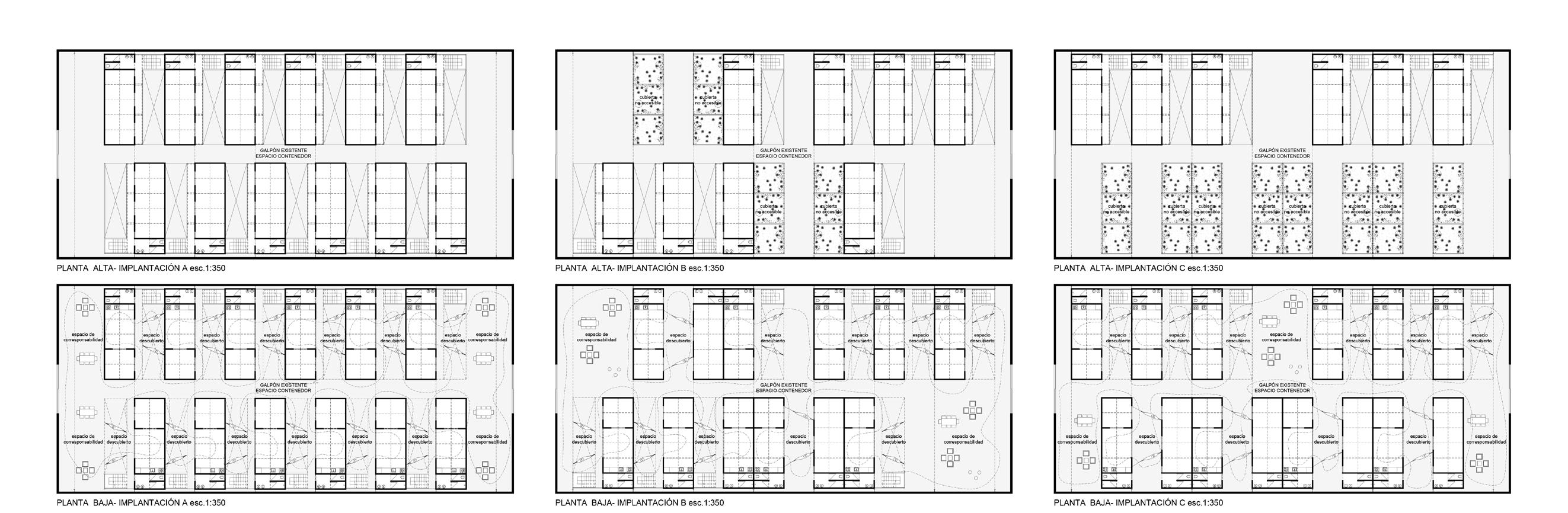
Prototipo de habitat sustentable

Concurso Nacional de diseño - PRIMER PREMIO

Finalista del premio LafargeHolcim 2021

Año: 2018

Equipo: Agustín Berzero - Valeria Jarós - Tomás Quaglia- Maximiliano Torchio

Para lograr un desarrollo urbano sostenible, es necesario promover un tejido urbano denso y compacto. El principal problema para e desarrollo de viviendas unifamiliares es la escasez y el alto costo de los terrenos. Por lo tanto, es fundamental reducir el uso del suelo a través de construcciones compactas.

La propuesta apuesta por la consolidación y regeneración del tejido urbano existente, consiguiendo una densidad urbana más adecuada. De esta forma, aprovecha la cercanía de los centros urbanos con sus oportunidades, logrando una mejor calidad de vida.

Un prototipo de vivienda debe basarse en lograr un desarrollo urbano más sustentable, ya que toda propuesta arquitectónica proyecta la ciudad. El habitante contemporáneo es esencialmente urbano; no es un usuario o familia típica, sino que requiere un hábitat flexible y cambiante que se adapte a las diferentes necesidades a lo largo del tiempo. El prototipo de vivienda debe adaptarse a múltiples usuarios y requerimientos, soportar diferentes ubicaciones y debe poder crecer y cambiar.

Nuestra propuesta es un prototipo sistematizado en módulos, con posibilidad de crecimiento interno. Esto significa que entiende la necesidad de crecimiento, proporcionando el módulo estructural para contenerlo.

La distribución permite un alto grado de adaptabilidad y ocupa un área reducida, lo que permite tanto su adaptabilidad a diferentes lotes como su amplia gama de unidades posibles. Se presenta una propuesta de vivienda, pero en realidad es una reflexión sobre un sistema modular que permite desarrollar viviendas asequibles con calidad espacial y material, contribuyendo al desarrollo urbano sostenible.

Conectando fronteras

Restauración del Río Urbano hacia una Ciudad Integrada Proyecto Destacado, Bienal Internacional de Arquitectura Argentina, 2018.

Mención de Honor, Concurso Proyecto Final de Grado: Repensar la Arquitectura.

Durante muchos años, los ríos fueron una fuente de transporte y energía que definió los cimientos de las ciudades. Pero con la industrialización de las ciudades, los ríos urbanos sufrieron cambios importantes en su estructura biofísica, que se hicieron más evidentes en los períodos industrial y posindustrial. En muchos casos, se convirtieron en bancos contaminados, fueron desviados, tapados, enterrados y olvidados. Los ríos urbanos son esenciales para la fundación de las ciudades y tienen varias características que los convierten en uno de los medios más importantes de cambio y transformación.

Los proyectos de restauración de ríos han demostrado ser una herramienta clave para la renovación urbana completa, al tiempo que fomentan espacios comunitarios funcionales e integrados. Los ríos urbanos deben ser restaurados considerando su condición y memoria natural con un enfoque sensible al agua. De esta forma, las ciudades pueden recuperar los espacios verdes urbanos, reducir el riesgo de inundaciones y aumentar la biodiversidad.

En Córdoba, el río Suquía tiene un gran potencial; atraviesa la ciudad de oeste a este impactando directamente a gran parte de la población urbana (58% vive a una milla del curso de agua). Bajo esta postura, se procedió a identificar las necesidades y características de las diferentes áreas ubicadas a ambos lados del río, con el fin de definir las posibles actividades e infraestructuras de cada sector. El río Suquía es una frontera en el corazón de la ciudad: funciona como una pieza fundamental de un rompecabezas. Nuestro objetivo es regenerar esta pieza faltante hacia una ciudad integrada de Córdoba.

Templo y escuela

Concurso Nacional de ideas - PRIMER PREMIO Año: 2020 Equipo: whith Manuel González Veglia, Tomás Bressa, Guadalupe González, Agustín García Haag

Espacio cultural y educativo para la memoria y la música

Concurso Nacional de ideas -SEGUNDO PREMIO

Año: 2020

Localización: Santa Fe, Arg.

Equipo: Carranza Vazquez studio, Manuel Gonzáles Vegrlia, Juan Murúa Palacios, Bruno Galetto

Pabellón Argentino

Concurso Internacional de Diseño - MENCIÓN Año: 2020 Equipo: Tabuenca Leache studio, Agustín Berzero, Valeria Jaros, Maximiliano Torchio

Pabellon expo

2023Concurso Internacional de Diseño - MENCIÓN Año: 2019 Equipo: Tomás Quaglia, Ana Isaía, Seizen Uheara, Agustín García Haag, Ariel Escurra
Reforma universidad Año: 2020 Equipo: Agustín Berezero, Manuel González Veglia

Educación para el futuro

Año: 2020 Equipo: Agustín García Haag, Ariel Escurra

Nuevos habitares

Año: 2020 Equipo: Agustín Berzero
Museo nacional del futbol Año: 2022

Centro cultural contemporaneo

Exploración Año: 2021 Maestría dirigida por: Angelo Bucci, Martín Benavidez, Mariano Faracci

Prototipo vernacular

Exploración Año: 2020 Maestría dirigida por: Roberto Busnelli, Federico Ferrer Deheza

Los bajos de los edificios altos

Año:

Maestría

Exploración
2020
dirigida por: Marcelo Faiden

Diseño urbano

Exploración Año: 2021 Maestría dirigida por: Nanzer, Giorgis

Diseño urbano

Exploración Año: 2021 Maestría dirigida por: Bares

Proyeto en galerías comerciales

Exploración Año: 2021 Maestría dirigida por: Sargiotti
FAB
LAB
Proyecto casa 2 vigas Año: 2021 26.85 5.45 0.20 12.03 1.25 6.30 0.25 0.83 0.25 4.84 0.25 1.88 0.12 1.53 0.12 1.37 5.60 0.25 4.75 0.25 21.20 26.85 0.30 0.30 6.80 0.25 5.700.45 0.20 1.150.951.004.801.202.751.80 0.25 0.75 3.90 0.25 1.10 9.33 0.20 2.30 0.95 0.25 13.40 21.20 0.25 0.25 3.62 0.12 1.720.85 0.25 5.45 1.35 4.75 0.25 1.15 0.73 0.12 1.52 0.15 1.15 0.20 7.60 4.80 1.00 0.25 0.95 0.25 4.97 0.12 0.25 1.50 0.35 2.10 0.15 0.65 0.25 1.08 0.95 2.90 0.90 0.25 S02 PB09 Estar Proy.Vacío Proy.Vacío Proy. losa Proy. losa Proy. viga 324 (INV) Proy. losa Proy.Vacío Proy.Vacío Proy.Vacío Proy.Vacío Proy. viga 360(INV) 25*130 Proy.Vacío Proy. viga MA1 Proy. viga 327 (INV) 20*25 Proy. viga 322 (INV) 0.25 0.650.88 0.12 0.13 0.25 1.251.003.20 0.25 1.750.80 0.20 9.651.65 0.20 4.334.93 0.20 0.20 1.37 0.25 C 301 VN 201 VEVO C 301 VS 202 C 302 C 302 C 303 C 303 CC304 C CC304 C 1.40 5.13 7.80 5.70 6.55 01 03 04 05 06 C D 02 1.00 4.00 14.75 1.20 AL1 510 AL2A AL2B 530 AL3 475 AL4 95 AL6 CH1 140 CH2 130 MA2 115 MA3 237 MA4 75 MA5 153 MA6 127 MA7 475 MA8 475 MA9 S01 PB10 Galería S03 PB04 Playroom S04 PB05 Baño S03 PB06 Dormitorio S03 PB01 Ingreso S04 PB02 Baño S03 PB03 Apoyo cochera S03 PB08 Lavadero S03 PB07 Cocina S04 PB11 Toilette S01 PB12 Quincho +/- 0.00 PB NPI 0.05 PB NPE 0.10 PB NPE S05 Patio S05 Patio -0.10 PB NPE -0.10 PB NPE +/- 0.00 PB NPI M2 M3 M1M2 baranda h: 0.95 4.65 6.30 60 2070 CH5 Asador MUEBLE 01 (M100) MUEBLE (M100) MUEBLE 03 (M100) MUEBLE 04 (M100) MUEBLE 05 (M100) M3 CC01 A-403 CC05 CC01 CC02 A-401 CC02 A-402 CC03 A-401 CC02 A-402 CC04 CC04 A-403 CC06 A-404 CC07 A-404 CC08 M3 M5 M3 M2 M1 M2 M5 M1 ZL.02 Z-200 ZL.01 Z-100 ZL.04 Z-400 ZL.03 Z-300 R1 M5 M5 Proy. lucera 0.10 TAB10 TAB11 TAB11 TAB12 TAB4 TAB5 TAB9 TAB8 TAB15 TAB14 TAB7 Proy. viga 359(INV) 25*130 Proy. viga 361(INV) 25*130 Proy. viga 363(INV) 25*130 Proy. viga 379(INV) 25*40 Proy. viga Tablero Eléctrico Caldera Proy. lucera TAB9 TAB9TAB9 TAB8 95 AL5 AP +0.80 AP +0.80 R4 proyección gárgola escalera marinera A-410 DT07 100 Muro Int-Ext (perímetro) Tabique de hormigón. Espesor 25cm. Terminación visto. Encofrado con tablas de 15cm de ancho Aislación: Plancha de poliestileno expandido 30kg/m3. Espesor 50mm. M1 Muro Ext-Ext (patios) Tabique de hormigón. Espesor 25cm. Terminación visto. Encofrado con tablas de 15cm de ancho M2 Muro Int Tabique de hormigón. Espesor 12cm. Terminación visto. Encofrado con tablas de 15cm de ancho M3 Muro Int-Ext Tabique de hormigón. Espesor 15cm. Terminación visto. Encofrado con tablas de 15cm de ancho M4 Muro Int Bloque cerámico portante 12x19x33 Mortero de asiento: 1:3 con cemento común 1%SIKA1. Tomar juntas horizontales verticales al ras. M5 Muro Ext Bloque cerámico portante 12x19x33 Mortero de asiento: 1:3 con cemento común 1%SIKA1. Tomar juntas horizontales verticales al ras. Tabique de hormigón. Encofrado para hormigón no visto s/DT. Impermeabilización de cara exterior del muro exterior: Bolseado 1:3 s/DT c/ 1% SIKA1. Terminación: SIKA Monotop 107 pintura asfáltica. MC Revestimiento INT Revestimiento interior para muros de mampostería hormigón Revoque grueso fino. Enlucido c/yeso. Pintura latex color s/DT. Cerámico/ porcelanato/ microcemento/estuco s/DT R1 Revestimiento INT Revestimiento interior general para baños Revoque grueso fino. Enlucido c/yeso. Pintura latex color s/DT. Cerámico/ porcelanato/ microcemento/estuco s/DT R2 Revestimiento INT Revestimiento interior general para cocinas Revoque grueso fino. Enlucido c/yeso. Pintura latex color s/DT. Cerámico/ porcelanato/ microcemento/estuco s/DT R3 Solado en galería, quincho Carpeta de nivelación. Terminación: granito S1 Solado en estar, dormitorios, playroom Carpeta de nivelación. Terminación: piso patagonia S2 Solado en ingreso, cocina, lavadero, dormitorio, apoyo de cochera Carpeta de nivelación. Terminación: granito S3 Solado en baños Carpeta de nivelación. Terminación: porcelanato S4 Solado en patios Carpeta de nivelación. Terminación: granza S5 MUROS REVESTIMIENTOS SOLADOS NOTAS: REFERENCIAS: AJUSTES: Ayacucho 2460 Cordoba (X500011B) tectum.proyecto@gmail.com MTS ITEM: ESCALA:UNIDADES: VJJ ENTREGA VERSIÓN RESP. ENTREGA RESP. RECEPCIÓN CONTENIDO: VJJ Santa María 1627 Córdoba aguberzero@hotmail.com 1/75 V22020/11/16 ARQUITECTURA Planta Baja A-103 VF222 25*40 V322 25*130 V240 30*25L1 (15) ZC2 40*100 LCA (12) LC (10) CUB1 S05 PB00 Patio VF214 25*40 VF202 25*40 L11 (17) VF130 25*40 V230 45*45 V331 25*40 L5 (15) S05 PB00 Patio S02 PB12 Quincho S01 PB10 Galería S02 SS18 Sala de Máquinas 170 AL13 475 AL4 06 05 04 03 0102 PB NV PB NPE PB NF +3.05 2.75 1.30 0.30 0.40 0.20 2.652.75 0.30 0.40 0.24 2.40 0.65 2.70 0.40 0.10 0.25 0.30 1.60 0.80 0.80 0.40 2.90 0.20 +2.65 -0.05 -0.15 -0.40 -0.70 -2.30 -3.10 -3.32 +3.05 +2.65 +/-0.00 -0.20 -0.40 -0.80 -3.00-3.10 -3.30 +3.95 +3.05 +2.65 -0.10 -0.40 -0.80 +2.65 -0.10 -0.40 -0.80 +0.90 -0.05 -0.70 -3.10 -3.30 PB NF PB NP PB NC PB NPE PB NPE PB NPE SS NC SS NAP SS NPI SS NF N. Viga PT Cielorraso PB N. Parapeto PT Muro de Hormigón visto (entablillado vertical) Losa de Hormigón visto Viga de Hormigón visto CUB2 M2 R2 M5 MC M1 MUEBLE 04 (M100) (M100) VF250 25*40 VF252 25*40 VF254 25*40 A-406 DT01 A-401 CC01 ZL.02 Z-200A-406 DT02 MUEBLE 05 (M100) MF (M100) TAB9 TAB9 TAB9 TAB9 CORTE 1-1 TAB2TAB2 S01 PB10 Galería VF136 25*25ZC2 40*100 VBP1 20*45 V236 45*45 V240 30*25 L5 (15) L2 (15) LCA (10) LP1 (12) LP2 (12) LC (10) L10 (25)L09 (17) V324 25*130 V320 25*40 TAB6 VF220 25*40 VF206 25*40 CUB1 CUB2 PB NV +4.05 0.22 2.40 0.65 2.70 1.30 1.05 0.25 0.10 0.25 0.30 1.60 0.80 1.65 1.40 0.20 1.30 2.75 0.30 0.40 2.70 0.25 1.05 0.80 1.07 0.33 +3.15 +2.75 +/-0.00 -0.30 -0.70 +4.05 +3.15 +2.75 +0.10 +0.30 +0.70 +4.05 +3.00 +2.75 +0.05 +0.10 -1.30 +0.05 -0.28 -1.23 -2.90-3.00 -3.20 +4.05 +3.00 +2.75 +0.05 -0.05 -0.30 -0.60 -2.20 -3.00 -3.32 +0.90 +0.60 -3.00 -3.20 PB NP PB NC PB NPE PB NF PB NF PB NV PB NA PB NC PB NPE PB NPE PB NV PB NAP PB NPI PB NF PB NC 17.50m2 S02 SS13 Dormitorio S02 PB09 Estar S05 Patio 490 510 AL9 1335 530 Muro de Hormigón visto (entablillado vertical) Losa de Hormigón visto Viga de Hormigón visto Tanque de Reserva Affinity Classic M2 MC MUEBLE 05 (M100) A-407 DT03 VF260 25*25 CAB1 80*80*100 TAB14 MUEBLE 01 (M100) 06 05 04 03 0102 ZC1 TABP3 M1 MA10MA11 (M100) COL1 TAB15TAB14 S02 SS13 Dormitorio A-403 CC06 A-402 CC04 CORTE 2-2 A-403 CC05 LCA (12) Muro Int-Ext (perímetro) Tabique de hormigón. Espesor 25cm. Terminación visto. Encofrado con tablas de 15cm de ancho Aislación: Plancha de poliestileno expandido 30kg/m3. Espesor 50mm. M1 Muro Ext-Ext (patios) Tabique de hormigón. Espesor 25cm. Terminación visto. Encofrado con tablas de 15cm de ancho M2 Muro Int Tabique de hormigón. Espesor 12cm. Terminación visto. Encofrado con tablas de 15cm de ancho M3 Muro Int-Ext Tabique de hormigón. Espesor 15cm. Terminación visto. Encofrado con tablas de 15cm de ancho M4 Muro Int Bloque cerámico portante 12x19x33 Mortero de asiento: 1:3 con cemento común 1%SIKA1. Tomar juntas horizontales verticales ras. M5 Muro Ext Bloque cerámico portante 12x19x33 Mortero de asiento: 1:3 con cemento común 1%SIKA1. Tomar juntas horizontales verticales ras. Tabique de hormigón. Encofrado para hormigón no visto s/DT. Impermeabilización de la cara exterior del muro exterior: Bolseado 1:3 s/DT c/ 1% SIKA1. Terminación: SIKA Monotop 107 + pintura asfáltica. MC Revestimiento INT Revestimiento interior para muros de mampostería hormigón Revoque grueso + fino. Enlucido c/yeso. Pintura latex color s/DT. Cerámico/ porcelanato/ microcemento/estuco s/DT R1 Revestimiento INT Revestimiento interior general para baños Revoque grueso + fino. Enlucido c/yeso. Pintura latex color s/DT. Cerámico/ porcelanato/ microcemento/estuco s/DT R2 Revestimiento INT Revestimiento interior general para cocinas Revoque grueso + fino. Enlucido c/yeso. Pintura latex color s/DT. Cerámico/ porcelanato/ microcemento/estuco s/DT R3 Solado en galería, quincho Carpeta de nivelación. Terminación: granito S1 Solado en estar, dormitorios, playroom Carpeta de nivelación. Terminación: piso patagonia S2 Solado en ingreso, cocina, lavadero, dormitorio, apoyo de cochera Carpeta de nivelación. Terminación: granito S3 Solado en baños Carpeta de nivelación. Terminación: porcelanato S4 Solado en patios Carpeta de nivelación. Terminación: granza S5 MUROS REVESTIMIENTOS SOLADOS NOTAS: REFERENCIAS: AJUSTES: Ayacucho 2460 Cordoba (X500011B) tectum.proyecto@gmail.com MTS ITEM: ESCALA:UNIDADES: VJJ ENTREGA VERSIÓN RESP. ENTREGA RESP. RECEPCIÓN CONTENIDO: VJJ Santa María 1627 Córdoba aguberzero@hotmail.com 1/75 V22020/11/16 ARQUITECTURA Corte 1-1 Corte 2-2 A-301

casas

Proyecto
Manantiales Año: 2021 R3 M1 R1 R1 M2 R1 R1 M2 R1 272 AL7 220 AL6 220 AL6 Z0-05 Z0-05 35 AL8 75 MA2 75 MA2 75 MA2 90 MA3 R3 M1 R1 35 AL8 +3.05 PA NPI Z0-06 Z0-06 B 01 03 04 C 6.00 02 2.13 DA 2.393.17 3.95 5.72 1 AR006 2 AR006 3 AR007 VS VN VE AR005 VO AR005 1 AR006 AR006 AR007 45AR008 45AR008 6 6 S02 PB10 Baño S05 PB05 Dormitorio S05 PB07 Dormitorio S02 PB08 Baño S05 PB06 Dormitorio R3M1R1 R1M1R4 R1M1R4 R3 M1 R1 R3 M1 R1 R3 M1 R1 R3 M1 R1 R1M2R1 243 AL9 75 MA2 R4M2R1 R4M2R1 R4M2R1 R4M2R1 R1M2R1 Mueble 3 Mueble 4 Mueble 5 Mueble 6 Mueble 10 Mueble 9 vacío sobre patio vacíosobrepatio vacío sobre tender Mueble 8 V166 (20*40)INV V163 (20*40)INV V156 (20*40)INV V153 (20*40)INV V103 (20*40)INV V102 (20*40)INV V101 (20*40)INV V150 (20*40)INV V157 (20*40)INV V115(20*40)INV V116(20*40)INV 2.96 0.20 11.76 0.85 0.20 0.22 2.80 0.16 1.22 1.60 0.22 2.18 0.20 0.88 5.92 0.20 3.75 0.20 2.96 0.20 0.22 2.80 0.16 1.22 1.60 0.22 2.18 0.20 2.81 0.20 0.22 2.80 0.16 0.90 0.34 0.14 1.44 0.22 0.22 0.16 0.16 0.22 conducto de ventilación 0.15 DT01 CC01 DT03 CC03 CV cocina CM1_V1_Planimetría Plantas.dwg Estudio Montevideo Manantiales/Córdoba/Argentina Guillermo Alonso MP: 1-9954 P4 CM1 ARQUITECTURA Planta Baja 01 VIVIENDA UNIFAMILIAR PLANTA ALTA Emilia Darricades nombre archivo 1:75 mts. AR03 01 R1 R210 TERRAZA SEMICUBIERTA 05 S01 C01 Terminacion de cielorraso Terminacion del solado Numero de Local Nombre del Local Revestimiento local Izq. Tipo Muro Revestimiento local Der. 1.50 PV2 1.50 PV2 Nombre Ancho Carpinteria VER ZONAL ZO-01 Cota de nivel+/- 0.00 Numero de plano Losetones cribados esp:7cm Vinílico color roble esp: 4.5mm Granza Losetones prefabricados horm. Rev. baños (zonal) Cemento alisado Listones laurel 1´1, sep. 3mm Ladrillo refractario esp: 2cm Rev. cocinas esp: 2cm (zonal) Rev.baños esp:2cm (zonal) R.Gr.+ Rev.plast.+Pint.esp:2cm Ladrillo común esp: 6cm R.Gr.+ Enl. yeso+ Pint. esp:2cmMuro cribado Muro ladrillo común esp:12cm Muro ladrillo ceramico esp: 8cm Muro ladrillo ceramico esp: 12cm Muro ladrillo ceramico esp: 18cm R1M1R3 100 AL1 326 AL5 282 AL2 60 ES1 60 MA1 103 AL3 85 CH R2 M2 R1 +/- 0.00 PB NPI 0.03 PB NPE 0.10 PB NPE 0.03 PB NPE 0.10 PB NPE Z0-02 Z0-02 Z0-01 Z0-01 Z0-03 Z0-03 Z0-04 Z0-04 +/- 0.00 PB NPI B 01 03 04 C 02 2.13 DA 2.393.17 3.95 5.72 AR006 2 AR006 3 AR007 VS VN AR004 VE AR005 VO AR005 AR006 2 AR006 3 AR007 45AR008 45AR008 6 6 R2 M2 R5 R7 M2 R7 R3 M3 R6 R2 M2 R6 R3 M1 R5 M5 R3M1R1 R1M2R4R1 M2 R4 M5 R3M1R1R3M2R3 R5 M2 R1 R6 M2 R3 585 AL4 S01 PB01 Cocina S01 PB02 Comedor S01 PB03 Estar S02 PB04 Toillete S04 Patio S03 Galería S06 Cochera S04 Patio S04 Tender Mueble Mueble depósito proyeccion de vacio Proyección planta alta proyecciondevacio DT01 CC01 CC02 C3 (10*10) Ce2 (12*18) Ce3 (12*12) Ce3 (12*12) C17(18*18) C20(10*10) Ce3 (12*12) Ce3 (12*12) C2 (10*10) C1 (10*10) C5 (30*18) C6 (50*18) C4 (50*18) Ce3 (12*12) Ce1 (18*18) C14(18*18) C18(10*10) C9 (30*18) C19(10*10)C15(18*18) C16(30*18) Ce3(12*12) C10(30*18) C11(12*30) V166 (20*40)INV Ve4 (20*40)INV V163 (20*40)INV Ve3 (12*20) Ve3 (12*20) V156 (20*40)INV V153 (20*40)INV V103 (20*40)INV V102 (20*40)INV V101 (20*40)INV V105 (18*60)INV V150 (20*40)INV V115(20*40)INV V116(20*40)INV 2.96 0.20 11.760.22 4.02 0.16 0.63 0.16 2.18 0.20 12.00 0.20 0.20 0.20 2.96 0.20 0.22 3.38 0.16 0.78 0.46 1.00 0.22 2.18 2.96 0.20 0.22 3.38 0.22 4.58 0.20 2.67 0.22 1.19 0.59 1.000.22 6.18 0.12 proy. alacena caldera dual DT03 CC03 1.03 proyeccion ventilacion caldera dual a tender CM1_V1_Planimetría Plantas.dwg Estudio Montevideo Manantiales/Córdoba/Argentina Guillermo Alonso MP: 1-9954 P4 CM1 ARQUITECTURA Planta Baja 01 VIVIENDA UNIFAMILIAR PLANTA BAJA Emilia Darricades nombre archivo 1:75 mts. AR04 01 R1 R210 TERRAZA SEMICUBIERTA 05 S01 C01 Terminacion de cielorraso Terminacion del solado Numero de Local Nombre del Local Revestimiento local Izq. Tipo Muro Revestimiento local Der. 1.50 PV2 1.50 PV2 Nombre Ancho Carpinteria VER ZONAL ZO-01 Cota de nivel+/- 0.00 Numero de plano Losetones cribados esp:7cm Vinílico color roble esp: 4.5mm Granza Losetones prefabricados horm. Rev. baños (zonal) Cemento alisado Listones laurel 1´1, sep. 3mm Ladrillo refractario esp: 2cm Rev. cocinas esp: 2cm (zonal) Rev.baños esp:2cm (zonal) R.Gr.+ Rev.plast.+Pint.esp:2cm Ladrillo común esp: 6cm R.Gr.+ Enl. yeso+ Pint. esp:2cmMuro cribado Muro ladrillo común esp:12cm Muro ladrillo ceramico esp: 8cm Muro ladrillo ceramico esp: 12cm Muro ladrillo ceramico esp: 18cm
Proyecto casa Pilar Año: 2021 líneaderetiro líneaderetiro línea de retiro línea de retiro 31.53 ST/SC/SM 381 AL14 45 AL16 100 AL17 45 AL16 45 AL16 333 AL18 384 AL19 352 AL20 90 AL12 142 AL13 80 MA2 80 MA2 80 MA2 80 MA2 80 MA2 100 MA3 122 CH9 122 CH9 90 CH10 90 CH10 90 CH10 S01 PA1 Estudio S01 PA2 Lavadero S03 Tender S01 PA3 Baño S01 PA4 Antebaño S01 PA5 Dormitorio S01 PA6 Dormitorio S01 PA7 Dormitorio S01 PA8 Vestidor S01 PA9 Ducha S01 PA10 Baño S01 PA11 Antebaño S03 Patio S03 Patio VO 202 8 3047 9 305 10 11 306 12 306 VS 1 301 2 301 3 302 4 302 5 303 6 303 VO 202 8 3047 9 305 10 11 306 12 306 VS 1 301 2 301 3 302 4 302 5 303 6 303 Z0-09 Z900 Z0-10 Z1000 Z0-11 Z1100 Z0-12 Z1200 Z0-13 Z1300 Z0-14 Z1400 M1 M1 M4 R2 M1 R2 R2 M1 R2 R2 M1 R2 R2 M1 R2 R3 M1 R1 R1 M1 R3 R1M1R3 R2 M1 R1 M1 R1 M1 R2 R1M1R2 M3 M4 M3 R1 M1 R2 M4M1 R1 R2 R2 M1 R1 R3M1R1 R1M1R2 R2 M1 R3 5.27 1.94 1.12 2.02 6.58 0.45 1.02 0.92 1.08 0.45 0.70 1.03 0.31 0.31 3.33 0.12 3.84 0.12 3.83 0.91 1.50 3.81 0.31 3.10 0.70 0.16 1.00 0.50 0.17 1.12 0.31 1.50 0.14 3.10 0.70 0.16 1.00 0.31 3.94 0.31 0.90 0.50 0.31 0.14 3.80 0.16 0.50 1.49 0.50 0.14 1.22 0.15 1.23 0.31 1.60 0.13 0.14 3.31 0.16 3.80 0.16 3.50 3.00 1.80 0.19 1.93 0.16 0.90 0.510.31 2.50 0.31 1.00 0.900.16 2.25 0.31 0.22 3.15 0.16 0.98 0.16 2.67 1.71 1.50 0.78 0.13 144 AL15 C1 (18*17) CM2 (2UPN120) CM2 (2UPN120) C2 (18*17) C8 (18*18) C9 (12*30) C13 (12*12) C14 (12*12) C26 (18*18) C24 (30*18) C23 (30*18) C21 (18*18) C16 (18*17) C17 (12*30) C18 (18*18) C19 (18*18) C20 (18*18) Proyección Ve1 (17*40) R2 M2 R3M2 1.95 0.29 1.00 0.29 0.901.71 0.29 1.52 0.29 5.21 1.41 0.30 2.13 0.32 0.80 0.59 0.32 0.81 3.00 PA NPI A-401 CC01 A-404 CC04 A-402CC02 A-403CC03 80 MA2 +2.95 PA NPE +2.95 PA NPE +2.95 PA NPE muro apoyo h:1.00 NOTAS: REFERENCIAS: AJUSTES: www.muarquitectura.com.ar MTS ITEM: ESCALA:UNIDADES: ENTREGA VERSIÓN RESP. ENTREGA RESP. RECEPCIÓN CONTENIDO: CP darricadesmed@gmail.com DARRICADES EMILIA ARQUITECTA MU ARQUITECTURA 1. Este documento contempla la disposiciòn general de los paramentos elementos de proyecto modo de ìndice global. 2. Las medidas especificaciones relativas paramentos seràn verificadas en obra s/DT junto contritistas proveedores asignados. 3. Las medidas especificaciones relativas carpinterìas equipaminto se desarrollan en los documentos correspondientes. MUROS M1. Bloque ladrillo cerámico portante (12*18*33) M2. Bloque ladrillo cerámico no portante (8*18*33) M3 Ladrillo común visto (12*5.5*26) M4 Cribados ladrillo común visto. Traba tradicional REVESTIMIENTOS R1 Ladrillo común visto (12*5.5*26) R2 Rev. grueso enlucido yeso pint. interior R3 Cerámico (a definir) Se recomienda venecita o subway SOLADOS S1 Porcelanato madera (a definir) S2 Ladrillo común visto S3 Porcelanato exterior (a definir) 1/50 V12021/08/01 ARQUITECTURA Planta Alta A-103 líneaderetiro líneaderetiro línea de retiro línea de retiro 31.53 ST/SC/SM VO 202 87 9 305 10 305 11 306 12 306 VS201 1 301 2 301 3 302 4 302 5 303 6 303 VO 202 87 9 305 10 305 11 306 12 306 VS 201 1 301 2 301 3 302 4 302 5 303 6 303 150 CH2 336 AL1 30 AL3 30 AL4 60 AL5 314 AL6 334 AL7 385 AL8 292 AL9 250 AL10 149 AL2 90 CH5 271 CH6 120 CH1 250 CH3 120 CH1 220 CH4 469 CH7 198 CH8 247 MA1 80 MA2 80 MA2 S01 PB09 Cocina +/- 0.00 PB NPI S01 PB03 Estudio S01 PB02 Living S01 PB04 Ingreso S01 PB01 Estar S01 PB05 Toilette S01 PB06 Baño S01 PB07 Dormitorio Serv. S01 PB10 Comedor S02 Patio S03 Depósito S03 Cochera -0.05 PB NPE -0.05 PB NPE -0.10 PB NPE -0.05 PB NPE -0.05 PB NPE -0.10 PB NPE acceso vehicular acceso peatonal proy. vacío patio proy. alero proy. pérgola proy. alero planta alta proy. alero planta alta proy. pérgola proy. pérgola proy. pérgola proy. pérgola S01 PB08 Lavadero R1 R3 Z0-02 Z200 Z0-04 Z400 Z0-03 Z300Z0-05 Z500 Z0-06 Z600 Z0-07 Z700 Z0-08 Z800 R1 R3 M3 R1 M1 R2 M1 R2 M1 R2 R2 M1 R2 R2 M1 R2 R2 M1 R2 R2 M1 R2 R2 M1 R3 R1M1R2 M3 R1M1R2 80 MA2 M3 M3 R1 R2 R1 R2 R1 R2 R1M1R2 R1 R2 R1M1R2 4.42 1.16 1.20 1.52 1.203.50 0.29 2.71 0.97 3.14 3.39 1.07 2.36 0.30 0.05 1.75 0.31 0.12 0.12 1.47 0.85 3.36 2.89 5.44 0.33 2.25 0.16 0.90 1.02 0.29 2.50 0.29 2.92 0.60 0.31 0.91 0.690.310.69 0.91 0.93 0.90 1.02 2.50 2.92 0.14 0.83 3.34 0.11 3.84 0.12 2.92 1.72 0.92 1.92 0.29 3.86 0.33 0.32 2.40 1.92 0.29 2.47 1.74 5.20 0.90 1.01 0.29 1.19 0.12 1.40 0.31 1.13 1.20 1.48 0.94 0.16 0.50 2.39 0.16 1.41 1.16 0.31 3.80 0.16 2.92 0.31 5.39 0.93 0.80 0.31 1.49 0.31 3.80 0.31 3.00 0.31 1.16 0.70 1.03 1.80 0.31 1.47 3.92 0.70 1.08 0.20 1.06 0.50 0.31392 AL11 0.14 C1 (31*17) C20 (18*18) C15 (18*18) C12 (18*18) C7 (18*30) C2 (31*17) CM2 (2UPN120) CM1 (2UPN120) CM3 (100*100*2.5) CM3 (100*100*2.5) C6 (18*30) C5 (18*30) C11 (18*18) C10 (18*18) C19 (18*18) C18 (18*18) C17 (12*30)C4 (12*30) C3 (18*30) C22 (18*18) C25 (18*18) CM3 (100*100*2.5) CM3 (100*100*2.5) CM3 (100*100*2.5) V58 (18*50)INV V50 (18*25) V14 (18*52)INV CM3 (100*100*2.5) 0.12 1.16 0.31 2.71 0.29 1.20 0.16 1.20 0.16 1.20 0.16 1.15 0.16 3.80 0.31 1.32 3.92 0.941.41 0.70 1.01 2.13 S03 Galería S03 Ingreso A-401 CC01 A-404 CC04 CC02 A-403 -0.10 PB NPE Z0-01 Z100 NOTAS: REFERENCIAS: AJUSTES: www.muarquitectura.com.ar MTS ITEM: ESCALA:UNIDADES: ESTE DOCUMENTO FUE CONFECCIONADO POR DARRICADES MUARQUITECTURA. PROHIBIDA SU REPRODUCCION O USO PARA FINES NO AUTORIZADOS ENTREGA VERSIÓN RESP. ENTREGA RESP. RECEPCIÓN CONTENIDO: CP darricadesmed@gmail.com DARRICADES EMILIA ARQUITECTA MU ARQUITECTURA 1. Este documento contempla la disposiciòn general de los paramentos elementos de proyecto modo de ìndice global. 2. Las medidas especificaciones relativas paramentos seràn verificadas en obra s/DT junto contritistas proveedores asignados. 3. Las medidas especificaciones relativas carpinterìas equipaminto se desarrollan en los documentos correspondientes. MUROS M1. Bloque ladrillo cerámico portante (12*18*33) M2. Bloque ladrillo cerámico no portante (8*18*33) M3 Ladrillo común visto (12*5.5*26) M4 Cribados ladrillo común visto. Traba tradicional REVESTIMIENTOS R1 Ladrillo común visto (12*5.5*26) R2 Rev. grueso + enlucido yeso + pint. interior R3 Cerámico (a definir) Se recomienda venecita subway SOLADOS S1 Porcelanato madera (a definir) S2 Ladrillo común visto S3 Porcelanato exterior (a definir) 1/50 V12021/08/01 ARQUITECTURA Planta Baja A-104
Maquetas

Turn static files into dynamic content formats.

Create a flipbook
Issuu converts static files into: digital portfolios, online yearbooks, online catalogs, digital photo albums and more. Sign up and create your flipbook.
PORTFOLIO DARRICADES EMILIA by Emilia Darricades - Issuu