

PORTFOLIO EMERY
SNYDER
DRURY UNIVERSITY ‘26
UNDERGRADUATE PORTFOLIO
HELLO, I’M EMERY

Hi! I’m Emery Snyder. Thank you for viewing my portfolio!
I am an enthusiastic and diligent architecture student, with a passion for designing spaces that are innovative and sustainable. I blend my big-picture vision and eye for detail to create interior and exterior spaces that are equally creative and functional. Sustainability is the foundation of my work and my philosophy. I am committed to designing buildings that are environmentally responsible and energy-efficient.
I am currently a fourth year architecture student at Drury University in Springfield, Missouri. In 2026, I will graduate with a Master of Architecture degree. Throughout my academic career, I have had the opportunity to learn from talented professors and architects who have imparted their valuable knowledge and provided guidance. My education and hands-on training have given me a strong foundation in architecture history, theory, and technical skills. I am knowledgable with Revit, Twinmotion, and Adobe products.
I enjoy learning from and drawing inspiration from my surroundings. Last semester, I lived in Japan for three months, studying the architecture of Kyoto, Tokyo and various other prefectures. My time living and studying there will undoubtedly have a significant impact on my future work. I was moved by the history and fine details of the architecture there and look forward to the opportunity to incorporate what I have learned into my work.
I pick things up quickly, causing me to collect hobbies. I enjoy creative outlets that let me keep my brain working. I enjoy sewing, painting, baking, drawing, crocheting, pressing wild-flowers, 3d printing, jewelry making, playing guitar, rock climbing and cooking. I am a huge plant enthusiast, and have as many plants as you can fit in a campus apartment.
Thank you for visiting my portfolio. Please explore my work and see how my designs come to life. If you have any questions, please feel free to reach out.
Contact Information:
emerysnyder7@gmail.com
573-999-6426
Columbia, MO
PET-FRIENDLY STUDENT HOUSING
(3D CONCRETE PRINTED) FALL ‘23
.01 .02 .03 .04
EV WAY STATION
SPRING ‘23

TEA CEREMONY SCHOOL
SPRING ‘24

KOMBUCHA BREWERY
SPRING ‘23
PET-FRIENDLY STUDENT HOUSING
FALL ‘23
PROJECT DETAILS: TIME: 8 WEEKS
LOCATION: SPRINGFIELD, MO - DRURY UNIVERSITY CAMPUS
PROJECT DESCRIPTION: Pet-friendly student housing that can be 3D printed using a 30’x50’ MudBots Printer
CONCEPT: I am designing student housing that prioritizes the needs of pets and their owners equally. The spaces within this structure will be connected to nature, promoting brain function for the students as well as providing a relaxing space for the students and their pets. This will allow the students and pets to live together comfortably and meet both of their needs.

SITE PLAN
AXONOMETRIC
ENTRY LEVEL PLAN

CONCEPT DIAGRAMS


SECTIONS





DIAGRAMS

SPACES: HUMAN VS. PET VS. SHARED

USE OF CUSTOM WALL DESIGN

CIRCULATION HEIRARCHY
ELEVATIONS

NORTH

WEST

EAST

SOUTH
PROCESS WORK









MODELS






3D RENDERED VIEWS








TEA CEREMONY SCHOOL
SPRING ‘24
PROJECT DETAILS:
TIMELINE: 12 WEEKS
LOCATION: GION AREA, KYOTO, JAPAN
PROJECT DESCRIPTION: A school to teach kids in Japan how to perform a traditional tea ceremony
CONCEPT: Providing students with a grounding environment through simple forms and organization and traditional Japanese materials/tones. The program will include multiple meditation spaces dispersed throughout the education spaces. This will provide easy access to the meditation spaces and spaces for different kinds of meditation. The goal is to remove all of the distractions in life, to center yourself around your energy and your purpose.

CONCEPT DIAGRAMS






AXONOMETRIC RENDERED IMAGES
FLOOR PLANS

FIRST FLOOR

SECOND FLOOR

THIRD FLOOR

FOURTH FLOOR
ELEVATIONS




PROGRAM RELATIONSHIP

MASSING



DIAGRAMS

PEDESTRIAN CIRCULATION

MASSING - MEDITATION SPACES

MAIN ROADS

WATERWAYS

NATURAL LIGHTING



EV WAY STATION
SPRING ‘23
PROJECT DETAILS:
TIME: 5 WEEKS
LOCATION: FORT COLLINS, COLORADO
PROJECT DESCRIPTION: An electric vehicle charging station and rest stop
CONCEPT: I am studying the climate in Fort Collins, Colorado and the needs of a traveling family. This is done so that I can create a space that responds to the natural environment while providing a traveling family with resources to meet needs they may have along their journey. The structure is designed to give each family member a break from each other while also allowing easy access and monitoring within the family. The form of the structure should respond to the natural environment and high speed winds in Colorado.

WIND DIAGRAMS



AXONOMETRIC

ELEVATIONS

NORTH


SECTIONS

SOUTH WEST

DIAGRAMS

CIRCULATION
EAST


VEHICLE CIRCULATION

VIEWS & ADJACENCIES
MODEL






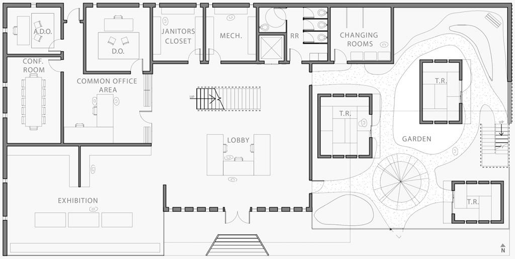
KOMBUCHA BREWERY
SPRING ‘23
PROJECT DETAILS:
TIME: 9 WEEKS
LOCATION: ROGERS, ARKANSAS
PROJECT DESCRIPTION: A kombucha brewery featuring a live performance area
CONCEPT: This building will encapsulate the growth and revitalization within downtown Rogers and the benefits of kombucha. The building will effectively respond to the historical downtown context while also introducing a beverage gaining popularity, allowing the structure to transition seamlessly into the future of the town. SITE PLAN

AXONOMETRICS

FLOOR PLANS

FIRST FLOOR PLAN

SECOND FLOOR PLAN
ELEVATIONS


NORTH

SECTIONS
EAST SOUTH

EAST TO WEST

NORTH TO SOUTH
MODELS









STUDY ABROAD SKETCHES
























LIGHTING SERIES











COLLEGE ART












HS ART











