Primer Parcial - Estudio de Iluminación y Climatización

Page 1

Universidad Acción Pro Educación y Cultura

EstudiodeIluminaciónyClimatización

Grupo 5

Integrantes:

Miqueas De La Cruz / A00109575

Emely Pantaleón / A00108658

Leslie Peña / A00108198

Shairin Perdomo / A00108634

Yeuris Pichardo / A00108507

Carmen Rosario / A00109582

PRIMER PARCIAL

Prof. Arq. Olga Roberts

ÍNDICE

Introducción

Localización y Ubicación

Planta arquitectónica

Planta dimensionada

Planta zonificación

Análisis del Proyecto (Demandas e imágenes existentes del lugar a diseñar)

1.

Demandas visuales

2.

Demandas estéticas

3. Determinar

Demandas Psicológicas

Planificación Básicas (Sistemas, Métodos, Aparatos de alumbrado)

1.Sistema de Iluminación (directo, indirecto, difuso, semidirecto, semi indirecto)

2.Métodos de alumbrado (General. General localizado. Localizado. Individual)

3.Aparatos

Por áreas 1.

Sistemas de iluminación

2.

Aparatos de alumbrado (Reflectores, Difusores, Refractores)

Tipo de alumbrado (fluorescente, incandescente, halógena, ETC)

Luz natural

Conclusiones

Aportes

INTRODUCCIÓN

El presente trabajo tiene como objetivo realizar un análisis del método y sistema de alumbrado del Restaurante Mr. Grilled Kitchen, ubicado en la Av.

Gustavo Mejía Ricart 44, Santo Domingo. Su misión es satisfacer las necesidades gastronómicas de los clientes, preparando y ofreciendo alimentos y servicios de la mas alta calidad.

LOCALIZACIÓN Y UBICACIÓN

RepúblicaDominicana

Localizado en Ubicado en

Santo Domingo, Distrito Nacional, República Dominicana

Mr. Grilled Kitchen, Av. Gustavo Mejía Ricart 44, Santo Domingo.

PLANTA ARQUITECTÓNICA

MR. GRILLED KITCHEN

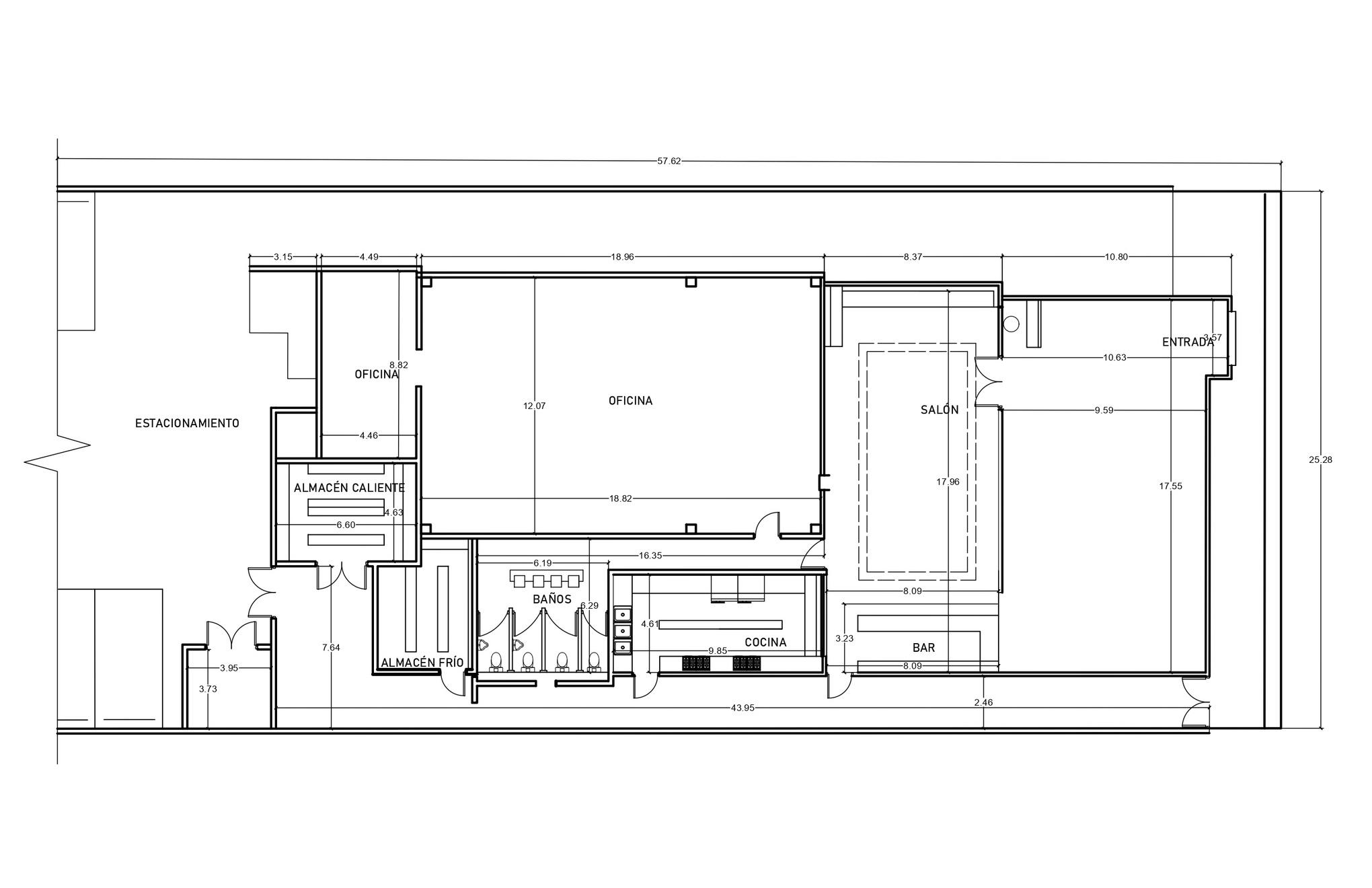
PLANTA DIMENSIONADA

MR. GRILLED KITCHEN

PLANTA ZONIFICACIÓN

LEYENDA Terraza
Salón Bar Baño
MR. GRILLED KITCHEN

ÁREAS Terraza Salón Bar Baño

TERRAZA

SALÓN

BAR

BAÑO

ANÁLISIS DE PROYECTO

ÁREAS DEMANDAS VISUALES DEMANDAS PSICOLÓGICAS DEMANDAS ESTÉTICAS

Terraza

Recibir clientes, tomar órdenes, escribir, socializar y comer.

Circulación de personas, sensación de seguridad, higiene y confort.

Resaltar texturas y acabado de paredes, mobiliario, obras de artes y destacar detalles decorativos.

Salón

Recibir clientes, tomar órdenes, escribir, socializar y comer.

Circulación de personas, sensación de seguridad, higiene, confort y comodidad.

Resaltar texturas y acabado de paredes y techo, mobiliario, plantas y destacar detalles decorativos.

Bar

Recibir clientes, tomar órdenes, escribir, facturar, socializar, preparar tragos y consumir.

Sensación de seguridad, higiene, confort e impresión.

Resaltar texturas y acabado de paredes techo y barra, mobiliario, botellas, utensilios, máquinas de trabajo y destacar detalles decorativos.

Baño

Lavarse las manos, cumplir necesidades humanas.

Sensación de seguridad, higiene, comodidad.

Resaltar texturas y acabado de paredes, mobiliario sanitario (lavamanos e inodoros), destacar detalles decorativos y obra de arte.

Terraza

PLANIFICACIÓN BÁSICA

Salón

Directa Difusa General Localizado Reflector Difusor

Sensación de amplitud y orden e higiene.

Mayor visibilidad a las mesas, permite ver con claridad el menú, los alimentos, utensilios para comer y mantener buen ambiente en el espacio.

Directa Difusa General Localizado Reflector Difusor

Sensación de amplitud y orden e higiene.

Mayor visibilidad a las mesas, permite ver con claridad el menú, los alimentos, utensilios para comer y mantener buen ambiente en el espacio.

Bar

Directa Difusa General Localizado Reflector Difusor

Crear una atmósfera atractiva, ordenada y ambiente relajante.

Exhibir con claridad las bebidas, llamar la atención de las personas, poder ver con claridad las bebidas.

Baño

Directa Difusa General Localizado Reflector Difusor Sensación de amplitud.

Permite ver con claridad los elementos dentro del baño.

ÁREAS SISTEMA DE ILUMINACIÓN MÉTODO DE ALUMBRADO APARATO DE ALUMBRADO EFECTOS VISUALES SOBRE EL ESPACIO EFECTOS VISUALES SOBRE PERSONAS Y OBJETOS

TIPOS DE ALUMBRADOS

ÁREAS TIPO DE ALUMBRADO

Terraza Bombillas Leds, Lámparas Fluorescentes.

Salón Bombillas Leds

Bar Lámparas Leds, Bombillas Leds

Baño Bombillas Leds

LUZ NATURAL

La luz natural es un factor importante en el diseño de un restaurante. La luz del sol puede crear un ambiente agradable y acogedor, además de ahorrar energía y reducir el costo de iluminación artificial. Un diseño bien planificado como es el del restaurante Mr. Grilled Kitchen, puede permitir la entrada de luz natural y mejorar la experiencia de los comensales. Sin embargo, es importante planificar cuidadosamente la orientación y el diseño de las ventanas y las puertas para aprovechar al máximo la luz natural.

TERRAZA:

Un espacio abierto y con techo transparente que permite que entre más iluminación natural durante el día.

SALÓN:

Esta área posee iluminación natural gracias al ventanal que hace división entre la TERRAZA Y EL SALÓN.

BAR:

Percibe un bajo porcentaje de iluminación natural que es dirigida desde la parte exterior de la terraza y entra por el ventanal que divide el salón con la misma, es muy bajo el porcentaje porque no entra directamente a ese espacio, esta se alimenta de la que entra al salón.

BAÑO:

Este espacio posee un ventana que permite un muy bajo porcentaje de iluminación natural, por lo que la mayor fuente de luz es por las luminarias.

CONCLUSIÓN

Un espacio de diseño de interior bien iluminado es esencial para crear un ambiente cómodo y acogedor. La luz natural y artificial adecuadas pueden mejorar la apariencia de los colores y texturas de los materiales, así como también pueden aumentar la sensación de amplitud y profundidad en el espacio. Además, una buena iluminación también puede mejorar la productividad, el bienestar y la salud mental de las personas que ocupan el espacio. Por lo tanto, es importante planificar cuidadosamente la iluminación en el diseño de interiores. Para los criterios que este local demanda es necesaria una buena iluminación que permita una buena visión, tanto para los trabajadores como para los clientes, para que puedan realizar sus actividades al máximo de manera eficiente. Así también, poder crear un espacio agradable para producir una buena experiencia.

Localización y ubicación

Planificación

básica

APORTES

Análisis del proyecto Conclusión

Introducción Planificación básica

Planta

arquitetónica

Planta

dimensionada

Planta

zonificacón

Planta

arquitectónica

Planta

dimensionada

Luz natural

Análisis del proyecto Tipos de alumbrado

MIQUEAS DE LA CRUZ LESLIE PEÑA CARMEN ROSARIO SHAIRIN PERDOMO EMELY PANTALEÓN YEURIS PICHARDO

Turn static files into dynamic content formats.

Create a flipbook
Issuu converts static files into: digital portfolios, online yearbooks, online catalogs, digital photo albums and more. Sign up and create your flipbook.
Primer Parcial - Estudio de Iluminación y Climatización by Emely Pantaleon Aquino - Issuu