

Marek Eismant
+48 518 431 842 marek.eismont@gmail.com

W swojej pracy podejmuję się kompleksowych działań, przeprowadzam szczegółowe rozpoznanie tematu oraz korzystam z profesjonalnych technik i narzędzi do realizacj projektów. Jestem kreatywną osobą, z pasją do projektowania innowacyjnych funkcjonalnych przestrzeni. Szczególnie skupiam się na grafice architektonicznej, mając solidne podstawy teoretyczne i praktyczne, które wzbogaciłem poprzez uczestnictwo w licznych warsztatach i kursach. Czerpię z zasad wypracowanych przez twórców styl międzynarodowego i Bauhausu, takich jak J. M. Brockmann czy Johannes Itten, co umożliwia tworzenie spójnych wizualnie, estetycznych prezentacji projektów, zgodnych z nowoczesnymi standardami grafiki.
Praca dyplomowa inżynierska, zrealizowana na Wydziale Architektury Politechniki Białostockiej, zdobyła Nagrodę Prezydenta Miasta Białegostoku w konkursie na najlepsze prace dyplomowe podnoszące problemy przestrzenne miasta - za próbę rozwiązania poważnego problemu przestrzennego oraz integrację nowoczesnych rozwiązań architektonicznych z trudnym kontekstem miejskim.
Wykształcenie
Politechnika Gdańska Wydział Architektury
Architektura, Studia stacjonarne II stopnia (W TRAKCIE)
Temat pracy mgr: Nowe życie wielkoskalowych obiektów poprzemysłowych –studium problemowe doboru funkcji z uwzględnieniem zachowania wartości kulturowych na przykładzie Hali Prefabrykacji na terenie dawnej Stoczni Gdańskiej.
Politechnika Białostocka Wydział Architektury
Architektura, Studia stacjonarne I stopnia
Praca inż: Adaptacja i rozbudowa historycznej struktury w trudnym kontekście urbanistycznym. Plomba miejska.
Galeria sztuki u zbiegu ulic Kijowskiej i Młynowej w Białymstoku.
- Nagroda Prezydenta Miasta Białegostoku w konkursie na najlepsze prace dyplomowe podnoszące problemy przestrzenne miasta. Edycja 2024
- Publikacja Architektura&Biznes 7/8’25 (drukowane wydanie)
- Dyplom z wyróżnieniem dziekana WAPB
2022
szkoła OT0DO10, online
https://www.instagram.com/ot0do10/ Cykl szkoleń i warsztatów
Revit+Enscape+Photoshop modelowanie i prezentacja 14 zajęć po 4 godziny
Rhinoceros+ V-Ray modelowanie i wizualizacja 11 zajęć po 4 godziny
Photoshop+Ilustrator prezentacja projektu architektonicznego 8 zajęć po 3 godziny
Doświadczenie zawodowe
2023 2024 2025
ARCHITEKTON pracownia projektowa
Justyna Zalewska - Grycuk OutlineAI
Praktyka zawodowa architektoniczna 4 miesiące
Digital Product Designer
Oprogramowanie
2D/ 3D rndr/ vis
Adobe suite inne
Rhinoceros 8 Autodesk Revit Autodesk Autocad
Photoshop Illustrator InDesign Premiere Pro
Enscape V-Ray
QGIS Microsoft Office
Okładka: Element graficzny - pierzeja ul. Rue Saint-Martin, opracowanie Marek Eismant.
Materiały graficzne zawarte w niniejszym portfolio są dziełem własnym, chyba że zaznaczono inaczej.
Członkowie zespołów projektowych są uwzględnione w podpisach, jeżeli dotyczy.
Kwiecień 2025

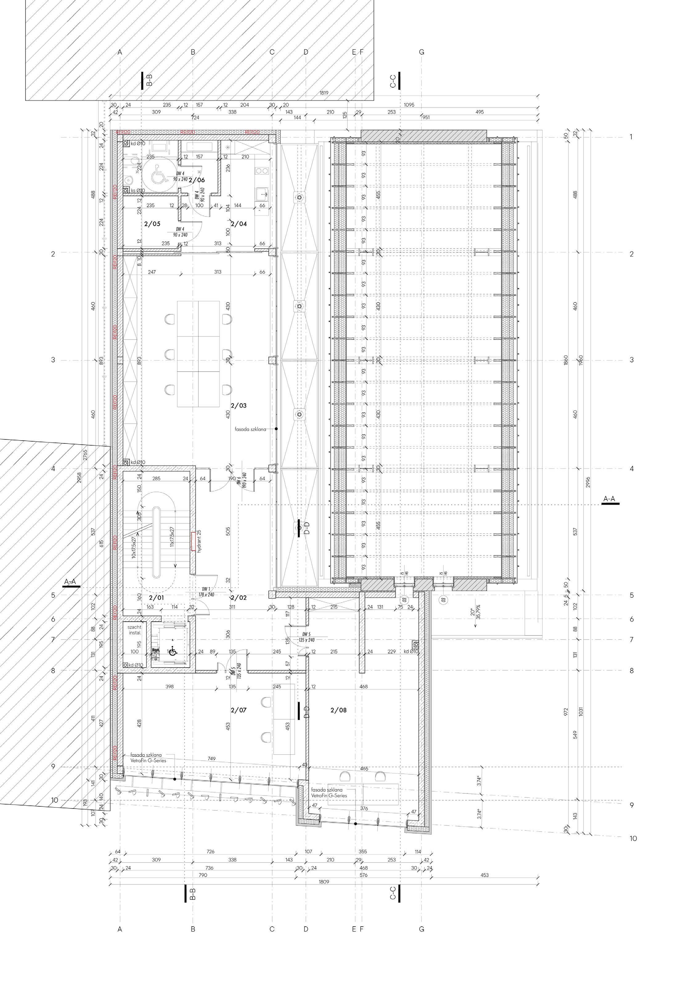
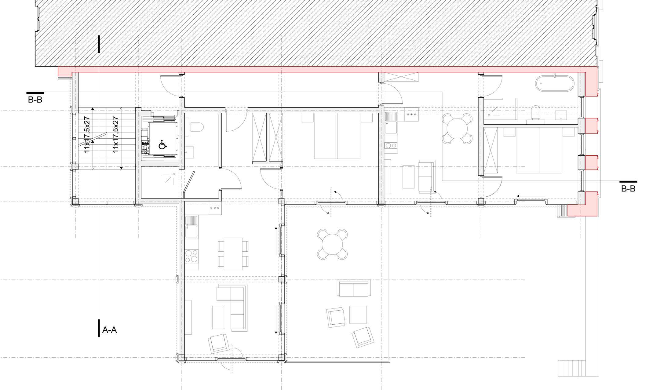
Adaptacja i rozbudowa historycznej struktury w trudnym kontekście urbanistycznym. Plomba miejska. Galeria sztuki u zbiegu ulic Kijowskiej i Młynowej w Białymstoku
Przedszkole teatralne
Flow. Przyszlość kampusu w ruchu
01 02 03 04
Gniew. Adaptacja ruin i uzupełnienie pierzei w bloku zabudowy przyrynkowej
Adaptacja
i rozbudowa historycznej struktury w trudnym kontekście urbanistycznym.
Plomba miejska.
Galeria sztuki u zbiegu ulic Kijowskiej i Młynowej w Białymstoku.
Praca dyplomowa inżynierska
Promotor: dr inż. arch. Robert Misiuk
Data obrony: 27 czerwiec 2024
Politechnika Białostocka, Wydział Architektury
Nagroda Prezydenta Miasta Białegostoku w konkursie na najlepsze prace dyplomowe podnoszące problemy przestrzenne miasta. Edycja 2024
Wyróżnienie Dziekana Wydziału Architektury Politechniki Białostockiej
Podjęcie działań do rewaloryzacji obiektu przy ul. Kijowskiej 3 jest konieczne, ponieważ jego awaryjny stan pogarsza się z dnia na dzień.
Celem projektu jest stworzenie nowoczesnej przestrzeni kultury i sztuki, która zachowa i wzmocni historyczny charakter budynku, przyczyniając się do transformacji okolicy. Nowa Galeria Sztuki ma oferować wielofunkcyjne przestrzenie dla różnych form działalności kulturalnej, takich jak wystawy, warsztaty, spotkania artystyczne oraz wydarzenia edukacyjne i społeczne.
Projektowana galeria ma za zadanie wzbogacić ofertę kulturalną miasta oraz stać się ważnym elementem przestrzeni publicznej. Bliskość innych instytucji kulturalnych, takich jak Opera i Filharmonia Podlaska oraz Teatr Lalek, stwarza możliwość integracji projektowanego obiektu z istniejącą infrastrukturą kulturalną Białegostoku.
Miejsce lokacji projektu stanowi wyjątkowe wyzwanie architektoniczne ze względu na różnorodność otoczenia i historyczny charakter miejsca. Budynek fabryki ma historię, sięgającą czasów przedwojennych, a także okresu wojennego i powojennego. Zachowanie jego autentycznego charakteru przy jednoczesnym dostosowaniu do współczesnych wymagań użytkowych jest wyzwaniem, które przyczynia się do ochrony lokalnego dziedzictwa.













Przedszkole teatralne
2 miejsce w konkursie Burmistrza miasta Choroszcz
Celem projektu było stworzenie przedszkola, które łączy edukację z przestrzenią sprzyjającą kreatywności i ekspresji artystycznej. Poprzez integrację elementów teatru w codziennym funkcjonowaniu placówki, budynek wspiera rozwój emocjonalny i społeczny dzieci.
Forma obiektu została zaprojektowana jako dynamiczna, wznosząca się bryła –symbol dorastania i odkrywania świata. Druga kondygnacja łączy się z placem zabaw poprzez łagodnie pochylony ogród, zachęcając do ciągłego ruchu i eksploracji. Przestrzeń edukacyjna staje się tu sceną – miejscem doświadczeń, interakcji i swobodnej twórczości.








Flow. Przyszłość kampusu w ruchu
Zespół projektowy: Marek Eismant, Laura Pacud
Publikacja: Architektura & Biznes
hydro | science | community
flow
Koncepcja „Flow” nawiązuje do idei dynamicznego przepływu – wody, wiedzy oraz społeczności. Głównym celem jest stworzenie przestrzeni sprzyjającej integracji międzywydziałowej oraz wspierającej wymianę myśli i innowacji. Projekt inspirowany jest zarówno naturalnymi procesami (ruchem wody i wiatru), jak i technologicznymi (przepływem danych). Przestrzeń kampusu jest projektowana tak, aby sprzyjać rozwojowi i budowaniu relacji międzyludzkich, a także stymulować kreatywność i produktywność.










Gniew.
Adaptacja ruin i uzupełnienie pierzei w bloku zabudowy przyrynkowej














+48
marek.eismont@gmail.com
marek.eismont@gmail.com
