Emilija Panic Portfolio

Page 1

Retail Design

Portfolio

TABLE OF CONTENTS 01 02 03 04 Frames Retail Concept • executed project for Palmers K41 Showroom • concept and execution Penhaligons Pop Up Proposal • student project Elisava Kaleos Retail Furniture • student project Elisava RAW Brand Identity and Store Design • student project Elisava 05

FRAMES

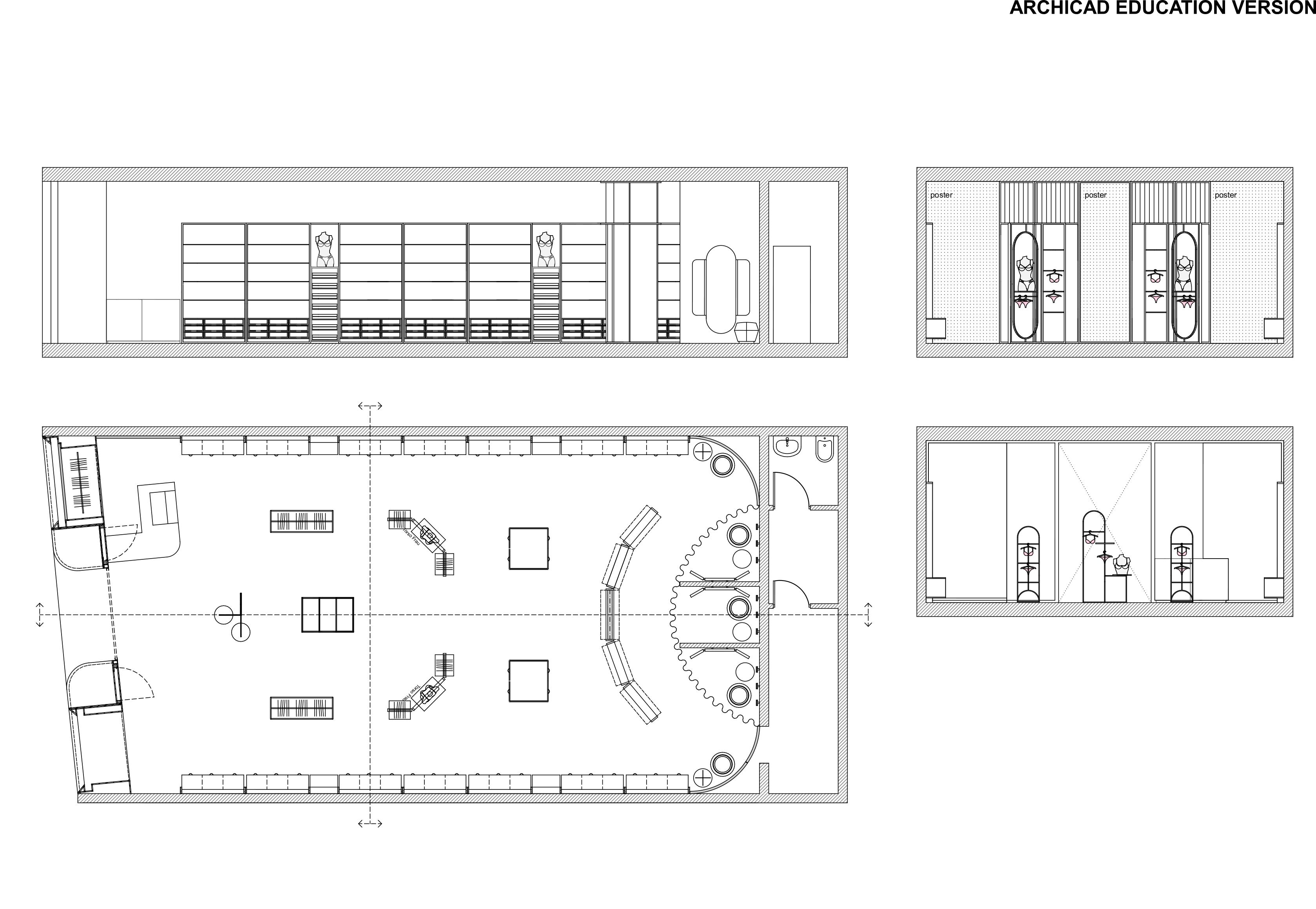
Retail Concept for Palmers

Palmers is considered the innovation leader in the lingerie sector and is the clear market leader in Austria. With locations in over 20 countries, Palmers sets the tone worldwide. At Palmers, I worked on and designed Frames

Retail Concept.

The main task of Frames Retail Concept was to design, and develop interchangeable elements that can be used in different stores and offer customers a modern and contemporary look while staying true to the brand’s heritage.

Prague, Czech Republic Berlin, Germany
1

Dressing Rooms

Inside the delicate draperies of each dressing room, it was important to make customers feel and look their best. The intimate atmosphere was achieved with light pink walls and carpets, triptych mirrors for optimal visibility, gold details and a splash of red that added some contrast.

Corporate Facades

The facades at Palmersare are inspired by the Viennese Secession, Viennese architecture and some of the original Palmers Flagship shops. With curved glass, gold bars and detailing, bold backlit photographs and a feminine touch, the design offers customers a transparent and welcoming reception. The result was an elegant, eye-catching storefront with strong advertising, signage and lighting.

Klagenfurt, Germany Dornbirn, Austria
2
Prague, Czech Republic

Frames Retail Concept furniture design is based on a close analysis of Palmers products. Both form and function were considered in the design of each piece.

Throughout the store, a system of wall displays and various isolated displays provide customers with front and side views of the products. Against a backdrop of soft pink with accents of wood, gold and mirrors, Palmers’ products are presented in a variety of ways, allowing them to take center stage.

The flexibility of the system makes the furniture easy to use and offers numerous variations for visual merchandising. All functional parts of the furniture are made of perforated metal and are ideal for storage.

Part of Frames Retail Concept, the triptych installations have been designed to create a prominent focal point in any store. With adjustable bars and shelves, the installations have been used in a variety of ways that are ideal for displaying luxury collections.

Storefronts

As part of the Frames Retail Concept challenge, it was important to develop multiple storefront variations to fit any Palmers store, whether it was a street store or a shopping mall.

poster pos er poster poster pos er poster GSEd V pos e poste
Furniture Design
3

Each floor plan was designed to achieve the desired effect of Palmers strategic goals. The harmonisation of architecture and interior design offered customers a fluid and memorable experience. The plan above served as the foundation for other locations to model after. The concept was implemented in over 50 Palmers stores, including flagship stores, franchise stores and shop-in-shops.

CC BB A A
Layout
B C
AA 4
B C

Showroom K41

Concept • Execution • Visual Merchandising

The store is named after Mozart’s Piano Concert he wrote when he was eleven.

K41 wants to offer the people of Belgrade and Serbia something different - products that are bringing back to life the golden years of European art, design, and craftsmanship; products which do not rely solely on the machines but on the skills of a man himself.

Our handmade furniture arises from finest craftsmanship of master artisans and timeless design that will make your interior look unique.

5

WHEN CRAFTSMANSHIP MEANS LUXURY

If an artisan decides to create something, that piece is unique, that’s why Furniture Store K41 decided to value the craftsmanship and spread artisans’ art by offering a curated selection of contemporary designs in order to boost the creativity of the interior design community.

Furniture Store K41 brings together six fantastic brands, each of which stands out for its unique and exceptional style: Boca Do Lobo, Brabbu, Buster + Punch, Delightfull, Essential Home and Rug’Society.

6
7

Product range

RAW

Brand Identity & Retail Concept

The brand of sustainable leather goods and timeless accessories is based on the principle of respect for craftsmanship. The collections are inspired by nature, art and culture. Each bag is a testament to local trade, working in harmony to create something truly unique. The ethos of the brand is built on handcrafting the bags locally at Canary Islands, bringing together the local designer and the artisan bag makers.

RAW envisions a future where innovation and heritage, the local and the international exist together, expressed through modern designs that embody a timeless tradition.

Handcrafted in Tenerife
8
BAGS
SMALL LEATHER GOODS •ACCESORIES

RAW is a Barcelona-based botique that presents its fine products as works of art, using natural and recycled materials, organically shaped furniture and handmade sculptures as displays for its ready-to-wear products.

With this concept of warm ambiance and furniture details, RAW offers a luxurious intimacy for its customers. A round LED screen brings nature into the store and projects videos of Tenerife.

9
The Store Material Board

The layout is free-floating and zoning is achieved by grouping furniture inspired by Atelier Brancusi. The ceiling is covered with aluminium grids and rails with LED lighting system, which makes the shop very bright and gives the feeling of a gallery.

Mood Board

inspired by Atelier Brancusi

Customer Circulation 10

GSPublisherVersion 0.12.100.100

Sunglasses

Storage

Cashdesk

Fitting Room 1

Fitting Room 2

Limited Edition

Accesories

Shoes

Small leather goods

Shopping window 1

floor plan and zoning

New Collection

Jewellery

RAW

Shopping window 2

Scarves

existing exterior plastering existing exterior stone covering stainless steel frame 50 x 40 mm

clear security laminated glass P6B

stainless steel metal logo with methacrylate base and leds backlighting dim: 1150 x 370 mm
11
facade R 1: 50

section A-A

store walls painted in Sikkens EN.02.90

aluminium greed H: 15 cm

mirror fixed on the wall 270 x 100 cm

brown leather bars with modular stainless steel shelves

decorative Walnut wooden column

aluminium greed H: 15 cm

store walls painted in Sikkens EN.02.90

stainless steel frame 50 x 40 mm

clear security laminated glass P6B

podest H: 20 cm Corian Neutral Concrete

display wall Corian Dune Prima

fitting room curtain fabric: Kvadrat Zero 0001

metallic shelves white lacquered

section B-B

installation closet in stratify laminated material

installation closet in stratify laminated material

fitting room rotatable mirror 38 x 110 x 38 x 220 cm

fitting room rotatable mirror 38 x 110 x 38 x 220 cm

brown leather bars with modular stainless steel shelves

brown leather bars with modular stainless steel shelves

LED screen brown leather bars with circular endings for scarfs display

LED screen brown leather bars with circular endings for scarfs display

display wall Corian Dune Prima

display wall Corian Dune Prima

aluminium greed H: 15 cm

aluminium greed H: 15 cm

aluminium greed H: 15 cm

store walls painted in Sikkens EN.02.90

stainless steel frame 50 x 40 mm clear security laminated glass P6B

podest H: 20 cm Corian Neutral Concrete

section C-C

stainless steel shelves with LED light

stainless steel shelves with LED light

store walls painted in Sikkens EN.02.90

store walls painted in Sikkens EN.02.90

store walls painted in Sikkens EN.02.90

display wall Corian Dune Prima storage door mirror 100 x 300 cm

display wall Corian Dune Prima storage door mirror 100 x 300 cm

section D-D R 1: 50

store walls painted in Sikkens EN.02.90

mirror fixed on the wall 270 x 100 cm

mirror fixed on the wall 270 x 100 cm

brown leather bars with modular stainless steel shelves

brown leather bars with modular stainless steel shelves

12
13 POP UP PROPOSAL DESIGN AND PRODUCTION

BRAND IMAGE

•TRADITIONAL

•LUXURIOUS

•COLORFUL

•ECLECTIC

•WORM

BRAND VALUES

•147 YEAAR HERRITAGE

•SOPHISTICATION

•INNOVATION

•ELEGANCE

•INTEGRITY

EXPERIENTAL POP UP

PROMOTION OF THE COLLECTION

NEW APROUCH

removing the strong visual identity and focusing only on PARFUME

PORTRAITS

ECCENTRIC COLLECTION OF UNIQUE SCENTS

STRATEGY

The pop- up store as an ephemeral installation consists of ten display spots, each for a different perfume, surrounded by hanging paper tracks. The smoke creates a translucent atmosphere, allowing visitors to focus only on the smell.

An experience point, not a selling point. A Sales Assistant guides visitors through the installation and helps them test the perfumes.

The installation itself is used as a tester. Customers are asked to tear off a piece of paper to try the fragrances and take it away as a memory of the experience.

GOAL

To remove everything that is excessive and leave only the essential. Create a sensory experience that invites people to detach from the moment and let themselves drift with the scents.

What if we removed everything
scent.
that is not essential? The
14

perfume

memories

personality

sensationes

absence and presence

immateriality

lightness

luminescent translucency

exploration and interaction

15

Plan and Elevation

Brass Parfume Stand x10

Curtain Rail x 10 R: 45cm

Paper Rolls GMUND

Linen cream 30 gr

Width: 15 cm

Lenght: 2-4 m

Transport Plan using EU pallet

Micro ProFogger x 10

Smoke Generator 10 x 5 x 3.5 cm

16
smoke generator curtain rail

RETAIL FURNITURE

GLASSES STAND FOR KALEOS

The design consists of simple shapes, natural materials and a monochrome color scheme to keep the sunglasses the stars of the furniture.

Its design and easy portability make it a great fit for any sunglasses collection or retail environment.

It can act as a focal point in the Kaleos store to showcase the new collection, or stand independently as a pop-up stand.

MATERIALS:

TERRAZZO

BRUSHED BRASS

COATED ALUMINIUM

MIRROR

GLASS

VELVET

The selected materials reflect Kaleos’ brand image, which is conveyed through the company’s campaigns and social media channels. Light and simple, the selection translates Kaleos’ message.

17
The piece is double sided and can display up to 50 sunglasses each. The top drawer serves as a display with a clear acrylic surface where the glasses are stored in velvet compartments.

RETAIL FURNITURE

GLASSES STAND FOR KALEOS

B A view A section B R 1:20 Details R 1:5 18

RETAIL FURNITURE

GLASSES STAND FOR KALEOS

THE BRAND

KALEOS Eyehunters is an independent luxury eyewear brand from Barcelona, Spain. The brand mixes contemporary design with functionality in unique and personal creations.

KALEOS IS CONTEMRORARY FASHION HOUSE WITH A SINGULAR MODERN ATTITUDE.

Handmade with the highest quality materials, each model is made using Italian components with their own hinges and interiors. Comfort and durability are at the heart of every pair of KALEOS Eyehunters sunglasses or optical glasses.

Inspired by Joan Miro

Joan Miro, from Catalonia, was an internationally known surrealist-style artist in the 20th century. His non-objective artworks are brilliantly evoked through shapes and marginally recognizable objects.

19
Thank you.

Turn static files into dynamic content formats.

Create a flipbook
Issuu converts static files into: digital portfolios, online yearbooks, online catalogs, digital photo albums and more. Sign up and create your flipbook.